Abstract
With the increasing of building energy consumptions, the related issues of energy crisis and environmental pollution become more and more prominent. As an effective energy-saving technology, the passive house (PH) has been widely applied in China to reduce the building energy utilization. However, the design and application of PH vary with different climate conditions. Therefore, it is significant to conduct the parameterization of PH and propose a suitable design zoning of PH in China. In our study, a comprehensive feasibility analysis of the implementation of PH is performed, which chooses 31 representative cities covering 5 climatic regions. The sensitivity analysis firstly filters the key parameters that heavily affect energy consumption. The results indicate that the key parameters include external wall heat transfer coefficient (WU), basement ceiling heat transfer coefficient (BCU), solar heat gain coefficient (SHGC), glass G value (UG), heat recovery efficiency (HERE) and humidity recovery efficiency (HURE). Then, with the multiple regression approach, the values of key parameters are optimized. Based on the determined values of sensitive parameters, the design zoning of PH in China is finally proposed, which can guide the design of PH as well as enhance the application of PH in China.
1. Introduction
The global energy consumption is mainly concentrated in building, transportation and industry, of which the building field accounts for 40% [1,2]. In China, building energy consumption accounts for 28% of domestic energy consumption. However, with the rapid growing of building areas and the improvement of people’s life quality, this proportion will increase to 40% by 2030, and notably the residential sector will account for 62% of total building energy consumption [3]. To alleviate energy demand, the concept of low energy buildings has been proposed, e.g., zero energy building, green building, PH [4]. The Ministry of Housing and Urban-Rural Development of the People’s Republic of China also put forward the technical standard for nearly zero energy buildings to reduce the energy consumption of residential buildings by more than 60% [5].
As a typical type of low-energy building, the concept of PH was proposed by Dr. Feist of the Passive House Institute (PHI) aiming to provide a comfortable indoor environment with minimum energy demand [6]. A PH should obey five principles: (i) High level of thermal insulation; (ii) minimization of thermal bridges; (iii) high-efficiency windows; (iv) airtightness; and (v) mechanical ventilation with heat recovery system [7]. Compared with traditional buildings, PH can save up to 90% of heating energy and 50% of cooling and dehumidification energy [8]. To obtain the PH certification, the building must meet the passive house standard (PHS): Annual heating or cooling demand must be equal or less than 15 kwh/m2, the primary energy use must be equal or less than 120 kwh/(m2 a) and the tightness level (n50) must be equal or less than 0.6 h−1 [9]. As an effective technique of building energy conservation, PH has achieved unprecedented development in China. As estimated, by 2020, there will be 5000 new PHs in China with a total building area of 100 million square meters [10].
In order to investigate the energy-saving performance of PH, extensive research had been carried out. Through energy consumption monitoring, Dan et al. [11] found that the primary energy demand of residential PHs was less than 120 kwh/(m2 a). Mahdavi et al. [12] found that PH apartments consume approximately 65% less heating energy and 35% less electrical energy than low-energy apartments. The life cycle results show that the built residence with PHS provides a reduction of cumulative energy demand of 24–38% compared with the conventional building standard TEK 10 [13]. Besides, in comparison with traditional retrofit schemes, renovation methods based on PHS have higher energy efficiency [14,15]. Therefore, PHs have great energy conservation potential both to new construction and existed buildings. For PH, the Passive House Planning Package (PHPP) is used as a common building energy-benchmark system to forecast heating demand [16], cooling demand [17] and primary energy demand [18]. It considers a larger range of internal heat gains in buildings, such as heat recovery [19]. PHPP is more precise than similar design tools, calculating the energy balances of a building to an accuracy of ±0.5 kWh. [20] However, the core technical indicators of PH are determined with the climatic conditions of Central Europe, so the application in other climate areas must address climate adaptation issues. Jürgen et al. [21] have proved that all relevant climate zones in the world can realize PHs by using damp thermodynamic simulations. Badescu [22,23] used the PHPP to prove that Romania and parts of the southern hemisphere can meet the PHS. However, in warmer climates, the PHS cannot be met [24,25]. To achieve PHs in all climate zones, design parameter optimization has become the key to solving the climate adaptation problem [26]. Currently, parametric optimization focuses on design parameters of envelope structure and air tightness [27,28]. For example, Ferrante [29] and Tommerup [30] conclude that the key to meet PHS is to optimize the insulation layer thickness of the envelope. Badescu et al. [31] found that the overheat rate and the cooling load can be reduced by adjusting the night ventilation in summer. Parker et al. [32] pointed out that the residence can meet the PHS after optimizing the thermal performance and air tightness and other technical parameters. Parametric optimization analysis showed that SHGC and window wall ratio are the sensitive parameters in hot and humid climates [33]. Georges et al. [34] found that the PH can meet the heating demand of 10 W/m2 when the air exchange frequency is 0.3–0.4 h−1 by sensitivity analysis. Research on PH mostly focused on cold regions and less on warm regions. Therefore, the energy efficiency index and design parameters in other climates are often ignored, such as refrigeration energy consumption and refrigeration dehumidification efficiency.
To solve the climate adaption issues of PH in China, this research studies the feasibility of PH in Chinese various climate zones; determines the key design parameters affecting energy consumption; and obtains the appropriate values and ranges of key design parameters. PHPP is applied to simulate the heating, cooling and primary energy consumption of 2000 −×31 −×2 cases in 31 cities and analyzes the difficulty of realizing the PHS in China’s climate regions. The parametric optimization considers 13 design parameters affecting energy consumption, and the standard regression coefficient (SRC) method is used to determine the key design parameters. The values and ranges of sensitive parameters are obtained based on multiple regression analysis, and the design zoning of residential PH in China is proposed.
2. Methodology
2.1. Simulation Models
2.1.1. Climate and Locations
To verify the rationality of parametric research on PH in China, this paper selects 31 representative cities. These 31 cities cover five thermal climate zones: Severe cold (SC), cold (C), hot summer and cold winter (HSCW), hot summer and warm winter (HSWW), and M (warm). Meanwhile, the meteorological data of 31 cities can be obtained from the official institutions for static PHPP simulation. Table 1 shows the geographic information of 31 cities, as well as the heating degree days (HDD) and cooling degree days (CDD) [35,36].
Table 1.
Main information on research site.
2.1.2. Software and Building Models
The PHPP developed by PHI is a powerful software for calculating and verifying the energy consumption of PHs. The calculation results are the decisive basis to judge whether the buildings can meet the PHS [37]. According to PHI’s study, it is found that PHPP can be used in China [38].
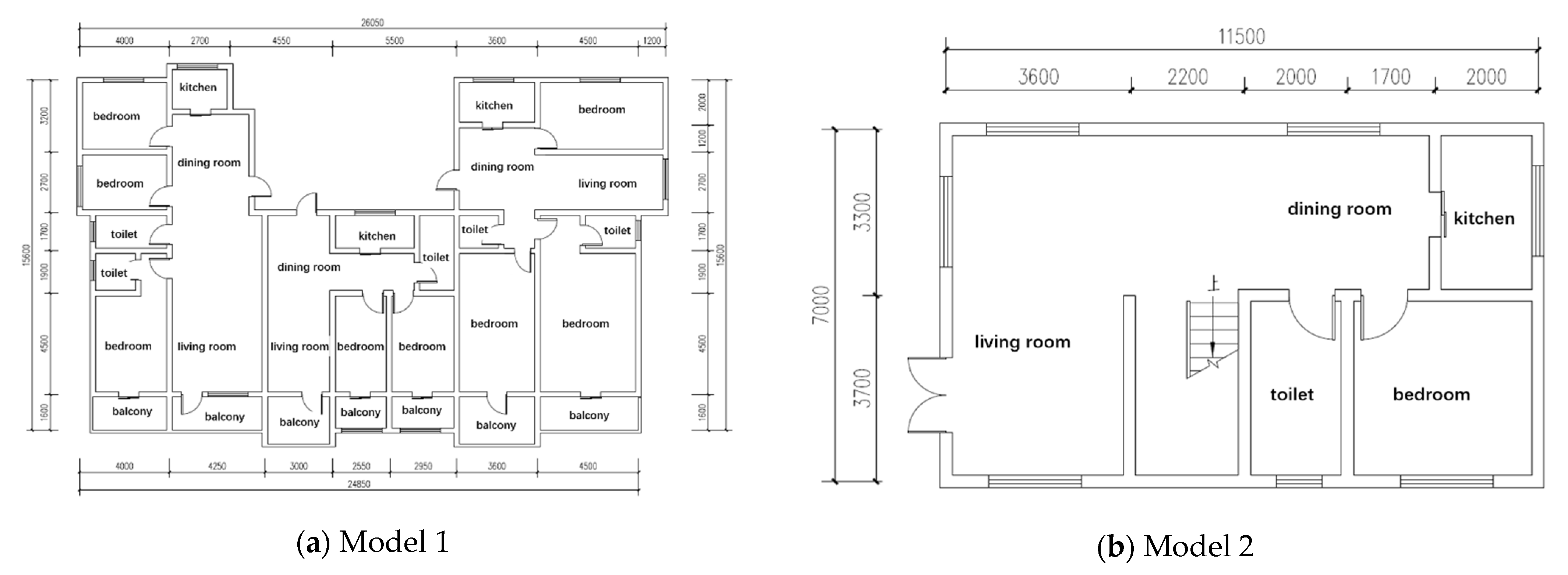
Two types of residential building digital models are established in PHPP, namely high-rise and villa buildings, which considers the influence of building shape coefficient on building energy consumption. Model 1 in Figure 1 is based on a representative PH in China, named C15, in the “Waterside” project in Qinhuangdao, Shandong Province. This is an 18-floor high-rise residential building with an underground parking lot. The building presents an air-conditioned area of 352 m2 on each floor with a height of 3 m. There are three units on each floor. Model 2 in Figure 1 is for a single-family residence with two stories, slab on grade. It has about 150 m2 of occupied floor area (~75 m2 per floor); the interior floor plan’s dimensions are 7 m × 11.5 m (the long side facing North/South), with 2.8 m ceiling heights and a roof truss with horizontal ceiling insulation. Each model is equipped with a fresh air system with independent control and heat recovery systems for heating and cooling. In addition, using the model to simulate cities located in different climate zones, the PHPP models are slightly modified according to national and local regulations, climatic conditions and regional habits. The details of two models are presented in Table 2.
Figure 1.
Plan schemes of model 1 and model 2.
Table 2.
Parameter setting details of two PHPP models.
2.1.3. Design Parameter
This paper selects 13 variables: Roof heat transfer coefficient (RU), exterior window frame heat transfer coefficient (UWF), exterior wall absorption coefficient (ACW), roof absorption coefficient (ACR), exterior wall window eave length (WUG), night ventilation efficiency (NVE), AT, BCU, SHGC, WU, UG, HERE and HURE. The selected parameters have great influence on the consumption and thermal comfort of PHs [39,40]. Meanwhile, these parameters are heavily dependent on climate conditions [41,42]. The range of parameters is determined by the Green Building Evaluation Standard and the Passive Ultra Low Energy Green Building Technical Guidelines, as shown in Table 3 [43,44].
Table 3.
Details of study design parameters.
2.2. Research Methods
The parametric study of PH is achieved by sensitivity analysis (SA) and multiple regression analysis (MRA). The research framework is shown in Figure 2. First, PHPP is used to obtain valid samples conforming to the PHS. Then, the sensitivity (SRC value) and the model coefficient (R2) of each parameter are obtained by the SRC method to determine the key parameters. Finally, multivariate regression analysis is used to establish the energy consumption meta-model. The samples extracted by Latin hypercube sampling (LHS) are used to verify the meta-model, and the PH database of each region is obtained. The optimization of PHs in different climate regions in China is studied, and the sensitive design parameters value of each climate zone is obtained.
Figure 2.
The framework of simulation and optimization.
2.2.1. Sensitivity Analysis
To explore the qualitative relationship between 13 design parameters and energy consumption, SA is used to determine the key parameters affecting energy consumption [45]. As a typical SA method [46], the SRC method considers the response of the entire parameter space and is widely used in building performance analysis [47,48,49]. Most importantly, the SRC method can provide valuable information about the relative influence of each design parameter on three energy consumption indices [50], and thus the SRC method is selected. The SRC value and the R2 are calculated from Equations (1)–(4). The SRC value explains the weight of each input variable in the regression model, and the R2 evaluates the reliability of the input and output of the model. The process of SA is calculated by the “sensitivity” package in the R program.
where is the constant, is the regression coefficient, is the input/variable, is the output/response, is an approximate error, is the mean of and is the predicted value of by the model.
2.2.2. Multiple Regression Analysis
To study the quantitative relationship between parameters and energy consumption, this paper establishes the meta-model by MRA. The meta-model is applied to obtain the key design parameter values suitable for China [51]. Different from classical regression model, the meta-model can consider the interaction between independent variables. Therefore, the classical regression model (5) is modified, and the form of the regression model remains unchanged as (6):
2.3. Simulation Verification of PHPP
In order to verify the accuracy of PHPP, we use the dynamic simulation software Design Builder (DB) to compare its result. We use model 1 and model 2 to simulate the representative cities: Harbin (SC), Beijing (C), Wuhan (HSCW), Guangzhou (HSWW) and Kunming (M). The 13 design parameters of two models are same and presented in Table 2. The calculation results are shown in Table 4.
Table 4.
The calculation result of PHPP and Design Builder.
Table 4 shows that the calculation relative error rate of PHPP and DB is between 4.3% and 8.7%. The results show that the energy consumption calculation error of PHPP and DB in each climate zone is less than 10%, which means that in this study, we can use PHPP to simulate building energy consumption in different climate zones.
3. Results and Discussion
3.1. Energy Consumption Analysis
In this section, we analyze the extent to which building energy consumption in different regions can meet PHS. The percentage of satisfying the energy requirements of heating, cooling, primary energy and all three within PHS is calculated, respectively. The statistical results are shown in Figure 3.
Figure 3.
The proportion of samples meeting different energy requirements of PHS in 31 cities.
Figure 3 shows that the proportion of the PH cases that satisfy the standards in China’s different climate zones varies greatly. The results show that the warmer the climate is, the easier it is to meet the heating demand. Due to the low HDDs in HSCW, HSWW and M areas, the heating energy consumption is relatively low. Therefore, Figure 3a shows that the average proportion meeting the heating standard is HSWW > M > HSCW > C > SC. Similarly, for cooling demand, since heating is mainly considered in C and SC, the cooling energy consumption is relatively low, so the average fill rate in Figure 3b is M > SC > C > HSCW > HSWW. Among them, the building energy consumption is low in the M area, which meets the requirement. For the same standard, the energy consumption of PH in the same climate zone is greatly affected by the building type, such as the primary energy demand: Villa buildings are easier to realize PH than high-rise buildings in Figure 3d. In the initial setting, the high-rise residential (C15) consumes more electricity than the villa (example) setting in public areas such as elevators. In addition to the sub energy consumption, it also considers the three at the same time. Figure 3d shows that PHs are easy to be realized in M areas, followed by some C areas; meanwhile, the satisfaction rate of the villa is generally higher than the high-rise. As the latitude of C areas are close to Germany, but the temperature is lower, only parts can meet the requirements. In summary, in addition to M areas, it is difficult for PHs to fully meet the energy consumption requirements in China. Therefore, it is necessary to optimize the building design parameters to achieve the PHS in all Chinese climates.
3.2. Sensitivity Analysis
3.2.1. General Parameter Analysis
Figure 4a–f shows the sensitivity of each design parameter for the three energy consumption outputs, namely heating, cooling and primary energy consumption in the eight representative cities. For both types of buildings, the length of each color bar indicates the size of the SRC, a positive value indicates that the parameter value will result in an increase in energy consumption, and vice versa. While SRC < 0.1, there is almost no relationship between input and output. For the SC and C regions, the sensitivity analysis results show that the important parameters are WU, SHGC, HERE, UG and BCU. However, for the HSCW, in addition to the five parameters mentioned above, HURE is also an important parameter. For the HSWW, there are large fluctuations that the key parameters are only SHGC and HURE. As shown in 3.1, because of low energy consumption, the design parameters in M areas do not need to be further optimized, so the sensitivity of design parameters in this area is not considered.

Figure 4.
SRC values of parameters on heating, cooling and primary energy demand in eight cities. (a) Harbin, (b) Urumqi, (c) Lhasa, (d) Shijiazhuang, (e) Shanghai, (f) Chengdu, (g) Guangzhou, (h) Kunming.
3.2.2. Parameter Analysis for Different Climates
Figure 4a–d shows that the parameters with large SRC values are WU, SHGC, BCU, UG and HERE. It can be seen from Section 3.1 that heating is mainly considered in SC and C areas. Meanwhile, the temperature difference between indoor and outdoor in winter is large, so the heat transfer coefficient of the envelope (WU, BCU and UG) can effectively reduce the heating demand. PH has changed the traditional heating form, mainly heating by ventilation, and using fresh air heat recovery can save heating. At the same time, it can effectively use solar radiation to gain heat. Other parameters have less impact on energy consumption in SC and C areas. The climate in the HSCW region is complex, hot and humid in summer. Therefore, it is necessary to increase HURE to reduce the energy consumption of dehumidification. Due to low temperature and insufficient sunshine in winter, UG and SHGC should be considered. At the same time, the appropriate heat transfer coefficient of the envelope takes into account heat preservation in summer and heat insulation in winter. Therefore, the sensitive parameters are WU, HERE, UG, SHGC, HURE, and BCU in the HSCW region. According to energy consumption analysis, the HSWW area mainly considers the cooling, and the solar radiation intensity and humidity are large. Therefore, it is necessary to increase the HURE to reduce dehumidification energy consumption and choose appropriate SHGC values to reduce solar heat. Therefore, Figure 4g shows sensitive parameters for HURE and SHGC in the SHWW region. In summary, SHGC is considered to be the most influential factor in all climate zones, although SHGC regulation is relatively contradictory in HSCW. Second, WU, BCU, UG and HERE are important for areas that require heating, and HURE is significant for areas that require cooling and dehumidification.
3.2.3. Parameter Analysis for Different Building Types
For SC and C areas, except UG, other important parameters have obvious differences in the two building types. Among them, WU and HERE have larger SRC values in high-rise buildings. Due to the larger external wall area and fresh air heat recovery, the impact on the high-rise is greater. On the contrary, SHGC is more sensitive in the villa, because the solar heat gaining in the villa accounts for a large proportion of heating demand. BCU has the opposite SRC value in the two types of buildings. Because the villa directly contacts the ground and high-rise buildings have a basement, the villa loses a lot of heat through the ground, while high-rise buildings reduce heat loss through the basement, so BCU has the opposite effect. In the HSCW area, because of cooling in the summer and heating in the winter, SHGC has opposite SRC values in the two buildings for primary energy demand. Therefore, the SHGC adjustment is relatively contradictory. HURE and HERE are more sensitive in high-rise buildings. Because high-rise buildings need a large amount of fresh air for cooling and heating, they can obtain more heat and moisture recovery. For the HSWW area, there is little difference between sensitive parameters among different types of buildings.
Table 5 shows the R2 of the energy consumption regression model for high-rise and villa buildings in eight representative cities. Except for Kunming, R2 is greater than 0.9 in other areas, indicating that the regression model has a high degree of reliability. From 3.1, the building energy consumption is low in Kunming, and the energy consumption varies greatly under different parameter combinations, so the fitting accuracy is not accurate enough. Furthermore, the heating demand in Guangzhou and the cooling demand in Harbin, Urumqi and Lhasa are too low to be shown in the Table 5.
Table 5.
Variation of R2 value with SRC method for three outputs.
3.3. Meta-Model Analysis
3.3.1. Determine the Value of Key Parameters
Taking high-rise buildings in Shijiazhuang as an example, firstly the valid samples are calculated by PHPP from 2000 samples. Then, 80% of the valid data are modeled, and the remaining are used to test the accuracy of the model. As shown in Figure 5a, the calculation results of the primary energy regression equation and PHPP are highly fitted, and the accuracy of the regression equation is as high as 99.7%. The regression equation of the agent is used to calculate the energy consumption value corresponding to 100,000 sample numbers. Three samples with energy consumption values satisfying the German PHS are taken as the PH database of the building type in the region. The samples are extracted by LHS, so the data are discontinuous and random, as shown in Figure 5b. To obtain the influence of a single factor on the objective function, dimension reduction was carried out in Figure 5c. The sample is red, and the one that is not satisfied is gray. The value range of SHGC is between 0.1 and 1.0. The value range is divided into nine equal parts. The frequency of 100,000 samples in each interval is met, as shown in Figure 6d. When the frequency of a certain interval is greater than (0.9 − 0.1)/9 = 0.1 (the red horizontal line in the figure), it is more suitable to establish a passive house in the interval of 0.5–1.0 in the SHGC. The trends shown in Figure 5c,d are different, because, in addition to primary energy, the effects of SHGC on cooling and heating need to be considered.
Figure 5.
Meta-model to determine PH parameter range method. (a) Model validation, (b) Parameter dimension reduction, (c) Influence of SHGC on primary energy, (d) Determination of the range of SHGC.
Figure 6.
Distribution of the PH samples according to SHGC.
3.3.2. Analyze Key Parameter Value
According to Section 3.2, the sensitive parameters of PH are WU, BCU, SHGC, UG, HERE and HURE. The method in Section 3.3.1 is used to get the appropriate value of each sensitive parameter under different climate conditions. Taking SHGC as an example, Figure 6 analyzes the appropriate value range of key parameters in seven representative cities.
According to the red horizontal line, reasonable SHGC values can meet the requirements of PH in various climatic regions. According to the frequency, SHGC has the same influence on high-rise buildings and villa buildings in Figure 6. More than 75% of cases that realize the PHS have an SHGC value between 0.1–0.2 in Guangzhou, and the smaller the value, the better. However, the larger the value in Harbin, Urumqi and Shijiazhuang, the easier it is to realize PH. Because C and SC regions need solar heat gain to reduce heat load. In Shanghai and Chengdu, parameter frequency is a relatively stable trend, due to the hot summer and cold winter. For Kunming, the frequency curve is above the red horizontal line, so any SHGC value meets the requirements of PH. In conclusion, the value of SHGC depends on geographical location and climate, and it contributes a lot to the refrigeration and dehumidification in HSWW and HSCW areas and the heating in SC and C areas. The optimal values and ranges of the 31 city sensitive parameters are presented in Appendix A and Appendix B.
3.3.3. Chinese PH Design Zoning
According to the results (Appendix A and Appendix B) calculated by the SRC and meta-model, 31 cities are reclassified into 7 PH zones (Table 6 and Figure 7) in China. The recommended values of the key design parameters for the optimization of different PH design areas are shown in Table 6. According to the comparison and summary of important design parameters, similar cities are divided into the same area. The recommended range is based on the range above the average horizontal line calculated in Section 3.3. The “-” in the table indicates that this design parameter is not suitable for use in the area, such as heat recovery in M and HSWW zones.
Table 6.
Design zoning and key design parameter range of PH.
Figure 7.
31 cities in China are reclassified into seven PH zonings.
The geographical layout between the residential PH design zones and thermal partition is distinct, especially Lhasa, Chengdu and Urumqi (Figure 7). The first and second zones cover parts of the C and SC regions, respectively. The third zone, except Chengdu and its surrounding areas, mainly covers HSCW regions. The fourth zone covers all HSWW areas. It is worth noting that the fifth region covers M and some C areas. The design needs to reduce the heating load; however, the heat load can be solar energy, so there is almost no energy consumption in the area. The sixth zone is composed of Urumqi and its surrounding areas. The climate is dry, the summer is ho and the temperature difference between day and night is large. Therefore, the indoor needs to be appropriately supplemented to prevent excessive drying, and the wall needs to use heat storage materials to store the heat during the day and release it at night. The seventh zone covers Chengdu and its surrounding areas. The district has high outdoor humidity, surrounded by mountains and has a complex terrain. There is a pattern of coexistence of two climates: Warm winter and cold west. Due to the lack of weather data from neighboring cities, the boundaries of the seventh are marked with dashed lines to show areas of uncertainty.
In order to verify the reliability of the PH design zone, another representative city is selected in each zone for verification. The specific method uses the LHS extraction of 100,000 samples to be substituted into the regression model obtained in the third part within the recommended range, and compares the quantity satisfying the condition to the quantity satisfying the condition within the original range value of the design parameter. The results are presented in Table 7. The new PH design zone reduces building energy consumption in the architectural design stage in the majority of areas. Especially in the area around Urumqi, the models that meet the PHS have increased nearly 30 times.
Table 7.
Optimization effect of PH zoning.
4. Conclusions
To solve the climate adaption of PH in China, we develop two PH models for high-rise buildings and villas and performs sensitive analysis of 13 design parameters in 31 cities that covering five Chinese climate zones. Moreover, a reasonable range of sensitive parameters is obtained by the energy consumption meta-model. Based on the parametric analysis, the design zoning of China’s residential PHs is finally proposed. The conclusions are summarized as below:
- As the energy consumption is greatly affected by climate conditions, the satisfaction rates of energy consumption index vary with climate regions. SC, C areas are easy to meet the cooling energy requirements; HSWW, followed by HSCW areas are relatively easy to meet the heating energy requirements. Building energy consumption in M areas are low and easy to meet PHS. Except for the M, it is difficult to achieve PHs in all climatic regions in China.
- The sensitivity of the key design parameters in different climate regions are different. SHCG is the most effect parameter for all climatic zones, followed by WU, BCU, UG, and HERE for heating zones. Furthermore, HURE is the key parameter in areas with high humidity. BCU has the largest difference in sensitivity to different types of buildings, followed by SHCG, especially in HSCW areas. Among the 13 design parameters, ACW and ACR have the least influence.
- The proposed residential PH design zoning is not consistent with traditional Chinese climate region. According to the difference of sensitive parameters, Chengdu with its surrounding areas and Urumqi with its surroundings are divided into two climate zones. Because HERE of Chengdu and its surrounding areas (0.45 ~ 0.95) is much higher than that of other areas in hot summer and cold winter areas (0 ~ 0.4), the optimized passive design can significantly reduce the annual heating load of Urumqi and its surrounding areas, and even replace the air conditioning system of Urumqi with high solar radiation. After optimizing the parameters, the number of buildings meeting the PHS based on the proposed design zoning has increased dramatically. Seven zones are proposed with optimized values for key design parameters. Therefore, the design zoning of PH in China is put forward, which can guide the design of PH as well as enhance the application of PH in China.
- The important challenge of this work is to propose residential PH design zoning. Architects can directly determine the appropriate passive design measures within the scope of zoning without simulation calculation. In addition, these results can be used as a reference for further optimization research, which can guide the design of PH as well as enhance the application of PH in China.
Author Contributions
Conceptualization, Q.D.; data curation, Q.D., Z.R. and X.S.; formal analysis, X.L. and G.Y.; funding acquisition, Q.D. and Z.R.; methodology, Q.D.; resources, Q.D.; software, X.S.; writing—original draft, X.L. and Q.D.; writing—review and editing, Q.D. All authors have read and agreed to the published version of the manuscript.
Funding
This project was funded by the National Key R&D Program of China (Grant No.2018YFD1100702); the Liaoning Education Department (Grant No. LJ2019QL007).
Institutional Review Board Statement
No applicable.
Informed Consent Statement
No applicable.
Data Availability Statement
No applicable.
Acknowledgments
The authors thank the subjects who volunteered for this survey.
Conflicts of Interest
The authors declare no conflict of interest.
Appendix A
Table A1.
Recommended value range for major design parameters in 31 cities.
Table A1.
Recommended value range for major design parameters in 31 cities.
| City | Building Type | WU W/(m2 K) | BCU W/(m2 K) | SHGC | UG W/(m2 K) | HERE | HURE |
|---|---|---|---|---|---|---|---|
| Harbin | Example | 0.1–0.22 | 0.18–0.74 | 0.7–1.0 | 0.1–0.7 | 0.5–0.95 | - |
| C15 | 0.1–0.2 | 1.22–2.0 | 0.6–1.0 | 0.1–0.6 | 0.7–0.95 | - | |
| Changchun | Example | 0.1–0.24 | 0.18–0.98 | 0.7–1.0 | 0.1–0.7 | 0.5–0.95 | - |
| C15 | 0.1–0.2 | 1.22–2.0 | 0.7–1.0 | 0.1–0.7 | 0.65–0.95 | - | |
| Shenyang | Example | 0.1–0.22 | 0.18–0.74 | 0.7–1.0 | 0.1–0.7 | 0.6–0.95 | - |
| C15 | 0.1–0.2 | 1.22–2.0 | 0.6–1.0 | 0.1–0.6 | 0.7–0.95 | - | |
| Hohhot | Example | 0.1–0.2 | 0.18–0.82 | 0.7–1.0 | 0.1–0.7 | 0.6–0.95 | - |
| C15 | 0.1–0.2 | 1.14–2.0 | 0.6–1.0 | 0.1–0.6 | 0.7–0.95 | - | |
| Xining | Example | 0.1–0.24 | 0.18–0.9 | 0.7–1.0 | 0.1–0.7 | 0.5–0.95 | - |
| C15 | 0.1–0.2 | 1.14–2.0 | 0.6–1.0 | 0.1–0.7 | 0.65–0.95 | - | |
| Urumqi | Example | 0.1–0.18 | 0.18–0.66 | 0.7–1.0 | 0.1–0.6 | 0.55–0.95 | - |
| C15 | 0.1–0.18 | 1.38–2.0 | 0.7–1.0 | 0.1–0.5 | 0.75–0.95 | - | |
| Lhasa | Example | 0.1–0.4 | 0.18–2.0 | 0.5–1.0 | 0.1–1.0 | 0.0–0.95 | - |
| C15 | 0.1–0.4 | 0.18–2.0 | 0.4–1.0 | 0.1–1.0 | 0.0–0.95 | - | |
| Beijing | Example | 0.1–0.4 | 0.18–2.0 | 0.4–1.0 | 0.1–1.0 | 0.0–0.95 | - |
| C15 | 0.1–0.24 | 0.18–2.0 | 0.1–0.6 | 0.1–0.8 | 0.55–0.95 | - | |
| Tianjin | Example | 0.1–0.26 | 0.18–2.0 | 0.5–1.0 | 0.1–0.8 | 0.0–0.95 | - |
| C15 | 0.1–0.22 | 0.18–2.0 | 0.1–0.5 | 0.1–0.7 | 0.5–0.95 | - | |
| Shijiazhuang | Example | 0.1–0.24 | 0.18–1.14 | 0.6–1.0 | 0.1–0.8 | 0.0–0.95 | - |
| C15 | 0.1–0.24 | 0.18–2.0 | 0.6–1.0 | 0.1–0.8 | 0.5–0.95 | - | |
| Jinan | Example | 0.1–0.24 | 0.18–2.0 | 0.4–1.0 | 0.1–0.8 | 0.0–0.95 | - |
| C15 | 0.1–0.22 | 0.98–2.0 | 0.1–0.7 | 0.1–0.7 | 0.55–0.95 | - | |
| Zhengzhou | Example | 0.1–0.24 | 0.18–0.98 | 0.6–1.0 | 0.1–0.8 | 0.0–0.95 | - |
| C15 | 0.1–0.24 | 0.18–2.0 | 0.6–1.0 | 0.1–0.8 | 0.55–0.95 | - | |
| Xi’an | Example | 0.1–0.24 | 0.18–1.22 | 0.6–1.0 | 0.1–0.7 | 0.0–0.95 | - |
| C15 | 0.1–0.22 | 1.06–2.0 | 0.1–0.6 | 0.1–0.8 | 0.55–0.95 | - | |
| Taiyuan | Example | 0.1–0.24 | 0.18–0.98 | 0.7–1.0 | 0.1–0.8 | 0.0–0.95 | - |
| C15 | 0.1–0.22 | 0.18–2.0 | 0.6–0.7 | 0.1–0.7 | 0.55–0.95 | - | |
| Lanzhou | Example | 0.1–0.22 | 0.18–0.9 | 0.7–1.0 | 0.1–0.7 | 0.0–0.95 | - |
| C15 | 0.1–0.22 | 0.18–2.0 | 0.6–1.0 | 0.1–0.7 | 0.6–0.95 | - | |
| Yinchuan | Example | 0.1–0.26 | 0.18–0.98 | 0.6–1.0 | 0.1–0.8 | 0.0–0.95 | - |
| C15 | 0.1–0.22 | 0.18–2.0 | 0.6–1.0 | 0.1–0.7 | 0.6–0.95 | - | |
| Shanghai | Example | 0.1–0.22 | 1.06–2.0 | 0.1–0.5 | 0.1–0.8 | 0.0–0.5 | 0.45–0.9 |
| C15 | 0.1–0.24 | 1.14–2.0 | 0.1–0.4 | 0.1–0.8 | 0.0–0.95 | 0.5–0.9 | |
| Nanjing | Example | 0.1–0.18 | 0.9–2.0 | 0.1–0.5 | 0.1–0.6 | 0.35–0.95 | 0.5–0.9 |
| C15 | 0.1–0.22 | 1.3–2.0 | 0.1–0.4 | 0.1–0.7 | 0.6–0.95 | 0.55–0.9 | |
| Hefei | Example | 0.1–0.2 | 0.18–2.0 | 0.1–0.6 | 0.1–0.7 | 0.0–0.95 | 0.5–0.9 |
| C15 | 0.1–0.2 | 0.22–2.0 | 0.1–0.4 | 0.1–0.7 | 0.6–0.95 | 0.6–0.9 | |
| Hangzhou | Example | 0.1–0.2 | 1.22–2.0 | 0.1–0.3 | 0.1–0.7 | 0.0–0.4 | 0.5–0.9 |
| C15 | 0.1–0.2 | 1.3–2.0 | 0.1–0.3 | 0.1–0.7 | 0.55–0.95 | 0.65–0.9 | |
| Nanchang | Example | 0.1–0.2 | 1.3–2.0 | 0.1–0.4 | 0.1–0.6 | 0.0–0.35 | 0.65–0.9 |
| C15 | 0.1–0.18 | 1.62–2.0 | 0.1–0.3 | 0.1–0.5 | 0.3–0.95 | 0.75–0.9 | |
| Wuhan | Example | 0.1–0.2 | 1.3–2.0 | 0.1–0.4 | 0.1–0.6 | 0.0–0.35 | 0.6–0.9 |
| C15 | 0.1–0.16 | 1.46–2.0 | 0.1–0.3 | 0.1–0.7 | 0.0–0.7 | 0.5–0.9 | |
| Changsha | Example | 0.1–0.2 | 1.22–2.0 | 0.1–0.4 | 0.1–0.7 | 0.0–0.4 | 0.5–0.9 |
| C15 | 0.1–0.2 | 1.46–2.0 | 0.1–0.3 | 0.1–0.7 | 0.35–0.55 | 0.7–0.9 | |
| Chongqing | Example | 0.1–0.24 | 1.3–2.0 | 0.1–0.3 | 0.1–0.9 | 0.0–0.35 | 0.6–0.9 |
| C15 | 0.1–0.22 | 1.3–2.0 | 0.1–0.3 | 0.1–0.7 | 0.0–0.95 | 0.65–0.9 | |
| Chengdu | Example | 0.1–0.26 | 0.18–2.0 | 0.1–0.6 | 0.1–0.8 | 0.0–0.95 | 0.5–0.9 |
| C15 | 0.1–0.26 | 1.14–2.0 | 0.1–0.5 | 0.1–1.0 | 0.0–0.95 | 0.65–0.9 | |
| Fuzhou | Example | 0.1–0.22 | 1.14–2.0 | 0.1–0.3 | 0.1–1.0 | - | 0.65–0.9 |
| C15 | 0.1–0.4 | 0.18–2.0 | 0.1–0.3 | 0.1–1.0 | - | 0.6–0.9 | |
| Guangzhou | Example | 0.1–0.2 | 0.18–2.0 | 0.1–0.3 | 0.1–0.8 | - | 0.45–0.9 |
| C15 | 0.1–0.2 | 0.18–2.0 | 0.1–0.3 | 0.1–0.8 | - | 0.55–0.9 | |
| Haikou | Example | 0.1–0.22 | 0.18–1.06 | 0.1–0.3 | 0.1–0.7 | - | 0.7–0.9 |
| C15 | 0.1–0.28 | 0.18–2.0 | 0.1–0.3 | 0.1–1.0 | - | 0.65–0.9 | |
| Nanning | Example | 0.1–0.24 | 0.18–2.0 | 0.1–0.4 | 0.1–0.7 | - | 0.75–0.9 |
| C15 | 0.1–0.24 | 0.18–2.0 | 0.1–0.3 | 0.1–0.8 | - | 0.7–0.9 | |
| Guiyang | Example | 0.1–0.24 | 0.18–1.06 | 0.6–1.0 | 0.1–0.8 | - | - |
| C15 | 0.1–0.26 | 0.18–2.0 | 0.1–0.7 | 0.1–1.0 | - | - | |
| Kunming | Example | 0.1–0.4 | 0.18–2.0 | 0.1–1.0 | 0.1–1.0 | - | - |
| C15 | 0.1–0.4 | 0.18–2.0 | 0.1–1.0 | 0.1–1.0 | - | - |
Appendix B
Table A2.
Recommended values for major design parameters in 31 cities.
Table A2.
Recommended values for major design parameters in 31 cities.
| City | Building Type | WU W/(m2 K) | BCU W/(m2 K) | SHGC | UG W/(m2 K) | HERE | HURE |
|---|---|---|---|---|---|---|---|
| Harbin | Example | 0.1 | 0.18 | 1.0 | 0.1 | 0.95 | - |
| C15 | 0.1 | 2.0 | 1.0 | 0.1 | 0.95 | - | |
| Changchun | Example | 0.1 | 0.18 | 1.0 | 0.1 | 0.95 | - |
| C15 | 0.1 | 2.0 | 1.0 | 0.1 | 0.95 | - | |
| Shenyang | Example | 0.1 | 0.18 | 1.0 | 0.1 | 0.95 | - |
| C15 | 0.1 | 2.0 | 1.0 | 0.1 | 0.95 | - | |
| Hohhot | Example | 0.1 | 0.18 | 1.0 | 0.1 | 0.95 | - |
| C15 | 0.1 | 2.0 | 1.0 | 0.1 | 0.95 | - | |
| Xining | Example | 0.1 | 0.18 | 1.0 | 0.1 | 0.95 | - |
| C15 | 0.1 | 2.0 | 1.0 | 0.1 | 0.95 | - | |
| Urumqi | Example | 0.1 | 0.18 | 1.0 | 0.1 | 0.95 | - |
| C15 | 0.1 | 2.0 | 1.0 | 0.1 | 0.95 | - | |
| Lhasa | Example | 0.4 | 0.18 | 0.6 | 1.0 | 0.0 | - |
| C15 | 0.4 | 2.0 | 0.6 | 1.0 | 0.0 | - | |
| Beijing | Example | 0.4 | 0.18 | 0.6 | 1.0 | 0.8 | - |
| C15 | 0.1 | 2.0 | 0.35 | 0.1 | 0.8 | - | |
| Tianjin | Example | 0.1 | 0.18 | 0.7 | 0.1 | 0.8 | - |
| C15 | 0.14 | 2.0 | 0.1 | 0.1 | 0.8 | - | |
| Shijiazhuang | Example | 0.1 | 0.18 | 0.8 | 0.1 | 0.8 | - |
| C15 | 0.1 | 2.0 | 1.0 | 0.1 | 0.8 | - | |
| Jinan | Example | 0.1 | 0.18 | 0.5 | 0.1 | 0.8 | - |
| C15 | 0.1 | 2.0 | 0.1 | 0.1 | 0.8 | - | |
| Zhengzhou | Example | 0.1 | 0.18 | 0.8 | 0.1 | 0.8 | - |
| C15 | 0.1 | 2.0 | 1.0 | 0.1 | 0.8 | - | |
| Xi’an | Example | 0.1 | 0.18 | 0.8 | 0.1 | 0.8 | - |
| C15 | 0.1 | 2.0 | 0.45 | 0.1 | 0.8 | - | |
| Taiyuan | Example | 0.1 | 0.18 | 1.0 | 0.1 | 0.8 | - |
| C15 | 0.1 | 2.0 | 1.0 | 0.1 | 0.8 | - | |
| Lanzhou | Example | 0.1 | 0.18 | 1.0 | 0.1 | 0.8 | - |
| C15 | 0.1 | 2.0 | 1.0 | 0.1 | 0.8 | - | |
| Yinchuan | Example | 0.1 | 0.18 | 0.8 | 0.1 | 0.8 | - |
| C15 | 0.1 | 2.0 | 1.0 | 0.1 | 0.8 | - | |
| Shanghai | Example | 0.1 | 2.0 | 0.1 | 0.1 | 0.0 | 0.9 |
| C15 | 0.1 | 2.0 | 0.1 | 0.1 | 0.0 | 0.9 | |
| Nanjing | Example | 0.1 | 2.0 | 0.1 | 0.1 | 0.8 | 0.9 |
| C15 | 0.1 | 2.0 | 0.1 | 0.1 | 0.8 | 0.9 | |
| Hefei | Example | 0.1 | 2.0 | 0.3 | 0.1 | 0.0 | 0.9 |
| C15 | 0.1 | 2.0 | 0.1 | 0.1 | 0.8 | 0.9 | |
| Hangzhou | Example | 0.1 | 2.0 | 0.1 | 0.4 | 0.0 | 0.9 |
| C15 | 0.1 | 2.0 | 0.1 | 0.1 | 0.8 | 0.9 | |
| Nanchang | Example | 0.1 | 2.0 | 0.1 | 0.1 | 0.0 | 0.9 |
| C15 | 0.1 | 2.0 | 0.1 | 0.1 | 0.8 | 0.9 | |
| Wuhan | Example | 0.1 | 2.0 | 0.1 | 0.1 | 0.0 | 0.9 |
| C15 | 0.1 | 2.0 | 0.1 | 0.1 | 0.0 | 0.9 | |
| Changsha | Example | 0.1 | 2.0 | 0.1 | 0.1 | 0.0 | 0.9 |
| C15 | 0.1 | 2.0 | 0.1 | 0.1 | 0.4 | 0.9 | |
| Chongqing | Example | 0.1 | 2.0 | 0.1 | 0.5 | 0.0 | 0.9 |
| C15 | 0.1 | 2.0 | 0.1 | 0.1 | 0.0 | 0.9 | |
| Chengdu | Example | 0.12 | 2.0 | 0.35 | 0.3 | 0.0 | 0.9 |
| C15 | 0.1 | 2.0 | 0.3 | 1.0 | 0.0 | 0.9 | |
| Fuzhou | Example | 0.14 | 2.0 | 0.1 | 1.0 | - | 0.9 |
| C15 | 0.4 | 2.0 | 0.1 | 1.0 | - | 0.9 | |
| Guangzhou | Example | 0.14 | 2.0 | 0.1 | 0.5 | - | 0.9 |
| C15 | 0.1 | 2.0 | 0.1 | 0.35 | - | 0.9 | |
| Haikou | Example | 0.14 | 0.1 | 0.1 | 0.7 | - | 0.9 |
| C15 | 0.14 | 2.0 | 0.1 | 1.0 | - | 0.9 | |
| Nanning | Example | 0.14 | 2.0 | 0.1 | 0.1 | - | 0.9 |
| C15 | 0.1 | 2.0 | 0.1 | 0.1 | - | 0.9 | |
| Guiyang | Example | 0.4 | 0.1 | 1.0 | 0.1 | - | - |
| C15 | 0.1 | 2.0 | 0.45 | 1.0 | - | - | |
| Kunming | Example | 0.4 | 2.0 | 1.0 | 1.0 | - | - |
| C15 | 0.4 | 2.0 | 1.0 | 1.0 | - | - |
References
- Liu, D.; Zhao, F.-Y.; Tang, G.-F. Active low-grade energy recovery potential for building energy conservation. Renew. Sustain. Energy Rev. 2010, 14, 2736–2747. [Google Scholar] [CrossRef]
- Anderson, J.E.; Wulfhorst, G.; Lang, W. Energy analysis of the built environment—A review and outlook. Renew. Sustain. Energy Rev. 2015, 44, 149–158. [Google Scholar] [CrossRef]
- Yi, J. China Building Energy Saving Annual Development Research Report 2017; China Construction Industry Press: Beijing, China, 2017. [Google Scholar]
- Pérez-Lombard, L.; Ortiz, J.; Pout, C. A review on buildings energy consumption information. Energy Build. 2008, 40, 394–398. [Google Scholar] [CrossRef]
- Ministry of Housing and Urban-Rural Development. Technical Standards for Nearly Zero Energy Buildings; Ministry of Housing and Urban-Rural Development: Beijing, China, 2019.
- Dalbem, R.; da Cunha, E.G.; Vicente, R.; Figueiredo, A.; Oliveira, R.; da Silva, A.C.S.B. Optimisation of a social housing for south of Brazil: From basic performance standard to passive house concept. Energy 2019, 167, 1278–1296. [Google Scholar] [CrossRef]
- Mead, K.; Brylewsky, R. Passivhaus primer: Introduction. In An Aid to Understanding the Key Principles of the Passivhaus Standard; BRE: Darmstadt, Germany, 2015. [Google Scholar]
- Feist, W. The World’s First Passive House, Darmstadt-Kranichstein, Germany. Passipedia 2015. [Google Scholar] [CrossRef]
- Passive House Institute Certified Passive House. Certification Criteria for Residential Passive House Buildings; Passive House Institute: Christchurch, New Zealand, 2013. [Google Scholar]
- Wei, X. Research on China’s passive ultra low energy building technology system. Constr. Technol. 2015, 23, 15–16. [Google Scholar]
- Dan, D.; Tanasa, C.; Stoian, V.; Brata, S.; Stoian, D.; Gyorgy, T.N.; Florut, S. Passive house design—An efficient solution for residential buildings in Romania. Energy Sustain. Dev. 2016, 32, 99–109. [Google Scholar] [CrossRef]
- Mahdavi, A.; Doppelbauer, E.-M. A performance comparison of passive and low-energy buildings. Energy Build. 2010, 42, 1314–1319. [Google Scholar] [CrossRef]
- Dahlstrøm, O.; Sørnes, K.; Eriksen, S.T.; Hertwich, E.G. Life cycle assessment of a single-family residence built to either conventional- or passive house standard. Energy Build. 2012, 54, 470–479. [Google Scholar] [CrossRef]
- Liang, X.; Wang, Y.; Zhang, Y.; Jiang, J.; Chen, H.; Zhang, X.; Guo, H.; Roskilly, T. Analysis and Optimization on Energy Performance of a Rural House in Northe;rn China Using Passive Retrofitting. Energy Procedia 2017, 105, 3023–3030. [Google Scholar] [CrossRef]
- Sierra-Pérez, J.; Rodríguez-Soria, B.; Boschmonart-Rives, J.; Gabarrell, X. Integrated life cycle assessment and thermodynamic simulation of a public building’s envelope renovation: Conventional vs. Passivhaus proposal. Appl. Energy 2018, 212, 1510–1521. [Google Scholar] [CrossRef]
- Tanasa, C.; Dan, D.; Becchio, C.; Corgnati, S.P.; Stoian, V. Cost-optimal and indoor environmental quality assessment for resi-dential buildings towards EU long-term climate targets. Energy Sustain. Dev. 2020, 59, 49–61. [Google Scholar] [CrossRef]
- Mirela, M.; Vladimir, T.; Cristian, D.; Adrian, B.; Ruxandra, V. Passive house analysis in terms of energy performance. Energy Build. 2017, 144, 74–86. [Google Scholar] [CrossRef]
- Wang, Y.; Du, J.; Kuckelkorn, J.M.; Kirschbaum, A.; Gu, X.; Li, D. Identifying the feasibility of establishing a passive house school in central Europe: An energy performance and carbon emissions monitoring study in Germany. Renew. Sustain. Energy Rev. 2019, 113, 109256. [Google Scholar] [CrossRef]
- Ridley, I.; Clarke, A.R.; Bere, J.; Altamirano, H.; Lewis, S.; Durdev, M.; Farr, A.G. The monitored performance of the first new London dwelling certified to the Passive House standard. Energy Build. 2013, 63, 67–78. [Google Scholar] [CrossRef]
- Leardini, P.; Manfredini, M.; Callau, M. Energy upgrade to Passive House standard for historic public housing in New Zea-land. Energy Build. 2015, 95, 211–218. [Google Scholar] [CrossRef]
- Schnieders, J.; Feist, W.; Rongen, L. Passive Houses for different climate zones. Energy Build. 2015, 105, 71–87. [Google Scholar] [CrossRef]
- Badescu, V.; Rotar, N. Implementation of the German Passivhaus Concept in Southeast Europe: Considerations for Romania. J. Energy Eng. 2012, 138, 146–162. [Google Scholar] [CrossRef]
- Badescu, V.; Rotar, N.; Udrea, I. Considerations concerning the feasibility of the German Passivhaus concept in Southern Hemisphere. Energy Effic. 2015, 8, 919–949. [Google Scholar] [CrossRef]
- Obrecht, T.P.; Premrov, M.; Leskovar, V. Žegarac Influence of the orientation on the optimal glazing size for passive houses in different European climates (for non-cardinal directions). Sol. Energy 2019, 189, 15–25. [Google Scholar] [CrossRef]
- Fokaides, P.A.; Christoforou, E.; Ilic, M.; Papadopoulos, A. Performance of a Passive House under subtropical climatic conditions. Energy Build. 2016, 133, 14–31. [Google Scholar] [CrossRef]
- Badescu, V.; Laaser, N.; Crutescu, R. Warm season cooling requirements for passive buildings in Southeastern Europe (Romania). Energy 2010, 35, 3284–3300. [Google Scholar] [CrossRef]
- Figueiredo, A.; Kämpf, J.; Vicente, R. Passive house optimization for Portugal: Overheating evaluation and energy perfor-mance. Energy Build. 2016, 118, 181–196. [Google Scholar] [CrossRef]
- Chen, S.; Levine, M.D.; Li, H.; Yowargana, P.; Xie, L. Measured air tightness performance of residential buildings in North China and its influence on district space heating energy use. Energy Build. 2012, 51, 157–164. [Google Scholar] [CrossRef]
- Ferrante, A.; Cascella, M. Zero energy balance and zero on-site CO2 emission housing development in the Mediterranean climate. Energy Build. 2011, 43, 2002–2010. [Google Scholar] [CrossRef]
- Tommerup, H.; Rose, J.; Svendsen, S. Energy-efficient houses built according to the energy performance requirements introduced in Denmark in 2006. Energy Build. 2007, 39, 1123–1130. [Google Scholar] [CrossRef]
- Georges, L.; Skreiberg, Ø.; Novakovic, V. On the proper integration of wood stoves in passive houses under cold climates. Energy Build. 2014, 72, 87–95. [Google Scholar] [CrossRef]
- Parker, D.S. Very low energy homes in the United States: Perspectives on performance from measured data. Energy Build. 2009, 41, 512–520. [Google Scholar] [CrossRef]
- Chen, X.; Yang, H.; Wang, Y. Parametric study of passive design strategies for high-rise residential buildings in hot and humid climates: Miscellaneous impact factors. Renew. Sustain. Energy Rev. 2017, 69, 442–460. [Google Scholar] [CrossRef]
- Figueiredo, A.; Figueira, J.; Vicente, R.; Maio, R. Thermal comfort and energy performance: Sensitivity analysis to apply the Passive House concept to the Portuguese climate. Build. Environ. 2016, 103, 276–288. [Google Scholar] [CrossRef]
- China Architecture Press. China Construction Industry Press Special Meteorological Data Set for Thermal Environment Analysis of Buildings in China; China Construction Industry Press: Beijing, China, 2005; ISBN 7112072743. [Google Scholar]
- Ministry of Housing and Urban-Rural Development. Ministry of Housing and Urban-Rural Development Thermal Design Code for Civil Building; Ministry of Housing and Urban-Rural Development: Beijing, China, 2016; p. 128.
- Passive House Institute Criteria for the Passive House. EnerPHit and PHI Low Energy Building Standard; Passive House Institute: Christchurch, New Zealand, 2016; pp. 1–27. [Google Scholar]
- Passive House Institute. Passive Houses in Chinese Climates; Passive House Institute: Christchurch, New Zealand, 2015. [Google Scholar]
- Harkouss, F.; Fardoun, F.; Biwole, P.H. Passive design optimization of low energy buildings in different climates. Energy 2018, 165, 591–613. [Google Scholar] [CrossRef]
- Tushar, Q.; Bhuiyan, M.; Sandanayake, M.; Zhang, G. Optimizing the energy consumption in a residential building at different climate zones: Towards sustainable decision making. J. Clean. Prod. 2019, 233, 634–649. [Google Scholar] [CrossRef]
- Ballarini, I.; Corrado, V. Analysis of the building energy balance to investigate the effect of thermal insulation in summer conditions. Energy Build. 2012, 52, 168–180. [Google Scholar] [CrossRef]
- Fang, Z.; Li, N.; Li, B.; Luo, G.; Huang, Y. The effect of building envelope insulation on cooling energy consumption in summer. Energy Build. 2014, 77, 197–205. [Google Scholar] [CrossRef]
- Ministry of Housing and Urban-Rural Development. Ministry of Housing and Urban-Rural Development Assessment Standard for Green Building; Ministry of Housing and Urban-Rural Development: Beijing, China, 2015.
- Ministry of Housing and Urban-Rural Development. Ministry of Housing and Urban-Rural Development Technical Guidelines for Passive Ultra Low Energy Consumption Green Building; China Construction Industry Press: Beijing, China, 2015.
- Wei, T. A review of sensitivity analysis methods in building energy analysis. Renew. Sustain. Energy Rev. 2013, 20, 411–419. [Google Scholar]
- Ioannou, A.; Itard, L. Energy performance and comfort in residential buildings: Sensitivity for building parameters and occupancy. Energy Build. 2015, 92, 216–233. [Google Scholar] [CrossRef]
- Heiselberg, P.; Brohus, H.; Hesselholt, A.; Rasmussen, H.; Seinre, E.; Thomas, S. Application of sensitivity analysis in design of sustainable buildings. Renew. Energy 2009, 34, 2030–2036. [Google Scholar] [CrossRef]
- Borgonovo, E.; Plischke, E. Sensitivity analysis: A review of recent advances. Eur. J. Oper. Res. 2016, 248, 869–887. [Google Scholar] [CrossRef]
- Breesch, H.; Janssens, A. Performance evaluation of passive cooling in office buildings based on uncertainty and sensitivity analysis. Sol. Energy 2010, 84, 1453–1467. [Google Scholar] [CrossRef]
- Domínguez-Muñoz, F.; Cejudo-López, J.M.; Carrillo-Andrés, A. Uncertainty in peak cooling load calculations. Energy Build. 2010, 42, 1010–1018. [Google Scholar] [CrossRef]
- Hygh, J.S.; DeCarolis, J.F.; Hill, D.B.; Ranjithan, S.R. Multivariate regression as an energy assessment tool in early building design. Build. Environ. 2012, 57, 165–175. [Google Scholar] [CrossRef]
Publisher’s Note: MDPI stays neutral with regard to jurisdictional claims in published maps and institutional affiliations. |
© 2021 by the authors. Licensee MDPI, Basel, Switzerland. This article is an open access article distributed under the terms and conditions of the Creative Commons Attribution (CC BY) license (https://creativecommons.org/licenses/by/4.0/).







