Possibilities for the Development of Building Plots with an Unfavorable Structure in the Context of Spatial Justice: A Case Study of Poland
Abstract
1. Introduction
2. Methods
2.1. Presentation of the Problems of Housing Development in the Context of the Rules for Sustainable Development and Social Justice
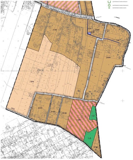
2.2. Assessment of the Spatial Structure of Plots and Possibilities for their Development (Case Study and Discussion)
2.3. Proposals for Remedial Solutions
3. Literature Review
3.1. Sustainable Development
- equal use and enjoyment of cities and human settlements, promoting inclusivity and ensuring that all inhabitants (from present and future generations) experience no discrimination of any kind;
- the promotion of equitable and affordable access to sustainable basic physical and social infrastructure for all;
- the promotion of the equitable growth of regions across urban-rural areas;
- the promotion of integrated urban and territorial planning, including planned urban extensions in order to prevent urban sprawl, reduce mobility challenges and needs, and service delivery costs per capita, and harness density and economies of scale and agglomeration, as appropriate.
3.2. Environmental, Social and Spatial Justice
4. Case Studies: Examples and Discussion
5. Results
5.1. Planning Models Used in European countries
5.2. The Planning Model Used in Poland
5.3. The Proposed Solutions
6. Conclusions
Author Contributions
Conflicts of Interest
References
- Harvey, D. Rebel Cities: From the Right to the City to the Urban Revolution; Verso Books: London, UK; New York, NY, USA, 2012; p. 187. [Google Scholar]
- Fainstein, S.S. Spatial Justice and Planning. In Readings in Planning Theory, 4th ed.; Wiley-Blackwell: Chichester, UK, 2016; pp. 258–272. [Google Scholar]
- Soja, E.W. Seeking Spatial Justice; University of Minnesota Press: Minneapolis, MN, USA, 2010. [Google Scholar]
- Bański, J., Ed.; Polska przestrzeń wiejska: Procesy i perspektywy [Polish rural space: Processes and perspectives]. Studia Obszarów Wiejskich 2004, VI, 249. (In Polish) [Google Scholar]
- Dudzińska, M.; Kocur-Bera, K. Rural development programme in Poland, the Czech Republic and Austria. Geomat. Land Manag. Landsc. 2014, 4, 49–64. [Google Scholar] [CrossRef]
- Wójcik-Leń, J.; Leń, P.; Sobolewska-Mikulska, K. The proposed algorithm for identifying agricultural problem areas for the needs of their reasonable management under land consolidation works. Comput. Electron. Agric. 2018, 152, 333–339. [Google Scholar] [CrossRef]
- Raszkowski, A.; Bartniczak, B. Sustainable Development in Central and Eastern European Countries (CEECs): Challenges and Opportunities. Sustainability 2019, 11, 1180. [Google Scholar] [CrossRef]
- Dragomirescu, H.; Bianco, L. Rozwój zrównoważony z perspektywy systemowej: Podejście kontekstowe [Tackling Sustainability from a Systemic Perspective: A Contextualized Approach]. Probl. Sustain. Dev. 2017, 12, 31–39. (In Polish) [Google Scholar]
- Wolsink, M. “Sustainable City” requires “recognition”—The example of environmental education under pressure from the compact city. Land Use Policy 2016, 52, 174–180. [Google Scholar] [CrossRef]
- Geppert, A. Vae Victis! Spatial Planning in the Rescaled Metropolitan Governance in France. Spat. Res. Plan. 2017, 75, 225–241. [Google Scholar] [CrossRef]
- Jovovic, R.; Draskovic, M.; Delibasic, M.; Jovovic, M. The concept of sustainable regional development—Institutional aspects, policies and prospects. J. Int. Stud. 2017, 10, 255–266. [Google Scholar] [CrossRef] [PubMed]
- Trindade, E.P.; Hinnig, M.P.; da Costa, E.M.; Marques, J.S.; Bastos, R.C.; Yigitcanlar, T. Sustainable development of smart cities: A systematic review of the literature. J. Open Innov. Technol. Market Complex. 2017, 3, 11. [Google Scholar] [CrossRef]
- Sztumski, W. Responsible Development and Durable Development. Probl. Sustain. Dev. 2018, 13, 113–120. [Google Scholar]
- Sobol, A. Gospodarka przestrzenna a lokalny rozwój zrównoważony [Spatial management versus local sustainable development]. Ekonomia Środowisko 2013, 3, 70–78. (In Polish) [Google Scholar]
- The 2030 Agenda for Sustainable Development; United Nations General Assembly: New York, NY, USA, 2015; p. 35.
- The Urban Agenda for the EU. 2016. Available online: https://ec.europa.eu/futurium/en/urban-agenda (accessed on 19 November 2019).
- The State of European Cities 2016—Cities Leading the Way to A Better Future; European Commission: Brussels, Belgium, 2016; p. 216.
- Tutuko, P.; Shen, Z. The effect of land use zonings on housing development: The introduction of cdl approach in the border area of Surabaya and Sidoarjo Regency, Indonesia. Procedia Soc. Behav. Sci. 2016, 227, 107–114. [Google Scholar] [CrossRef]
- Wojtyra, B. Zasoby lokalne w planowaniu przestrzennym centrum wsi—studium przypadku Rokietnicy [Local resources in spatial planning of the village centre—Case study of Rokietnica]. Studia Obszarów Wiejskich 2017, 45, 125–140. [Google Scholar] [CrossRef]
- Dacko, M. The Issue of Environmental Resources Management in the Light of the Model of Tragedy of the Commons—Systemic Approach. Probl. Ekorozwoju Probl. Sustain. Dev. 2015, 10, 21–30. [Google Scholar]
- Natarajan, L. Socio-spatial Learning: A Case Study of Community Knowledge in Participatory Spatial Planning. Prog. Planning 2017, 111, 1–23. [Google Scholar] [CrossRef]
- New Urban Agenda; United Nations: Quito, Ecuado, 2017. Available online: http://habitat3.org/wp-content/uploads/NUA-English.pdf (accessed on 10 November 2019).
- Meng, Q. Fracking equity: A spatial justice analysis prototype. Land Use Policy 2018, 70, 10–15. [Google Scholar] [CrossRef]
- Agyeman, J.; Bullard, R.D.; Evans, B. Exploring the Nexus: Bringing Together Sustainability. Environmental Justice and Equity. Space Polity 2002, 6, 77–90. [Google Scholar] [CrossRef]
- Bryner, G. Environmental Justice. In Oxford Research Encyclopedia of International Studies; Oxford University Press: Oxford, UK, 2017. [Google Scholar]
- Raymond, C.M.; Gottwald, S.; Kuoppa, J.; Kyttae, M. Integrating multiple elements of environmental justice into urban blue space planning using public participation geographic information systems. Landsc. Urban Plan. 2016, 153, 198–208. [Google Scholar] [CrossRef]
- Pearsall, H.; Pierce, J. Urban sustainability and environmental justice: Evaluating the linkages in public planning/policy discourse. Local Environ. 2010, 15, 569–580. [Google Scholar] [CrossRef]
- Fuller, T.K. Mapping Environmental Justice: A Framework for Understanding Sustainability at the Neighborhood Scale in Indianapolis. In Urban Sustainability: Policy and Praxis; Springer: Cham, Switzerland, 2016; pp. 201–215. [Google Scholar]
- Novak, M. Three in One: Essays on Democratic Capitalism. 1976–2000; Younkins, E.W., Ed.; Rowman & Littlefield: Lanham, MD, USA, 2001. [Google Scholar]
- Hollenbach, D. The Common Good and Christian Ethics; Cambridge University Press: Cambridge, UK, 2002. [Google Scholar]
- Stoiński, A. Przeobrażenia idei sprawiedliwości społecznej część I: Sprawiedliwość społeczna jako sprawiedliwość ogólna i rozdzielcza [Transformations of the ides of social justice, Part I: Social justice as general and distributional justice]. Roczniki Filozoficzne 2018, LXVI, 1–5. (In Polish) [Google Scholar] [CrossRef]
- Bret, B.; Gervais-Lambony, P.; Hancock, C.; Landy, F. Justices et Injustices Spatiales; Presses Univeritaires de Paris Ouest: Paris, France, 2010; p. 316. [Google Scholar]
- Gutwald, R.; Leßmann, O.; Masson, T.; Rauschmayer, F. A Capability Approach to Intergenerational Justice? Examining the Potential of Amartya Sen’s Ethics with Regard to Intergenerational Issues. J. Hum. Dev. Capab. 2014, 15, 355–368. [Google Scholar] [CrossRef]
- Rocco, R. Why Discuss Spatial Justice in Urbanism Studies? 2014. Available online: https://repository.tudelft.nl/islandora/object/uuid:2c58a10d-3ebd-437a-a8ce-c6b2fd2f1777/datastream/OBJ/download (accessed on 20 November 2019).
- Wigmans, G. Contingent governance and the enabling city. City 2001, 5, 203–223. [Google Scholar] [CrossRef]
- Papadopoulos, Y. Problems of Democratic Accountability in Network and Multilevel Governance. Eur. Law J. 2007, 13, 469–486. [Google Scholar] [CrossRef]
- Avritzer, L. Living under democracy: Participation and its impact on the living conditions of the poor. J. Lat. Am. Stud. Assoc. 2010, 45, 166–185. [Google Scholar] [CrossRef] [PubMed]
- Un-Human Rights. Good Governance and Human Rights. 2014. Available online: http://www.ohchr.org/en/Issues/Development/GoodGovernance/Pages/GoodGovernanceIndex.aspx (accessed on 10 April 2014).
- Świątek, D. Kształtowanie przestrzeni a planowanie przestrzenne—doświadczenia angielskie. MAZOWSZE Stud. Reg. 2011, nr 6, 173–180. [Google Scholar]
- Brunn, S.D. Geography and Politics in America; Harper and Row: New York, NY, USA, 1974. [Google Scholar]
- Johnson, H.B. Order Upon the Land: The U.S. Rectangular Land Survey System and the Upper Mississippi Country; Oxford University Press: New York, NY, USA, 1976. [Google Scholar]
- White, A. A History of the Rectangular Survey System; U.S. Department of the Interior Bureau of Land Management: Washington, USA, 1983.
- Webster, G.R.; Leib, J. Living on the Grid: The U.S. Rectangular Public Land Survey System and the Engineering of the American Landscape. In Engineering Earth; Brunn, S., Ed.; Springer: Dordrecht, The Netherlands, 2011; pp. 2123–2138. [Google Scholar]
- KPZK. Koncepcja Przestrzennego Zagospodarowania Kraju 2030 [Concept of Spatial Development of the Country 2030]. In Proceedings of the Uchwała Rady Ministrów z Dnia, 13 Grudnia 2011 roku 239/2011 [Resolution of the Council of Ministers, Warsaw, Poland, 13 December 2011]; pp. 160–161. (In Polish).
- Doganowski, R. Konstytucyjne gwarancje ochrony własności nieruchomości [Constitutional guarantees of protection of real estate]. Doradca Rynku Nieruchomości. 2017, 4, 8–9. (In Polish) [Google Scholar]
- Ustawa z dnia 27 marca 2003 r. o planowaniu i zagospodarowaniu przestrzennym (t.j. Dz.U. 2017 poz. 1073 z późn. zm.) [Act of 27 March 2003 on spatial planning and spatial development (i.e., Journal of Laws 2017, item 1073 with further amendments)]. (In Polish). Available online: http://prawo.sejm.gov.pl/isap.nsf/download.xsp/WDU20030800717/U/D20030717Lj.pdf (accessed on 15 December 2019).
- Uchwała Nr XLIV/412/2006 Rady Gminy Michałowice z dnia 13 października 2006 r. w sprawie zatwierdzenia miejscowego planu zagospodarowania przestrzennego Gminy Michałowice obszaru “Komorów”—Część VI obejmująca fragment wsi Komorów [Resolution No. XLIV/412/2006 of the Council of the Michałowice Commune of 13 October 2006 regarding the approval of local spatial development plan of the Michaowice Commune, area “Komorów”—Part VI covering a fragment of the Komorów village] (In Polish). Available online: https://bip.michalowice.pl/prawo-miejscowe/uchwaly-rady/2006/sesja-rady-nr-xliv/uchwala-nr-xliv4122006-rady-gminy-michalowice-z-dnia-13-pazdziernika-2006r,p913805938 (accessed on 12 September 2019).
- National Geoportal. Available online: https://mapy.geoportal.gov.pl/imap/Imgp_2.html?gpmap=gp0 (accessed on 12 September 2019).
- Hełdak, M.; Stacherzak, A.; Kazak, J. Problemy realizacji ustaleń planu miejscowego w zakresie komunikacji na obszarach wiejskich. Infrastruktura i ekologia terenów wiejskich [Problems in the implementation of arrangements of a local plan in the scope of transport networks in rural areas]. Polska Akademia Nauk. 2012, III, 79–88. (In Polish) [Google Scholar]
- Wyrok WSA w Gdańsku z 2010-12-15 sygn. II SA/Gd 604/10 [Court decision of the Voivodeship Administrative Court in Gdańsk of 2010-12-15, Ref. II SA/Gd 604/10] (In Polish). Available online: http://www.orzeczenia-nsa.pl/wyrok/ii-sa-gd-604-10,miejscowy_plan_zagospodarowania_przestrzennego_skargi_na_uchwaly_rady_gminy_w_przedmiocie_art_i,200c072.html (accessed on 12 September 2019).
- Uchwała nr 618/XLVI/2014 Rady Gminy Lesznowola z dnia 22 października 2014 r. w sprawie uchwalenia miejscowego planu zagospodarowania przestrzennego gminy Lesznowola dla części wsi Jazgarzewszczyzna i części wsi Łoziska [Resolution No. 618/XLVI/2014 of the Council of the Lesznowola Commune of 22 October 2014 regarding passing the local spatial development plan of the Lesznowola Commune for a part of the Jazgarzewszczyzna village and part of the Łoziska village]. (In Polish). Available online: https://www.infor.pl/akt-prawny/U73.2015.054.0002479,uchwala-nr-618xlvi2014-rady-gminy-lesznowola-w-sprawie-uchwalenia-miejscowego-planu-zagospodarowania-przestrzennego-gminy-lesznowola-dla-czesci-wsi-jazgarzewszczyzna-iczesci-wsi-loziska.html (accessed on 18 September 2019).
- Siuta, J.; Żukowski, B. Polskie dylematy scalania gruntów i urządzania terenów wiejskich Część 1. Scalanie gruntów [Polish dilemmas of land consolidation and development of rural areas, Part 1: Land consolidation]. Inży. Ekol. Ecol. Eng. 2018, 19, 1–16. (In Polish) [Google Scholar] [CrossRef]
- Izdebski, H.; Nelicki, A.; Zachariasz, I. Zagospodarowanie przestrzenne. Polskie prawo na tle standardów demokratycznego państwa prawa, Sprawne Państwo [Spatial Planning: Polish Law in the Context of Standards of a Democratic, Efficient State]; Ernst & Young: Warsaw, Poland, 2007. (In Polish) [Google Scholar]
- Zakrzewska-Póltorak, A. (Ed.) Planowanie Przestrzenne w Europie [Spatial Planning in Europe]; Wydawnictwo Uniwersytetu Ekonomicznego we Wrocławiu: Wroclaw, Poland, 2016; p. 204. (In Polish) [Google Scholar]
- Jankowski, P. Towards participatory geographic information systems for community-based environmental decision-making. J. Environ. Manag. 2009, 90, 1966–1971. [Google Scholar] [CrossRef]
- Sieber, R. Public participation geographic information systems: A literature review and framework. Ann. Assoc. Am. Geogr. 2006, 96, 491–507. [Google Scholar] [CrossRef]
- Topczewska, T. Zintegrowane planowanie rozwoju i rewitalizacji miast w wybranych krajach “starej” Unii Europejskiej i w Polsce [Integrated planning of development and revitalization of cities in selected countries of the “old” European Union and in Poland]. Człowiek Środowisko 2010, 34, 5–25. (In Polish) [Google Scholar]
- Jędraszko, A.; Bagiński, L. Planowanie Przestrzenne w Niemczech Zarys System [Spatial Planning in Germany: Overview of the System]. In Planowanie i realizacja przedsięwzięć urbanistycznych [Planning and Implementation of Urban Planning Undertakings]; Lorens, P., Martyniuk-Pęczek, J., Eds.; Akapit-DTP: Gdańsk, Poland, 2011; pp. 46–84. (In Polish) [Google Scholar]
- Pomianek, I. Poziom rozwoju spoeczno-gospodarczego obszarów wiejskich województwa warmisko-mazurskiego [Socio-economic development level of rural areas of Warmia and Mazury province]. Acta Sci. Pol. Oecon. 2010, 9, 227–239. [Google Scholar]
- Happach, M.; Komorowska, M. Czy mieszkańcy mogą zastąpić projektanta? [Can residents replace the designer?]. In Partycypacja społeczna w planowaniu przestrzennym—Konferencja Towarzystwa Urbanistów Polskich Oddziału w Warszawie oraz Biura Architektury i Planowania Przestrzennego Urzędu m.st. Warszawy [Social Participation in Spatial Planning—Conference of the Society of Polish Town Planners of the Municipal Office of the Capital City of Warsaw]; Wyd. Towarzystwo Urbanistów Polskich, Oddział w Warszawie: Warsaw, Poland, 2014. (In Polish) [Google Scholar]
- Tennøy, A.; Hansson, L.; Lissandrello, E.; Næss, P. How planners’ use and non-use of expert knowledge affect the goal achievement potential of plans: Experiences from strategic land-use and transport planning processes in three Scandinavian cities. Prog. Plan. 2016, 109, 1–32. [Google Scholar] [CrossRef]
- Projekt Ustawy o Zmianie Ustawy o Planowaniu i Zagospodarowaniu Przestrzennym Oraz Niektórych Innych ustaw; Ministerstwo Infrastruktury i Rozwoju: Warsaw, Poland, 2015. (In Polish)
- Scott, A.; Carter, C.; Reed, M.; Larkham, P.; Adams, D.; Morton, N.; Waters, R.; Collier, D.; Crean, C.; Curzon, R.; et al. Disintegrated development at the rural-urban fringe: Re-connecting spatial planning theory and practice. Prog. Plan. 2013, 83, 1–52. [Google Scholar] [CrossRef]





| Type of Land Use | Area (ha) | Percentage of Total Area of the Study Area (%) |
|---|---|---|
| Size of the study area | 104,013 | 100 |
| Agricultural land | 32,212 | 31 |
| Built-up land | 17,683 | 17 |
| Forest | 36,287 | 35 |
| Other | 17,831 | 17 |
| Width of Plots [m] | Number of Plots (items) | Area of Plots (ha) | Proportion of the Total Number of Plots (%) | Proportion of the Total Area of Plots (%) |
|---|---|---|---|---|
| 0.0–5.0 | 1646 | 119 | 2.2 | 0.4 |
| 5.1–10.0 | 6583 | 862 | 8.7 | 2.7 |
| 10.1–20.0 | 20,111 | 4380 | 26.5 | 13.6 |
| >20.0 | 47,503 | 26,851 | 62.6 | 83.3 |
| Total | 75,843 | 32,212 | 100.0 | 100.0 |
| Width-To-Length Ratios of Plots | Number of Plots (items) | Area of Plots (ha) | Proportion of the Total Number of Plots (%) | Proportion of the Total Area of Plots (%) |
|---|---|---|---|---|
| 1:1–1:2 | 24,573 | 7020 | 32.4 | 21.8 |
| 1:2.1–1:5 | 21,388 | 8521 | 28.2 | 26.4 |
| 1:5.1–1:10 | 11,041 | 5980 | 14.6 | 18.6 |
| >1:10 | 18,841 | 10,691 | 24.8 | 33.2 |
| Total | 75,843 | 32,212 | 100.0 | 100.0 |
© 2020 by the authors. Licensee MDPI, Basel, Switzerland. This article is an open access article distributed under the terms and conditions of the Creative Commons Attribution (CC BY) license (http://creativecommons.org/licenses/by/4.0/).
Share and Cite
Bielska, A.; Wendland, A.; Delnicki, M. Possibilities for the Development of Building Plots with an Unfavorable Structure in the Context of Spatial Justice: A Case Study of Poland. Sustainability 2020, 12, 2472. https://doi.org/10.3390/su12062472
Bielska A, Wendland A, Delnicki M. Possibilities for the Development of Building Plots with an Unfavorable Structure in the Context of Spatial Justice: A Case Study of Poland. Sustainability. 2020; 12(6):2472. https://doi.org/10.3390/su12062472
Chicago/Turabian StyleBielska, Anna, Agnieszka Wendland, and Maciej Delnicki. 2020. "Possibilities for the Development of Building Plots with an Unfavorable Structure in the Context of Spatial Justice: A Case Study of Poland" Sustainability 12, no. 6: 2472. https://doi.org/10.3390/su12062472
APA StyleBielska, A., Wendland, A., & Delnicki, M. (2020). Possibilities for the Development of Building Plots with an Unfavorable Structure in the Context of Spatial Justice: A Case Study of Poland. Sustainability, 12(6), 2472. https://doi.org/10.3390/su12062472

