Abstract
The purpose of this study is to verify the environmental performance of the novel Void Deck Slab (VDS) system developed by the authors. The proposed VDS is a void slab system with enhanced design features that improve the constructability of the system through the elimination of additional works required to connect the void formers with the anchoring devices. The Life Cycle Assessment (LCA) technique was adopted to assess the carbon dioxide emissions of the void slab system with reference to the ordinary reinforced concrete slab. The system boundary of this study ranged from raw materials to pre-operation phase, in accordance with ISO 14044. The total CO2 emissions of the ordinary reinforced concrete slab and the void slab system were 204,433.06 and 151,754.75 kg CO2-eq, respectively, which equated to about 34% less emissions for the void slab system. In the case of the ordinary reinforced concrete slab, moulds accounted for approximately 62% of CO2 emission, followed by concrete (~34%). The main source of CO2 emissions for the void slab system was concrete that accounted for ~50%, followed by moulds and deck plates that accounted for roughly 27% and 19%, respectively. In the case of the void slab system, void formers would enable a lower amount of concrete, as well as the self-weight of the slab. Besides, although the void formers filled a significant volume of the slab, the contribution to CO2 emissions was less than 1%.
1. Introduction
Multi-storeyed buildings are increasingly preferred in both residential and commercial cases for the purpose of the effective utilisation of land, considering that cities have become more urbanised in recent years. According to Seto et al. [], the rate of growth of global urbanisation is twice that of population on average. High-rise buildings help to resolve a number of issues related to urbanisation, apart from maximising the economic efficiency of housing development projects; nevertheless, there are a few disadvantages with respect to evacuation in the event of an emergency, and accessibility to the upper floors in general. In addition, there are environmental issues such as high energy consumption mostly related to fossil fuels [,,], as well as wind funnelling and turbulence around the base of the buildings.
As global warming is a worldwide topic [,,,,,], there are a number of concerns applicable to high-rise buildings. In particular, the architecture, engineering, and construction (AEC) industry has been the main contributor to global warming and mass energy consumption, considering that it accounts for up to 38% of annual CO2 equivalent emissions, ~40% of the annual consumption of natural resources, and ~39% of the annual energy consumption [,,,]. Likewise, the environmental impacts of the AEC industry in South Korea, being similar to those in other countries [,,], have prompted the industry to devise strategies for eco-friendly and sustainable design and construction methods.
Reinforced concrete is an ideal structural material with exceptional compressive and tensile strengths, owing to the combination of concrete and rebars. It exhibits a high use value as it can be shaped into different forms to match the specific architectural requirements, while it resists fire, corrosion, and adverse weather conditions. Furthermore, it is relatively inexpensive compared to steel and other construction materials. However, a number of studies have established that concrete not only consumes a large amount of energy and natural resources, but also emits a considerable amount of CO2 during its manufacturing and transportation. The approaches suggested to reduce the environmental burdens of concrete include: use of high-performance materials, recycled items, and by-products, and replacement with low-carbon materials. Park et al. [] indicated that the strength of concrete, as well as its seasonal attributes, influence CO2 emissions. They observed that concrete works emit more CO2 in winter than other seasons, in South Korea. According to Tae et al. [], high-strength concrete is an effective solution for minimising CO2 emissions, as it helps to reduce the size and quantity of rebars, especially the cross-section of the vertical members. Similarly, Kim et al. [] showed that CO2 emission was reduced by using high-strength concrete in buildings, despite the same floor area.
Apart from the use of high-strength concrete, optimal design and material selection are also considered to be important factors for lowering CO2 emissions. González and Navarro [] indicated that appropriate material selection in the early design stage would decrease CO2 emissions by ~28%. Similarly, Chau et al. [] asserted that a designer could prove to have significant role in reducing CO2 emissions by selecting low-carbon materials. While various strategies to reduce CO2 emissions involve the replacement of materials, there is another approach that considers the entire system of buildings whereby a complete structural system is replaced with a low-energy consuming and less CO2-emitting system. A number of studies have shown that steel structures involve relatively less CO2 emissions than reinforced concrete structures [,,,]. Han and Kim [] examined the total CO2 emissions of different structural systems used in the construction of apartments in South Korea. They concluded that a steel structure is more beneficial in terms of CO2 emissions, compared to a conventional reinforced concrete structure. Nadoushani and Akbarnezhad [] identified three main considerations for the comprehensive assessment of the environmental impact of a building: embodied carbon for selected materials, operating carbon during the operation and maintenance phase, and choosing the best structural materials.
The void slab system (Figure 1) is a new development that enhances the structural performance of a slab through reduced weight and increased stiffness [,,]. It is a method to improve the strength of a slab in supporting a load, through the effective utilisation of its moment of inertia. In addition, the method enables the reduction of the slab weight by using lightweight void formers in its middle section, where the structural performance is less important compared to other portions in the slab. It is also recognised that the void slab system would be able to reduce the environmental impacts of concrete through reduced CO2 emissions and energy consumption. However, research on environmental impacts of the void slab system is relatively scant compared to other topics such as structural performance (flexural and shear), optimal void ratio, and shapes of void formers [,,,,].
Figure 1.
Conceptual diagram of the void slab system.
The previous studies employed additional steel materials or devices to anchor the void formers securely in the slabs [,,,,]; however, as the method of installation of void formers was slightly complicated, the accuracy and speed of installation strongly depended on the skill of the construction workers. Furthermore, Cho and Na [] indicated that the utilisation of steel materials for anchoring the void formers to the lower and upper parts of the main reinforcement would cause more environmental burdens (~28% more CO2 emissions) compared to ordinary reinforced concrete slabs.
This research proposes a Void Deck Slab (VDS) system, a newly developed void slab system that eliminates additionally introduced steel materials for the prevention of buoyancy, and incorporates a newly developed device for anchoring the void formers to the reinforcement. As shown in Figure 2, the VDS is so devised as to avoid the use of steel materials for anchoring the void formers, thereby improving the precision of installation. Moreover, the VDS helps to simplify the construction procedures, so as to shorten the construction time and to secure economic efficiency. Figure 2 depicts the cross-sectional and schematic views of a VDS that is composed of T-shaped steel deck plates, lightweight void formers made of expanded polystyrene (EPS), and anchoring devices. It is evident from the cross-sectional view that the lightweight void formers are placed between the ribs of the T-shaped steel deck plates. The materials used for anchoring the void formers to the deck plates are also made of EPS, instead of steel. Moreover, the method of installation is so simple that the anchoring devices are just inserted into the slots, and fixed firmly by a 90° rotation, and even a novice worker can install and fix the void formers with a high degree of precision and improved workability (see Figure 2d).

Figure 2.
Illustrations of the void deck slab (VDS) (a) Schematic view of the VDS; (b) Void former and anchoring device; (c) Cross-sectional view of VDS; (d) Anchoring mechanism.
The additional steel materials or devices employed in the void slab systems discussed in the previous section are the main sources of carbon dioxide emissions []. In this regard, it is expected that VDS will produce less carbon dioxide, since both the anchoring materials and the void formers are made up of a common material other than steel. Based on this assumption, the purpose of this research is to investigate the environmental performance of VDS, which is considered to have lower environmental impacts compared to ordinary reinforced concrete slabs. In general, the life cycle assessment (LCA) technique is adopted to quantify and evaluate the environmental performance during the whole lifetime of a building, from raw materials to demolition [,,,,]. In contrast, the LCA technique adopted in this research was focused on the evaluation of the environmental impacts of the ordinary reinforced concrete slabs and the void slab system on an exclusive basis.
2. Research Method
2.1. Lifecycle CO2 Assessment
The purpose of this study was to compare the CO2 emissions of two different slab systems, namely, the ordinary reinforced concrete slabs and the void slab system, in a high-rise commercial-cum-residential building located in Seoul, South Korea. For this purpose, the widely adopted LCA technique (as described in the previous section) was applied to our research for the assessment of the environmental impacts of the selected slabs. The LCA deals with the use of energy and CO2 emissions occurring in all stages of the life cycle of a building. The life cycle, normally includes the following phases: (1) raw material; (2) transportation; (3) manufacturing; (4) construction; (5) operation and maintenance; and (6) demolition. Table 1 shows the descriptions of the phases to be considered in the evaluation of a building by LCA.
Table 1.
Process and description of each phase in the LCA.
In the evaluation of CO2 emissions, it is necessary to establish a system boundary for the life cycle assessment of the studied model. The system boundary envisaged in this study was from raw material to the pre-operation stage of the reinforced concrete slab and void slab systems (Figure 3) based on ISO 14044 [] and ISO 21930 []. The production of both slab systems consisted of the stages: raw material, transportation, and manufacturing. Equation (1) was used for the calculation of the CO2 emissions of each material of the two slab systems.
Figure 3.
System boundary of life cycle assessment.
The CO2 emissions during the production stage indicate the occurrence of CO2 from the major components used in the slab system. In this study, the major components of the ordinary reinforced concrete slab system were ready-mixed concrete, reinforcing bars, and moulds. Likewise, the major components of the void slab system were void formers, anchoring steel materials, and deck plates, as well as the ordinary reinforced concrete slab components. The environmental impact information of the construction materials applicable to this study was collected from the National Life Cycle Inventory Database (KLCI DB), as shown in Table 2 []. In the case of the construction materials not listed in KLCI DB, a foreign life cycle inventory database was applied [].
Table 2.
Life cycle inventory database of the major materials in this research.
The CO2 emissions of the transportation stage refer to CO2 emissions during transportation of the materials to the manufacturing plants, which were calculated by using Equation (2). Here, M represents the materials used for each slab, LT is the transported load (tons), and the CO2 emission factor T is the CO2 emitted due to the consumption of energy by the transportation method.
The CO2 emissions from the construction stage were computed as the sum of petrol, diesel, and electricity consumed by the construction machinery and equipment, transportation equipment, and other facilities used at the construction site. In this study, the amount of energy consumed in the construction stage was computed by applying the equation of the average energy consumption according to the total floor area:
2.2. Overview of the Targeted Building
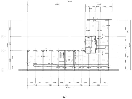
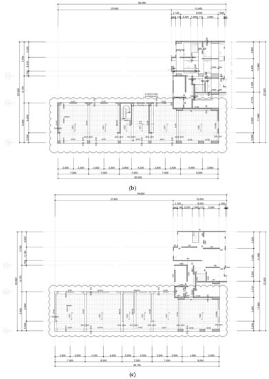
The studied building was a high-rise commercial-cum-residential complex building located in Seoul, South Korea. During the design development stage, value-for-money analysis was applied, in order to optimise the performance of the building for less cost and optimal materials. In this stage, the void slab system was suggested as an alternative system to reduce both the construction cost and the amount of construction materials. Moreover, applying the void slab system would enable the bearing walls to resist loads of the structure to be removed (see Figure 4). By replacing the ordinary reinforced concrete slab system with the void slab system, the span between the columns was extended to 9 m in length. Using the “value for money” analysis and structural design processes, the void slab system was accepted as a replacement for the ordinary reinforced concrete, because both structural requirements and economic aspects were satisfied.

Figure 4.
Structural design of floors (a) Structural design of the first floor; (b) Structural design of the slab on the second floor; (c) Structural design of the slab on the third floor.
The structural system was designed in accordance with the Korean Building Code [], while the ACI 318-05 Building Code Requirement for Structural Concrete and Commentary [] and ASCE/SEI 7-05 Minimum Design Loads for Buildings and Other Structures [] were also referenced. The materials applied to both slabs were ready-mixed concrete with 25 MPa compressive strength and reinforcing bars with 400 MPa tensile strength.
2.3. Analysis of CO2 Emissions
The materials used for the ordinary reinforced concrete slab system were ready-mixed concrete, rebars, and waterproof-coated plywood moulds. In the case of the void slab system, expanded polystyrene void formers, steel anchoring materials, and deck plates were applied, in addition to the materials used in the ordinary slab system. The deck plates used in the void slab system served as a replacement for the moulds for the formation and curing of concrete. As a result of replacing the ordinary reinforced concrete slab with the void slab, the quantities of steel materials, including rebars and moulds were decreased by ~7% and ~211%, respectively (see Table 3).
Table 3.
Comparison of CO2 emissions between the ordinary slab and the void slab.
On the other hand, the quantity of ready-mixed concrete used for the ordinary slab was 166.73 m3, which was 12.71 m3 less than that of the void slab system (see Table 4 and Table 5). In the case of the void slab system, the thickness of the slab was 300 mm, which was twice the ordinary reinforced concrete slab (150 mm). Despite the 100% increase in thickness (two times), the total amount of ready-mixed concrete in the void slab system was increased only by ~7%. Since the concrete slab was filled with the lightweight void formers in the void slab, the increase in the ratio of concrete for the void slab was small.
Table 4.
CO2 emissions by input materials of the ordinary reinforced concrete slab system.
Table 5.
CO2 emissions by input materials of the void slab system.
Moreover, previous studies [,,,] showed that the void formers should be firmly installed and fixed to the lower reinforcement by using anchoring devices. These additional materials would increase the amount of construction materials. However, the anchoring materials adopted in this study were designed to be integrated with the void formers, and accordingly, both were manufactured by using the same materials. In addition, the anchoring mechanism involved inserting the fixers in the holes penetrating the void formers, and turning them by 90°. In this manner, they would be installed between the ribs of the deck plates (see Figure 2). Thus, the anchoring method for the void formers in this study would significantly lower the quantity of the reinforcing bars and the steel materials.
The CO2 emissions of the ordinary reinforced concrete slab and the void slab systems are depicted in Table 3 and Table 4. The total CO2 emissions of the ordinary reinforced concrete slab system were observed to be 204,433.06 kg CO2-eq (see Figure 5). The moulds for concrete curing represented the largest source of CO2 emissions that accounted for 62.9%, followed by ready-mixed concrete (34.3%), and rebars and steel materials that accounted for the lowest proportion of CO2 emissions (2.8%). The emitted CO2 from transportation accounted for less than 1%, which was negligibly too low to be considered for an assessment of its impact. Besides, the CO2 emissions from construction stage were 4040.38 kg CO2-eq, which were calculated based on the consumption of diesel, petrol, and electricity.
Figure 5.
CO2 emissions of the materials (Unit: kg CO2-eq).
The CO2 emissions of the void slab system were also computed, and the total emissions were observed to be 151,754.75 kg CO2-eq. The greatest source of CO2 for the void slab system was ready-mixed concrete, which accounted for ~49.7% (see Figure 6). Moulds followed the ready-mixed concrete; the CO2 emissions were 75,381.60 kg CO2-eq, accounting for ~27.2% of the total emissions. The use of deck plates constituted ~19.4%, as shown in Figure 7. The emitted CO2 from transportation was less than 1%, similar to the ordinary slab data.
Figure 6.
Percentage of CO2 emissions for the ordinary reinforced concrete slab system.
Figure 7.
Percentage of CO2 emissions for the void slab.
Comparing the CO2 emissions of the ordinary reinforced concrete slab system with the void slab system, the total amount of CO2 emitted from the void slab system was ~33.9% less than that of the ordinary reinforced concrete slab system (see Figure 7). In the void slab system, the use of ready-mixed concrete increased by 7.08%. When the quantity of the ready-mixed concrete in the void slab system was compared according to building member (i.e., slab, beams, and girders), the concrete used in the slab increased by ~34%, but the concrete in the beams and girders decreased by 33.23%. Since the application of the void slab system would reduce the self-weight of the slab, the number of beams and girders were reduced, which resulted in a reduction of total CO2 emissions.
In this study, waterproof-coated plywood moulds were the most significant CO2 emission source, which were used to form and cure the concrete for the ordinary reinforced concrete slab system, and the ready-mixed concrete for the void slab system. As seen in Table 4 and Table 5, the amount of moulds used in the void slab system decreased by 211.72%, and reinforcing bars decreased by 45.12%. Additionally, deck plates were one of the main components for the void slab system, which served as moulds for the slab, and as anchoring devices for the void formers. Although the emission of CO2 from deck plates accounted for ~28% of total emissions of the void slab system, the amount of CO2 was 29,576.34 kg CO2-eq. Moreover, the void formers had a significant role in reducing the self-weight of the slab, thereby enabling the expansion of the span between columns. Despite the fact that the void formers played a crucial role in the void slab system, the occurrence of CO2 was less than 1%, the impacts of which would be negligible (see Figure 8).
Figure 8.
Comparison of CO2 emissions by members (Unit: kg CO2-eq).
3. Discussion and Limitations
In this study, the CO2 emissions of an ordinary reinforced concrete slab system and a void slab system were evaluated and compared, for the lifecycle ranging from the raw materials to pre-operation stage. There are several limitations to mention prior to concluding this study.
While a number of studies maintain that concrete is one of the main sources that emits a large volume of CO2 in the construction of high-rise buildings, the computed results of this study showed that the moulds used to form and cure the concrete slabs, beams, and girders accounted for the highest volume of CO2 emissions in the ordinary reinforced concrete slab system. In the case of the void slab system, concrete was the largest source of CO2 emissions, as it accounted for ~48% of the total CO2 emissions, which was similar to other studies. However, the assessment of CO2 emissions in this study only dealt with the slab system, rather than the entire building; hence, the results for the ordinary concrete slab system were different from those of other studies. In order to enhance the accuracy of the results, further research on the evaluation of CO2 in the entire building is required. The operation, maintenance, and demolition phases should be considered, along with the evaluation of the entire building, so as to assess the environmental friendliness and sustainability of the void slab system.
In this research, the void slab system was applied only to the first three floors, which were designated as commercial areas in the commercial-cum-residential building. Based on the results of this research, the void slab system would reduce the number of beams, and girders and would enable the residents in the building to design and utilise their own spaces in a more flexible manner. Moreover, because of the lowering of the height of each floor caused by the removal of beams and girders, it is expected that a significant amount of construction materials and CO2 emissions would be reduced in high-rise buildings. Moreover, the decrease in height would lead to a reduced basement floor height, which would in turn contribute to the reduction in CO2 emissions through a reduced deployment of construction equipment for excavation works.
The concrete applied in both slab systems of this research was of the type most commonly utilised, which had 25 MPa compressive strength. According to Tae et al. [], the application of high-strength concrete would contribute to a reduction in concrete and reinforcing bars. Moreover, high-strength concrete would help to extend the lifespan of the building, as well as to reduce the cross-section of the vertical members [,,,]. Along with the utilisation of high-strength concrete, the concrete mix design would have a significant role in decreasing CO2 emissions from concrete, using by-products such as blast-furnace slag or fly ash []. If ordinary solid reinforced concrete slabs in high-rise buildings using normal-strength concrete were replaced with the void slab system by using high-strength concrete and by-products, then a considerable reduction in CO2 emissions would be attained, according to the results of this study.
The results of the evaluation of this study indicated that waterproof-coated plywood moulds were the main source of CO2 emissions in the ordinary reinforced concrete slab system. The processes of manufacturing plywood not only consume considerable amounts of resources and energy, but also emit a large volume of CO2. If moulds for forming and curing the concrete were manufactured using other materials, then a significant reduction in CO2 emissions would be obtained during the concrete works. Similarly, the CO2 emissions from the void formers in the void slab were insignificant, and accounted for less than 1% of total emissions. However, using fewer petrochemical products and replacement of recycled materials are earnestly considered in recent trends. If the void formers were manufactured by recycled plastic components, then the environmental friendliness of the void slab system would be enhanced, even though the CO2 emissions are small.
4. Conclusions
The purpose of this study was to assess and compare the CO2 emissions of different slab systems in a high-rise commercial-cum-residential building. The system boundary of this study ranged from raw materials to pre-operation, in accordance with ISO 14044.
The total CO2 emissions of the ordinary reinforced concrete slab and the void slab systems were 204,433.06 and 151,754.75 kg CO2-eq, respectively. The void slab system emitted ~34% less CO2 than the ordinary reinforced concrete slab system. In the case of the ordinary reinforced concrete slab system, moulds accounted for ~62% of CO2 emissions, followed by concrete (~34%).
The main source of CO2 emissions for the void slab system was concrete that accounted for ~50%, while moulds and deck plates accounted for ~27% and ~19%, respectively. In the case of the void slab system, void formers would lower the amount of concrete, as well as the self-weight of the slab. Although the void formers filled a significant volume of the slab, they accounted for less than 1% of CO2 emissions. Thus, the void slab system would reduce the weight of the slab as well as enhance the environmental friendliness of the concrete structures.
Author Contributions
I.P. conducted the design of two structural systems of the studied building. S.N. carried out the assessment of carbon dioxide emissions of both systems. S.Y. designed the study and carried out the structural design of this study. All authors contributed to the analysis and conclusion of this study.
Funding
This work was supported by the National Research Foundation of Korea (NRF) grant funded by the Korea government Ministry of Education. (No. NRF-2017R1D1A1B03033452).
Conflicts of Interest
The authors declare no conflict of interest.
References
- Seto, K.C.; Güneralp, B.; Hutyra, L.R. Global forecasts of urban expansion to 2030 and direct impacts on biodiversity and carbon pools. Proc. Natl. Acad. Sci. USA 2012, 109, 16083–16088. [Google Scholar] [CrossRef] [PubMed]
- Güneralp, B.; Zhou, Y.; Ürge-Vorsatz, D.; Gupta, M.; Yu, S.; Patel, P.L.; Fragkias, M.; Li, X.; Seto, K.C. Global scenarios of urban density and its impacts on building energy use through 2050. Proc. Natl. Acad. Sci. USA 2017, 114, 8945–8950. [Google Scholar] [CrossRef] [PubMed]
- Cuéllar-Franca, R.M.; Azapagic, A. Environmental impacts of the UK residential sector: Life cycle assessment of houses. Build. Environ. 2012, 54, 86–99. [Google Scholar] [CrossRef]
- Park, J.; Tae, S.; Kim, T. Life cycle CO2 assessment of concrete by compressive strength on construction site in Korea. Renew. Sustain. Energy Rev. 2012, 16, 2940–2946. [Google Scholar] [CrossRef]
- Cho, S.H.; Chae, C.-U. The comparative study on the environmental impact assessment of construction material through the application of carbon reducing element-focused on global warming potential of concrete products. Int. J. Korea Inst. Ecol. Archit. Environ. 2015, 33, 149–156. [Google Scholar]
- González, M.J.; Navarro, J.G. Assessment of the decrease of CO2 emissions in the construction field through the selection of materials: Practical case study of three houses of low environmental impact. Build. Environ. 2006, 41, 902–909. [Google Scholar] [CrossRef]
- Climate Change 2007: Synthesis Report. Available online: https://www.ipcc.ch/site/assets/uploads/2018/02/ar4_syr_full_report.pdf (accessed on 19 December 2018).
- United Nations (UN). Kyoto Protocol to the United Nations Framework Convention on Climate Change; United Nations: Kyoto, Japan, 1997. [Google Scholar]
- Kumar, V.; Hewage, K.; Sadiq, R. Life cycle assessment of residential buildings: A case study in Canada. Int. J. Energy Environ. Eng. 2015, 9, 1017–1025. [Google Scholar]
- Van Ooteghem, K.; Xu, L. The life-cycle assessment of a single-storey retail building in Canada. Build. Environ. 2012, 49, 212–226. [Google Scholar] [CrossRef]
- Asif, M.; Muneer, T.; Kelley, R. Life cycle assessment: A case study of a dwelling home in Scotland. Build. Environ. 2007, 42, 1391–1394. [Google Scholar] [CrossRef]
- Baek, C.; Tae, S.; Kim, R.; Shin, S. Life cycle CO2 assessment by block type changes of apartment housing. Sustainability 2016, 8, 752. [Google Scholar] [CrossRef]
- Tae, S.; Baek, C.; Shin, S. Life cycle CO2 evaluation on reinforced concrete structures with high-strength concrete. Environ. Impact Assess. Rev. 2011, 31, 253–260. [Google Scholar] [CrossRef]
- Kim, T.H.; Chae, C.U.; Kim, G.H.; Jang, H.J. Analysis of CO2 emissions characteristics of concrete used at construction sites. Sustainability 2016, 8, 348. [Google Scholar] [CrossRef]
- Chau, C.K.; Yik, F.W.; Hui, W.K.; Liu, H.C.; Yu, H.K. Environmental impacts of building materials and building services components for commercial buildings in Hong Kong. J. Clean. Prod. 2007, 15, 1840–1851. [Google Scholar] [CrossRef]
- Han, Y.-S.; Kim, S.-D. A comparative study on CO2 amount of construction-material in structural design. J. Archit. Inst. Korea Plan. Des. 2005, 25, 203–206. [Google Scholar]
- Nadoushani, Z.S.M.; Hammand, A.W.; Akbarnezhad, A. A Framework for Optimizing Lap Splice Positions within Concrete Elements to Minimize Cutting Waste of Steel Bars. In Proceedings of the 33rd International Symposium on Automation and Robotics in Construction and Mining (ISARC 2016), Auburn, AL, USA, 18–21 July 2016; Vilnius Gediminas Technical University, Department of Construction Economics & Property: Vilnius, Lithuania, 2016. [Google Scholar]
- Cole, R.J. Energy and greenhouse gas emissions associated with the construction of alternative structural systems. Build. Environ. 1999, 34, 335–348. [Google Scholar] [CrossRef]
- Chung, J.H.; Jung, H.S.; Bae, B.I.; Choi, C.S.; Choi, H.K. Two-Way Flexural Behavior of Donut-Type Voided Slabs. Int. J. Concr. Struct. Mater. 2018, 12, 26. [Google Scholar] [CrossRef]
- Valivonis, J.; Popov, V.; Jonaitis, B.; Daugevičius, M. The analysis of concreting process impacts on the behaviour of residual liners of cast-in-situ voided slabs. Arch. Civ. Mech. Eng. 2015, 15, 997–1006. [Google Scholar] [CrossRef]
- Valivonis, J.; Skuturna, T.; Daugevičius, M.; Šneideris, A. Punching shear strength of reinforced concrete slabs with plastic void formers. Constr. Build. Mater. 2017, 145, 518–527. [Google Scholar] [CrossRef]
- Aldejohann, M.; Schnellenbach-Held, M. Investigations on the shear capacity of biaxial hollow slabs-test results and evaluation. Darmst. Concr. 2003, 18, 532–545. [Google Scholar]
- Hwang, H.B.; Kim, S.W.; Hwang, H.S.; Lee, K.J.; Lee, J.Y. Structural performance evaluation of hollow reinforced concrete half slabs. In Proceedings of the Korea Concrete Institute Conference; Korea Concrete Institute: Seoul, Korea, 2008. [Google Scholar]
- Ibrahim, I.S.; Elliott, K.S.; Abdullah, R.; Kueh, A.B.; Sarbini, N.N. Experimental study on the shear behaviour of precast concrete hollow core slabs with concrete topping. Eng. Struct. 2016, 125, 80–90. [Google Scholar] [CrossRef]
- Kang, J.; Park, S.; Kim, G. Application of hollow tube system to concrete slab for improvement of impact sound insulation. Proc. Archit. Instit. Korea Struct. Eng. 2008, 24, 75–82. [Google Scholar]
- Schnellenbach-Held, M.; Pfeffer, K. Punching behavior of biaxial hollow slabs. Cem. Concr. Compos. 2002, 24, 551–556. [Google Scholar] [CrossRef]
- Cho, S.; Na, S. Evaluation of the Flexural Performance and CO2 Emissions of the Voided Slab. Adv. Mater. Sci. Eng. 2018, 2018. [Google Scholar] [CrossRef]
- Cabeza, L.F.; Rincón, L.; Vilariño, V.; Pérez, G.; Castell, A. Life cycle assessment (LCA) and life cycel energy analysis (LCEA) of buildings and the building sector: A review. Renew. Sustain. Energy Rev. 2014, 29, 394–416. [Google Scholar] [CrossRef]
- Asdrubali, F.; Baldassarri, C.; Fthenakis, V. Life cycle analysis in the construction sector: Guiding the optimization of conventional Italian buildings. Energy Build. 2013, 64, 73–89. [Google Scholar] [CrossRef]
- Basbagill, J.; Flager, F.; Lepech, M.; Fischer, M. Application of life-cycle assessment to early stage building design for reduced embodied environmental impacts. Build. Environ. 2013, 60, 81–92. [Google Scholar] [CrossRef]
- Zabalza Bribián, I.; Usón, A.A.; Scarpellini, S. Life cycle assessment in buildings: State-of-the-art and simplified LCA methodology as a complement for building certification. Build. Environ. 2009, 44, 2510–2520. [Google Scholar] [CrossRef]
- Anand, C.K.; Amor, B. Recent developments, future challenges and new research directions in LCA of buildings: A critical review. Renew. Sustain. Energy Rev. 2017, 67, 408–416. [Google Scholar] [CrossRef]
- International Standard Organization. ISO:14040: Environmental Management Life Cycle Assessment Principles and Framework; ISO: Geneva, Switzeland, 2006. [Google Scholar]
- International Standard Organization. ISO:21930: Environmental Declaration of Building Product; ISO: Geneva, Switzeland, 2007. [Google Scholar]
- Korea Environmental Industry. Korea LCI DB Information Network. 2017. Available online: http://www.epd.or.kr/en/lci/lci_intro.asp (accessed on 21 December 2017).
- Ecoinvent. Ecoinvent Version 3.01 Database. 2013. Available online: https://ecoquery.ecoinvent.org/ (accessed on 13 October 2018).
- Korea Institute of Concrete. Structural Concrete Design Code and Commentary; Korea Institute of Concrete: Seoul, Korea, 2012. [Google Scholar]
- American Institue of Concrete. Building Code Requirements for Structural Concrete (ACI 319-05) and commentary (ACI 318R-05); American Institue of Concrete: Farmington Hills, MI, USA, 2008. [Google Scholar]
- American Society of Civil Engineering. Minimum Design Loads for Buildings and Other Structures (7-05); American Society of Civil Engineering: Reston, VA, USA, 2006. [Google Scholar]
- Tae, S.; Shin, S.; Woo, J.; Roh, S. The development of apartment house life cycle CO2 simple assessment system using standard apartment houses of South Korea. Renew. Sustain. Energy Rev. 2011, 15, 1454–1467. [Google Scholar] [CrossRef]
- Kim, T.; Tae, S. A study on the development of an evaluation system of CO2 emission in the production of concrete. J. Korea Concr. Inst. 2010, 22, 787–796. [Google Scholar] [CrossRef]
© 2018 by the authors. Licensee MDPI, Basel, Switzerland. This article is an open access article distributed under the terms and conditions of the Creative Commons Attribution (CC BY) license (http://creativecommons.org/licenses/by/4.0/).