Exploring Students’ Emotional Well-Being in the Ideal University Hostel Using the Qualitative Repertory Grid Technique
Abstract
:1. Introduction
2. Methods
2.1. Repertory Grid Technique
2.2. Research Design
2.3. Sampling
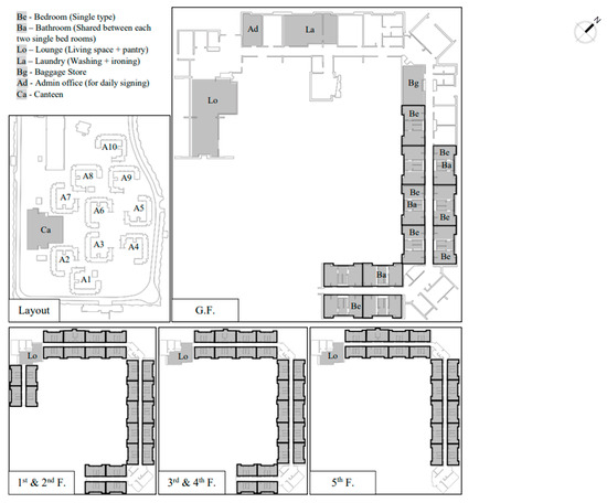
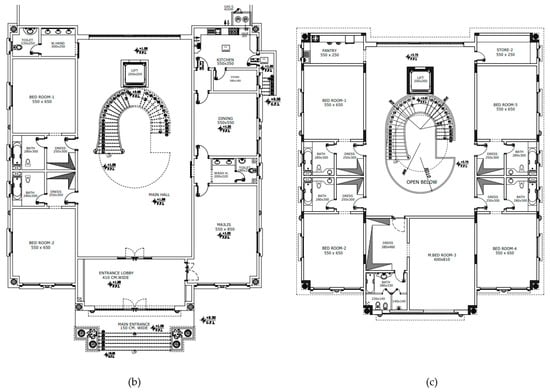
2.4. Procedure
- 1.
- When comparing the three places, how do you describe your living experience in each?
- 2.
- When comparing the three places, where did you emotionally feel the best, and why?
- 3.
- What are the design-related aspects of these spaces that you feel influenced you positively?
- 4.
- What are the design-related aspects of these spaces that you feel influenced you negatively?
- 5.
- If you imagine an ideal place for university students, what would it be like?
2.5. Data Processing and Analysis
3. Results
3.1. Students’ Perceptions of Their Living Experiences
“In Maqam 4, the place was calmer. I was sleeping better”.
“… but the only bad thing [sic] is that it has no sound insulation. Especially at weekends, you hear people sitting outside, someone walking in the corridor, or girls talking in adjacent rooms. This is its only defect”.
“The first thing is that our home is calm; so, the situation was suitable for me. In Maqam 4, we did not hear outside noise. It was calm. In the New Campus hostel, the walls are thin and so you can hear everything. The sound is very annoying, especially at night when we want to sleep. I preferred studying in the library than in my room”.
“The only negative about the NC hostel is that it is noisy. There is no insulation to block the noise from outside. It was very annoying. My room was in building 1, on the side of the emergency exit. So whenever someone opened or closed the door to this exit, I would wake up from my sleep. I am an engineering student, and our classes start at eight o’clock in the morning. So, it was very annoying … I hear you and your noise; how can I focus on my study?…Not all my classes are in person, and I have several online courses that are university requirements. With the noise outside and the teacher talking, I cannot concentrate”.
“In the NC hostel, we are already within the university campus. If I want something, I can go back to the university to get it because it is close to me”.
“The only bad thing [sic] about the Maqam 4 hostel is that it is far from my classes, whereas the NC is close to the canteen and my classes. The buildings are very close to it, and so are the labs”.
“Maqam 4 is very calm, to the extent that you feel lonely, really alone, while you don’t feel this in the NC hostel”.
“But as a décor for the place, I felt, ‘no.’ Emotionally, Maqam 4 was hurting me a little. I felt that the place was closing in on me. The colors were green and purple. It was not helpful. It was nice in the NC building. I felt that the colors were lighter and exhilarating”.
“The only problem in Maqam 4 was that I felt the place was a little depressing because of the colors. The place is brown, and a bit scary”.
3.2. Students’ Perceptions of Their Emotional Well-Being
3.3. Students’ Perceptions of an Ideal University Hostel
4. Discussion
5. Conclusions
Author Contributions
Funding
Institutional Review Board Statement
Informed Consent Statement
Data Availability Statement
Acknowledgments
Conflicts of Interest
Appendix A






Appendix B


References
- World Health Organization. Mental Health: Strengthening Our Response; World Health Organization: Geneva, Switzerland, 2018; Available online: https://www.who.int/news-room/fact-sheets/detail/mental-health-strengthening-our-response (accessed on 25 August 2021).
- Galderisi, S.; Heinz, A.; Kastrup, M.; Beezhold, J.; Sartorius, N. Toward a new definition of mental health. World Psychiatry 2015, 14, 231–233. [Google Scholar] [CrossRef] [PubMed]
- Healthcare, P. Differences between Mental Health & Emotional Health; PFBH Assessment Center: Erie, PA, USA, 2019; Available online: https://www.pyramidhealthcarepa.com/what-is-the-difference-between-mental-health-emotional-health/ (accessed on 25 August 2021).
- Park, C.L.; Kubzansky, L.D.; Chafouleas, S.M.; Davidson, R.J.; Keltner, D.; Parsafar, P.; Conwell, Y.; Martin, M.Y.; Hanmer, J.; Wang, K.H. Emotional well-being: What it is and why it matters. Affect. Sci. 2022, 4, 10–20. [Google Scholar] [CrossRef] [PubMed]
- James, W. What is an emotion? Mind 1884, 9, 188–205. [Google Scholar] [CrossRef]
- Cannon, W.B. The James-Lange theory of emotions: A critical examination and an alternative theory. Am. J. Psychol. 1927, 39, 106. [Google Scholar] [CrossRef]
- Lazarus, R.S.; Averill, J.R.; Opton, E.M. Towards a cognitive theory of emotion. In Third International Symposium on Feelings and Emotions; Arnold, M., Ed.; Academic Press: New York, NY, USA, 1970; pp. 207–232. [Google Scholar] [CrossRef]
- Bower, I.; Tucker, R.; Enticott, P.G. Impact of built environment design on emotion measured via neurophysiological correlates and subjective indicators: A systematic review. J. Environ. Psychol. 2019, 66, 101344. [Google Scholar] [CrossRef]
- Zamani, M.; Kheirollahi, M.; Vafaee, F. Evaluating the impact of architectural space on human emotions using biometrics data. J. Urb. Plan. Des. Arch. 2022, 5, 65–80. [Google Scholar]
- Albdour, A.; Agiel, A.; Ghoudi, K. Assessing the Emotional Affordance of Brand Image and Foreign Image Based on a Phys-iological Method Using Examples from Dubai: Exploratory Study. Buildings 2022, 12, 1650. [Google Scholar] [CrossRef]
- Bluyssen, P.M. Towards new methods and ways to create healthy and comfortable buildings. Build. Environ. 2010, 45, 808–818. [Google Scholar] [CrossRef]
- World Health Organization. COVID-19 Pandemic Triggers 25% Increase in Prevalence of Anxiety and Depression Worldwide; World Health Organization: Geneva, Switzerland, 2022; Available online: https://www.who.int/news/item/02-03-2022-covid-19-pandemic-triggers-25-increase-in-prevalence-of-anxiety-and-depression-worldwide (accessed on 2 March 2022).
- Dzhambov, A.M.; Lercher, P.; Browning, M.H.; Stoyanov, D.; Petrova, N.; Novakov, S.; Dimitrova, D.D. Does greenery experienced indoors and outdoors provide an escape and support mental health during the COVID-19 quarantine? Environ. Res. 2020, 196, 110420. [Google Scholar] [CrossRef]
- Cao, W.; Fang, Z.; Hou, G.; Han, M.; Xu, X.; Dong, J.; Zheng, J. The psychological impact of the COVID-19 epidemic on college students in China. Psychiatry Res. 2020, 287, 112934. [Google Scholar] [CrossRef]
- Amerio, A.; Brambilla, A.; Morganti, A.; Aguglia, A.; Bianchi, D.; Santi, F.; Costantini, L.; Odone, A.; Costanza, A.; Signorelli, C.; et al. COVID-19 lockdown: Housing built environment’s effects on mental health. Int. J. Environ. Res. Public Health 2020, 17, 5973. [Google Scholar] [CrossRef] [PubMed]
- Xiong, J.; Lipsitz, O.; Nasri, F.; Lui, L.M.; Gill, H.; Phan, L.; Chen-Li, D.; Iacobucci, M.; Ho, R.; Majeed, A.; et al. Impact of COVID-19 pandemic on mental health in the general population: A systematic review. J. Affect. Disord. 2020, 277, 55–64. [Google Scholar] [CrossRef] [PubMed]
- Sheroun, D.; Wankhar, D.D.; Devrani, A.; Pv, L.; Gita, S.; Chatterjee, K. A study to assess the perceived stress and coping strategies among B.Sc. nursing students of selected colleges in Pune during COVID-19 pandemic lockdown. Int. J. Sci. Healthc. Res. 2020, 5, 280–288. [Google Scholar]
- Husky, M.M.; Kovess-Masfety, V.; Swendsen, J.D. Stress and anxiety among university students in France during Covid-19 mandatory confinement. Compr. Psychiatry 2020, 102, 152191. [Google Scholar] [CrossRef]
- Goh, L. The Future Is Now: Imagining University Life in a Post COVID-19 World. Available online: https://www.aurecongroup.com/thinking/thinking-papers/covid-19-reshaping-education-asian (accessed on 2 February 2021).
- Chen, D.; Song, F.; Tang, L.; Zhang, H.; Shao, J.; Qiu, R.; Wang, X.; Ye, Z. Quarantine experience of close contacts of COVID-19 patients in China: A qualitative descriptive study. Gen. Hosp. Psychiatry 2020, 66, 81–88. [Google Scholar] [CrossRef] [PubMed]
- Jameel, F.; Agiel, A. Using repertory grid technique to investigate the impact of changing university hostel function during COVID-19 pandemic on students’ well-being: A pilot study. In Proceedings of the ZEMCH International Conference, Dubai, United Arab Emirates, 26–28 October 2021; pp. 778–787. Available online: https://research.uaeu.ac.ae/en/publications/using-repertory-grid-technique-to-investigate-the-impact-of-chang (accessed on 14 January 2022).
- Awada, M.; Becerik-Gerber, B.; Hoque, S.; O’Neill, Z.; Pedrielli, G.; Wen, J.; Wu, T. Ten questions concerning occupant health in buildings during normal operations and extreme events including the COVID-19 pandemic. Build. Environ. 2021, 188, 107480. [Google Scholar] [CrossRef]
- Altomonte, S.; Allen, J.; Bluyssen, P.M.; Brager, G.; Heschong, L.; Loder, A.; Schiavon, S.; Veitch, J.A.; Wang, L.; Wargocki, P. Ten questions concerning well-being in the built environment. Build. Environ. 2020, 180, 106949. [Google Scholar] [CrossRef]
- Rahman, R.; Bidoun, D.; Agiel, A.; Albdour, A. Advancing the use of the repertory grid technique in the built environment: A systematic review. J. Front. Built Environ. 2022, 8, 1082149. [Google Scholar] [CrossRef]
- Kelly, G. The Psychology of Personal Constructs: Volume One: Theory and Personality, 1st ed.; Routledge: London, UK; New York, NY, USA, 1991. [Google Scholar]
- Fransella, F.; Bell, R.; Bannister, D. A Manual for Repertory Grid Technique, 2nd ed.; John Wiley & Sons: Chichester, UK, 2004. [Google Scholar]
- Harry, P.; Jane, P. The Use of Qualitative Grids to Examine the Development of the Construct Good and Evil in Byron’s Play “Cain: A Mystery”. J Constr. Psychol. 2008, 21, 343–354. [Google Scholar] [CrossRef]
- Wright, R.P. Element Selection: The Psychology of Personal Constructs. 2004. Available online: http://www.pcp-net.org/encyclopaedia/element-select.html (accessed on 2 March 2021).
- van de Kerkhof, M.; Repertory Grid Technique (RGT). Ivm Institute for Environmental Studies. Available online: http://www.ivm.vu.nl/en/Images/PT4_tcm234-161509.pdf (accessed on 3 March 2021).
- Jankowicz, D. The Easy Guide to Repertory Grids; John Wiley & Sons Ltd.: Chichester, UK, 2004; Available online: https://www.wiley.com/en-mx/The+Easy+Guide+to+Repertory+Grids-p-9780470854044 (accessed on 29 April 2021).
- Ajmal, A.; Iftikhar, A. A Qualitative Study Investigating the Impact of Hostel Life. Int. J. Emerg. Ment. Health Hum. Resil. 2015, 17, 511–515. [Google Scholar] [CrossRef]
- Attia, S.; Alphonsine, P.; Amer, M.; Ruellan, G. Towards a European rating system for sustainable student housing: Key performance indicators (KPIs) and a multi-criteria assessment approach. Environ. Sustain. Indic. 2020, 7, 100052. [Google Scholar] [CrossRef]
- Dunn, W.N. Policy Analysis: Perspectives, Concepts, and Methods; JAI Press: Greenwich, CT, USA, 1986; p. 396. Available online: https://catalog.library.vanderbilt.edu/discovery/fulldisplay/alma991038817459703276/01VAN_INST:vanui (accessed on 26 November 2022).
- Ginsberg, A. Construing the business portfolio: A cognitive model of diversification. J. Manag. Stud. 1989, 26, 417–438. [Google Scholar] [CrossRef]
- Braun, V.; Clarke, V. Using thematic analysis in psychology. Qual. Res. Psychol. 2006, 3, 77–101. [Google Scholar] [CrossRef]
- Holder, E. Personal Constructions of the Mother Role: Perceptions of Mothers in Health Care; University of Hertfordshire Research Archive: Hatfield, UK, 2018; Available online: http://uhra.herts.ac.uk/handle/2299/21929 (accessed on 30 March 2021). [CrossRef]
- Burr, V.; Giliberto, M.; Butt, T. Construing the cultural other and the self: A Personal analysis of English and Italian perceptions of national character. Int. J. Intercult. Relat. 2013, 39. [Google Scholar] [CrossRef]
- Hair, N.; Rose, S.; Clark, M. Using qualitative repertory grid techniques to explore perceptions of business-to-business online customer experience. J. Cust. Behav. 2009, 8, 51–65. [Google Scholar] [CrossRef]
- Fishbein, M. An investigation of the relationships between beliefs about an object and the attitude toward that object. Hum. Relat. 1963, 16, 233–239. [Google Scholar] [CrossRef]
- Guba, E.G. Toward a Methodology of Naturalistic Inquiry in Educational Evaluation. CSE Monograph Series in Evaluation, 8; Center for the Study of Evaluation, Graduate School of Education, University of California: Los Angeles, CA, USA, 1978. [Google Scholar]
- Gillis, K.; Gatersleben, B. A review of psychological literature on the health and wellbeing benefits of biophilic design. Buildings 2015, 5, 948–963. [Google Scholar] [CrossRef]
- Beemer, C.J.; Stearns-Yoder, K.A.; Schuldt, S.J.; Kinney, K.A.; Lowry, C.A.; Postolache, T.T.; Brenner, L.A.; Hoisington, A.J. A brief review on the mental health for selected elements of the built environment. Indoor Built Environ. 2021, 30, 152–165. [Google Scholar] [CrossRef]
- Khan, A.H.; Sultana, S.; Hossain, S.; Hasan, M.T.; Ahmed, H.U.; Sikder, M.T. The impact of COVID-19 pandemic on mental health & wellbeing among home-quarantined Bangladeshi students: A cross-sectional pilot study. J. Affect. Disord. 2020, 277, 121–128. [Google Scholar] [CrossRef]
- Lolli, F.; Marinello, S.; Coruzzolo, A.M.; Butturi, M.A. Post-occupancy evaluation’s (POE) applications for improving indoor environment quality (IEQ). Toxics 2022, 10, 626. [Google Scholar] [CrossRef]
- Engineer, A.; Gualano, R.J.; Crocker, R.L.; Smith, J.L.; Maizes, V.; Weil, A.; Sternberg, E.M. An integrative health framework for wellbeing in the built environment. Build. Environ. 2021, 205, 108253. [Google Scholar] [CrossRef]
- WHO. World Mental Health Report: Transforming Mental Health for All: Executive Summary; WHO: Geneva, Switzerland, 2022; Available online: https://www.who.int/publications-detail-redirect/9789240050860 (accessed on 31 October 2022).
| Design-Related Factors | Common Perceptions | 
|---|---|
| Availability/unavailability of private individual spaces | “At home, I like studying at the desk, and this is available in the NC hostel; every student has her own desk in her room”. “Maqam 4 is better than the New Campus hostel in many ways. First, aspect there is no sharing”. “I feel that the hostel makes the student self-reliant. She is living in a room alone and must take care of herself. This is what influences me positively: I rely on myself. I have a room that I must clean and take care of organizing it. No one is taking care of it for me”. | 
| Sizes of spaces | “In Maqam 4, it is wide, and this helps me cope with my moods. The NC hostel is narrower”. “The design of the room in Maqam 4 is nice. It is small, but you do not feel that it is too small. You feel that the bed and the cupboard are in appropriate places to make the room spacious. The space is not too compacted. This is not the case with the New Campus hostel”. “The New Campus has a small area. This does not allow space for easily rearranging the bed and the desk. You cannot put the desk near the pinboard as this means that the cabinet cannot be opened or takes up a lot of space. You cannot walk comfortably. This is the problem” | 
| Brightness/dimness of artificial lighting | “The lighting. It was the weakest in the New Campus hostel. I am the kind of person where I want the room to be very well lit. I feel good in this case”. “In Maqam 4, the light was not nice. The place is dull and obsolete in the corridors, and everywhere else”. “The New Campus is more comfortable; even the lights are much more comfortable. I like the New Campus more than Maqam 4, where I did not like the white light in the bedroom. It was annoying. I feel that it would be better if it had lighting like that of the New Campus hostel”. | 
| Exposure to/restriction on natural views | “I loved the gardens because I was studying outside a lot, and it had tables with chairs. I was in the appropriate mood studying there”. “The greenery outside is nice. It has a nice impact. When you open the window, you find lush views”. | 
| Lightness/darkness of interior colors | “The colors in the Maqam 4 hostel are very dark. The rooms are pink, the curtains are pink, the table and the doors are brown. You understand. While the light is strong, the room is still depressing”. “The atmosphere is depressing because the colors in the hostel are generally dull. In the NC hostel, I feel a little more energetic than in Maqam 4 because of the colors”. “The NC hostel helps a lot because the colors in it are light, and this motivates us to study”. “The white color in the New Campus hostel is motivating and makes you feel comfortable. When I passed through the corridor, I did not feel afraid as I did in the corridors of Maqam 4, where I would run to reach my room because I found the brown color of the walls scary”. “What annoys me a little is the dark colors. For example, I told you about the pink walls and curtains in Maqam 4. It was not all one solid, dark color. No, it was decorated, but it was pink. It was annoying. The bathrooms in Maqam 4 were also a dark, burnt brown; so, it was a little annoying for me”. | 
| Openness/closedness of communal spaces | “Sometimes, girls would bring an electric stove to the NC hostel and cook food. The rooms that are adjacent to the kitchen smell of food because the kitchen is not closed. The Maqam hostel has a kitchen with a door”. “Sometimes, I do not want to sit in the bedroom. I want to change, but the New Campus hostel has no study area. There is a place for sitting but I find that it is not comfortable. Girls are passing always”. | 
| Extent of natural light | “The windows at home are very large; I like spaces with a lot of natural light”. “The windows in the New Campus hostel are large. This makes me comfortable. At home, my room has a lot of windows, and I like it when the sunlight enters my room. You know, you feel energetic in the morning. You got excited to do things and study”. | 
| Presence/absence of sound insulation | “The insulation in Maqam 4 is very good. Even if I have a friend visiting, we do not hear the noise outside. We study and can concentrate in this space. While I was able to study in the NC hostel, the noise from outside interfered with the calm and prevented me from concentrating on studying. Maqam 4 is thus better for its environment for studying and comfort”. “There is no sound insulation in the New Campus. I feel that there is no privacy. Sometimes, when I talk to my family on the phone or with someone in my room, I need privacy. The girl in the adjacent room can hear me if she is in her bathroom or her bedroom. This is annoying for both of us. It is annoying for me because there are private things that I do not want someone to hear, and she can hear it. She is annoyed by having to hear my voice. This is not okay”. “Emotionally, I did not like Maqam 4 very much. It was very calm, to the extent that—I was online mostly—I felt that I was in a strange place that was uncomfortable. It was very calm; I could hear any sound. It was scary. This may be because at home, I am used to hearing my sisters’ voices, and other sounds. When I hear people around me, I am more comfortable. But Maqam is very calm”. | 
| Distances to nearby facilities | “At home, it is the opposite: It is more comfortable. Everything is available; so, I do not waste time. Because the NC hostel is close to the canteen, I can go there and return quickly, and not get tired. When you walk from Maqam 4 to the canteen, you feel tired from walking. The NC is more comfortable in this sense”. “The proximity of the library to the NC hostel is convenient. When I want to get in the mood to study, I go to the library”. “Maqam 4 is a little far from the university and its colleges and is thus scary”. | 
| Supportive/unsupportive communal spaces for social interaction | “In Maqam 4, I did not see many people. Everyone was mostly online, including all my friends, except me. I was mostly alone”. “I can spend more time with my friends in the NC hostel, unlike in Maqam 4. You also feel like you want to study. We all get excited and study”. “They moved me to the New Campus. The building is in a nice place. When we sit or walk outside, it is nicer and more comfortable”. | 
| Main Characteristics | Common Perceptions | 
|---|---|
| Availability of private spaces | “I like the bedroom very much and do not see anything that needs to be changed. Especially, the idea of one bathroom for every two rooms is better than that of one bathroom for multiple rooms”. “Every student likes the NC hostel, and I prefer the allocation of rooms here. Everyone gets their own room, but the bathroom is shared. At least this provides privacy in the room. It is better to have a separate bathroom for each student, but if enough bathrooms are not available, it is fine to have to share it with someone I know. Not just anyone though”. | 
| Spacious sizes of spaces | “It is a building where the rooms are not comfortable. The student should at least have the comfort of living in the room without feeling squeezed”. “The room is wide and there is space to put my stuff. You do not feel like you are in a narrow place and don’t get worried”. “For example, you can widen the bedrooms a little” + “For example, you can widen the corridors. I feel that they are very narrow”. | 
| Suitable artificial lighting | “The lighting is suitable: not too dim and not too strong”. “The lighting affects me, especially at study time”. “The lighting should be good”. | 
| Exposure to natural views | “There should be greenery inside the building, so that you feel the green space as you walk and smell the air and the plants”. “I feel the most important things are the greenery, plants, and the furniture. They lend the place more beauty and comfort”. “The gardens. Now that I am at home, I miss the gardens of the hostel”. “I feel the landscape outside is good for my emotional well-being, such that one wants to go outside”. “I feel like if it were up to me, I would make a wall of windows so I can see nature outside. In Maqam 4, the lounge has longitudinal windows so I can see outside. There is nature I can see. The only negative thing is that the windows of the lounges in Maqam 4 cannot be opened; so, there is no ventilation. I am one of the people who like studying at sunrise, but I cannot open the windows to hear the birds in the morning while I am studying, and to feel the fresh, cold air. So, I feel isolated. It needs ventilation”. “If you open the curtains, I think the entire atmosphere of the room changes”. “It would be better to have places for studying outside because there are chairs away from each other but not for studying. We usually bring tables from inside to outside and make a sitting area to study”. | 
| Use of light interior colors | “The colors are fresh and include beige and white”. “Light colors should be used to make the students feel comfortable while they are studying”. “Regarding colors, I feel that it would be nice for the rooms to have some color: pastel colors on the walls”. | 
| Enclosure of certain communal spaces | “When we want to study, we sit in any lounge space we find empty. But people passing by can see you studying, and not all of them are quiet. It is nice to have study rooms away from our bedrooms because the bedrooms themselves encourage sleeping. Productivity will increase if study rooms with coffee corners are made available. Something exciting”. “The living area in the New Campus is open; so, I do not feel nice. It is better to have a closed room so that the girls are comfortable. Moreover, there is no closed kitchen, so the smell of food from it reaches the rooms. It would be better if it was closed”. | 
| Presence of sound insulation | “First, the place needs to have privacy. I mean no sound. Second, there should be a place that is private and calming so that the students can study, sleep, talk, be comfortable overall, and not be annoyed. Sometimes, I get worried. When I am taking an online class, I do not want to wear headphones but want to listen to the lecture without them, but I cannot do so because the girl in the adjacent room will be able to hear me and I do not want to bother her. I thus feel that sound insulation is very important”. “You should insulate the walls between the rooms. This is the most important thing to enable the student to concentrate on studying”. | 
| Availability of nearby basic facilities for daily needs | “The place motivates the student and assures her that she is at home. For example, there is a pantry”. “The point is that the feeling you have is one of being at home, rather than in a university. You feel you are in your home and do not feel strange, or that you are in a faraway place. You have everything, like the kitchen and laundry. You do not have to go up and down or wait in a row. Everything is available”. “I want study rooms or study halls. The atmosphere in a hall is different from that in a room. This is the thing I have the biggest problem with”. “The study rooms are what I miss the most”. “The kitchen in our hostel now has nothing: only a microwave and a sink. We need to bring everything else, and when students cannot afford to do so, they cannot cook food and must eat the canteen food. It is nice to have a kitchen that is well equipped for students”. | 
| Availability of communal spaces encouraging social interaction | “I feel they need to add study rooms, like in Maqam 4. There are study rooms there that motivated me and others to study. You are studying in a place where the other girls are studying as well”. “But it will be nice to have a gathering room for when we meet or watch TV or a movie”. | 
| Disclaimer/Publisher’s Note: The statements, opinions and data contained in all publications are solely those of the individual author(s) and contributor(s) and not of MDPI and/or the editor(s). MDPI and/or the editor(s) disclaim responsibility for any injury to people or property resulting from any ideas, methods, instructions or products referred to in the content. | 
© 2023 by the authors. Licensee MDPI, Basel, Switzerland. This article is an open access article distributed under the terms and conditions of the Creative Commons Attribution (CC BY) license (https://creativecommons.org/licenses/by/4.0/).
Share and Cite
Jameel, F.; Agiel, A. Exploring Students’ Emotional Well-Being in the Ideal University Hostel Using the Qualitative Repertory Grid Technique. Int. J. Environ. Res. Public Health 2023, 20, 6724. https://doi.org/10.3390/ijerph20186724
Jameel F, Agiel A. Exploring Students’ Emotional Well-Being in the Ideal University Hostel Using the Qualitative Repertory Grid Technique. International Journal of Environmental Research and Public Health. 2023; 20(18):6724. https://doi.org/10.3390/ijerph20186724
Chicago/Turabian StyleJameel, Fanan, and Ahmed Agiel. 2023. "Exploring Students’ Emotional Well-Being in the Ideal University Hostel Using the Qualitative Repertory Grid Technique" International Journal of Environmental Research and Public Health 20, no. 18: 6724. https://doi.org/10.3390/ijerph20186724
APA StyleJameel, F., & Agiel, A. (2023). Exploring Students’ Emotional Well-Being in the Ideal University Hostel Using the Qualitative Repertory Grid Technique. International Journal of Environmental Research and Public Health, 20(18), 6724. https://doi.org/10.3390/ijerph20186724
 
        




 
       