The Study of Spatial Safety and Social Psychological Health Features of Deaf Children and Children with an Intellectual Disability in the Public School Environment Based on the Visual Access and Exposure (VAE) Model
Abstract
1. Introduction
2. Materials and Methods
2.1. Theoretical Background
2.1.1. How Is the VA, VE Associated with Physical Safety for Deaf Children and Children with an Intellectual Disability?
2.1.2. How Are the VA and VE Associated with the Psychological Health Features of Deaf Children and Children with an Intellectual Disability?
2.2. Study Area
2.3. Methodology
2.3.1. Evaluation of the VA and VE Features in the VAE Model for the Public Environment
- Simplifying the floor plan. In the first step, the floor plan was simplified with AutoCAD 2017. The authors removed all the furniture, ventilation shafts and electrical equipment and kept only the integrated walls of the public environment in the school buildings and the two crossed rain corridors/canopies. The authors removed the ventilation shafts and electrical equipment from the construction drawing, as they cannot impact the space usage in the public space. Certain amenities could be significant obstacles for the children. The school manger left some furniture in the public space, with the height of this furniture being lower than the eyesight of the primary school children. Thus, the locations of these amenities were not considered.
- Processing the windows and doors. The visual accessibility from the outside to the interior of the architecture was not considered in this study. The authors used the walls instead of the windows (and doors) for the exterior wall in AutoCAD 2017 and reserved the windows in the public environment. The authors removed the drawing of doors in AutoCAD 2017 in the floor plan of the public environment, in order to ensure that eyesight would be taken into account in the calculations.
- A set of grid points was created with 70 cm of distance. Through the former two steps, the enclosed public environment, including the indoor public space, two interaction canopies outside and their connecting space, can be created (Figure 3). Next, a set of grid points was generated according to the assumed spatial distance between people on the plans with OPERA software. In this study, the authors chose 70 cm as the assumed spatial distance between people.
2.3.2. Observing the Space Usage of the Public Environment for Deaf Children and Children with an Intellectual Disability
3. Results
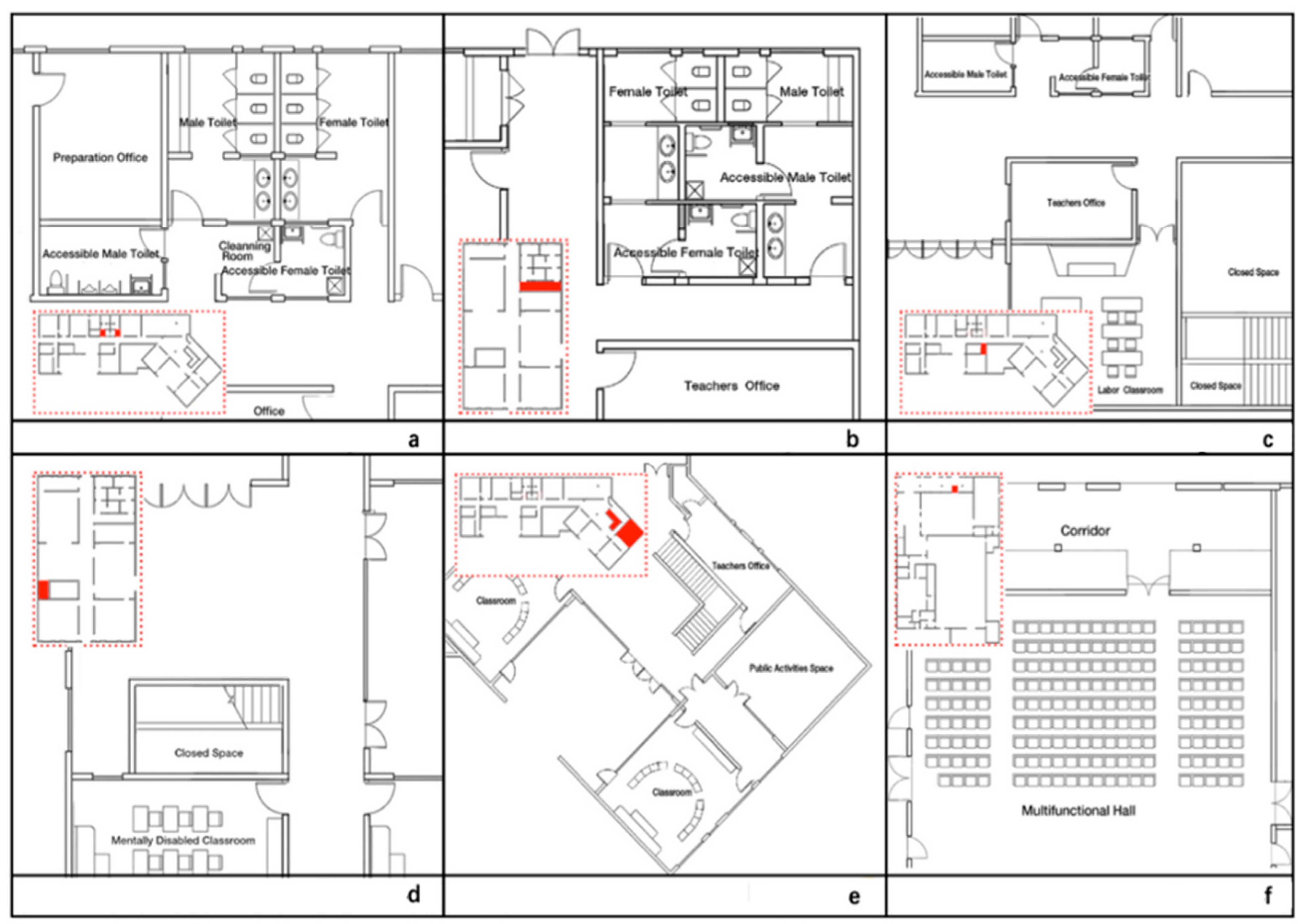
3.1. The VA, VE and Physical Safety in the School Environment
- The linear space as a branch of the main interior corridor, such as the line space in front of the toilets in the Deyi Building and the Dehui Building, and the linear space before entering the labor classroom in the Deyi Building (Figure 4a–c);
- The roads to the rooms or other public spaces behind the elevators, such as the space behind the elevators in the Dehui Building and the Deyin Building (Figure 4d–e);
- The nonlinear public environment with corners that are too deep, such as the public activities room in the Deyin Building (Figure 4e);
- The narrow path connecting the outdoor horizontal corridor and the Sports Center (Figure 4f).
3.2. Social Psychosocial Features in the School Environment
4. Discussion
5. Conclusions
Author Contributions
Funding
Institutional Review Board Statement
Informed Consent Statement
Data Availability Statement
Acknowledgments
Conflicts of Interest
References
- Ekawati, S. Children friendly streets as urban playgrounds. Procedia Soc. Behav. Sci. 2015, 179, 94–108. [Google Scholar] [CrossRef]
- Woolcock, G.; Gleeson, B.; Randolph, B. Urban research and child-friendly cities: A new Australian outline. Child. Geogr. 2010, 8, 177–192. [Google Scholar] [CrossRef]
- Archea, J. Visual Access and Exposure: An Architectural Basis for Interpersonal Behavior. Doctoral Dissertation, The Pennsylvania State University, State College, PA, USA, 1984. [Google Scholar]
- Archea, J. The place of architectural factors in behavioral theories of privacy. J. Soc. Issues 1977, 33, 116–137. [Google Scholar] [CrossRef]
- Archea, J.C. The use of architectural props in the conduct of criminal acts. J. Archit. Plan. Res. 1985, 2, 245–259. [Google Scholar]
- Choi, J. A Cross-cultuRal Study in the Context of the Visual Access and Exposure model. Master’s Thesis, Georgia Institute of Technology, Atlanta, GA, USA, 1983. [Google Scholar]
- Choi, J. An exploratory study of the conceptualization of architectural tradition of Korea in terms of the Koreans’ spatial behavior. In The Cost of Not Knowing; Wineman, J., Barnes, R., Zimring, C., Eds.; Environmental Design Research Association: Washington, DC, USA, 1986; Volume 1, pp. 31–40. [Google Scholar]
- Choi, J. The traditional characteristics reflected in the plan of modern apartment houses in Korea. J. Archit. Plan. Res. 1999, 16, 65–77. [Google Scholar]
- Benedikt, M.L. To take hold of space: Isovists and isovist fields. Environ. Plan. B Plan. Des. 1979, 6, 47–65. [Google Scholar] [CrossRef]
- Batty, M. Exploring isovist fields: Space and shape in architectural and urban morphology. Environ. Plan. B Plan. Des. 2001, 28, 123–150. [Google Scholar] [CrossRef]
- Franz, G.; Wiener, J.M. From space syntax to space semantics: A behaviorally and perceptually oriented methodology for the efficient description of the geometry and the topology of environments. Environ. Plan. B Plan. Des. 2008, 35, 574–592. [Google Scholar] [CrossRef]
- Turner, A.; Doxa, M.; O’Sullivan, D.; Penn, A. From isovists to visibility graphs: A methodology for the analysis of architectural space. Environ. Plan. B Plan. Des. 2001, 28, 103–121. [Google Scholar] [CrossRef]
- Fisher-Gewirtzman, D.; Burt, M.; Tzamir, Y. A 3-D visual method for comparative evaluation of dense built-up environments. Environ. Plan. B Plan. Des. 2003, 30, 575–587. [Google Scholar] [CrossRef]
- Hillier, B.; Penn, A.; Hanson, J.; Grajewski, T.; Xu, J. Natural movement: Or, configuration and attraction in urban pedestrian movement. Environ. Plan. B Plan. Des. 1993, 20, 29–66. [Google Scholar] [CrossRef]
- Hillier, B.; Vaughan, L. The city as one thing. Prog. Plan. 2007, 67, 205–230. [Google Scholar]
- Kim, S.T. Spatial structure analysis of view angle correction reflecting characteristics of universal observation. J. Korea Acad. Ind. Coop. Soc. 2015, 16, 6917–6924. [Google Scholar]
- Dickey, T.S. Bank Robbery: Architectural Implications from the Criminal’s Point of View. Master’s Thesis, Georgia Institute of Technology, Atlanta, GA, USA, 1980. [Google Scholar]
- An, K.J.; Ko, H.; Kim, C.S. Development and Implementation of Visual Exposure Indicator for Residential Development. Int. J. Smart Home 2015, 9, 1–10. [Google Scholar] [CrossRef]
- Bartie, P.; Reitsma, F.; Kingham, S.; Mills, S. Incorporating vegetation into visual exposure modelling in urban environments. Int. J. Geogr. Inf. Sci. 2011, 5, 851–868. [Google Scholar] [CrossRef]
- Anaby, A.D.; Hand, C.; Bradley, L.; Forhan, M.; DiGiacomo, A.; Law, M. The effect of the environment on participation of children and youth with disabilities: A scoping review. Disabil. Rehabil. 2013, 35, 1589–1598. [Google Scholar] [CrossRef]
- Fauconnier, J.; Dickinson, H.; Beckung, E.; Marcelli, M.; McManus, V.; Michelsen, S.I.; Parkes, J.; Parkinson, K.N.; Thyen, U.; Arnaud, C.; et al. Participation in life situations of 8–12 year old children with cerebral palsy: Cross sectional European study. BMJ Br. Med J. 2009, 338, 1–12. [Google Scholar] [CrossRef] [PubMed]
- Palisano, R.; Shimmell, L.J.; Stewart, D.; Lawless, J.J.; Rosenbaum, P.L.; Russell, D.J. Mobility experiences of adolescents with cerebral palsy. Phys. Occup. Ther. Pediat. 2009, 29, 133–153. [Google Scholar] [CrossRef] [PubMed]
- Colver, A.F.; Dickinson, H.; Parkinson, K.; Arnaud, C.; Beckung, E.; Fauconnier, J.; Marcelli, M.; McManus, V.; Michelsen, S.I.; Parkes, J.; et al. Access of children with cerebral palsy to the physical, social and attitudinal environment they need: A cross-sectional European study. Disabil. Rehabil. 2011, 33, 28–35. [Google Scholar] [CrossRef]
- Nasar, J.L.; Jones, M.K. Landscapes of Fear and Stress. Environ. Behav. 1997, 29, 291–323. [Google Scholar] [CrossRef]
- Nasar, J.L.; Julian, D.; Buchman, S.; Humphreys, D.; Mrohaly, M. The emotional quality of scenes and observation points: A look at prospect and refuge. Landsc. Plan. 1983, 10, 355–361. [Google Scholar] [CrossRef]
- Stamps, A.E. Isovists, enclosure, and permeability theory. Environ. Plan. B Plan. Des. 2005, 32, 735–762. [Google Scholar] [CrossRef]
- Zhu, H.P. The Research of Accidental Injuries of Disable Children. Ph.D. Thesis, Huazhong University of Science and Technology, Wuhan, China, 2012. [Google Scholar]
- Kim, Y.R. Personal Safety Programs for Children with Intellectual Disabilities. Educ. Train. Autism Dev. Disabil. 2010, 45, 312–319. [Google Scholar]
- Coburn, A.; Kardan, O.; Kotabe, H.; Steinberg, J.; Hout, M.C.; Robbins, A.; MacDonald, J.; Hayn-Leichsenring, G.; Berman, M.G. Psychological responses to natural patterns in architecture. J. Environ. Psychol. 2019, 62, 133–145. [Google Scholar] [CrossRef]
- Namazian, A.; Mehdipour, A. Psychological Demands of the Built Environment, Privacy, Personal Space and Territory in Architecture. Int. J. Psychol. Behav. Sci. 2013, 3, 109–113. [Google Scholar]
- Augustin, S.; Frankel, N.; Coleman, C. Place Advantage: Applied Psychology for Interior Architecture; Wiley: Hoboken, NJ, USA, 2009. [Google Scholar]
- Hillier, B.; Hanson, J. The Social Logic of Space, 1st ed.; Cambridge University Press: Cambridge, UK, 1984; pp. 12–24. [Google Scholar]
- Altman, I. Privacy: A conceptual analysis. In Man-Environment Interactions; Carson, D.H., Ed.; Environmental Design Research Association: Washington, DC, USA, 1974; Volume I, pp. 3–28. [Google Scholar]
- Altman, I. The Environment and Social Behavior: Privacy, Personal Space, Territory, Crowding; Brooks/Cole: Monterey, CA, USA, 1975. [Google Scholar]
- Altman, I. Privacy: ‘A Conceptual Analysis’. Environ. Behav. 1976, 8, 7–30. [Google Scholar] [CrossRef]
- Forgas, J.P.; Jones, R. Interpersonal Behaviour: The Psychology of Social Interaction, 1st ed.; Pergamon Press: Oxford, UK, 1985. [Google Scholar]
- Yadegari, Z.; Alinaghi, B. The effect of introversion and Extroverts of individuals in the socialization of public space. Tech. Soc. Sci. J. 2020, 3, 82–93. [Google Scholar]
- Lawson, B. The Language of Space, 1st ed.; Architectural Press: London, UK, 2001. [Google Scholar]
- Blascovich, J.; Loomis, J.; Beall, A.C.; Swinth, K.R.; Hoyt, C.L.; Bailenson, J.N. Immersive Virtual Environment Technology as a Methodological Tool for Social Psychology. Psychol. Inq. 2002, 13, 103–124. [Google Scholar] [CrossRef]
- Allport, G. The historical background of social psychology. In Handbook of Social Psychology, 3rd ed.; Lindzey, G., Aronson, E., Eds.; Random House: New York, NY, USA, 1985; Volume I, pp. 1–46. [Google Scholar]
- Xu, M.Z. Current Situation and Analysis of Psychological Health about Deaf-mute Students. Chin. J. Spec. Educ. 2004, 46, 83–86. [Google Scholar]
- Lin, Y.P. Psychological health research of Deaf-mute children. Chin. J. Spec. Educ. 1998, 28, 9–12. [Google Scholar]
- Aslam, T.; Batool, Z.; Hashim, N.; Aslam, K. Sociopsychological problems and needs of mentally retarded children in districts Faisalabad and Islamabad, Pakiatan. J. Anim. Plant Sci. 2011, 21, 111–113. [Google Scholar]





| Number of Children | VA Value | VE Value | Color |
|---|---|---|---|
| 2 | high VA | high VE | Green |
| 2 | high VA | low VE | Red |
| 6 | low VA | high VE | Blue |
| 15 | low VA | low VE | Yellow |
Publisher’s Note: MDPI stays neutral with regard to jurisdictional claims in published maps and institutional affiliations. |
© 2021 by the authors. Licensee MDPI, Basel, Switzerland. This article is an open access article distributed under the terms and conditions of the Creative Commons Attribution (CC BY) license (https://creativecommons.org/licenses/by/4.0/).
Share and Cite
Ma, N.; Ma, S.; Li, S.; Ma, S.; Pan, X.; Sun, G. The Study of Spatial Safety and Social Psychological Health Features of Deaf Children and Children with an Intellectual Disability in the Public School Environment Based on the Visual Access and Exposure (VAE) Model. Int. J. Environ. Res. Public Health 2021, 18, 4322. https://doi.org/10.3390/ijerph18084322
Ma N, Ma S, Li S, Ma S, Pan X, Sun G. The Study of Spatial Safety and Social Psychological Health Features of Deaf Children and Children with an Intellectual Disability in the Public School Environment Based on the Visual Access and Exposure (VAE) Model. International Journal of Environmental Research and Public Health. 2021; 18(8):4322. https://doi.org/10.3390/ijerph18084322
Chicago/Turabian StyleMa, Ning, Sa Ma, Shuangjin Li, Shuang Ma, Xinzhi Pan, and Guohui Sun. 2021. "The Study of Spatial Safety and Social Psychological Health Features of Deaf Children and Children with an Intellectual Disability in the Public School Environment Based on the Visual Access and Exposure (VAE) Model" International Journal of Environmental Research and Public Health 18, no. 8: 4322. https://doi.org/10.3390/ijerph18084322
APA StyleMa, N., Ma, S., Li, S., Ma, S., Pan, X., & Sun, G. (2021). The Study of Spatial Safety and Social Psychological Health Features of Deaf Children and Children with an Intellectual Disability in the Public School Environment Based on the Visual Access and Exposure (VAE) Model. International Journal of Environmental Research and Public Health, 18(8), 4322. https://doi.org/10.3390/ijerph18084322

