Development of a Dynamic Oriented Rehabilitative Integrated System (DORIS) and Preliminary Tests
Abstract
1. Introduction
2. Materials and Methods
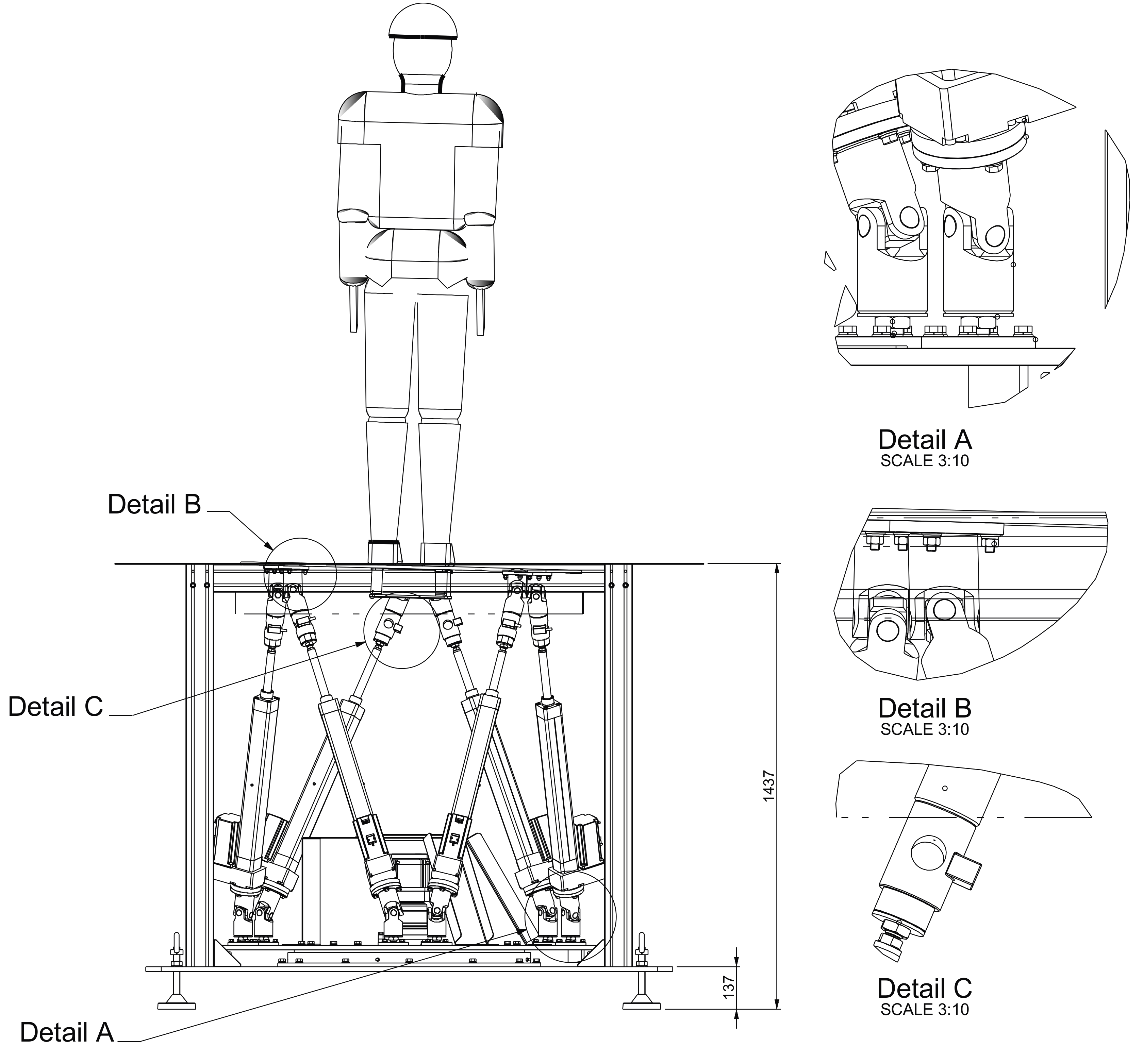
2.1. Description of the Robotic Platform
2.2. System Architecture
- •
- The Data/Control server, which is in charge of (i) collecting, routing and recording all the main data flowing in the system, (ii) controlling the Stewart platform and (iii) visualizing and monitor the state of the Stewart platform.
- •
- The Stewart Platform, which has been presented in the previous section.
- •
- The Unreal Engine server, which hosts Unreal Engine 4, the adopted game engine. This is responsible for generating the realistic VR game experiences which are used for assessing the neuro-rehabilitation patients’ capabilities and extrapolate relevant performance measures.
- •
- The VR devices, i.e., the control interfaces used for the VR game experiences. These consist of a VR headset (an Oculus Rift S headset) and a Leap motion module (used for detecting and tracking hand gestures).
- •
- The Vicon system, which is composed of a set of 12 cameras and variously deployed markers used to perform accurate motion capture of patients’ and system assets.
- •
- The Electromyography (EMG) system, used for measuring and recording the electrical activity produced by the skeletal muscles of the patients.
- •
- The Vicon/EMG server, which is in charge of (i) collecting, synchronizing and processing all the signals and data coming from both the Vicon system and the EMG system, and (ii) make all the processed sensory data available to the other DORIS subsystems.
2.3. Inverse Kinematic
2.4. Force-Torque and Center of Pressure Sensor
3. Architecture Details
3.1. System Modules and Data Flow
3.2. Sofware Design
- •
- The CNC module (programmed both in Visual Basic and C), which is hosted in the Stewart platform firmware.
- •
- The Pxcomm communication library (programmed in C/C++), which allows the communication with the CNC module through the TCP/IP protocol. Specifically, this library has been designed to allow the integration of the Stewart platform with other systems.
4. Results
4.1. Movement Assessment of the Platform
4.2. Center of Pressure Measurement Assessment
5. Discussion
6. Conclusions
Author Contributions
Funding
Acknowledgments
Conflicts of Interest
References
- Latash, M.L.; Zatsiorsky, V.M. Biomechanics and Motor Control: Defining Central Concepts; Academic Press: Cambridge, MA, USA, 2015; ISBN 9780128005194. [Google Scholar]
- Colombo, R.; Sanguineti, V. Rehabilitation Robotics: Technology and Applications. In Rehabilitation Robotics; Academic Press: Cambridge, MA, USA, 2018; pp. xix–xxvi. ISBN 978-0-12-811995-2. [Google Scholar]
- Sherrington, C. The Integrative Action of the Nervous System; Charles Scribner’s Sons: New York, NY, USA, 1909. [Google Scholar]
- Magnus, R.; de Kleijn, A. Die Abhängigkeit der Körperstellung vom Kopfstande beim normalen Kaninchen. Pflüger’s Archiv für die gesamte Physiologie des Menschen und der Tiere 1913, 154, 163–177. [Google Scholar] [CrossRef]
- Robinson, C.J.; Purucker, M.C.; Faulkner, L.W. Design, control, and characterization of a sliding linear investigative platform for analyzing lower limb stability (SLIP-FALLS). IEEE Trans. Rehabil. Eng. 1998, 6, 334–350. [Google Scholar] [CrossRef] [PubMed]
- Richerson, S.J.; Morstatt, S.M.; O’Neal, K.K.; Patrick, G.; Robinson, C.J. Effect of lateral perturbations on psychophysical acceleration detection thresholds. J. Neuroeng. Rehabil. 2006, 3, 2. [Google Scholar] [CrossRef][Green Version]
- Nardone, A.; Grasso, M.; Tarantola, J.; Corna, S.; Schieppati, M. Postural coordination in elderly subjects standing on a periodically moving platform. Arch. Phys. Med. Rehabil. 2000, 81, 1217–1223. [Google Scholar] [CrossRef] [PubMed]
- Nashner, L.M. Adapting reflexes controlling the human posture. Exp. Brain Res. 1976, 26, 59–72. [Google Scholar] [CrossRef] [PubMed]
- Allum, J.H.J.; Carpenter, M.G.; Honegger, F. Directional Aspects of Balance Corrections in Man. IEEE Eng. Med. Biol. Mag. 2003, 22, 37–47. [Google Scholar] [CrossRef]
- Carpenter, M.G.; Allum, J.H.J.; Honegger, F. Vestibular influences on human postural control in combinations of pitch and roll planes reveal differences in spatiotemporal processing. Exp. Brain Res. 2001, 140, 95–111. [Google Scholar] [CrossRef]
- Bakker, M.; Allum, J.H.J.; Visser, J.E.; Grüneberg, C.; van de Warrenburg, B.P.; Kremer, B.H.P.; Bloem, B.R. Postural responses to multidirectional stance perturbations in cerebellar ataxia. Exp. Neurol. 2006, 202, 21–35. [Google Scholar] [CrossRef]
- Van Doornik, J.; Sinkjær, T. Robotic platform for human gait analysis. IEEE Trans. Biomed. Eng. 2007, 54, 1696–1702. [Google Scholar] [CrossRef]
- Lees, A.; Vanrenterghem, J.; Barton, G.; Lake, M. Kinematic response characteristics of the CAREN moving platform system for use in posture and balance research. Med. Eng. Phys. 2007, 29, 629–635. [Google Scholar] [CrossRef]
- Stewart, D. A Platform with Six Degrees of Freedom. Proc. Inst. Mech. Eng. 1965, 180, 371–386. [Google Scholar] [CrossRef]
- Nguyen, C.C.; Zhou, Z.-L.; Antrazi, S.S.; Campbell, C.E. Efficient computation of forward kinematics and Jacobian matrix of a Stewart platform-based manipulator. In Proceedings of the IEEE SOUTHEASTCON’91, Williamsburg, VA, USA, 7–10 April 1991; pp. 869–874. [Google Scholar]
- Morell, A.; Tarokh, M.; Acosta, L. Solving the forward kinematics problem in parallel robots using Support Vector Regression. Eng. Appl. Artif. Intell. 2013, 26, 1698–1706. [Google Scholar] [CrossRef]
- Harib, K.; Srinivasan, K. Kinematic and dynamic analysis of Stewart platform-based machine tool structures. Robotica 2003, 21, 541–554. [Google Scholar] [CrossRef]
- Huang, X.; Liao, Q.; Wei, S.; Qiang, X.; Huang, S. Forward kinematics of the 6-6 Stewart platform with planar base and platform using algebraic elimination. In Proceedings of the IEEE International Conference on Automation and Logistics (ICAL), Jinan, China, 18–21 August 2007. [Google Scholar]
- Wang, Y. An Incremental Method for Forward Kinematics of Parallel Manipulators. In Proceedings of the 2006 IEEE Conference on Robotics, Automation and Mechatronics, Bangkok, Thailand, 7–9 June 2006; pp. 1–5. [Google Scholar]
- Wang, Z.; He, J.; Shang, H.; Gu, H. Forward kinematics analysis of a six-DOF Stewart platform using PCA and NM algorithm. Ind. Robot 2009, 36, 448–460. [Google Scholar] [CrossRef]
- Siciliano, B.; Sciavicco, L.; Villani, L.; Oriolo, G. Robotics: Modelling, Planning and Control; Springer: Berlin, Germany, 2010. [Google Scholar]
- Dwarakanath, T.A.; Dasgupta, B.; Mruthyunjaya, T.S. Design and development of a Stewart platform based force-torque sensor. Mechatronics 2001, 11, 793–809. [Google Scholar] [CrossRef]
- Ranganath, R.; Nair, P.S.; Mruthyunjaya, T.S.; Ghosal, A. A force-torque sensor based on a Stewart Platform in a near-singular configuration. Mech. Mach. Theory 2004, 39, 971–998. [Google Scholar] [CrossRef]
- Charters, T.; Enguiça, R.; Freitas, P. Detecting Singularities of Stewart Platforms. Math. Ind. Case Stud. J. 2009, 1, 66–80. [Google Scholar]
- Hasan, S.S.; Robin, D.W.; Szurkus, D.C.; Ashmead, D.H.; Peterson, S.W.; Shiavi, R.G. Simultaneous measurement of body center of pressure and center of gravity during upright stance. Part I: Methods. Gait Posture 1996, 4, 1–10. [Google Scholar] [CrossRef]
- Browne, J.; O’Hare, N. A quality control procedure for force platforms. Physiol. Meas. 2000, 21, 515–524. [Google Scholar] [CrossRef]
- Collins, S.H.; Adamczyk, P.G.; Ferris, D.P.; Kuo, A.D. A simple method for calibrating force plates and force treadmills using an instrumented pole. Gait Posture 2009, 29, 59–64. [Google Scholar] [CrossRef]
- Holden, J.P.; Selbie, W.S.; Stanhope, S.J. A proposed test to support the clinical movement analysis laboratory accreditation process. Gait Posture 2003, 17, 205–213. [Google Scholar] [CrossRef]
- Rabuffetti, M.; Ferrarin, M.; Benvenuti, F. Spot check of the calibrated force platform location. Med. Biol. Eng. Comput. 2001, 39, 638–643. [Google Scholar] [CrossRef]
- Lewis, A.; Stewart, C.; Postans, N.; Trevelyan, J. Development of an instrumented pole test for use as a gait laboratory quality check. Gait Posture 2007, 26, 317–322. [Google Scholar] [CrossRef]
- Quigley, M.; Conley, K.; Gerkey, B.; Faust, J.; Foote, T.; Leibs, J.; Wheeler, R.; Ng, A.Y. ROS: An open-source Robot Operating System. In Proceedings of the ICRA Workshop on Open Source Software, Kobe, Japan, 12–17 May 2009. [Google Scholar]
- Merriaux, P.; Dupuis, Y.; Boutteau, R.; Vasseur, P.; Savatier, X. A study of vicon system positioning performance. Sensors 2017, 17, 1591. [Google Scholar] [CrossRef]
- Goldberg, S.R.; Kepple, T.M.; Stanhope, S.J. In situ calibration and motion capture transformation optimization improve instrumented treadmill measurements. J. Appl. Biomech. 2009, 25, 401–406. [Google Scholar] [CrossRef]









| Electro-Mechanical Cylinder System—EMC-050NN-2 | |
|---|---|
| Max. stroke | 400 mm |
| Lead constant | 20 mm/U |
| Max travel speed | 1.27 m/s |
| Max acceleration | 50 m/s2 |
| Max drive torque | 8.2 Nm |
| Gear reduction | 1 |
| Connecting Point | X (mm) | Y (mm) | Z (mm) |
|---|---|---|---|
| m1 | 0.7 ± 0.008 | 0.7 ± 0.005 | 1.6 ± 0.01 |
| m2 | 0.7 ± 0.006 | 0.8 ± 0.007 | 1.9 ± 0.01 |
| m3 | 0.7 ± 0.007 | 0.3 ± 0.003 | 2.1 ± 0.02 |
| m4 | 0.4 ± 0.005 | 0.6 ± 0.006 | 1.6 ± 0.01 |
| m5 | 1.5 ± 0.01 | 2.2 ± 0.02 | 1.5 ± 0.01 |
| m6 | 2.4 ± 0.02 | 1.2 ± 0.03 | 2.3 ± 0.02 |
| Connecting Points | X (mm) | Y (mm) | Z (mm) |
|---|---|---|---|
| m1 | 0.8 ± 0.02 | 1.1 ± 0.02 | 0.6 ± 0.01 |
| m2 | 0.7 ± 0.01 | 1.1 ± 0.02 | 0.5 ± 0.009 |
| m3 | 0.9 ± 0.02 | 1.0 ± 0.01 | 2.9 ± 0.05 |
| m4 | 0.9 ± 0.02 | 0.9 ± 0.01 | 2.4 ± 0.04 |
| m5 | 1.1 ± 0.02 | 1.7 ± 0.03 | 2.4 ± 0.04 |
| m6 | 1.3 ± 0.03 | 1.7 ± 0.04 | 3.1 ± 0.05 |
© 2019 by the authors. Licensee MDPI, Basel, Switzerland. This article is an open access article distributed under the terms and conditions of the Creative Commons Attribution (CC BY) license (http://creativecommons.org/licenses/by/4.0/).
Share and Cite
Summa, S.; Gori, R.; Freda, L.; Castelli, E.; Petrarca, M. Development of a Dynamic Oriented Rehabilitative Integrated System (DORIS) and Preliminary Tests. Sensors 2019, 19, 3402. https://doi.org/10.3390/s19153402
Summa S, Gori R, Freda L, Castelli E, Petrarca M. Development of a Dynamic Oriented Rehabilitative Integrated System (DORIS) and Preliminary Tests. Sensors. 2019; 19(15):3402. https://doi.org/10.3390/s19153402
Chicago/Turabian StyleSumma, Susanna, Riccardo Gori, Luigi Freda, Enrico Castelli, and Maurizio Petrarca. 2019. "Development of a Dynamic Oriented Rehabilitative Integrated System (DORIS) and Preliminary Tests" Sensors 19, no. 15: 3402. https://doi.org/10.3390/s19153402
APA StyleSumma, S., Gori, R., Freda, L., Castelli, E., & Petrarca, M. (2019). Development of a Dynamic Oriented Rehabilitative Integrated System (DORIS) and Preliminary Tests. Sensors, 19(15), 3402. https://doi.org/10.3390/s19153402

