An Advanced IoT-based System for Intelligent Energy Management in Buildings
Abstract
1. Introduction
2. Tools and Methods
2.1. Literature Review
- Schneider Electric StruxureWare™ [23] is a platform of open, interoperable, and scalable software applications that provides energy managers with enterprise, operations or control level responsibility to optimise energy usage.
- Honeywell Attune Advisory Services enable on-going monitoring and optimisation of building energy performance. Attune is powered by cloud-based and Software as a Service (SaaS) technologies and energy and automation experts, which help facilities to determine how to best save energy, time and money [24].
- Siemens Synco™ is a control system for small and medium-size multipurpose buildings, such as shops, offices and apartments. The system primarily manages energy plants, controls and monitors the Heating, Ventilation, and Air Conditioning (HVAC) equipment in order to support the entire lifecycle of a building [25].
- Cylon Energy solution can be adapted to suit any type of building regardless of the Building Energy Management System or metering solution installed. It is based on a building energy monitoring system able to provide real-time (every 15 min) information on the energy usage and consumption in a building [26].
- eSight is an enterprise energy management software platform, 100% web-based, which offers different techniques for analysing energy usage and targeting areas to reduce energy consumption, costs and carbon by up to 30% [27].
- Enerit Systematic Energy Management Software promotes best practice energy management, offers complete coverage of IS0 50001 and aligns with Statement of Energy Performance (SEP) and Energy STAR [28].
- DEXCell Energy Manager is cloud-based and hardware-neutral (Manufacturer, City, US State abbrev. if applicable, Country). It combines advanced monitoring, analysis, alerts and reporting in an easy-to-use, scalable SaaS solution [29].
- Predictive Energy Optimization™ is Building IQ’s software platform, designed to improve the energy efficiency of large, complex commercial, public, and academic buildings [30].
- Ameresco’s Intelligent Solutions (AIS) energy data platform is comprised of a suite of services with its core energy efficiency offerings [31].
2.2. Adopted Approach
3. Internal Architecture
- Five data capturing modules, which collect data from different source (building’s data, energy production, energy prices, weather data and end-users’ behaviour).
- The semantic framework, which is a communication system that integrates data from multiple sources and domains using Semantic Web technologies.
- The action engine is an integrated solution for predicting the energy behaviour of buildings and to suggest actions to improve their energy efficiency. It can be integrated with existing middleware solutions to enhance them.
3.1. Data Capturing Modules
- Decentralized sensors indicate the real-time conditions on the spot by providing measurements of specific parameters such as the energy consumption, indoor temperature and humidity, etc.
- The module for Renewable Energy Sources (RES) production informs on the current level of self-production of energy of the connected renewable energy systems.
- The weather forecast module is able to provide a comparison of the forecast and the actual field conditions, for the creation of real-time energy balances.
- The energy prices module gives indication on the actual costs applicable for those who can adjust their energy contract to the current tariffs.
- The occupants’ feedback module is intended to gather the feedback about the comfort conditions of the occupants and other energy-related issues.
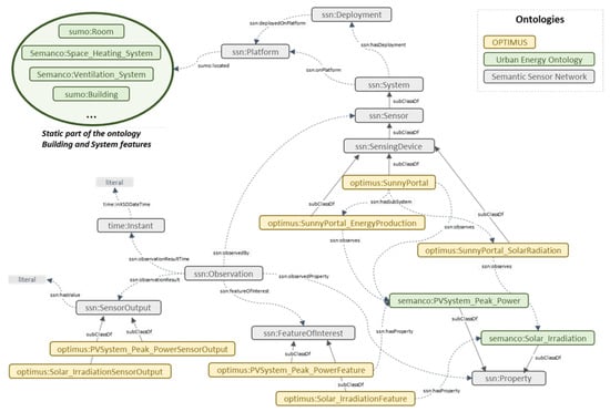
3.2. Semantic Framework
- stream: Name of the stream.
- owl_sensingdevice_class: Class name of the sensor.
- owl_sensingdevice_uri: URI for identifying the sensor triples.
- owl_observation_uri: URI for identifying the observation triples.
- owl_featureofinterest_uri: URI for identifying the feature of interest triples.
- owl_featureofinterest_class: Class name of the Feature of Interest. It is usually the name of the observed property with ‘Feature’ string concatenated at the end.
- owl_observedproperty_uri: URI for identifying the property observed triples.
- owl_observedproperty_class: Class name of the property observed.
- owl_sensoroutput_class: Class name of the Sensor Output. It is usually the name of the observed property with ‘SensorOutput’ string concatenated at the end.
3.3. Action Engine
- Building (management of occupancy, heating and cooling technical systems, indoor thermal comfort, air cooling through air-side economizer strategies);
- Building and RES production (management of the generation and on-site RES production and exploitation);
- Building, RES production and storage (management the operation of different energy flows towards energy cost reduction).
4. IoT-Based System
- The first group consists of five indicators and focuses on the building’s energy consumption, either electricity or fossil fuels, which is directly compared with the building’s surface. It includes both data from realized consumptions and projections for future ones (IGBT-11, IGBT-12, IGBT-13). The other two indicators that constitute the consumption group are a little bit more detailed (IGBT-14, IGBT-15). This group of indicators provides valuable information to the users groups, both for monitoring and taking action plans.
- The second group of indicators is more technical and focuses on the power efficiency, in order to address any malfunctions (IGBT-21, IGBT-22).
- The third group emphasizes on the energy management’s environmental impact, through calculating the damage that is done or is avoided, depending on the way that the consumed energy is produced. The group of indicators varies with the location of the building, as well as its features (IGBT-31, IGBT-32, IGBT-33).
- The fourth and last group of indicators, the monetary one, deals with the economic impact. It uses the consumptions’ data and projection and calculates the relevant cost (IGBT-41, IGBT-42, IGBT-43).
5. Pilot Appraisal
5.1. Impact Assessment Methodology
- Pre-action phase: The energy consumption can be assessed by means of inverse models or forward models. The inverse models are built through the real-time data collection related both to climate and users (input data) and to historical energy consumption (output data). The forward models are fed by data related to climate, users, equipment, lighting (input data) and by building features (fixed parameters). The historical energy consumption data are then used to calibrate the model.
- Pre action tailoring with post-action input data: In order to make the comparison between pre-action and post-action energy consumption consistent, the models (inverse or forward) developed in the previous phase need to be tailored. This means that the calibrated models are tailored considering the boundary conditions (climate and user) occurring in the post action phase.
- Post-action phase: In the post-action phase, the energy consumption can be assessed in two different ways: modification of the forward model through the application of the inference rules (when the implementation of the action plans is simulated); energy monitoring (when the action plans are actually implemented).
- Impact assessment: The impact of the action plans application can be assessed in four different ways: inverse model vs. inverse model; monitoring vs. forward model; monitoring vs. inverse model; forward model vs. forward model.
5.2. Building’s Characteristics
- 2 master generators,
- 7 relay modules,
- 9 I/O modules,
- 22 energy meter,
- 6 environmental sensors,
- 1 temperature sensor.
5.3. Baseline Scenario
5.4. Impact Analysis
- Optimising the boost time of the heating/cooling system taking into account the forecasting of the indoor air temperature and the occupancy levels of the building.
- Scheduling the set-point temperature by taking into consideration thermal comfort of the occupants. The users were able to choose different schedules and set point temperatures for each office.
5.5. Future Prospects
- “Pillars” applications, focusing on the street and road lighting control by analysing the lamps’ failures and reports’ crucial data for the local authorities.
- “Electrical Vehicle” applications, processing data from electric vehicles charging stations, namely those parking spaces where electric vehicles supply equipment, is used to charge vehicles.
6. Conclusions
Acknowledgments
Author Contributions
Conflicts of Interest
References
- Mega, V. Sustainable Cities for the Third Millennium: The Odyssey of Urban Excellence; Springer: Berlin, Germany, 2010; ISBN 978-1-4419-6036-8. [Google Scholar]
- EU—European Union. Cities of Tomorrow Challenges, Visions, Ways Forward; EU: Brussels, Belgium, 2011; Available online: http://ec.europa.eu/regional_policy/sources/docgener/studies/pdf/citiesoftomorrow/citiesoftomorrow_final.pdf (accessed on 18 December 2017).
- Caragliu, A.; Bo, C.D.; Nijkamp, P. Smart Cities in Europe; Series: Serie Research Memoranda Number 0048; Business Administration and Econometrics: Amsterdam, The Netherlands, 2014. [Google Scholar]
- Bakici, T.; Almirall, E.; Wareham, J. A Smart City Initiative: The Case of Barcelona. J. Knowl. Econ. 2013, 4, 135–148. [Google Scholar] [CrossRef]
- Mattoni, B.; Gugliermetti, F.; Bisegna, F. A Multilevel Method to Assess and Design the Renovation and Integration of Smart Cities. Sustain. Cities Soc. 2015, 15, 105–119. [Google Scholar] [CrossRef]
- Dagoumas, A. Modelling socio-economic and energy aspects of urban systems. Sustain. Cities Soc. 2014, 13, 192–206. [Google Scholar] [CrossRef]
- Khare, A.; Beckman, T.; Crouse, N. Cities addressing climate change: Introducing a tripartite model for sustainable partnership. Sustain. Cities Soc. 2011, 1, 227–235. [Google Scholar] [CrossRef]
- EC—European Commission. Directive 2012/27/EU of the European Parliament and of the Council of 25 October 2012 on Energy Efficiency; EU: Brussels, Belgium, 2012. [Google Scholar]
- EC—European Commission. Buildings. Available online: https://ec.europa.eu/energy/en/topics/energy-efficiency/buildings (accessed on 18 December 2017).
- Marinakis, V.; Doukas, H.; Karakosta, C.; Psarras, J. An Integrated System for Buildings’ Energy-Efficient Automation: Application in the Tertiary Sector. Appl. Energy 2013, 101, 6–14. [Google Scholar] [CrossRef]
- Marinakis, V.; Karakosta, C.; Doukas, H.; Androulaki, S.; Psarras, J. A Building Automation and Control Tool for Remote and Real Time Monitoring of Energy Consumption. Sustain. Cities Soc. 2013, 6, 11–15. [Google Scholar] [CrossRef]
- Marinakis, V.; Doukas, H.; Spiliotis, E.; Papastamatiou, I. Decision support for intelligent energy management in buildings using the thermal comfort model. Int. J. Comput. Intell. Syst. 2017, 10, 882–893. [Google Scholar] [CrossRef]
- Marinakis, V.; Papadopoulou, A.; Anastasopoulos, G.; Doukas, H.; Psarras, J. Advanced ICT Platform for Real-time Monitoring and Infrastructure Efficiency at the City Level. In Proceedings of the 6th International Conference on Information, Intelligence, Systems and Applications (IISA 2015), Corfu, Greece, 6–8 July 2015. [Google Scholar]
- Kylili, A.; Fokaides, P.A. European Smart Cities: The Role of Zero Energy Buildings. Sustain. Cities Soc. 2015, 15, 86–95. [Google Scholar] [CrossRef]
- Androulaki, S.; Doukas, H.; Marinakis, V.; Madrazo, L.; Zabbeta, N. Enabling Local Authorities to Produce Short-Term Energy Plans: A Multidisciplinary Decision Support Approach. Manag. Environ. Qual. 2015, 27, 146–166. [Google Scholar] [CrossRef]
- Doukas, H.; Marinakis, V.; Psarras, J. Current Trends of the Decision Support Systems for the Energy Performance of Buildings. In Proceedings of the 4th International Symposium and 26th National Conference on Operational Research, Chania, Greece, 4–6 June 2015. [Google Scholar]
- Papastamatiou, I.; Doukas, H.; Spiliotis, E.; Psarras, J. How “OPTIMUS” is a city in terms of energy optimization? e-SCEAF: A web based decision support tool for local authorities. Inf. Fusion 2016, 29, 149–161. [Google Scholar]
- Kramers, A.; Höjer, M.; Lövehagen, N.; Wangel, J. Smart sustainable cities—Exploring ICT solutions for reduced energy use in cities. Environ. Model. Softw. 2014, 56, 52–62. [Google Scholar] [CrossRef]
- Giffinger, R.; Fertner, C.; Kramar, H.; Kalasek, R. Smart Cities: Ranking of European Medium-Sized Cities; Center of Regional Science: Vienna, Austria, 2007. [Google Scholar]
- Corrado, V.; Ballarini, I.; Madrazo, L.; Nemirovskij, G. Data Structuring for the Ontological Modelling of Urban Energy Systems: The Experience of the SEMANCO Project. Sustain. Cities Soc. 2015, 14, 223–235. [Google Scholar] [CrossRef]
- Fotopoulou, E.; Zafeiropoulos, A.; Terroso-Sáenz, F.; Şimşek, U.; González-Vidal, A.; Tsiolis, G.; Gouvas, P.; Liapis, P.; Fensel, A.; Skarmeta, A. Providing Personalized Energy Management and Awareness Services for Energy Efficiency in Smart Buildings. Sensors 2017, 17, 2054. [Google Scholar] [CrossRef] [PubMed]
- Terroso-Saenz, F.; González-Vidal, A.; Ramallo-González, A.; Skarmeta, A. An open IoT platform for the management and analysis of energy data. Future Gener. Comput. Syst. 2017, 17. in press. [Google Scholar]
- EcoStruxure™ Power Monitoring Expert. Available online: http://www.schneider-electric.com/b2b/en/solutions/enterprise-solutions/enterprise-software-suites/index.jsp (accessed on 11 January 2018).
- Attune™ Advisory Services. Available online: http://hbsmicrosites.honeywell.com/HBSCDMS/Attune/ (accessed on 11 January 2018).
- Synco HVAC Building Automation. Available online: http://www.buildingtechnologies.siemens.com/bt/global/en/buildingautomation-hvac/building-automation/building-automation-for-small-applications-synco/pages/hvac-building-automation.aspx (accessed on 11 January 2018).
- Cylon Active Energy. Available online: http://www.cylon.com/about/cylon-active-energy.html (accessed on 11 January 2018).
- eSight. Available online: https://www.esightenergy.com/about/ (accessed on 12 January 2018).
- Enerit Systematic Energy Management Software. Available online: http://enerit.com/ (accessed on 12 January 2018).
- DEXCell Energy Manager. Available online: http://www.dexmatech.com/about-dexma/ (accessed on 12 January 2018).
- Predictive Energy Optimization™. Available online: https://buildingiq.com/products/predictive-control-old/buildingiq-platform/ (accessed on 12 January 2018).
- Ameresco’s Intelligent Solutions. Available online: https://ais2.ameresco.com/# (accessed on 12 January 2018).
- Loop Energy Saver. Available online: https://www.loopenergysaver.com/ (accessed on 12 January 2018).
- Origami Energy. Available online: https://origamienergy.com/ (accessed on 12 January 2018).
- NUUKA. Available online: http://www.nuukasolutions.com/home (accessed on 12 January 2018).
- OPTIWATTI. Available online: https://www.optiwatti.fi/ (accessed on 12 January 2018).
- Plugwise. Available online: https://www.plugwise.com/nl_NL/ (accessed on 13 January 2018).
- SMARKIA. Available online: http://www.smarkia.com/en (accessed on 13 January 2018).
- Bidgely. Available online: http://bidgely.com/solutions/ (accessed on 13 January 2018).
- Enetics. Available online: http://www.enetics.com/ (accessed on 13 January 2018).
- PlotWatt. Available online: http://www.plotwatt.com/ (accessed on 13 January 2018).
- Sicilia, A.; Costa, G.; Madrazo, L. Published Data in an Open Data Portal. Deliverable D3.1 of the OPTIMUS Project “OPTIMising the Energy USe in Cities with Smart Decision Support System”. 2015. Available online: http://optimus-smartcity.eu/ (accessed on 12 March 2017).
- Urban Energy Ontology. Available online: http://semanco-tools.eu/urban-enery-ontology (accessed on 16 July 2017).
- Semantic Sensor Network Ontology. Available online: http://www.w3.org/2005/Incubator/ssn/ssnx/ssn (accessed on 16 July 2017).
- Nemirovski, G.; Nolle, A.; Sicilia, Á.; Ballarini, I.; Corrado, V. Data Integration Driven Ontology Design, Case Study Smart City. In Proceedings of the 3rd International Conference on Web Intelligence, Mining and Semantics (WIMS ’13), Madrid, Spain, 12–14 June 2013. [Google Scholar]
- Compton, M.; Payam, B.; Bermudez, L.; García-Castro, R.; Corcho, O.; Cox, S.; Graybeal, J. The SSN ontology of the W3C semantic sensor network incubator group. Web Semant. 2012, 17, 25–32. [Google Scholar] [CrossRef]
- Optimus Repository. Available online: https://github.com/epu-ntua/optimusdss (accessed on 13 January 2018).
- Capozzoli, A.; Corrado, V.; Doukas, H.; Gorrino, A.; Piscitelli, M.; Rossi, M.; Spiliotis, V. Impact Analysis Report. Deliverable D4.5 of the OPTIMUS Project “OPTIMising the Energy USe in Cities with Smart Decision Support System”. 2016. Available online: http://optimus-smartcity.eu/ (accessed on 12 March 2017).
- Smart Appliances REFerence (SAREF) Ontology. Available online: https://sites.google.com/site/smartappliancesproject/ontologies/reference-ontology (accessed on 8 January 2018).







| DATA INTEGRATION | |||||
| Pillars | ❶ | ❷ | ❸ | ❹ | ❺ |
| Building‘s data | Energy Production | Energy prices | Weather data | End-Users’ Behaviour | |
| Input | Electricity consumption Indoor temperatures Presence detectors | Renewable Energy (PV) | Real time market data | Temperature Weather conditions | Comfort feeling Schedule/location |
| Decision supported | PREDICTION MODELS/RULES | ||||
![]() | |||||
| ACTION PLANS SUGGESTION | |||||
| Pillars | ENVIRONMENT-“WE” | USER-“I” | |||
| Benefits | CO2 emissions reduction Energy consumption cut down | Experience improvement Energy Cost | |||
| Existing Systems | Reference | Pillars Applied |
|---|---|---|
| Fotopoulos et al. (2017) | [21] | ❶ + ❷ + ❹ + ❺ |
| Terroso-Saenz et al. (2017) | [22] | ❶ + ❷ + ❹ + ❺ |
| Schneider Electric StruxureWare™ | [23] | ❶ + ❺ |
| Honeywell Attune Advisory Services | [24] | ❶ + ❷ |
| Siemens Synco™ | [25] | ❶ + ❷ |
| Cylon Energy solution | [26] | ❶ + ❷ |
| eSight | [27] | ❶ + ❷ + ❺ |
| Enerit Systematic Energy Management Software | [28] | ❶ + ❷ |
| DEXCell Energy Manager | [29] | ❶ + ❸ + ❹ |
| Predictive Energy Optimization™ | [30] | ❶ + ❸ + ❹ |
| Ameresco‘s Intelligent Solutions (AIS) | [31] | ❶ + ❷ |
| Loop Energy Saver, Origami Energy, NUUKA, OPTIWATTI, Plugwise, SMARKIA, Bidgely, Enetics and PlotWatt | [32,33,34,35,36,37,38,39,40] | ❶ + ❷ + ❹ + ❺ |
| Index | Indicator | |
|---|---|---|
| Title | Unit | |
| IGBT-11 | Electricity per floor area | KWh/m2 |
| IGBT-12 | Electricity per use per area | kWh/m2 for lighting, cooling, other uses |
| IGBT-13 | Fuel used for heating per floor area | lt/m2 (either Heating oil or Natural Gas) |
| IGBT-14 | Electrical Energy per floor area and user | kWh/m2/user or kWh/m2/manhour |
| IGBT-15 | Fuel used for heating per floor area and user | lt/m2/user |
| IGBT-21 | Electrical Power | kW (constant metering) |
| IGBT-22 | Electrical Power Factor | cosφ |
| IGBT-31 | CO2 emissions for Electricity per floor area | tn/m2 |
| IGBT-32 | CO2 emissions for Heating per floor area | Lt/m2 |
| IGBT-33 | Produced electricity by RES (PVs) | kWh |
| IGBT-41 | Cost of Electricity per floor area, | €/m2 |
| IGBT-42 | Cost of Fuel used for Heating per floor area | €/m2 |
| IGBT-43 | Monthly calculation of the electricity cost and potential projection through correlation with degree days and users | - |
© 2018 by the authors. Licensee MDPI, Basel, Switzerland. This article is an open access article distributed under the terms and conditions of the Creative Commons Attribution (CC BY) license (http://creativecommons.org/licenses/by/4.0/).
Share and Cite
Marinakis, V.; Doukas, H. An Advanced IoT-based System for Intelligent Energy Management in Buildings. Sensors 2018, 18, 610. https://doi.org/10.3390/s18020610
Marinakis V, Doukas H. An Advanced IoT-based System for Intelligent Energy Management in Buildings. Sensors. 2018; 18(2):610. https://doi.org/10.3390/s18020610
Chicago/Turabian StyleMarinakis, Vangelis, and Haris Doukas. 2018. "An Advanced IoT-based System for Intelligent Energy Management in Buildings" Sensors 18, no. 2: 610. https://doi.org/10.3390/s18020610
APA StyleMarinakis, V., & Doukas, H. (2018). An Advanced IoT-based System for Intelligent Energy Management in Buildings. Sensors, 18(2), 610. https://doi.org/10.3390/s18020610


