Evacuation Simulation in a Cultural Asset Fire: Impact of Fire Emergency Evacuation Facilities for People with Disabilities on Evacuation Time
Abstract
1. Introduction
2. Research Methods
2.1. Study Field
2.2. Research Instrument
2.3. Evacuation Behaviors
2.4. Parameter Setting
2.5. Limitations and Assumptions in the Study
3. Results
3.1. Scenario A: Original Evacuation Scenario
3.2. Scenario B: Evacuation Scenario of Barrier-Free Elevator
3.3. Scenario C: External Ramp Evacuation Scenario
3.4. Comparison of Simulation Scenarios
4. Conclusions and Recommendations
4.1. Conclusions
- Extract the evacuation density graphs from the software. The advised maximum number of accommodated people is 364.
- The use of traditional escape ladders enables people with disabilities to evacuate first, but simultaneously, it causes the congestion and stagnation of evacuees on the fire floor. Compared with the other two ways, the evacuation efficiency is the worst among the three.
- Barrier-free elevators are used for segregated evacuation, but at the time of 148 s, some disabled people have not yet escaped from the building in 148 s or have not even left the elevator. Compared with scenario A, the effect is very significant in evacuation and congestion resolution.
- External ramps will be used, which not only shortens the evacuation time but also brings better evacuation routes for people with disabilities, reducing the overall evacuation time and effectively improving the survival rate of people with disabilities and the evacuees. Compared to the other two, this simulation is the most ideal evacuation approach.
- When simulating the three evacuation scenarios, it is found that the slow speed of people with disabilities causes the initial crowd congestion or stagnation and such a problem directly affects the psychological level of the evacuees, causing group panic and an even larger number of casualties.
- The number of people in the three simulation scenarios is set in accordance with the Standard for Installation of Fire Safety Equipment Based on Use and Occupancy. The number of occupants is 730. The results show that the survival rates of the three simulation results are 49.8%, 65.4%, and 65.6%, and the numbers of occupants and survivors are relative numbers. If we want to increase the survival rate, we have to reduce the number of accommodated people. Therefore, the calculation should be based on the structures of cultural heritage buildings and the fire hazards, usage patterns, and allowable evacuation time. It is not the same as that of ordinary buildings. The current fire protection regulations shall be used to calculate the number of accommodated people.
4.2. Recommendations
- Add a special refuge and escape equipment for people with disabilities when planning the evacuation in cultural heritage buildings in the future.
- It is advised that the staff members should introduce the internal space planning and environment to the tourists before visiting to ensure that every tourist understands the evacuation route.
- It is advised that employees regularly implement disaster prevention education and training, and they should familiarize themselves with the evacuation routes and emergency situations when a fire occurs by means of actual drills.
- It is recommended to use firefighting equipment such as smoke alarms, detectors, and an alarm system to assist the evacuees in detecting a fire as soon as possible in order to evacuate as soon as possible, thereby improving the overall escape efficiency.
- Adding fire-resistant coatings to building structures can effectively improve the evacuation results.
- People with disabilities will be affected by other people at the beginning of the fire, which increases the overall evacuation time and reduces the efficiency of escape. This is understandable. We will continue to collect research data from related scholars and develop this issue in the future.
Author Contributions
Funding
Data Availability Statement
Acknowledgments
Conflicts of Interest
References
- Hegazy, S.M. Conservation of historical buildings—The Omani–French museum as a case study. HBRC J. 2015, 11, 264–274. [Google Scholar] [CrossRef][Green Version]
- Gravit, M.V.; Serdjuks, D.; Bardin, A.V.; Prusakov, V.A.; Buka-Vaivade, K. Fire Design Methods for Structures with Timber Framework. Mag. Civ. Eng. 2019, 85, 92–106. [Google Scholar]
- Johnson, A.; Zheng, S.; Nakano, A.; Schierle, G.; Choi, J.H. Adaptive Kinetic Architecture and Collective Behavior: A Dynamic Analysis for Emergency Evacuation. Buildings 2019, 9, 44. [Google Scholar] [CrossRef]
- Sagun, A.; Anumba, C.J.; Bouchlaghem, D. Designing Buildings to Cope with Emergencies: Findings from Case Studies on Exit Preferences. Buildings 2013, 3, 442–461. [Google Scholar] [CrossRef]
- Ronchi, E.; Reneke, P.A.; Peacock, R.D. A Method for the Analysis of Behavioural Uncertainty in Evacuation Modelling. Fire Technol. 2014, 50, 1545–1571. [Google Scholar] [CrossRef]
- Kobes, M.; Helsloot, I.; De Vries, B.; Post, J.G. Building safety and human behaviour in fire: A literature review. Fire Saf. J. 2010, 45, 1–11. [Google Scholar] [CrossRef]
- Kuligowski, E.D.; Walpole, E.H.; Lovreglio, R.; McCaffrey, S. Modeling Evacuation Decision-making in the 2016 Chimney Tops 2 Fire in Gatlinburg, TN Suggested running head: Modeling Evacuation Decision-making. Int. J. Wildland Fire 2020, 29, 1120–1132. [Google Scholar] [CrossRef]
- Gerges, M.; Demian, P.; Adamu, Z. Customising Evacuation Instructions for High-Rise Residential Occupants to Expedite Fire Egress: Results from Agent-Based Simulation. Fire 2021, 4, 21. [Google Scholar] [CrossRef]
- Gravit, M.; Dmitriev, I.; Kuzenkov, K. Estimation of evacuation time with elevator application in high-rise buildings. MATEC Web Conf. 2018, 245, 1–8. [Google Scholar] [CrossRef][Green Version]
- Feng, Y.; Duives, D.C.; Hoogendoorn, S.P. Using virtual reality to study pedestrian exit choice behaviour during evacuations. Saf. Sci. 2020, 137, 105158. [Google Scholar] [CrossRef]
- Runefors, M.; Jonsson, A.; Bonander, C. Factors contributing to survival and evacuation in residential fires involving older adults in Sweden. Fire Saf. J. 2021, 122, 103354. [Google Scholar] [CrossRef]
- Chen, C.; Sun, H.; Lei, P.; Zhao, D.; Shi, C. An extended model for crowd evacuation considering pedestrian panic in artificial attack. Phys. A: Stat. Mech. Its Appl. 2021, 571, 125833. [Google Scholar] [CrossRef]












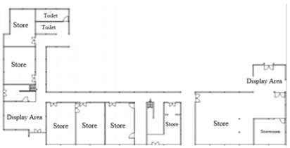
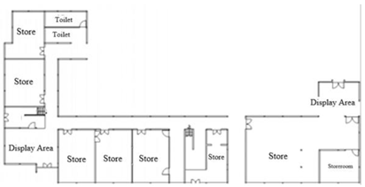
| Distribution of Main Uses of Each Floor | |
|---|---|
| First Floor | ![]() |
| Second Floor | ![]() |
| Third Floor (▲: Fire source location) | ![]() |
| Emergency exit temperature during fire | ![]() |
| Exterior View (Source: Chiayi City Cultural Bureau) | ![]() |
| Model and Settings | |
|---|---|
| 3D Model | ![]() |
| Shortest Evacuation Traffic Flow | ![]() |
| Exit Settings | ![]() |
| Stairs Settings | ![]() |
| Elevator Settings | ![]() |
| Hazard Scenario. | Human Tolerance Limits | ||||
|---|---|---|---|---|---|
| BSI | SFPE | NFPA 130 | Takeyoshi Tanaka | ||
| Smoke Height | -- | -- | ≧1.8 m | ≧1.8 m | |
| Fire Temperature | ≦60 °C | ≦65 °C | ≦60 °C | 45 °C pain | |
| Smoke Toxicity | CO | ≦1400 ppm | ≦1400 ppm | ≦1500 ppm | ≦1200 ppm |
| CO2 | ≦6% | ≦5% | -- | <20% | |
| O2 | ≧12% | ≧12% | -- | ≧12% | |
| HCN | -- | ≦80 ppm | -- | <270 ppm | |
| Visibility | ≧2 m | -- | ≧10 m | -- | |
| Heat Radiation Strength | ≦2.5 kW/m² | ≦2.5 kW/m² | ≦6.3 kW/m² | ≦4 kW/m² pain within 10 s | |
| Title | Parameter Setting |
|---|---|
| Total Number of Simulated People | 730 |
| Edit Profile | Young Adult (30 y): 1.4 m/s, 1.8 m Child (14 y): 1.25 m/s, 1.46 m Elderly Person (65 y): 0.6 m/s, 1.7 m |
| Wheelchair | Specification: 2.15 m2 Speed: 0.55 m/s |
| Elevators | Specification: 4.8 m2 Speed: 2.5 m/s |
| Fixed Number of Seats in the Restaurant | Specification: 0.5 m2 Quantity: 240 |
| Occupants | Total Number (1st Floor): 260 Staff Members: 7 Young Adults (30 y): 90 Children (14 y):80 Elderly People (65 y): 80 Wheelchairs: 5 Assistants: 5 |
| Total Number (2nd Floor): 220 Staff Members: 6 Young Adults (30 y): 80 Children (14 y): 70 Elderly People (65 y): 60 Wheelchairs: 5 Assistants: 5 | |
| Total Number (3rd Floor): 250 Staff Members: 4 Young Adults (30 y): 90 Children (14 y): 80 Elderly People (65 y): 70 Wheelchairs: 5 Assistants: 5 | |
| Behaviors | Go to Exit Assist Wait for Assist Go to (00,00,00) m Wait (0.0) s |
| Scenario Simulation | Overall (730 People) Evacuation Time (Seconds) | 3rd Floor (250 People) Evacuation Time (Seconds) | Number of People Successfully Evacuated in 148 s | Number of People Trapped in 148 s | Advised Maximum Number of Accommodated People |
|---|---|---|---|---|---|
| Traditional Escape Ladder | 440 | 329 | 364 | 366 | 364 |
| Barrier-Free Elevator | 332 | 199 | 477 | 253 | 477 |
| External Ramp | 320 | 186 | 479 | 251 | 479 |
Disclaimer/Publisher’s Note: The statements, opinions and data contained in all publications are solely those of the individual author(s) and contributor(s) and not of MDPI and/or the editor(s). MDPI and/or the editor(s) disclaim responsibility for any injury to people or property resulting from any ideas, methods, instructions or products referred to in the content. |
© 2022 by the authors. Licensee MDPI, Basel, Switzerland. This article is an open access article distributed under the terms and conditions of the Creative Commons Attribution (CC BY) license (https://creativecommons.org/licenses/by/4.0/).
Share and Cite
Hu, J.-J.; Wu, H.-Y.; Chou, C.-C. Evacuation Simulation in a Cultural Asset Fire: Impact of Fire Emergency Evacuation Facilities for People with Disabilities on Evacuation Time. Fire 2023, 6, 10. https://doi.org/10.3390/fire6010010
Hu J-J, Wu H-Y, Chou C-C. Evacuation Simulation in a Cultural Asset Fire: Impact of Fire Emergency Evacuation Facilities for People with Disabilities on Evacuation Time. Fire. 2023; 6(1):10. https://doi.org/10.3390/fire6010010
Chicago/Turabian StyleHu, Jyh-Jye, Hao-Yu Wu, and Chung-Chyi Chou. 2023. "Evacuation Simulation in a Cultural Asset Fire: Impact of Fire Emergency Evacuation Facilities for People with Disabilities on Evacuation Time" Fire 6, no. 1: 10. https://doi.org/10.3390/fire6010010
APA StyleHu, J.-J., Wu, H.-Y., & Chou, C.-C. (2023). Evacuation Simulation in a Cultural Asset Fire: Impact of Fire Emergency Evacuation Facilities for People with Disabilities on Evacuation Time. Fire, 6(1), 10. https://doi.org/10.3390/fire6010010











