Associations between the Objectively Measured Office Environment and Workplace Step Count and Sitting Time: Cross-Sectional Analyses from the Active Buildings Study
Abstract
1. Background
2. Methods
2.1. Primary Outcomes: Workplace Step Count and Sitting Time
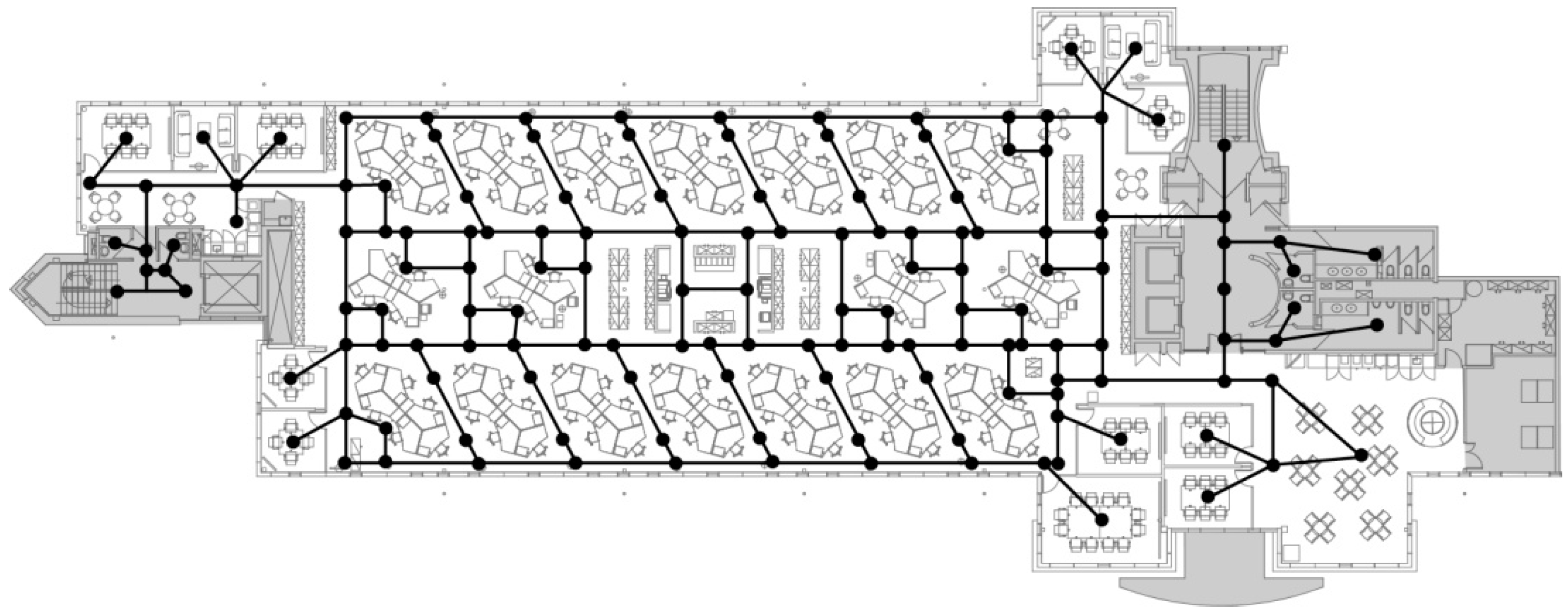
2.2. Primary Exposure: Spatial Variables
2.3. Covariates
2.4. Analyses
3. Results
4. Discussion
5. Conclusions
Supplementary Materials
Author Contributions
Acknowledgments
Conflicts of Interest
References
- Lee, I.M.; Shiroma, E.J.; Lobelo, F.; Puska, P.; Blair, S.N.; Katzmarzyk, P.T. Effect of physical inactivity on major non-communicable diseases worldwide: An analysis of burden of disease and life expectancy. Lancet 2012, 380, 219–229. [Google Scholar] [CrossRef]
- World Health Organisation. Global Status Report on Noncommunicable Disease; World Health Organisation: Geneva, Switzerland, 2014; Available online: http://apps.who.int/iris/bitstream/10665/148114/1/9789241564854_eng.p (accessed on 1 February 2016).
- Ekelund, U.; Ward, H.; Norat, T.; Luan, J.; May, A.M.; Weiderpass, E.; Sharp, S.J.; Overvad, K.; Østergaard, J.N.; Tjønneland, A.; et al. Physical activity and all-cause mortality across levels of overall and abdominal adiposity in European men and women: The European Prospective Investigation into Cancer and Nutrition Study (EPIC). Am. J. Clin. Nutr. 2015, 101, 613–621. [Google Scholar] [CrossRef] [PubMed]
- Bertrais, S.; Beyeme-Ondoua, J.P.; Czernichow, S.; Galan, P.; Hercberg, S.; Oppert, J.M. Sedentary behaviors, physical activity, and metabolic syndrome in middle-aged French subjects. Obes. Res. 2005, 13, 936–944. [Google Scholar] [CrossRef] [PubMed]
- Thorp, A.A.; Owen, N.; Neuhaus, M.; Dunstan, D.W. Sedentary behaviors and subsequent health outcomes in adults a systematic review of longitudinal studies, 1996–2011. Am. J. Prev. Med. 2011, 41, 207–215. [Google Scholar] [CrossRef] [PubMed]
- Teychenne, M.; Ball, K.; Salmon, J. Sedentary behavior and depression among adults: A review. Int. J. Behav. Med. 2010, 17, 246–254. [Google Scholar] [CrossRef] [PubMed]
- Grontved, A.; Hu, F.B. Television viewing and risk of type 2 diabetes, cardiovascular disease, and all-cause mortality: A meta-analysis. JAMA 2011, 305, 2448–2455. [Google Scholar] [CrossRef] [PubMed]
- Ekelund, U.; Steene-Johannessen, J.; Brown, W.J.; Fagerland, M.W.; Owen, N.; Powell, K.E.; Bauman, A.; Lee, I.M. Does physical activity attenuate, or even eliminate, the detrimental association of sitting time with mortality? A harmonized meta-analysis of data from more than 1 million men and women. Lancet 2016, 388, 1302–1310. [Google Scholar] [CrossRef]
- Health and Social Care Information Centre. Health Survey for England 2008: Physical Activity and Fitness; Health and Social Care Information Centre: London, UK, 2009; Available online: http://digital.nhs.uk/catalogue/PUB00430 (accessed on 1 February 2016).
- Tudor-Locke, C.; Craig, C.L.; Brown, W.J.; Clemes, S.A.; De Cocker, K.; Giles-Corti, B.; Hatano, Y.; Inoue, S.; Matsudo, S.M.; Mutrie, N.; et al. How many steps/day are enough? For adults. IJBNPA 2011, 8, 79. [Google Scholar] [CrossRef] [PubMed]
- Smith, L.; Hamer, M.; Ucci, M.; Marmot, A.; Gardner, B.; Sawyer, A.; Wardle, J.; Fisher, A. Weekday and weekend patterns of objectively measured sitting, standing, and stepping in a sample of office-based workers: The Active Buildings study. BMC Public Health 2015, 15, 9. [Google Scholar] [CrossRef] [PubMed]
- Conn, V.S.; Hafdahl, A.R.; Cooper, P.S.; Brown, L.M.; Lusk, S.L. Meta-analysis of workplace physical activity interventions. Am. J. Prev. Med. 2009, 37, 330–339. [Google Scholar] [CrossRef] [PubMed]
- Abraham, C.; Graham-Rowe, E. Are worksite interventions effective in increasing physical activity? A systematic review and meta-analysis. Health Psychol. Rev. 2009, 3, 108–144. [Google Scholar] [CrossRef]
- Chau, J.Y.; der Ploeg, H.P.; van Uffelen, J.G.; Wong, J.; Riphagen, I.; Healy, G.N.; Gilson, N.D.; Dunstan, D.W.; Bauman, A.E.; Owen, N.; et al. Are workplace interventions to reduce sitting effective? A systematic review. Prev. Med. 2010, 51, 352–356. [Google Scholar] [CrossRef] [PubMed]
- Saelens, B.E.; Handy, S.L. Built environment correlates of walking: A review. Med. Sci. Sport Exerc. 2008, 40, S550–S566. [Google Scholar] [CrossRef] [PubMed]
- Badland, H.M.; Schofield, G.M.; Garrett, N. Travel behavior and objectively measured urban design variables: Associations for adults traveling to work. Health Place 2008, 14, 85–95. [Google Scholar] [CrossRef] [PubMed]
- Eves, F.F.; Webb, O.J. Worksite interventions to increase stair climbing; reasons for caution. Prev. Med. 2006, 43, 4–7. [Google Scholar] [CrossRef] [PubMed]
- Eves, F.F.; Webb, O.J.; Mutrie, N. A workplace intervention to promote stair climbing: Greater effects in the overweight. Obesity 2006, 14, 2210–2216. [Google Scholar] [CrossRef] [PubMed]
- Zimring, C.; Joseph, A.; Nicoll, G.L.; Tsepas, S. Influences of building design and site design on physical activity: Research and intervention opportunities. Am. J. Prev. Med. 2005, 28, 186–193. [Google Scholar] [CrossRef] [PubMed]
- Duncan, M.J.; Rashid, M.; Vandelanotte, C.; Cutumisu, N.; Plotnikoff, R.C. Development and reliability testing of a self-report instrument to measure the office layout as a correlate of occupational sitting. IJBNPA 2013, 10, 16. [Google Scholar] [CrossRef] [PubMed]
- Jancey, J.M.; McGann, S.; Creagh, R.; Blackford, K.D.; Howat, P.; Tye, M. Workplace building design and office-based workers’ activity: A study of a natural experiment. Aust. N. Z. J. Public Health 2016, 40, 78–82. [Google Scholar] [CrossRef] [PubMed]
- Hallman, D.M.; Mathiassen, S.E.; Jahncke, H. Sitting patterns after relocation to activity-based offices: A controlled study of a natural intervention. Prev. Med. 2018, 111, 384–390. [Google Scholar] [CrossRef] [PubMed]
- Sawyer, A.; Smith, L.; Ucci, M.; Jones, R.; Marmot, A.; Fisher, A. Perceived office environments and occupational physical activity in office-based workers. Occup. Med. 2017, 67, 260–267. [Google Scholar] [CrossRef] [PubMed]
- Smith, L.; Ucci, M.; Marmot, A.; Spinney, R.; Laskowski, M.; Sawyer, A.; Konstantatou, M.; Hamer, M.; Ambler, G.; Wardle, J.; et al. Active buildings: Modelling physical activity and movement in office buildings. An observational study protocol. BMJ Open 2013, 3, e004103. [Google Scholar] [CrossRef] [PubMed]
- Grant, P.M.; Ryan, C.G.; Tigbe, W.W.; Granat, M.H. The validation of a novel activity monitor in the measurement of posture and motion during everyday activities. Br. J. Sport Med. 2006, 40, 992–997. [Google Scholar] [CrossRef] [PubMed]
- Hart, T.L.; Swartz, A.M.; Cashin, S.E.; Strath, S.J. How many days of monitoring predict physical activity and sedentary behaviour in older adults? IJBNPA 2011, 8, 62. [Google Scholar] [CrossRef] [PubMed]
- Matthews, C.E.; Ainsworth, B.E.; Thompson, R.W.; Bassett, D.R. Sources of variance in daily physical activity levels as measured by an accelerometer. Med. Sci. Sports Exerc. 2002, 34, 1376–1381. [Google Scholar] [CrossRef] [PubMed]
- Sailer, K.; McCulloh, I. Social networks and spatial configuration—How office layouts drive social interaction. Soc. Netw. 2012, 34, 47–58. [Google Scholar] [CrossRef]
- Spinney, R.; Smith, L.; Ucci, M.; Fisher, A.; Konstantatou, M.; Sawyer, A.; Wardle, J.; Marmot, A. Indoor tracking to understand physical activity and sedentary behaviour: Exploratory study in UK office buildings. PLoS ONE 2015, 10, e0127688. [Google Scholar] [CrossRef] [PubMed]

| Metric | Mean | Range |
|---|---|---|
| Gross Internal Area (GIA; m2) | 1418.06 | 535.99, 2978.12 |
| Net Internal Area (NIA; m2) | 1132.177 | 370.55, 2472.22 |
| Net Useable Area (NUA; m2) | 838.43 | 293.98, 2014.82 |
| Number of workstations | 123.48 | 52.00, 254.00 |
| Gross Internal Density (m2/workstation) | 12.15 | 7.68, 25.67 |
| Net Internal Density (m2/workstation) | 9.31 | 5.45, 18.24 |
| Net Useable Density (m2/workstation) | 6.80 | 4.56, 13.12 |
| Participant Characteristics (n = 131) | Mean (SD) | % |
|---|---|---|
| Age (years) | 39.38 (10.74) | |
| Sex | ||
| Male | 42 | |
| Female | 54 | |
| Missing | 4 | |
| Ethnicity | ||
| White | 81 | |
| Non-white | 15 | |
| Missing | 5 | |
| Job role | ||
| Professional-managerial | 71 | |
| Telephone-administrative | 22 | |
| Missing | 7 | |
| Income (£) | 31,244 (42,263) | |
| BMI | 25.64 (4.49) | |
| Workplace physical activity and sitting time | ||
| Step count/hour (steps) | 444 (210) | |
| Step count/workday (steps) | 3412 (1919) | |
| Sitting time/workday (hours) | 5.46 (1.62) | |
| Sitting time/hour (hours) | 0.70 (0.15) | |
| Spatial variables | ||
| Distance office destinations (metres) | 69.38 (15.09) | |
| Distance office destinations (edges) | 14.04 (5.88) | |
| Distance nearest office destinations (metres) | 39.38 (15.10) | |
| Distance nearest office destinations (edges) | 14.04 (5.89) | |
| Distance workstations on floor (metres) | 32.48 (15.06) | |
| Distance workstations on floor (edges) | 12.50 (5.92) | |
| Visibility standing | 45.96 (5.92) | |
| Visibility sitting | 6.34 (5.00) | |
| Closeness (turns) | 2.50 (0.72) | |
| Closeness (angular deviation) | 233.76 (65.00) |
| Simple Models | Adjusted Models | |||||
|---|---|---|---|---|---|---|
| B | 95% CI | p | B | 95% CI | p | |
| Mean distance to office destinations (excl. workstations) | ||||||
| All destinations on floor (metres) | −4.36 | −6.80, −1.92 | 0.001 | −4.66 | −8.12, −1.12 | 0.009 |
| All destinations on floor (edges) | −9.77 | −16.11, −3.43 | 0.003 | −9.08 | −17.81, −0.35 | 0.042 |
| Nearest destinations (metres) | −7.80 | −12.67, −2.93 | 0.002 | −6.45 | −11.88, −0.41 | 0.036 |
| Nearest destinations (edges) | −21.20 | −34.05, −8.35 | 0.001 | −17.32 | −32.66, −1.97 | 0.027 |
| Mean distance to workstations on floor | ||||||
| All workstations on floor (metres) | −3.29 | −5.74, −0.822 | 0.009 | −3.02 | −6.53, 0.501 | 0.091 |
| All workstations on floor (edges) | −7.42 | −13.71, −1.13 | 0.021 | −5.28 | −13.94, 3.38 | 0.229 |
| Visibility of other workstations | ||||||
| Visibility standing | −2.26 | −3.33, −1.16 | 0.001 | −2.35 | −3.53, −1.18 | <0.000 |
| Visibility sitting | −3.47 | −11.07, 4.13 | 0.368 | −4.48 | −13.25, 4.24 | 0.314 |
| Workstation ‘closeness centrality’ | ||||||
| Closeness (turns) | −62.40 | −113.39, −11.39 | 0.017 | −47.31 | −102.65, 8.03 | 0.093 |
| Closeness (angular deviation) | −0.44 | −1.02, 0.14 | 0.132 | −0.31 | −0.94, 0.32 | 0.331 |
| Simple Models | Adjusted Models | |||||
|---|---|---|---|---|---|---|
| B | 95% CI | p | B | 95% CI | p | |
| Mean distance to office destinations (excl. workstations) | ||||||
| All destinations on floor (metres) | 0.00 | −0.001, 0.002 | 0.639 | 0.000 | 0.000, 0.001 | 0.092 |
| All destinations on floor (edges) | 0.002 | −0.003, 0.006 | 0.534 | 0.001 | −0.002, 0.003 | 0.568 |
| Nearest destinations (metres) | 0.000 | −0.003, 0.004 | 0.855 | 0.000 | −0.004, 0.005 | 0.866 |
| Nearest destinations (edges) | 0.004 | −0.006, 0.014 | 0.446 | 0.004 | −0.008, 0.016 | 0.512 |
| Mean distances to all workstations on floor | ||||||
| All workstations on floor (metres) | 0.001 | −0.001, 0.002 | 0.497 | 0.001 | −0.001, 0.003 | 0.693 |
| All workstations on floor (edges) | 0.001 | −0.003, 0.006 | 0.594 | −0.004 | −0.007, 0.006 | 0.989 |
| Visibility of other workstations | ||||||
| Visibility standing | 0.001 | 0.000, 0.001 | 0.209 | 0.001 | 0.000, 0.001 | 0.129 |
| Visibility sitting | 0.004 | −0.002, 0.009 | 0.202 | 0.003 | −0.004, 0.009 | 0.448 |
| Workstation ‘closeness centrality’ | ||||||
| Closeness (turns) | 0.03 | −0.008, 0.068 | 0.126 | 0.034 | −0.007, 0.076 | 0.102 |
| Closeness (angular deviation) | 0.000 | 0.000, 0.001 | 0.158 | 0.002 | −0.005, 0.008 | 0.641 |
© 2018 by the authors. Licensee MDPI, Basel, Switzerland. This article is an open access article distributed under the terms and conditions of the Creative Commons Attribution (CC BY) license (http://creativecommons.org/licenses/by/4.0/).
Share and Cite
Fisher, A.; Ucci, M.; Smith, L.; Sawyer, A.; Spinney, R.; Konstantatou, M.; Marmot, A. Associations between the Objectively Measured Office Environment and Workplace Step Count and Sitting Time: Cross-Sectional Analyses from the Active Buildings Study. Int. J. Environ. Res. Public Health 2018, 15, 1135. https://doi.org/10.3390/ijerph15061135
Fisher A, Ucci M, Smith L, Sawyer A, Spinney R, Konstantatou M, Marmot A. Associations between the Objectively Measured Office Environment and Workplace Step Count and Sitting Time: Cross-Sectional Analyses from the Active Buildings Study. International Journal of Environmental Research and Public Health. 2018; 15(6):1135. https://doi.org/10.3390/ijerph15061135
Chicago/Turabian StyleFisher, Abi, Marcella Ucci, Lee Smith, Alexia Sawyer, Richard Spinney, Marina Konstantatou, and Alexi Marmot. 2018. "Associations between the Objectively Measured Office Environment and Workplace Step Count and Sitting Time: Cross-Sectional Analyses from the Active Buildings Study" International Journal of Environmental Research and Public Health 15, no. 6: 1135. https://doi.org/10.3390/ijerph15061135
APA StyleFisher, A., Ucci, M., Smith, L., Sawyer, A., Spinney, R., Konstantatou, M., & Marmot, A. (2018). Associations between the Objectively Measured Office Environment and Workplace Step Count and Sitting Time: Cross-Sectional Analyses from the Active Buildings Study. International Journal of Environmental Research and Public Health, 15(6), 1135. https://doi.org/10.3390/ijerph15061135
