Sign in to use this feature.

Years

Between: -

Subjects

remove_circle_outline
remove_circle_outline
remove_circle_outline
remove_circle_outline
remove_circle_outline
remove_circle_outline
remove_circle_outline
remove_circle_outline
remove_circle_outline

Journals

remove_circle_outline
remove_circle_outline
remove_circle_outline
remove_circle_outline
remove_circle_outline
remove_circle_outline

Article Types

Countries / Regions

remove_circle_outline
remove_circle_outline
remove_circle_outline

Search Results (457)

Search Parameters:
Keywords = nitrous oxide (N2O) emission

Order results
Result details
Results per page
Select all
Export citation of selected articles as:
23 pages, 3725 KB  
Article
Effect of Conventional Nitrogen Fertilization on Methane Uptake by and Emissions of Nitrous Oxide and Nitric Oxide from a Typical Cropland During a Maize Growing Season
by Zhenyong Tian, Yimeng Li, Kai Wang, Rui Wang, Yuting Zhang, Yi Sun, Shenghui Han, Zhisheng Yao, Chunyan Liu, Jing Li, Siqi Li, Xiao Chen, Yong Li and Xunhua Zheng
Atmosphere 2025, 16(12), 1354; https://doi.org/10.3390/atmos16121354 - 29 Nov 2025
Viewed by 132
Abstract
Conventional nitrogen fertilization in a maize cropping system enhances the soil’s methane (CH4) sink but exacerbates emissions of nitrous oxide (N2O) and nitric oxide (NO). This study demonstrates that conventional nitrogen application (UN) increased CH4 uptake by 154%, [...] Read more.
Conventional nitrogen fertilization in a maize cropping system enhances the soil’s methane (CH4) sink but exacerbates emissions of nitrous oxide (N2O) and nitric oxide (NO). This study demonstrates that conventional nitrogen application (UN) increased CH4 uptake by 154%, while elevating N2O and NO emissions by 190% and 301%, respectively, compared to zero nitrogen plots (N0). Fertilization fundamentally reconfigured the regulatory mechanisms governing gas fluxes: under UN, fluxes were controlled by a complex interplay of nitrogen substrates, carbon availability, moisture, and temperature, whereas under N0, CH4 uptake exhibited significantly enhanced temperature sensitivity (with Q10 increasing from 1.06 to 7.54) and nitrogen oxide emissions became more dependent on native ammonium and extractable organic carbon. Crucially, nitrogen withdrawal reduced soil ammonium by 37.1% without altering non-nitrogen soil properties, including temperature, moisture, and labile carbon pools. Collectively, these findings are consistent with the concept of nitrogen saturation under conventional fertilization rates. Optimizing these rates presents a significant opportunity to mitigate greenhouse gas emissions and air pollution while improving nitrogen use efficiency, thereby aligning agricultural production with climate goals and public health objectives without destabilizing short-term soil function. Full article
(This article belongs to the Special Issue Early Career Scientists’ (ECSs) Contributions to Atmosphere)
Show Figures

Figure 1

21 pages, 1253 KB  
Review
Advancements in Microbial Nitrogen Pathways for Sustainable Wastewater Treatment
by Muhammad Shaaban, Kaiyan Zhou, Behnam Asgari Lajayer, Lei Wu, Aneela Younas and Yupeng Wu
Water 2025, 17(23), 3409; https://doi.org/10.3390/w17233409 - 29 Nov 2025
Viewed by 114
Abstract
Over the past few decades, the discovery of novel microbial processes, biochemical reactions, and previously uncharacterized microorganisms has significantly enhanced our understanding of nitrogen (N) cycling across terrestrial and aquatic ecosystems, including engineered environments such as wastewater treatment systems. These scientific advancements are [...] Read more.
Over the past few decades, the discovery of novel microbial processes, biochemical reactions, and previously uncharacterized microorganisms has significantly enhanced our understanding of nitrogen (N) cycling across terrestrial and aquatic ecosystems, including engineered environments such as wastewater treatment systems. These scientific advancements are catalyzing a paradigm shift toward treatment strategies that are not only energy-efficient and cost-effective, but also environmentally sustainable, with the added benefit of mitigating greenhouse gas emissions. The current review highlights recent breakthroughs in microbial N cycling, with particular emphasis on their practical applications in wastewater treatment. Emerging processes, such as nitrous oxide (N2O) mitigation, electro-anammox, ferric iron-dependent ammonium oxidation (Feammox), and complete ammonia oxidation (comammox), offer promising strategies for sustainable and low-energy N removal. Nevertheless, a significant challenge persists in translating these laboratory-scale innovations into full-scale, real-world applications, especially within decentralized treatment infrastructures. Bridging this gap is essential for realizing robust, low-carbon, and sustainable wastewater management systems in the decades to come. Full article
(This article belongs to the Special Issue Advances in Biological Technologies for Wastewater Treatment)
Show Figures

Figure 1

26 pages, 5195 KB  
Article
Spatiotemporal Variability of Greenhouse Gas Concentrations at the WMO/GAW Observational Sites in Korea
by Ho Yeon Shin, Jaemin Kim, Daegeun Shin, Sumin Kim, Sunran Lee and Yun Gon Lee
Atmosphere 2025, 16(12), 1352; https://doi.org/10.3390/atmos16121352 - 28 Nov 2025
Viewed by 29
Abstract
Atmospheric greenhouse gases (GHGs) affect Earth’s radiation balance and are the primary drivers of climate change. This study analyzed the spatiotemporal variability of carbon dioxide (CO2), methane (CH4), and nitrous oxide (N2O) at domestic World Meteorological Organization/Global [...] Read more.
Atmospheric greenhouse gases (GHGs) affect Earth’s radiation balance and are the primary drivers of climate change. This study analyzed the spatiotemporal variability of carbon dioxide (CO2), methane (CH4), and nitrous oxide (N2O) at domestic World Meteorological Organization/Global Atmosphere Watch (WMO/GAW) sites located at Anmyeondo (AMY), Jeju Gosan, and Ulleungdo, examining the local influences on GHG variations and comparing the relationships between gases. Long-term records from the AMY site were used to investigate temporal changes in CO2–CH4. The results showed that short-term variations were influenced by local emissions, sink processes, and anthropogenic signals, whereas medium-to-long-term variations displayed clear seasonality driven by vegetation and meteorological changes, with continuously increasing trends. The sites strongly reflected the effects of nearby point sources, and the ∆CO2–∆CH4 relationships revealed site-specific spatiotemporal differences. At AMY, 46–49% of top-quartile CO2, CH4, and N2O enhancements occurred under easterly winds from nearby industrial and agricultural sources, whereas 14–16% under northwesterly flow indicated episodic transport from eastern China, highlighting the site’s combined exposure to domestic and foreign emissions. The observed strengthening long-term ∆CO2–∆CH4 correlation may be related to continuously increasing emissions in East Asia. However, uncertainties remain, owing to changes resulting from the 2012 instrument replacement and calibration scale. Overall, this study provides baseline insights into domestic GHG variability and offers fundamental information for understanding East Asian emissions and supporting climate policy. Full article
(This article belongs to the Special Issue Advances in Greenhouse Gas Emissions from Agroecosystems)
Show Figures

Figure 1

16 pages, 983 KB  
Article
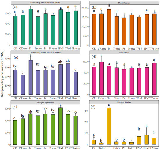
Effects of Different Sod-Seeding Patterns on Soil Properties, Nitrogen Cycle Genes, and N2O Mitigation in Peach Orchards
by Zhuo Pang, Yufeng Li, Hengkang Xu, Guofang Zhang, Chao Chen, Anxiang Lu and Haiming Kan
Agronomy 2025, 15(12), 2744; https://doi.org/10.3390/agronomy15122744 - 28 Nov 2025
Viewed by 116
Abstract
To clarify the role and mechanism of sod-seeding patterns in improving soil fertility and mitigating nitrous oxide (N2O) emissions in peach orchards, we conducted a study since 2023. Taking clean tillage (CK) as the control, three sod-seeding patterns—Trifolium repens [...] Read more.
To clarify the role and mechanism of sod-seeding patterns in improving soil fertility and mitigating nitrous oxide (N2O) emissions in peach orchards, we conducted a study since 2023. Taking clean tillage (CK) as the control, three sod-seeding patterns—Trifolium repensLolium perenne mixed sowing (TPr), T. repens single sowing (Tr), and L. perenne single sowing (Pr)—were tested to analyze soil physicochemical properties, nitrogen cycle functional genes, and N2O emission-related genes, and to explore the driving mechanism of N2O mitigation. Results showed that all three sod-seeding patterns significantly reduced soil pH and bulk density, increased soil electrical conductivity and mean aggregate size, and improved soil nutrient status compared with CK; TPr performed best, significantly enhancing soil enzyme activities related to carbon and nitrogen cycles. Sod-seeding patterns had no significant effect on genes involved in assimilatory nitrate reduction, denitrification, or nitrification, but significantly increased dissimilatory nitrate reduction (DNRA) and nitrogen degradation gene abundances, and reduced N2O-producing gene (amoA + amoB, nirS + nirK) abundances. Field monitoring indicated TPr reduced N2O emissions by 34.0%, 35.7%, and 41.0%, relative to CK, Pr, and Tr, respectively. Structural equation modeling revealed that sod-seeding reduced N2O emissions mainly by decreasing soil NH4+-N content and nirS + nirK abundance. In conclusion, sod-seeding patterns improve soil fertility and mitigate N2O emissions in peach orchards, with TPr showing the best comprehensive benefits. Full article
Show Figures

Figure 1

16 pages, 1758 KB  
Article
Rapid, Abiotic Nitrous Oxide Production from Fe(II)-Driven Nitrate Reduction Governed by pH Under Acidic Conditions
by Liping Xu, Fei Ma, Jianmin Zhou and Changwen Du
Molecules 2025, 30(23), 4580; https://doi.org/10.3390/molecules30234580 - 28 Nov 2025
Viewed by 114
Abstract
Denitrification is conventionally viewed as a microbially mediated process driven by organic carbon, but the coupling of iron and nitrogen cycles represents a significant alternative pathway. Previous research focused on alkaline environments, leaving the direct reaction between ferrous iron (Fe2+) and [...] Read more.
Denitrification is conventionally viewed as a microbially mediated process driven by organic carbon, but the coupling of iron and nitrogen cycles represents a significant alternative pathway. Previous research focused on alkaline environments, leaving the direct reaction between ferrous iron (Fe2+) and nitrate (NO3) in acidic conditions poorly understood. This study investigated this process using in situ spectroscopy, examining the effects of the reactant ratio, time, temperature, and initial pH while monitoring nitrous oxide (N2O) production. Results showed that the reaction was rapid, with most nitrate reduction within 5 min. The Fe2+ to NO3 molar ratio had a limited influence on efficiency. Temperature had a non-monotonic effect, optimal at 25 °C. The initial pH was the dominant control, with lower pH (e.g., 4.6) essential for high efficiency. Crucially, the process was confirmed as a significant source of N2O under anoxic conditions. This work confirms Fe2+-driven nitrate reduction is a fast, acid-dependent process governed by pH and modulated by temperature. These findings revise our understanding of nitrogen fate and N2O emissions and warn of potential underestimation of nitrate in samples containing Fe2+. Full article
Show Figures

Figure 1

18 pages, 1392 KB  
Article
Precipitation-Driven Soil and Vegetation Changes Shape Wetland Greenhouse Gas Emissions
by Ziwei Yang, Kelong Chen, Hairui Zhao, Ni Zhang and Desheng Qi
Biology 2025, 14(12), 1663; https://doi.org/10.3390/biology14121663 - 24 Nov 2025
Viewed by 122
Abstract
Against the backdrop of global climate change, alterations in precipitation regimes—including the increasing frequency of extreme events—have become more widespread, exerting profound impacts on terrestrial ecosystems and reshaping greenhouse gas (GHG) emission dynamics in wetlands. Wetlands, as unique ecosystems formed at the interface [...] Read more.
Against the backdrop of global climate change, alterations in precipitation regimes—including the increasing frequency of extreme events—have become more widespread, exerting profound impacts on terrestrial ecosystems and reshaping greenhouse gas (GHG) emission dynamics in wetlands. Wetlands, as unique ecosystems formed at the interface of terrestrial and aquatic environments, play a critical role in regulating carbon source–sink functions. In this study, we conducted in situ field simulation experiments to examine how precipitation changes influence the seasonal fluxes of carbon dioxide (CO2), methane (CH4), and nitrous oxide (N2O) in the Wayan Mountain headwater wetlands, and further explored the regulatory effects of vegetation attributes and soil physicochemical properties on these fluxes. The results revealed that a moderate increase in precipitation (+25%) enhanced CO2 emissions and vegetation growth while suppressing CH4 and N2O fluxes, indicating a positive ecosystem response to additional water supply. In contrast, extreme precipitation changes (+75% and −75%) weakened the coupling between GHG fluxes and soil factors, resulting in reduced CO2 flux, amplified variability in CH4 and N2O emissions, and inhibited vegetation growth and community diversity. The dominant controls differed among gases: CO2 was primarily regulated by soil carbon pools, CH4 was highly sensitive to water availability, and N2O was influenced by soil nitrogen, pH, and salinity. Overall, moderate increases in precipitation enhance the carbon sink capacity and community stability of alpine wetlands, whereas extreme hydrological fluctuations undermine ecosystem functioning. These findings provide important insights into carbon cycling processes and regulatory mechanisms of alpine wetlands under future climate change scenarios. Full article
(This article belongs to the Special Issue Wetland Ecosystems (2nd Edition))
Show Figures

Figure 1

24 pages, 1538 KB  
Opinion
Does Phytoplankton Bloom Management Provide an Opportunity for Greenhouse Gas Mitigation?
by Aaron Kaplan and Moshe Harel
Phycology 2025, 5(4), 76; https://doi.org/10.3390/phycology5040076 - 19 Nov 2025
Viewed by 307
Abstract
A growing body of evidence indicates that freshwater bodies, particularly eutrophic systems, are significant sources of the greenhouse gases (GHGs) carbon dioxide (CO2), methane (CH4), and nitrous oxide (N2O). Unlike marine environments, freshwater systems are generally shallower [...] Read more.
A growing body of evidence indicates that freshwater bodies, particularly eutrophic systems, are significant sources of the greenhouse gases (GHGs) carbon dioxide (CO2), methane (CH4), and nitrous oxide (N2O). Unlike marine environments, freshwater systems are generally shallower and more directly influenced by terrestrial inputs, including nutrient enrichment, organic matter deposition, and steep redox gradients in both the water column and sediments. These conditions promote intense phytoplankton growth, including massive harmful cyanobacterial blooms (HCBs), and stimulate microbial processes that drive GHG production and release. This opinion article examines the biogeochemical mechanisms underlying these emissions and evaluates the potential of mitigation treatments to both enhance carbon sequestration and reduce CH4 and N2O emissions. We argue that effective control of HCBs, whether through nutrient load reduction or direct mitigation protocols, would not only provide communities with toxin-free water but also significantly lower GHG emissions from eutrophic waterbodies. As this is an opinion paper rather than a comprehensive review, we intentionally avoided citing widely accepted concepts, since doing full justice to the many excellent contributions across all relevant subfields would not be possible within the scope of this work. Full article
Show Figures

Figure 1

4 pages, 200 KB  
Proceeding Paper
Efficient Nitrous Oxide Capture from Dam Lake Treatment by Malt Dust-Derived Biochar
by Pelin Soyertaş Yapıcıoğlu and Mehmet İrfan Yeşilnacar
Environ. Earth Sci. Proc. 2025, 34(1), 17; https://doi.org/10.3390/eesp2025034017 - 17 Nov 2025
Viewed by 132
Abstract
Owing to the natural texture of dam lakes, they emit nitrous oxide (N2O) emissions. The main aim of this study was to reduce N2O emissions resulting from dam lake treatment using malt dust-derived biochar. On average, a 21.1% reduction [...] Read more.
Owing to the natural texture of dam lakes, they emit nitrous oxide (N2O) emissions. The main aim of this study was to reduce N2O emissions resulting from dam lake treatment using malt dust-derived biochar. On average, a 21.1% reduction in N2O emissions from dam lake treatment was reported using malt dust-derived biochar. The maximum nitrous oxide capture capacity corresponded to the malt dust-derived biochar fabricated at the minimum pyrolysis temperature (MD1). The statistical analysis results revealed that the optimum parameters were 4 mg/L of dissolved oxygen (DO) and 11 mg/L of nitrate (NO3) for the minimum N2O emission. The highest correlation was calculated between N2O emission and NO3 with the value of 97.99%. This study evidenced that agro-industrial biochar can adsorb N2O from dam lakes. Full article
37 pages, 4377 KB  
Review
Sustainable Approaches to Agricultural Greenhouse Gas Mitigation in the EU: Practices, Mechanisms, and Policy Integration
by Roxana Maria Madjar, Gina Vasile Scăețeanu, Ana-Cornelia Butcaru and Andrei Moț
Sustainability 2025, 17(22), 10228; https://doi.org/10.3390/su172210228 - 15 Nov 2025
Viewed by 635
Abstract
The agricultural sector has a significant impact on the global carbon cycle, contributing substantially to greenhouse gas (GHG) emissions through various practices and processes. This review paper examines the significant role of the agricultural sector in the global carbon cycle, highlighting its substantial [...] Read more.
The agricultural sector has a significant impact on the global carbon cycle, contributing substantially to greenhouse gas (GHG) emissions through various practices and processes. This review paper examines the significant role of the agricultural sector in the global carbon cycle, highlighting its substantial contribution to GHG emissions through diverse practices and processes. The study explores the trends and spatial distribution of agricultural GHG emissions at both the global level and within the European Union (EU). Emphasis is placed on the principal gases released by this sector—methane (CH4), nitrous oxide (N2O), and carbon dioxide (CO2)—with detailed attention to their sources, levels, environmental impacts, and key strategies to mitigate and control their effects, based on the latest scientific data. The paper further investigates emissions originating from livestock production, along with mitigation approaches including feed additives, selective breeding, and improved manure management techniques. Soil-derived emissions, particularly N2O and CO2 resulting from fertilizer application and microbial activity, are thoroughly explored. Additionally, the influence of various agricultural practices such as tillage, crop rotation, and fertilization on emission levels is analyzed, supported by updated data from recent literature. Special focus is given to the underlying mechanisms that regulate these emissions and the effectiveness of management interventions in reducing their magnitude. The research also evaluates current European legislative measures aimed at lowering agricultural emissions and promoting climate-resilient, sustainable farming systems. Various mitigation strategies—ranging from optimized land and nutrient management to the application of nitrification inhibitors and soil amendments are assessed for both their practical feasibility and long-term impact. Full article
Show Figures

Graphical abstract

25 pages, 1246 KB  
Review
Biochar for Soil Fertility and Climate Mitigation: Review on Feedstocks, Pyrolysis Conditions, Functional Properties, and Applications with Emerging AI Integration
by Florian Marin, Oana Maria Tanislav, Marius Constantinescu, Antoaneta Roman, Felicia Bucura, Simona Oancea and Anca Maria Zaharioiu
Agriculture 2025, 15(22), 2345; https://doi.org/10.3390/agriculture15222345 - 11 Nov 2025
Viewed by 648
Abstract
Soil degradation, declining fertility, and rising greenhouse gas emissions highlight the urgent need for sustainable soil management strategies. Among them, biochar has gained recognition as a multifunctional material capable of enhancing soil fertility, sequestering carbon, and valorizing biomass residues within circular economy frameworks. [...] Read more.
Soil degradation, declining fertility, and rising greenhouse gas emissions highlight the urgent need for sustainable soil management strategies. Among them, biochar has gained recognition as a multifunctional material capable of enhancing soil fertility, sequestering carbon, and valorizing biomass residues within circular economy frameworks. This review synthesizes evidence from 186 peer-reviewed studies to evaluate how feedstock diversity, pyrolysis temperature, and elemental composition shape the agronomic and environmental performance of biochar. Crop residues dominated the literature (17.6%), while wood, manures, sewage sludge, and industrial by-products provided more targeted functionalities. Pyrolysis temperature emerged as the primary performance driver: 300–400 °C biochars improved pH, cation exchange capacity (CEC), water retention, and crop yield, whereas 450–550 °C biochars favored stability, nutrient concentration, and long-term carbon sequestration. Elemental composition averaged 60.7 wt.% C, 2.1 wt.% N, and 27.5 wt.% O, underscoring trade-offs between nutrient supply and structural persistence. Greenhouse gas (GHG) outcomes were context-dependent, with consistent Nitrous Oxide (N2O) reductions in loam and clay soils but variable CH4 responses in paddy systems. An emerging trend, present in 10.6% of studies, is the integration of artificial intelligence (AI) to improve predictive accuracy, adsorption modeling, and life-cycle assessment. Collectively, the evidence confirms that biochar cannot be universally optimized but must be tailored to specific objectives, ranging from soil fertility enhancement to climate mitigation. Full article
Show Figures

Figure 1

18 pages, 1116 KB  
Review
Anammox-MBR Technology: Breakthroughs and Challenges in Sustainable Nitrogen Removal from Wastewater
by Sumayya Abdul Rahiman and Hazim Qiblawey
Membranes 2025, 15(11), 337; https://doi.org/10.3390/membranes15110337 - 10 Nov 2025
Viewed by 1000
Abstract
Wastewater nitrogen pollution is a serious environmental problem, and traditional treatment techniques are frequently constrained by their high energy requirements and operational complexity. The anaerobic ammonium oxidation (anammox) process combined with membrane bioreactor (MBR) technology (anammox-MBR) offers a practical and energy-efficient solution for [...] Read more.
Wastewater nitrogen pollution is a serious environmental problem, and traditional treatment techniques are frequently constrained by their high energy requirements and operational complexity. The anaerobic ammonium oxidation (anammox) process combined with membrane bioreactor (MBR) technology (anammox-MBR) offers a practical and energy-efficient solution for the sustainable removal of nitrogen, further enhanced by its potential to minimize emissions of nitrous oxide (N2O), a potent greenhouse gas with a global warming potential nearly 300 times that of carbon dioxide. This review outlines the most recent advancements in anammox-MBR systems, highlighting their ability to achieve nitrogen removal efficiencies of more than 70–90% and, in integrated systems with reverse osmosis, to recover up to 75% of the inflow as high-quality reusable water. Significant advancements such as high-rate activated sludge coupling, reverse osmosis integration, microaeration methods, and membrane surface modifications have decreased membrane fouling, accelerated startup times, and enhanced system stability. Despite these achievements, there are still issues that hinder widespread use, such as membrane fouling exacerbated by hydrophobic anammox metabolites, sensitivity to low temperatures (≤10 °C), and the persistent challenge of suppressing nitrite-oxidizing bacteria (NOB), which compete for the essential nitrite substrate. To enable cost-effective, energy-efficient, and environmentally sustainable large-scale applications, future research directions will focus on creating cold-tolerant anammox strains, advanced anti-fouling membranes, and AI-driven process optimization. Full article
Show Figures

Figure 1

25 pages, 15454 KB  
Article
Pilot Ignition of Ammonia Spray Using Dimethyl Ether Spray at Elevated Temperature: A Numerical Study
by Chengcheng Zhang, Qian Wang and Liming Dai
Fire 2025, 8(11), 436; https://doi.org/10.3390/fire8110436 - 7 Nov 2025
Viewed by 593
Abstract
Ammonia (NH3) is a promising zero-carbon fuel to eliminate carbon footprint while the high autoignition temperature and low combustion rate of NH3 remain challenging for practical implementation. Using dimethyl ether (DME) as pilot ignition fuel can substantially promote the reactivity [...] Read more.
Ammonia (NH3) is a promising zero-carbon fuel to eliminate carbon footprint while the high autoignition temperature and low combustion rate of NH3 remain challenging for practical implementation. Using dimethyl ether (DME) as pilot ignition fuel can substantially promote the reactivity of NH3, thus paving the way for a widespread application of NH3. In this study, the ignition process and nitrogen oxides (NOx) emissions of the NH3 liquid spray ignited by liquid DME spray were numerically investigated using Converge software. The ambient temperatures (Tamb) ranging from 900 K to 1100 K were used to mimic the in-cylinder temperature typically encountered in turbocharger engines. The effect of ammonia energy ratio (AER) and fuel injection timing was examined as well. It is found that only half of NH3 is consumed at Tamb = 900 K while 97.4% of NH3 is burned at Tamb = 1100 K. Nitric oxide (NO) and nitrogen dioxide (NO2) formation also have strong correlation with Tamb and NO2 is usually formed around the periphery of NO through these two channels HO2 + NO = NO2 + OH and NO + O(+M) = NO2(+M). Extremely high nitrous oxide (N2O, formed by NH + NO = H + N2O) and carbon monoxide (CO) are produced with the presence of abundant unburned NH3 at Tamb = 900 K. Additionally, increasing AER from 60% to 90% results in slightly declined combustion efficiency of NH3 from 98.7% to 94%. NO emission has a non-monotonical relationship with AER owing to the ‘trade-off’ relationship between HNO concentration and radical pool at varying AERs. A higher AER of 95% leads to failed ignition of NH3. Advancing DME injection not only increases combustion efficiency, but also reduces NOx and CO emissions. Full article
Show Figures

Figure 1

17 pages, 2471 KB  
Article
Emission Characteristics, Co-Drivers, and Mitigation Implications of NH3, N2O, and CH4 from Livestock Manure in China from 2013 to 2023
by Xiaotang Zhang, Zeyan Wu, Junchi Wang and Qinge Sha
Toxics 2025, 13(11), 933; https://doi.org/10.3390/toxics13110933 - 30 Oct 2025
Viewed by 406
Abstract
Livestock and poultry manure emits substantial amounts of ammonia and non-CO2 greenhouse gases of nitrous oxide and methane, contributing simultaneously to climate forcing and air quality degradation. However, few studies have provided an integrated quantification of ammonia, nitrous oxide and methane emissions [...] Read more.
Livestock and poultry manure emits substantial amounts of ammonia and non-CO2 greenhouse gases of nitrous oxide and methane, contributing simultaneously to climate forcing and air quality degradation. However, few studies have provided an integrated quantification of ammonia, nitrous oxide and methane emissions across multiple species and provinces in China. This study established a coupled provincial inventory for 2013–2023 and applied the Logarithmic Mean Divisia Index (LMDI) to identify socioeconomic drivers. Results show that NH3 emissions declined slightly from ~4.1 Tg in 2013 to 3.95 Tg in 2023 (−3.7%), while N2O increased from 2.1 to 2.3 Tg (+9.5%) and CH4 rose from 3.1 to 4.2 Tg (+35%). Consequently, the aggregated global warming potential increased by ~24% (from ~1100 to ~1370 Tg CO2-eq). Hogs were identified as the dominant contributor across gases. High-emission provinces contributed disproportionately, whereas metropolitan and western provinces reported marginal levels. LMDI decomposition revealed that affluence and technological intensification were the main drivers of growth, partially offset by production efficiency and labor decline. This study provides one of the first integrated multi-gas, multi-species, and region-specific assessments of livestock manure emissions in China, offering insights into targeted mitigation strategies that simultaneously support carbon neutrality and air quality improvement. Full article
Show Figures

Graphical abstract

18 pages, 1320 KB  
Article
Persistence of Biochar Effects on Soil and Nitrous Oxide Emissions: Evaluating Single vs. Repeated Applications in Multi-Year Field Trial
by Melinda Molnárová, Elena Aydın, Vladimír Šimanský, Ján Čimo, Morad Mirzaei, Natalya P. Buchkina and Ján Horák
Agriculture 2025, 15(21), 2259; https://doi.org/10.3390/agriculture15212259 - 29 Oct 2025
Viewed by 467
Abstract
Biochar has been widely recognized for its potential to improve soil quality and mitigate greenhouse gas (GHG) emissions. A field experiment was conducted in a temperate climate zone of Slovakia on Haplic Luvisol and evaluated the long-term impact of biochar on soil properties, [...] Read more.
Biochar has been widely recognized for its potential to improve soil quality and mitigate greenhouse gas (GHG) emissions. A field experiment was conducted in a temperate climate zone of Slovakia on Haplic Luvisol and evaluated the long-term impact of biochar on soil properties, nitrous oxide (N2O) emissions, and winter wheat (Triticum aestivum L.) yield. Biochar was applied in 2014 at rates of 0, 10, and 20 t ha−1 and reapplied in 2018 at the same rates, combined with nitrogen (N) fertilization (0, 140, and 210 kg N ha−1). Measurements, conducted from March to October 2021, showed that biochar improved soil water content, increased soil pH, and enhanced soil organic carbon content. However, the concentrations of NH4+-N and NO3-N generally decreased across all the treatments compared to their respective controls. Biochar reapplication rate at 20 t ha−1, especially combined with second level of N-fertilization, led to a significant reduction in cumulative N2O emissions by 38.40%. Winter wheat yield was positively correlated with both biochar application (10 and 20 t ha−1) and N levels (140 and 210 kg N ha−1), but these differences were not statistically significant (p > 0.05). The positive effects of biochar on soil properties and yield declined over time, with no significant yield differences observed 7 years after the initial application and 3 years after reapplication. These findings suggest that while biochar can enhance soil conditions and reduce GHG emissions in the short term, its long-term effectiveness remains uncertain. Further research is needed to explore alternative biochar feedstocks, application methods, and strategies to sustain its benefits in agricultural systems. Full article
(This article belongs to the Section Agricultural Soils)
Show Figures

Figure 1

17 pages, 3075 KB  
Article
Polymer-Assisted Synthesis of Co3O4 Spinel Catalysts with Enhanced Surface Co2+ Ions for N2O Decomposition
by Nahea Kim, Su-Jin Kim, Sang-Hyeok Seo, Myeung-Jin Lee, Bora Jeong, Hong-Dae Kim, Tae Won Nam and Bora Ye
Nanomaterials 2025, 15(21), 1642; https://doi.org/10.3390/nano15211642 - 28 Oct 2025
Viewed by 565
Abstract
Nitrous oxide (N2O) is a potent greenhouse gas with a global warming potential > 310 times that of CO2. Owing to its rapid increase in atmospheric concentrations from industrial emissions, N2O poses increasing environmental concerns. Among the [...] Read more.
Nitrous oxide (N2O) is a potent greenhouse gas with a global warming potential > 310 times that of CO2. Owing to its rapid increase in atmospheric concentrations from industrial emissions, N2O poses increasing environmental concerns. Among the various N2O abatement technologies, catalytic decomposition can directly convert N2O into harmless N2 and O2 without generating secondary pollutants. In this study, Co3O4 spinel catalysts were synthesized using a polymer-assisted precipitation method, using polyvinyl alcohol, polyvinylpyrrolidone, or polyethylene glycol (PEG) as N2O decomposition catalysts. The PEG-mediated synthesis method yielded the most active catalyst with superior N2O decomposition efficiency. Structural and surface analyses confirmed that PEG facilitated the formation of Co2+-enriched surface sites and abundant oxygen vacancies, which are crucial active sites for N2O adsorption and activation. Moreover, these features improved the redox properties and electron transfer behavior of the resulting catalyst. In particular, the PEG-derived 5Co3O4/CeO2 catalyst exhibited enhanced N2O decomposition activity and stability even in the presence of coexisting N2O and O2, highlighting its potential for real-world applications. This study provides an effective synthetic route for Co3O4-based catalysts and potential opportunities for wide applications in industrial N2O removal. Full article
(This article belongs to the Section Energy and Catalysis)
Show Figures

Graphical abstract

Back to TopTop