Optimization of Controlled Mechanical Ventilation Systems for Indoor Acoustic Comfort
Abstract
:1. Introduction
- −
- Viral agents: can be emitted simply by coughing or breathing and circulate in the air in the form of bioaereosols;
- −
- Particulates: cause eye, nose and throat irritation and breathing problems, headaches, fatigue and low concentration. Prolonged contact can lead to heart and respiratory diseases;
- −
- Humidity: causes condensation, mold and proliferation of dust mites;
- −
- Radon: an odorless natural gas released from the ground; it is highly carcinogenic in cases of prolonged exposure;
- −
- Mold: releases spores that are harmful to health and cause allergies;
- −
- Volatile organic compound (VOC): airborne substances, including formaldehyde, which can cause respiratory tract irritation or central nervous system disorders;
- −
- CO2: in excessive concentrations, such as when experiencing the sensation of stale air, it causes headaches and difficulty in concentration.
2. Materials and Methods
2.1. Experimental Evaluation of CMV Sound Pressure Level and Calibration of the Simulation Model
2.2. Simulation of the Sound Pressure Level
- −
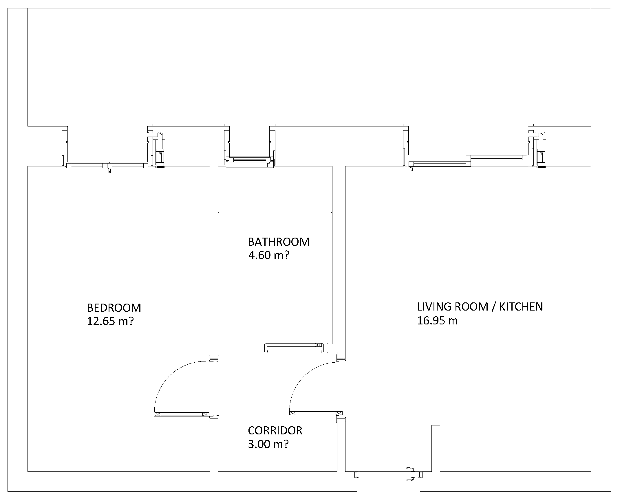
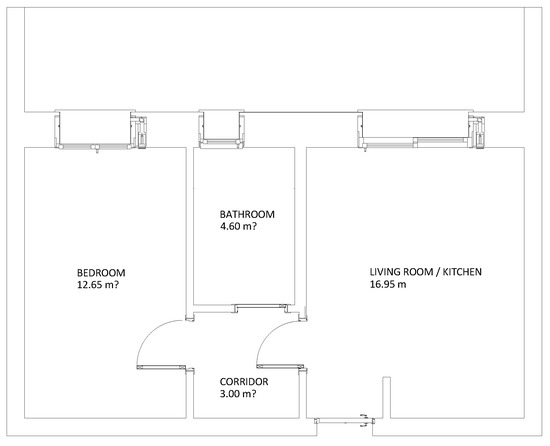
- two-room apartment with SM CMV installed in the bedroom and living room/kitchen (Figure 3);
- −
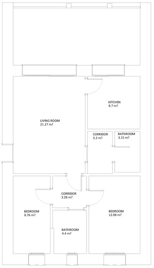
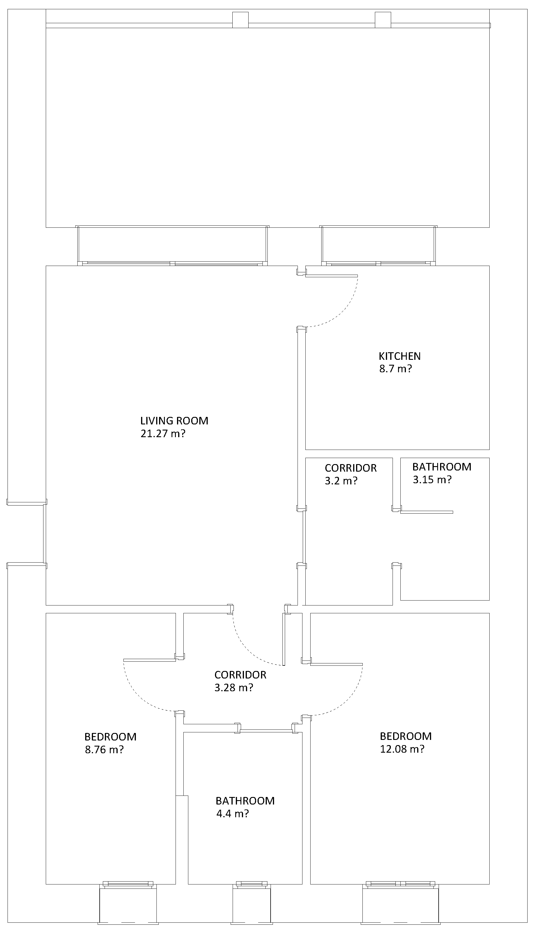
- three-room apartment with SM CMV installed in the bedrooms and living room and CM CMV installed in the kitchen (Figure 4);
- −
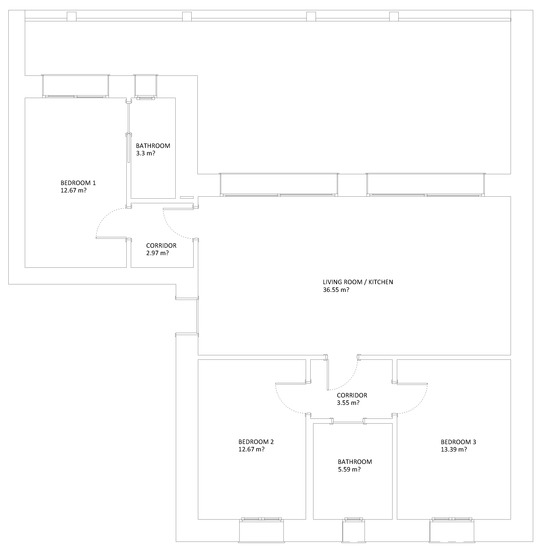
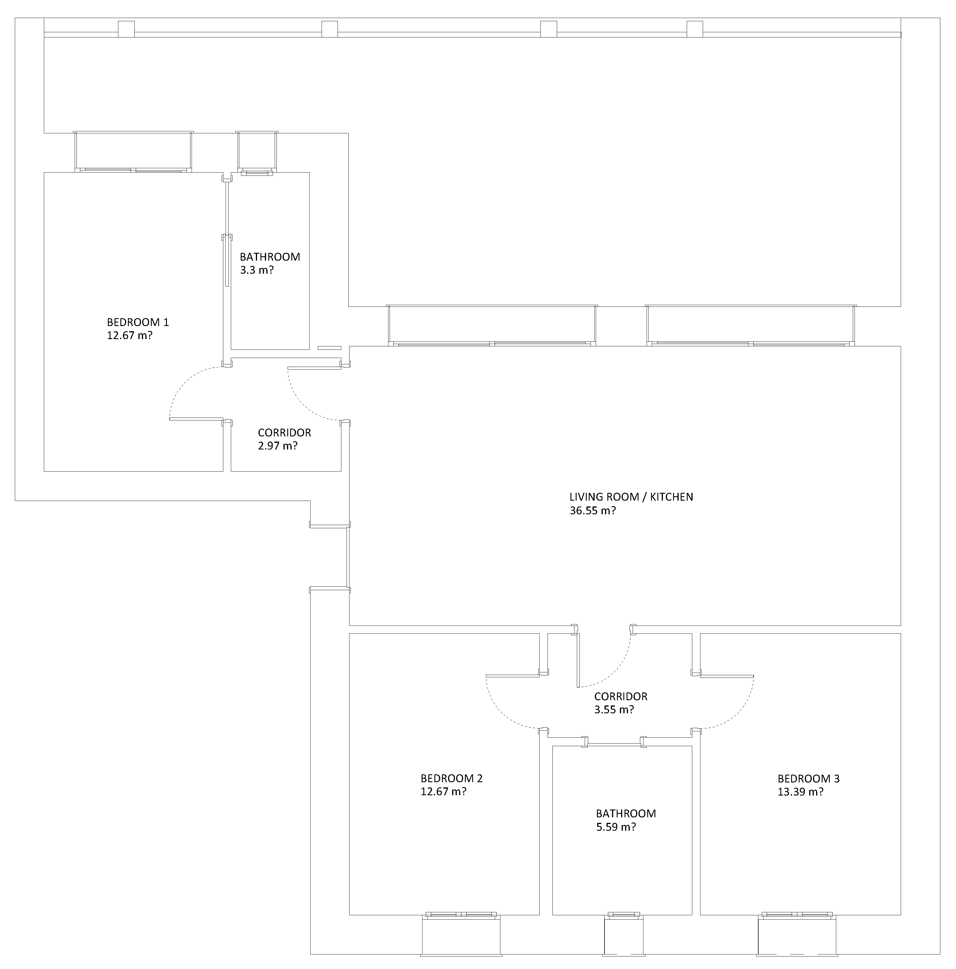
- four-room apartment with SM CMV installed in the bedroom and two SM CMV in the living room/kitchen (Figure 5).
- −
- “night” with lower airflows in the bedrooms and higher in the living rooms;
- −
- “day” with lower airflows in the living rooms and higher in the bedrooms.
3. Results
3.1. Sound Pressure Level Measurements
3.2. Sound Pressure Level Model Calibration
3.3. Sound Pressure Level Simulation
4. Conclusions
- −
- the acoustic simulation carried out using an adequately calibrated 3D model has proved to be a valid support for the study of noise in rooms connected by doors and corridors. However, the number of rays has been considerably increased in order to ensure a passage of noise from one room to another as similar as possible to the real case;
- −
- with simultaneous operation and optimized regulation of CMV speeds inside an apartment, a considerable comfort improvement between 1.3 dB(A) and 3.7 dB(A) was obtained in the bedrooms in the “night” configuration, while an improvement between 1.0 dB(A) and 2.3 dB(A) was obtained in the living room–kitchen in the “day” configuration;
- −
- the optimization of the values of LAeq,nT permitted us to obtain class I for living rooms and class I or II for bedrooms according to the EN 16798-1 standard.
Funding
Institutional Review Board Statement
Informed Consent Statement
Data Availability Statement
Acknowledgments
Conflicts of Interest
References
- Vinh van Tran, V.; Park, D.; Lee, Y.C. Indoor air pollution, related human diseases, and recent trends in the control and improvement of indoor air quality. Int. J. Environ. Res. Public Health 2020, 17, 2927. [Google Scholar] [CrossRef] [PubMed] [Green Version]
- Caniato, M.; Cozzarini, L.; Schmid, C.; Gasparella, A. Acoustic and thermal characterization of a novel sustainable material incorporating recycled microplastic waste. Sustain. Mater. Technol. 2021, 28, e00274. [Google Scholar] [CrossRef]
- Caniato, M.; Kyaw Oo D’Amore, G.; Kaspar, J.; Gasparella, A. Sound absorption performance of sustainable foam materials: Application of analytical and numerical tools for the optimization of forecasting models. Appl. Acoust. 2020, 161, 107166. [Google Scholar] [CrossRef]
- Wei, W.; Ramlho, O.; Mandin, C. Indoor air quality requirements in green building certifications. Build. Environ. 2015, 92, 10–19. [Google Scholar] [CrossRef]
- Chen, Y.; Raphael, B.; Sekhar, S.C. Experimental and simulated energy performance of a personalized ventilation system with individual airflow control in a hot and humid climate. Build. Environ. 2016, 96, 283–292. [Google Scholar] [CrossRef]
- Tronchin, L.; Fabbri, K. Energy performance building evaluation in Mediterranean countries: Comparison between software simulations and operating rating simulation. Energy Build. 2008, 40, 1176–1187. [Google Scholar] [CrossRef]
- Tronchin, L.; Tommasino, M.C.; Fabbri, K. On the cost-optimal levels of energy-performance requirements for buildings: A case study with economic evaluation in Italy. Int. J. Sustain. Energy Plan. Manag. 2014, 3, 49–62. [Google Scholar]
- Tronchin, L.; Fabbri, K.; Bertolli, C. Controlled Mechanical Ventilation in Buildings: A Comparison between Energy Use and Primary Energy among Twenty Different Devices. Energies 2018, 11, 2123. [Google Scholar] [CrossRef] [Green Version]
- Fabbri, K.; Tronchin, L. Indoor Environmental Quality in Low Energ Buildings. Energy Procedia 2015, 78, 2778–2783. [Google Scholar] [CrossRef] [Green Version]
- Sekhar, S.C.; Goh, S.E. Thermal comfort and IAQ characteristics of naturally/mechanically ventilated and air-conditioned bedrooms in a hot and humid climate. Build. Environ. 2011, 46, 1905–1916. [Google Scholar] [CrossRef]
- Perone, C.; Catalano, P.; Giametta, F.; La Fianza, G.; Brunetti, L.; Bianchi, B. Controlled Mechanical Ventilation to Reduce Primary Energy Consumption in Air Conditioning of Greenhouses. In Innovative Biosystems Engineering for Sustainable Agriculture, Forestry and Food Production; MID-TERM AIIA 2019; Lecture Notes in Civil Engineering; Springer: Cham, Switzerland, 2020; Volume 67, p. 399. [Google Scholar]
- Evola, G.; Gagliano, A.; Marletta, L.; Nocera, F. Controlled mechanical ventilation systems in residential buildings: Primary energy balances and financial issues. J. Build. Eng. 2017, 11, 96–1071. [Google Scholar] [CrossRef]
- EN 12831:2003. Heating Systems in Buildings—Method for Calculation of the Design Heat Load; European Standardization Organizations: Brussels, Belgium, 2019. [Google Scholar]
- Caniato, M.; Bettarello, F.; Sbaizero, O.; Schmid, C. Recycled materials for noise reduction in floating floors. In Proceedings of the 22nd International Congress on Sound and Vibration, ICSV 2015, Florence, Italy, 12–16 July 2015. Code 121474. [Google Scholar]
- Caniato, M.; Favretto, S.; Bettarello, F.; Schmid, C. Acoustic Characterization of Resonance Wood. Acta Acust. United Acust. 2018, 104, 1030–1040. [Google Scholar] [CrossRef]
- Caniato, M.; Marzi, A.; Gasparella, A. How much COVID-19 face protections influence speech intelligibility in classrooms? Appl. Acoust. 2021, 178, 108051. [Google Scholar] [CrossRef]
- Bettarello, F.; Caniato, M.; Scavuzzo, G.; Gasparella, A. Indoor Acoustic Requirements for Autism-Friendly Spaces. Appl. Sci. 2021, 11, 3942. [Google Scholar] [CrossRef]
- Caniato, M.; Schmid, C.; Gasparella, A. A comprehensive analysis of time influence on floating floors: Effects on acoustic performance and occupants’ comfort. Appl. Acoust. 2020, 166, 107339. [Google Scholar] [CrossRef]
- Caniato, M. Sound insulation of complex façades: A complete study combining different numerical approaches. Appl. Acoust. 2020, 169, 107484. [Google Scholar] [CrossRef]
- Granzotto, N.; Piana, E.A. Evaluation method for façade acoustic insulation for a corner room: Discussion on the results obtained as a function of the source position. Appl. Sci. 2020, 10, 7434. [Google Scholar] [CrossRef]
- Ruggeri, P.; Peron, F.; Granzotto, N.; Bonfiglio, P. A combined experimental and analytical approach for the simulation of the sound transmission loss of multilayer glazing systems. Build. Acoust. 2015, 22, 177–192. [Google Scholar] [CrossRef]
- Caniato, M.; Bettarello, F.; Bonfiglio, P.; Gasparella, A. Extensive Investigation of Multiphysics Approaches in Simulation of Complex Periodic Structures. Appl. Acoust. 2020, 166, 107356. [Google Scholar] [CrossRef]
- Tronchin, L. Variability of room acoustic parameters with thermo-hygrometric conditions. Appl. Acoust. 2021, 177, 107933. [Google Scholar] [CrossRef]
- ISO 3744:2010. Acoustics—Determination of Sound Power Levels and Sound Energy Levels of Noise Sources Using Sound Pressure. Engineering Methods for an Essentially Free Field over a Reflecting Plane; International Organization for Standardization: Geneva, Switzerland, 2010. [Google Scholar]
- EN 16798-1:2019. Energy Performance of Buildings—Ventilation for Buildings—Part 1: Indoor Environmental Input Parameters for Design and Assessment of Energy Performance of Buildings Addressing Indoor Air Quality, Thermal Environment, Lighting and Acoustics—Module M1-6; European Standardization Organizations: Brussels, Belgium, 2019. [Google Scholar]
- ISO 16032:2004. Acoustics—Measurement of Sound Pressure Level from Service Equipment in Buildings—Engineering Method; International Organization for Standardization: Geneva, Switzerland, 2004. [Google Scholar]
- ISO 3382-2:2008. Acoustics—Measurement of Room Acoustic Parameters Reverberation Time in Ordinary Rooms; International Organization for Standardization: Geneva, Switzerland, 2008. [Google Scholar]




















| Building | Type of Room | Equivalent Continuous Sound Pressure Level LAeq,nT (dB(A)) | ||
|---|---|---|---|---|
| I | II | III | ||
| Residential | Living room | LAeq,nT ≤ 30 | 30 < LAeq,nT ≤ 35 | 35 < LAeq,nT ≤ 40 |
| Bedrooms | LAeq,nT ≤ 25 | 25 < LAeq,nT ≤ 30 | 30 < LAeq,nT ≤ 35 | |
| Air Flow Rate | ||||
|---|---|---|---|---|
| CMV Type | Speed 1 (m3/h) | Speed 2 (m3/h) | Speed 3 (m3/h) | Speed 4 (m3/h) |
| CM | 10 | 17 | 26 | 37 |
| SM | 15 | 25 | 30 | 40 |
| Apartment | Room | Vol. (m3) | Target Air Exchange (m3/h) | CMV Model | CMV n. | Speed Setup | CMV Air Flow (m3/h) | CMV Air Exchange (1/h) |
|---|---|---|---|---|---|---|---|---|
| Two-room apartment | Bedroom | 34.79 | 17.4 | SM | 1 | 1 | 15 | 0.43 |
| Liv./Kitch. | 46.61 | 23.3 | SMt | 1 | 4 | 40 | 0.86 | |
| Total | 55 | 0.55 | ||||||
| Three-room apartment | Bedroom | 24.09 | 12.0 | SM | 1 | 1 | 15 | 0.62 |
| Bedroom | 33.22 | 16.6 | SM | 1 | 1 | 15 | 0.45 | |
| Kitchen | 23.93 | 12.0 | CM | 1 | 3 | 26 | 1.09 | |
| Living room | 58.49 | 29.2 | SM | 1 | 4 | 40 | 0.68 | |
| Total | 96 | 0.55 | ||||||
| Four-room apartment | Bedroom 1 | 34.84 | 17.4 | SM | 1 | 1 | 15 | 0.43 |
| Liv./Kitch. | 100.51 | 50.3 | SM | 2 | 4 | 80 | 0.80 | |
| Bedroom 2 | 34.84 | 17.4 | SM | 1 | 1 | 15 | 0.43 | |
| Bedroom 3 | 36.82 | 18.4 | SM | 1 | 1 | 15 | 0.41 | |
| Total | 125 | 0.52 |
| Apartment | Room | Vol. (m3) | Target Air Exchange (m3/h) | CMV Model | CMV n. | Speed Setup | CMV Air Flow (m3/h) | CMV Air Exchange (1/h) |
|---|---|---|---|---|---|---|---|---|
| Two-room apartment | Bedroom | 34.79 | 17.4 | SM | 1 | 2 | 25 | 0.72 |
| Liv./Kitch. | 46.61 | 23.3 | SM | 1 | 2 | 25 | 0.54 | |
| Total | 55 | 0.50 | ||||||
| Three-room apartment | Bedroom | 24.09 | 12.0 | SM | 1 | 2 | 25 | 1.04 |
| Bedroom | 33.22 | 16.6 | SM | 1 | 2 | 25 | 0.75 | |
| Kitchen | 23.93 | 12.0 | CM | 1 | 2 | 17 | 0.71 | |
| Living room | 58.49 | 29.2 | SM | 1 | 2 | 25 | 0.43 | |
| Total | 173.94 | 87.0 | 92 | 0.53 | ||||
| Four-room apartment | Bedroom 1 | 34.84 | 17.4 | SM | 1 | 2 | 25 | 0.72 |
| Liv./Kitch. | 100.51 | 50.3 | SM | 2 | 2 | 50 | 0.50 | |
| Bedroom 2 | 34.84 | 17.4 | SM | 1 | 2 | 25 | 0.72 | |
| Bedroom 3 | 36.82 | 18.4 | SM | 1 | 2 | 25 | 0.68 | |
| Total | 125 | 0.52 |
| Config. 1 | Config. 2 | Config. 3 | |
|---|---|---|---|
| Bedroom 1 | Speed 1 | off | off |
| Bedroom 2 | Speed 1 | Speed 1 | Speed 2 |
| Living room | Speed 3 | off | off |
| LAeq (dB(A)) | 28.7 | 24.9 | 32.7 |
| LAeq,nT (dB(A)) | 22.7 | 18.9 | 26.8 |
| Room | 125 | 250 | 500 | 1000 | 2000 | 4000 |
|---|---|---|---|---|---|---|
| Bedroom | 0.64 | 0.46 | 0.46 | 0.49 | 0.55 | 0.54 |
| Living room/Kitchen | 0.99 | 0.60 | 0.56 | 0.55 | 0.59 | 0.56 |
| Room | 125 | 250 | 500 | 1000 | 2000 | 4000 |
|---|---|---|---|---|---|---|
| Room 8.76 m2 | 0.89 | 0.54 | 0.49 | 0.49 | 0.53 | 0.50 |
| Room 12.08 m2 | 0.93 | 0.60 | 0.54 | 0.53 | 0.57 | 0.55 |
| Kitchen | 0.83 | 0.52 | 0.48 | 0.48 | 0.52 | 0.49 |
| Living room | 1.08 | 0.60 | 0.55 | 0.56 | 0.61 | 0.56 |
| Room | 125 | 250 | 500 | 1000 | 2000 | 4000 |
|---|---|---|---|---|---|---|
| Bedroom 1 | 0.97 | 0.57 | 0.52 | 0.52 | 0.57 | 0.53 |
| Bedroom 2 | 0.54 | 0.40 | 0.39 | 0.39 | 0.40 | 0.39 |
| Bedroom 3 | 0.63 | 0.46 | 0.42 | 0.42 | 0.45 | 0.42 |
| Living room | 0.83 | 0.55 | 0.51 | 0.51 | 0.55 | 0.51 |
| Night Configuration | Day Configuration | ||||||||
|---|---|---|---|---|---|---|---|---|---|
| Room | CMV ID | Speed | LAeq (dB(A)) | Speed | LAeq (dB(A)) | Speed | LAeq (dB(A)) | Speed | LAeq (dB(A)) |
| Bedroom | SM A | 1 | 25.0 | 1/2 | 22.3/28.2 | 2 | 28.5 | 0 | - |
| Living room-kitchen | SM B | 4 | 33.7 | 0 | - | 2 | 27.4 | 2 | 26.4 |
| Night Configuration | Day Configuration | ||||||||
|---|---|---|---|---|---|---|---|---|---|
| Room | CMV ID | Speed | LAeq (dB(A)) | Speed | LAeq (dB(A)) | Speed | LAeq (dB(A)) | Speed | LAeq (dB(A)) |
| Bedroom 8.76 m2 | SM C | 1 | 26.2 | 1 * | 23.8 | 2 | 30.4 | 0 | - |
| Bedroom 12.08 m2 | SM D | 1 | 24.6 | 1 */2 * | 21.9/28.3 | 2 | 29.5 | 0 | - |
| Kitchen | CM B | 3 | 36.0 | 0 | - | 2 | 29.1 | 2 * | 26.5 |
| Living room | SM A | 4 | 33.4 | 0 | - | 2 | 26.7 | 2 */3 * | 24.2/27.7 |
| Night Configuration | Day Configuration | ||||||||
|---|---|---|---|---|---|---|---|---|---|
| Room | CMV ID | Speed | LAeq (dB(A)) | Speed | LAeq (dB(A)) | Speed | LAeq (dB(A)) | Speed | LAeq (dB(A)) |
| Room 1 | SM A | 1 | 27.3 | 1 */2 * | 22.4/28.6 | 2 | 29.3 | 0 | - |
| Room 2 | SM D | 1 | 25.1 | 1 */2 * | 22.7/27.8 | 2 | 29.2 | 0 | - |
| Room 3 | SM E | 1 | 25.6 | 1 */2 * | 21.4/28.9 | 2 | 29.0 | 0 | - |
| Living room-kitchen | 2xSM B, C | 4 | 35.3 | 0 | - | 2 | 28.2 | 2/3 | 27.1/30.5 |
Publisher’s Note: MDPI stays neutral with regard to jurisdictional claims in published maps and institutional affiliations. |
© 2021 by the author. Licensee MDPI, Basel, Switzerland. This article is an open access article distributed under the terms and conditions of the Creative Commons Attribution (CC BY) license (https://creativecommons.org/licenses/by/4.0/).
Share and Cite
Granzotto, N. Optimization of Controlled Mechanical Ventilation Systems for Indoor Acoustic Comfort. Designs 2021, 5, 48. https://doi.org/10.3390/designs5030048
Granzotto N. Optimization of Controlled Mechanical Ventilation Systems for Indoor Acoustic Comfort. Designs. 2021; 5(3):48. https://doi.org/10.3390/designs5030048
Chicago/Turabian StyleGranzotto, Nicola. 2021. "Optimization of Controlled Mechanical Ventilation Systems for Indoor Acoustic Comfort" Designs 5, no. 3: 48. https://doi.org/10.3390/designs5030048
APA StyleGranzotto, N. (2021). Optimization of Controlled Mechanical Ventilation Systems for Indoor Acoustic Comfort. Designs, 5(3), 48. https://doi.org/10.3390/designs5030048
