Experimental Study on Fatigue Performance of M24 Twisted-Shear High-Strength Bolt for Assembled Steel Structure
Abstract
1. Introduction
2. Experimental Methods
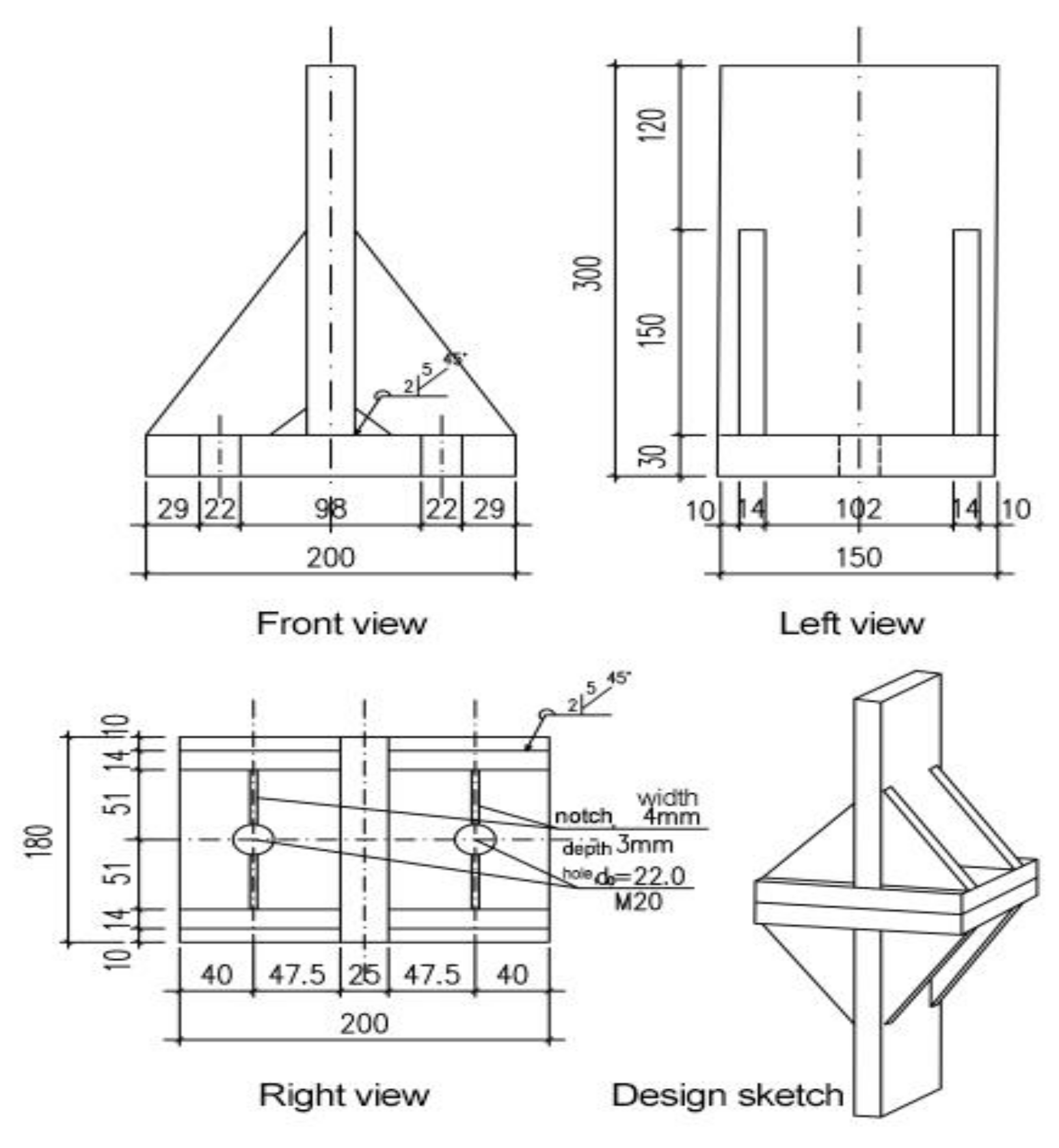
2.1. Specimen Design
2.1.1. M24 Torsional Shear High-Strength Bolt Connection
2.1.2. T-Type Connector
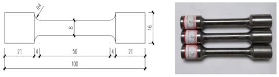
2.2. Mechanical Properties of Bolt’s Material
2.3. Testing Program and Procedure
2.3.1. Fatigue Test Equipment
2.3.2. Process and Method of the Test
3. Experimental Results
3.1. Fatigue Failure Mode
3.2. Fatigue S-N Curve
4. The Design Method for Constant Amplitude Fatigue Based on the Nominal Stress
4.1. The Establishment of the Formula
4.2. Application of The Formula
5. Estimating the Fatigue Life of M24 High-Strength Bolts Based on Broken Mechanics
5.1. Parameter Determination
5.2. Estimation of Fatigue Life of M24 Twisted-Shear High-Strength Bolt
6. Results and Discussion
6.1. Influence of the Bolts’ Pretension on the Fatigue Strength
- The grade 10.9 M24 twisted-shear high-strength bolt has a longer fatigue life, while the grade 8.8 M24 large hexagonal bolt has the shortest fatigue life;
- Through comparing the test results of the M24 twisted-shear high-strength bolt with 100% pretension and of grade 10.9 and the grade 8.8 M24 large hexagonal bolt that only experienced 20~40% of the pretension torque value, it is seen that the pretension force of the bolt will have a great impact on the fatigue strength. The higher the value of the pretension force, the higher the fatigue strength of the bolt.
6.2. Influence of Bolt Diameter on Fatigue Strength
- Under full pretension, the fatigue test data of the M20 twisted-shear high-strength bolt have higher values than those of the M24 bolt.
- Under the guaranteed probability of 97.72%, the stress amplitude of the M20 twisted-shear high-strength bolt corresponding to 2 million fatigue life is about 278.0 MPa, which is greater than the stress amplitude, the value of which is 181.0 MPa for the M24 bolt. It was indicated that under the same stress amplitude the M20 twisted-shear high-strength bolt has a longer fatigue life than the M24 twisted-shear high-strength bolt.
- The fatigue strength will decrease when the bolt diameter increases. The reason is that, due to the influence trend that the bolt diameter has on the fatigue strength, when the diameter of the bolt increases, the concentration of the stress between the thread and the bolt will be exacerbated; meanwhile, some defects or impurities will occur during the process of heat treatment.
7. Conclusions
- Fatigue failure of all M24 twisted-shear high-strength bolts in the test occurred at the root of the high-strength bolt thread, and among them most bolts were damaged at the first circle of the thread between the nut and the bolt, where there was a serious stress concentration, and the fatigue gap effect was significant.
- The constant amplitude fatigue S-N curve was obtained by test data fitting and the corresponding S-N curve equation of M24 twisted-shear high-strength bolts with the stress range as the design parameter, and the fitting correlation coefficient of the test data was about 0.8. Under the guaranteed rate of 97.72%, the allowable stress amplitude of 5 million fatigue life is about 167.0 MPa; that of 2 million fatigue life is about 181.0 MPa.
- According to the fatigue S-N curve fitting formula, the value of the fatigue design parameter is 11.419, and the value of the fatigue design parameter C is 12.106 × 1031. It can be seen that when the fatigue life of the bolt is 5×106, the value of normal amplitude fatigue limit is 167.0 MP, and when the fatigue life of the bolt is 2 × 106, the value of the allowable stress amplitude is 187.0 MP.
- It is basically feasible to estimate the fatigue life of high-strength bolts by using the Paris formula, which can generally reflect the changing trend of fatigue life.
- M24 twisted-shear high-strength bolts with 100% pretension force had better performance in the specified stress range. Under the 97.72% survival probability, the fatigue strength of M24 pretension force high-strength bolts was 1.86 times and 1.71 times that of the 8.8-grade M24 and 10.9-grade M24 large hexagonal head bolts, respectively.
- By comparing the test results of M24 and M20 bolts under full pretension, it is seen that when the diameter of the bolt decreases, the fatigue strength of the bolt will reduce.
8. Future Works
Author Contributions
Funding
Institutional Review Board Statement
Informed Consent Statement
Data Availability Statement
Conflicts of Interest
Nomenclature
| σ0.2 | measured value of the offset yield strength | 
| σb | measured value of the yield strength | 
| E | measured value of the elastic modulus | 
| δ | measured value of elongation rate | 
| σmax | the maximum stress | 
| σmin | the minimum stress | 
| ∆σ | the loading stress range | 
| σm | the average stress | 
| fy | the yield strength | 
| R | the stress ratio (the ratio of minimum stress to maximum stress) | 
| N | fatigue life | 
| C | undetermined parameter | 
| β | undetermined parameter | 
| a0 | initial crack length | 
| ac | critical crack length | 
| α | stress intensity factor | 
| C | material parameter | 
| m | material parameter | 
References
- Sun, H.X. Overview on the development of fatigue research and the fatigue fracture mechanism. Glob. Mark. 2016, 25, 101. [Google Scholar]
- Hobbs, J.W.; Burguete, R.L.; Heyes, P.F.; Patterson, E.A. Effect of eccentric loading on the fatigue performance of high tensile bolts. Int. J. Fatigue 2000, 22, 531–538. [Google Scholar] [CrossRef]
- Novoselac, S.; Kozak, D. Fatigue damage assessment of bolted ioint under different preload. New Trends Fatigue Fract. 2014, 14, 93–109. [Google Scholar]
- Nan, Z.S.; Li, H.F.; Luo, J. Study on the mechanism of ultra-low cycle fatigue failure about steel LY 100 with low yielding point considering welding influence. Prog. Build. Steel Struct. 2008, 20, 12–17+66. [Google Scholar]
- Feng, X.J.; Lin, X.S.; Pan, W. Fatigue performance of bolt ball node grid under the action of suspension crane. J. Archit. 1995, 16, 3–13. [Google Scholar]
- Farrahi, G.H.; Habibi, N. Experimental evaluation of the effect of thread pitch on fatigue life of bolts. Int. J. Fatigue 2005, 27, 189–196. [Google Scholar]
- Lei, H.G.; Pei, Y.; Liu, L.J. Finite element analysis on fatigue notch factor of high strength bolts. Eng. Mech. 2008, 1, 49–53. [Google Scholar]
- Yan, Y.J.; Lei, H.G.; Jiao, J.F. Establishment of fatigue calculation method on high strength bolt in the bolt ball node grid. J. Archit. 2010, 31, 92–97. [Google Scholar]
- Lei, H.G.; Liu, X.J.; Jiao, J.F. Study on variable amplitude fatigue test and fatigue life estimation of high strength bolts in the the bolt ball node grid. J. Archit. 2010, 31, 98–102. [Google Scholar]
- Yang, X. Test and Theoretical Study on Fatigue Performance of High Strength Bolts M30 and M39 in the Bolt Ball Node Grid. Ph.D. Thesis, Taiyuan University of Technology, Taiyuan, China, 2017. [Google Scholar]
- Saranik, M.; Jrzrquel, L.; Lenoir, D. Experimental and numerical study for fatigue life prediction of bolted connection. Procedia Eng. 2013, 66, 354–368. [Google Scholar] [CrossRef]
- Lei, H.G. The Theoretical and Experimental Study on the Fatigue Performance of the High-Strength Bolt Connection in the Network Frame Structure with Bolt Sphere Node. Ph.D. Thesis, Taiyuan University of Technology, Taiyuan, China, 2008. [Google Scholar]
- Xin, H.H.; Jose Correia, A.F.O.; Veljkovic, M. Three-dimensional fatigue crack propagation simulation using extended finite element methods for steel grades S355 and S690 considering mean stress effects. Eng. Struct. 2021, 227, 111414. [Google Scholar] [CrossRef]
- Jiao, J.; Liu, Z.; Guo, Q.; Liu, Y.; Lei, H. Constant-amplitude fatigue behavior of M24 high-strength bolt of end-plate flange connection. Structures 2021, 34, 2041–2053. [Google Scholar] [CrossRef]
- Huang, W.P. Test and Theoretical Study on the Fatigue Performance of M24 High Strength Bolt in Prefabricated Steel Structure. Ph.D. Thesis, Taiyuan University of Technology, Taiyuan, China, 2019. [Google Scholar]
- Guo, H.C.; Wan, J.H.; Liu, Y.H. The fatigue performance test study of Q690D high strength steel bolt connection. J. Civ. Eng. 2018, 51, 20–26. [Google Scholar]
- Bai, Y.; Nardi, D.C.; Zhou, X.; Picon, R.A.; Florez-Lopez, J. A new comprehensive model of damage for flexural subassemblies prone to fatigue. Comput. Struct. 2021, 256, 106639. [Google Scholar] [CrossRef]
- Niu, X.; Zhu, S.P.; He, J.C.; Liao, D.; Correia, J.A.; Berto, F.; Wang, Q. Defect tolerant fatigue assessment of AM materials: Size effect and probabilistic prospects. Int. J. Fatigue 2022, 160, 106884. [Google Scholar] [CrossRef]
- Li, X.K.; Zhu, S.P.; Liao, D.; Correia, J.A.; Berto, F.; Wang, Q. Probabilistic fatigue modelling of metallic materials under notch and size effect using the weakest link theory. Int. J. Fatigue 2022, 159, 106788. [Google Scholar] [CrossRef]
- GB/T3632-2008; Torsional Shear High Strength Bolt Link for Steel Structure. The Standardization Administration of China, General Administration of Quality Supervision, Inspection and Quarantine of the People’s Republic of China: Beijing, China, 2008.
- GB/50017-2017; Standard for Design of Steel Structure. Ministry of Housing and Urban-Rural Development, PRC, General Administration of Quality Supervision, Inspection and Quarantine of the People’s Republic of China: Beijing, China, 2017.
- GB/T1591-2018; High-Strength Low Alloy Structural Steels. The Standardization Administration of China, The State Administration for Market Regulation: Beijing, China, 2018.
- GB/T228.1-2010; Metallic Materials-Tensile Testing-Part 1: Method of Test at Room Temperature. The Standardization Administration of China, General Administration of Quality Supervision, Inspection and Quarantine of the People’s Republic of China: Beijing, China, 2010.
- GB/T3075-2008; Metallic Materials-Tensile Testing-Axial-Force-Controlled Method. The Standardization Administration of China, General Administration of Quality Supervision, Inspection and Quarantine of the People’s Republic of China: Beijing, China, 2008.
- Shen, Y. Experimental Study on Fatigue Performance of M20 High Strength Torsion Shear Screw Shaft Drawing for Prefabricated Steel Structure. Ph.D. Thesis, Taiyuan University of Technology, Taiyuan, China, 2022. [Google Scholar]












| Type | Material or Performance Grade | Standard | |
|---|---|---|---|
| torsion-shear high-strength bolt connection | bolt | 10.9S | Torsion-shear High-strength Bolt Link for Steel Structure (GB/T 3632-2008) [19] | 
| nut | 10H | ||
| gasket | 35 steel/45 steel | ||
| No. | Strength (MPa) | Modulus of Elasticity (GPa) | Extensibility | ||||
|---|---|---|---|---|---|---|---|
| a | 1008.4 | 1029 | 1084.4 | 1106.5 | 208.9 | 207.9 | 13.4 | 
| b | 1040 | 1117.8 | 209.1 | ||||
| c | 1038.6 | 1117.2 | 205.6 | ||||
| Level | Number | Level | Number | ||||
|---|---|---|---|---|---|---|---|
| L1 | 400 | 160 | 2 | L6 | 515 | 206 | 2 | 
| L2 | 475 | 190 | 2 | L7 | 525 | 210 | 2 | 
| L3 | 485 | 194 | 1 | L8 | 550 | 220 | 9 | 
| L4 | 500 | 200 | 2 | L9 | 575 | 230 | 2 | 
| L5 | 512.5 | 205 | 1 | L10 | 600 | 240 | 2 | 
| Model No. | Fatigue Fracture Characteristic | Illustration | 
|---|---|---|
| 1 | Fatigue fracture occurred at the first circle of the bite between the bolt rod and the nut, and the number of bolts where fatigue damage occurred accounts for about 85% of the total number of specimens. It is the main form of damage in this fatigue test. The reason is that the fixing effect of the nut leads to the thread gap root of the first circle between the nut and the thread has a serious stress concentration, the fatigue notch effect is significant, and the initial fatigue crack easily occurs. |  | 
| 2 | There is only one bolt fatigue failure which is of this type, which is far away from the thread bottom where the nut meshes, and it destroyed the first circle of the thread of the transition area between the bolt rod (smooth part) and the thread. |  | 
| 3 | The bolts were not completely broken, but some obvious cracks appeared in the thread, which seriously affected the bearing capacity of the bolts. There were three bolts with this damage mode. If the loading continued, the bolt also broke at the thread. |  | 
| No. | Loading Stress/MPa | Stress Amplitude/MPa | Fatigue Life/Time | |||
|---|---|---|---|---|---|---|
| R | N | |||||
| M24-1 | 400 | 240 | 320 | 0.6 | 160 | 5,100,006 | 
| M24-2 | 400 | 240 | 320 | 0.6 | 160 | 5,100,006 | 
| M24-3 | 475 | 285 | 380 | 0.6 | 190 | 2,273,480 | 
| M24-4 | 475 | 285 | 380 | 0.6 | 190 | 2,352,282 | 
| M24-5 | 485 | 291 | 388 | 0.6 | 194 | 751,375 | 
| M24-6 | 500 | 300 | 400 | 0.6 | 200 | 1,221,394 | 
| M24-7 | 500 | 300 | 400 | 0.6 | 200 | 1,298,395 | 
| No. | Loading Stress/MPa | Stress Amplitude/MPa | Fatigue Life/Time | |||
|---|---|---|---|---|---|---|
| R | N | |||||
| M24-8 | 512.5 | 307.5 | 410 | 0.6 | 205 | 1,546,630 | 
| M24-9 | 515 | 309 | 412 | 0.6 | 206 | 492,189 | 
| M24-10 | 515 | 309 | 412 | 0.6 | 206 | 492,189 | 
| M24-11 | 525 | 315 | 420 | 0.6 | 210 | 535,942 | 
| M24-12 | 525 | 315 | 420 | 0.6 | 210 | 567,354 | 
| No. | Loading Stress/MPa | Stress Amplitude/MPa | Fatigue Life/Time | |||
|---|---|---|---|---|---|---|
| R | N | |||||
| M24-13 | 550 | 330 | 440 | 0.6 | 220 | 153,563 | 
| M24-14 | 550 | 330 | 440 | 0.6 | 220 | 205,678 | 
| M24-15 | 550 | 330 | 440 | 0.6 | 220 | 196,329 | 
| M24-16 | 550 | 330 | 440 | 0.6 | 220 | 370,241 | 
| M24-17 | 550 | 330 | 440 | 0.6 | 220 | 457,271 | 
| M24-18 | 550 | 330 | 440 | 0.6 | 220 | 457,271 | 
| M24-19 | 550 | 330 | 440 | 0.6 | 220 | 642,275 | 
| M24-20 | 550 | 330 | 440 | 0.6 | 220 | 642,275 | 
| M24-21 | 550 | 330 | 440 | 0.6 | 220 | 441,443 | 
| No. | Loading Stress/MPa | Stress Amplitude/MPa | Fatigue Life/Time | |||
|---|---|---|---|---|---|---|
| R | N | |||||
| M24-22 | 575 | 345 | 460 | 0.6 | 230 | 282,422 | 
| M24-23 | 575 | 345 | 460 | 0.6 | 230 | 282,422 | 
| M24-24 | 600 | 360 | 480 | 0.6 | 240 | 195,186 | 
| M24-25 | 600 | 360 | 480 | 0.6 | 240 | 214,782 | 
| Parameter | a0 | ac (mm) | α | C | m | 
|---|---|---|---|---|---|
| 0.01 mm, 0.02 mm, 0.05 mm | 21.19 | 1.1215 | 7.04 × 10−12 | 3 | 
| No. | Predicted Life/Time | Test Life/Time | |||
|---|---|---|---|---|---|
| M24-1 | 400 | 240 | 160 | 2,731,721 | 5,100,006 | 
| M24-2 | 400 | 240 | 160 | 2,731,721 | 5,100,006 | 
| M24-3 | 475 | 285 | 190 | 1,631,306 | 2,273,480 | 
| M24-4 | 475 | 285 | 190 | 1,631,306 | 2,352,282 | 
| M24-5 | 485 | 291 | 194 | 1,532,467 | 751,375 | 
| M24-6 | 500 | 300 | 200 | 1,398,641 | 1,221,394 | 
| M24-7 | 500 | 300 | 200 | 1,398,641 | 1,298,395 | 
| M24-8 | 512.5 | 307.5 | 205 | 1,298,777 | 1,546,630 | 
| M24-9 | 515 | 309 | 206 | 1,279,955 | 492,189 | 
| M24-10 | 515 | 309 | 206 | 1,279,955 | 492,189 | 
| M24-11 | 525 | 315 | 210 | 1,208,199 | 535,942 | 
| M24-12 | 525 | 315 | 210 | 1,208,199 | 567,354 | 
| M24-13 | 550 | 330 | 220 | 1,050,820 | 153,563 | 
| M24-14 | 550 | 330 | 220 | 1,050,820 | 205,678 | 
| M24-15 | 550 | 330 | 220 | 1,050,820 | 196,329 | 
| M24-16 | 550 | 330 | 220 | 1,050,820 | 370,241 | 
| M24-17 | 550 | 330 | 220 | 1,050,820 | 457,271 | 
| M24-18 | 550 | 330 | 220 | 1,050,820 | 457,271 | 
| M24-19 | 550 | 330 | 220 | 1,050,820 | 642,275 | 
| M24-20 | 550 | 330 | 220 | 1,050,820 | 642,275 | 
| M24-21 | 550 | 330 | 220 | 1,050,820 | 441,443 | 
| M24-22 | 575 | 345 | 230 | 919,629 | 282,422 | 
| M24-23 | 575 | 345 | 230 | 919,629 | 282,422 | 
| M24-24 | 600 | 360 | 240 | 809,399 | 195,186 | 
| M24-25 | 600 | 360 | 240 | 809,399 | 214,782 | 
| No. | Predicted Life/Time | Test Life/Time | |||
|---|---|---|---|---|---|
| M24-1 | 400 | 240 | 160 | 1,913,851 | 5,100,006 | 
| M24-2 | 400 | 240 | 160 | 1,913,851 | 5,100,006 | 
| M24-3 | 475 | 285 | 190 | 1,142,897 | 2,273,480 | 
| M24-4 | 475 | 285 | 190 | 1,142,897 | 2,352,282 | 
| M24-5 | 485 | 291 | 194 | 1,073,650 | 751,375 | 
| M24-6 | 500 | 300 | 200 | 979,892 | 1,221,394 | 
| M24-7 | 500 | 300 | 200 | 979,892 | 1,298,395 | 
| M24-8 | 512.5 | 307.5 | 205 | 909,927 | 1,546,630 | 
| M24-9 | 515 | 309 | 206 | 896,740 | 492,189 | 
| M24-10 | 515 | 309 | 206 | 896,740 | 492,189 | 
| M24-11 | 525 | 315 | 210 | 846,467 | 535,942 | 
| M24-12 | 525 | 315 | 210 | 846,467 | 567,354 | 
| M24-13 | 550 | 330 | 220 | 736,207 | 153,563 | 
| M24-14 | 550 | 330 | 220 | 736,207 | 205,678 | 
| M24-15 | 550 | 330 | 220 | 736,207 | 196,329 | 
| M24-16 | 550 | 330 | 220 | 736,207 | 370,241 | 
| M24-17 | 550 | 330 | 220 | 736,207 | 457,271 | 
| M24-18 | 550 | 330 | 220 | 736,207 | 457,271 | 
| M24-19 | 550 | 330 | 220 | 736,207 | 642,275 | 
| M24-20 | 550 | 330 | 220 | 736,207 | 642,275 | 
| M24-21 | 550 | 330 | 220 | 736,207 | 441,443 | 
| M24-22 | 575 | 345 | 230 | 644,295 | 282,422 | 
| M24-23 | 575 | 345 | 230 | 644,295 | 282,422 | 
| M24-24 | 600 | 360 | 240 | 567,067 | 195,186 | 
| M24-25 | 600 | 360 | 240 | 567,067 | 214,782 | 
| No. | Predicted Life/Time | Test Life/Time | |||
|---|---|---|---|---|---|
| M24-1 | 400 | 240 | 160 | 1,188,130 | 5,100,006 | 
| M24-2 | 400 | 240 | 160 | 1,188,130 | 5,100,006 | 
| M24-3 | 475 | 285 | 190 | 709,517 | 2,273,480 | 
| M24-4 | 475 | 285 | 190 | 709,517 | 2,352,282 | 
| M24-5 | 485 | 291 | 194 | 666,528 | 751,375 | 
| M24-6 | 500 | 300 | 200 | 608,323 | 1,221,394 | 
| M24-7 | 500 | 300 | 200 | 608,323 | 1,298,395 | 
| M24-8 | 512.5 | 307.5 | 205 | 564,888 | 1,546,630 | 
| M24-9 | 515 | 309 | 206 | 556,701 | 492,189 | 
| M24-10 | 515 | 309 | 206 | 556,701 | 492,189 | 
| M24-11 | 525 | 315 | 210 | 525,492 | 535,942 | 
| M24-12 | 525 | 315 | 210 | 525,492 | 567,354 | 
| M24-13 | 550 | 330 | 220 | 457,042 | 153,563 | 
| M24-14 | 550 | 330 | 220 | 457,042 | 205,678 | 
| M24-15 | 550 | 330 | 220 | 457,042 | 196,329 | 
| M24-16 | 550 | 330 | 220 | 457,042 | 370,241 | 
| M24-17 | 550 | 330 | 220 | 457,042 | 457,271 | 
| M24-18 | 550 | 330 | 220 | 457,042 | 457,271 | 
| M24-19 | 550 | 330 | 220 | 457,042 | 642,275 | 
| M24-20 | 550 | 330 | 220 | 457,042 | 642,275 | 
| M24-21 | 550 | 330 | 220 | 457,042 | 441,443 | 
| M24-22 | 575 | 345 | 230 | 399,982 | 282,422 | 
| M24-23 | 575 | 345 | 230 | 399,982 | 282,422 | 
| M24-24 | 600 | 360 | 240 | 352,039 | 195,186 | 
| M24-25 | 600 | 360 | 240 | 352,039 | 214,782 | 
| No. | Stress/MPa | Stress Amplitude/MPa | Fatigue Life/Time | |||
|---|---|---|---|---|---|---|
| R | The Torque Value of the Pretension Force/(N·m) | ∆σ | N | |||
| 1 | 180 | 90 | 0.5 | 300 | 90 | 2,426,465 | 
| 2 | 190 | 95 | 0.5 | 360 | 95 | 2,477,335 | 
| 3 | 200 | 100 | 0.5 | 300 | 100 | 2,791,911 | 
| 4 | 210 | 105 | 0.5 | 230 | 105 | 1,748,722 | 
| 5 | 220 | 110 | 0.5 | 300 | 110 | 1,422,068 | 
| 6 | 230 | 115 | 0.5 | 230 | 115 | 1,152,669 | 
| 7 | 240 | 120 | 0.5 | 330 | 120 | 818,742 | 
| 8 | 250 | 125 | 0.5 | 250 | 125 | 532,491 | 
| 9 | 260 | 130 | 0.5 | 330 | 130 | 684,474 | 
| 10 | 270 | 135 | 0.5 | 270 | 135 | 778,867 | 
| 11 | 280 | 140 | 0.5 | 330 | 140 | 296,540 | 
| 12 | 290 | 145 | 0.5 | 190 | 145 | 539,048 | 
| 13 | 300 | 150 | 0.5 | 360 | 150 | 523,784 | 
| 14 | 320 | 160 | 0.5 | 360 | 160 | 385,283 | 
| 15 | 340 | 170 | 0.5 | 360 | 170 | 189,234 | 
| 16 | 360 | 180 | 0.5 | 240 | 180 | 190,009 | 
| 17 | 380 | 190 | 0.5 | 240 | 190 | 130,256 | 
| 18 | 400 | 200 | 0.5 | 240 | 200 | 168,523 | 
| 19 | 420 | 210 | 0.5 | 270 | 210 | 84,119 | 
| 20 | 440 | 220 | 0.5 | 270 | 220 | 81,535 | 
| 21 | 460 | 230 | 0.5 | 270 | 230 | 68,781 | 
| No. | Stress/MPa | Stress Amplitude/MPa | Fatigue Life/Time | |||
|---|---|---|---|---|---|---|
| R | ∆σ | N | ||||
| 1 | 1000 | 640 | 820 | 0.64 | 360 | 21,500 | 
| 2 | 1133 | 725 | 929 | 0.64 | 408 | 12,800 | 
| 3 | 430 | 278 | 354 | 0.64 | 155 | 411,700 | 
| 4 | 450 | 288 | 369 | 0.64 | 162 | 319,000 | 
| 5 | 470 | 300.8 | 385.4 | 0.64 | 169.2 | 306,900 | 
| 6 | 490 | 313.6 | 401.8 | 0.64 | 176.4 | 299,200 | 
| 7 | 800 | 512 | 656 | 0.64 | 288 | 46,000 | 
| 8 | 650 | 416 | 533 | 0.64 | 234 | 113,000 | 
| 9 | 600 | 384 | 492 | 0.64 | 216 | 159,300 | 
| 10 | 550 | 352 | 451 | 0.64 | 198 | 179,200 | 
| 11 | 400 | 256 | 328 | 0.64 | 144 | 668,200 | 
| 12 | 350 | 224 | 287 | 0.64 | 126 | 1,305,600 | 
| 13 | 370 | 236.8 | 303.4 | 0.64 | 133.2 | 732,700 | 
| 14 | 360 | 230.4 | 295.2 | 0.64 | 129.6 | 915,600 | 
| No. | Fatigue Life/Time | No. | Fatigue Life/Time | 
|---|---|---|---|
| N | N | ||
| M20-1 | 28,103 | M20-7 | 106,049 | 
| M20-2 | 32,223 | M20-8 | 124,244 | 
| M20-3 | 34,656 | M20-9 | 293,280 | 
| M20-4 | 49,162 | M20-10 | 1,021,264 | 
| M20-5 | 79,504 | M20-11 | 602,672 | 
| M20-6 | 87,079 | M20-12 | 1,580,019 | 
| The Type of Bolt | Equation | The Stress Amplitude/MP (2 Million Fatigue Life; the Reliability Level of 97.72%) | 
|---|---|---|
| 10.9-grade M24 twisted-shear bolt | 167 | |
| 8.8-grade M24 | 90 | |
| 10.9-grade M24 | 98 | |
| M20 twisted-shear bolt | 278 | 
| Disclaimer/Publisher’s Note: The statements, opinions and data contained in all publications are solely those of the individual author(s) and contributor(s) and not of MDPI and/or the editor(s). MDPI and/or the editor(s) disclaim responsibility for any injury to people or property resulting from any ideas, methods, instructions or products referred to in the content. | 
© 2023 by the authors. Licensee MDPI, Basel, Switzerland. This article is an open access article distributed under the terms and conditions of the Creative Commons Attribution (CC BY) license (https://creativecommons.org/licenses/by/4.0/).
Share and Cite
Xing, R.; Qiu, B.; Lei, H. Experimental Study on Fatigue Performance of M24 Twisted-Shear High-Strength Bolt for Assembled Steel Structure. Appl. Sci. 2023, 13, 4296. https://doi.org/10.3390/app13074296
Xing R, Qiu B, Lei H. Experimental Study on Fatigue Performance of M24 Twisted-Shear High-Strength Bolt for Assembled Steel Structure. Applied Sciences. 2023; 13(7):4296. https://doi.org/10.3390/app13074296
Chicago/Turabian StyleXing, Rong, Bin Qiu, and Honggang Lei. 2023. "Experimental Study on Fatigue Performance of M24 Twisted-Shear High-Strength Bolt for Assembled Steel Structure" Applied Sciences 13, no. 7: 4296. https://doi.org/10.3390/app13074296
APA StyleXing, R., Qiu, B., & Lei, H. (2023). Experimental Study on Fatigue Performance of M24 Twisted-Shear High-Strength Bolt for Assembled Steel Structure. Applied Sciences, 13(7), 4296. https://doi.org/10.3390/app13074296
 
        



 
       