Analysis of the Progressive Collapse Resistance Mechanism of an RC Frame Structure with an L-Shaped Plane
Abstract
:1. Introduction
2. Structural Modeling
2.1. Irregular Structure
2.2. Project Overview
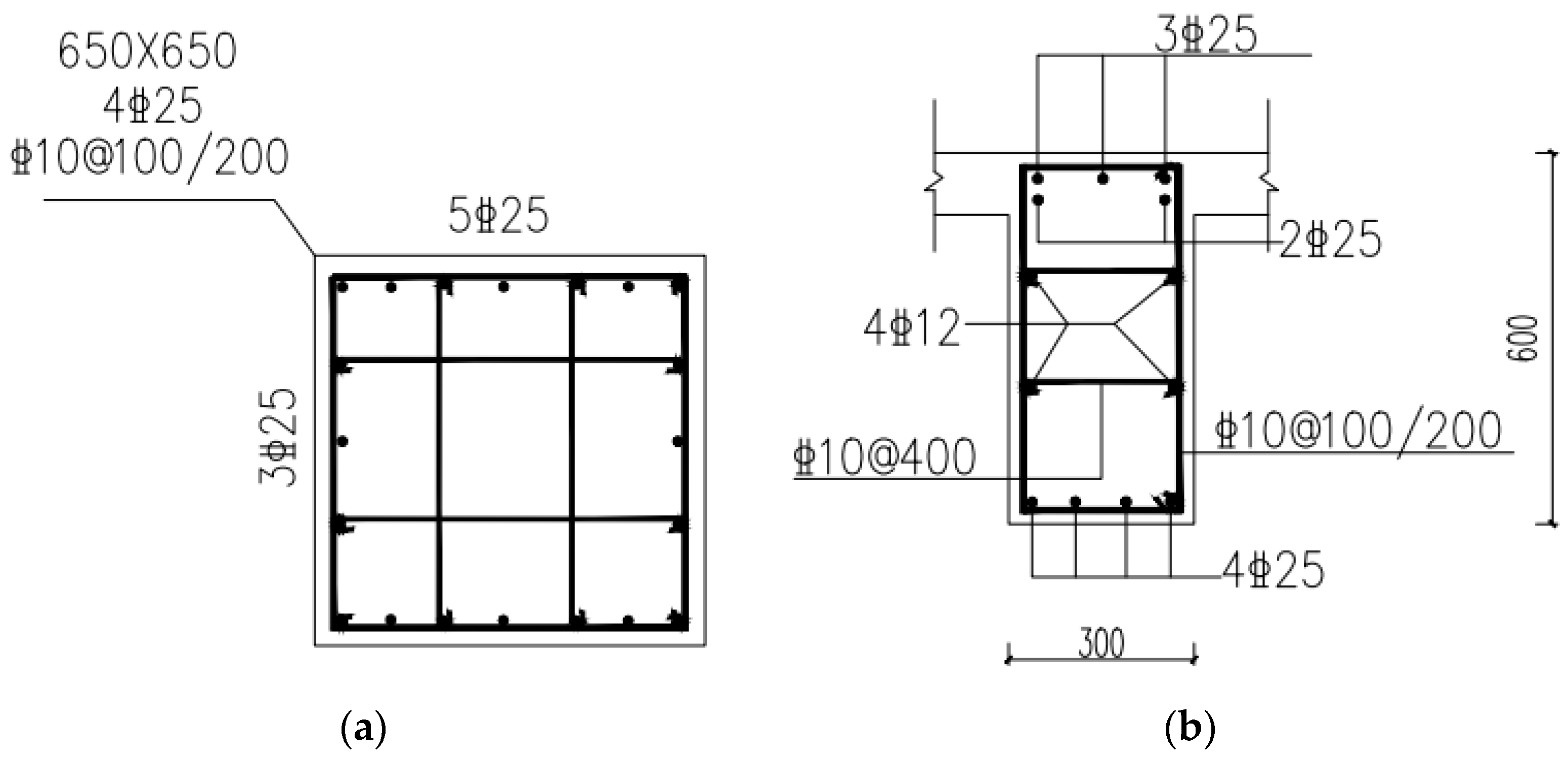
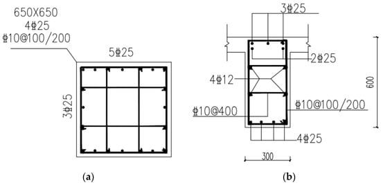
2.3. Type of Reinforcement
3. Theoretical Analysis
3.1. Material Constitutive Analysis
3.1.1. Constitutive Model of Concrete
3.1.2. Constitutive Model of Reinforcement
3.2. Nonlinear Dynamic Analysis
3.3. Model Verification
4. Discussion
4.1. Removal of the Convex-Corner Column
4.2. The Corner Column at the Concave Corner Is Removed
5. Conclusions
- (1)
- In the two cases, the displacement of the node above the original structure failure column was 96.6 mm and 57.6 mm, respectively. This shows that when the angular column fails at the convex part of the first floor, the displacement of the node above the failure column is the largest, which is more likely to cause the progressive collapse of the L-shaped plane frame structure.
- (2)
- When working condition 1 occurs, the far-bending moment of the connecting beam above the failure column of the steel roof truss structure is 375.6 KN∙m, and the bending moment value of the structure with the X-tensile reinforcement is 453.4 KN∙m. When working condition 2 occurs, the bending moment values are 335.2 KN∙m and 461.2 KN∙m. The bending moment values of the steel roof truss structures are all smaller than those of structures with X-tensile reinforcement. This shows that the steel truss on the roof forms an alternative load transfer path with the columns of each layer, which can effectively transfer a part of the load above the failure column and provide a larger safety reserve for the structure.
- (3)
- When working condition 1 occurs, the vertical displacement of the failure column of the steel roof truss structure decreases most obviously, decreasing by 44.7%. The vertical displacement of the failure column of the X-tension reinforcement structure is reduced by 21.1%. This indicates that both the steel truss and X-tension strengthening can create a new transmission path for the resistance, and can share a part of the resistance of the beam, transfer the internal force of the failed column to the adjacent column, and improve the anti-collapse ability of the structure. However, the best transmission effect is achieved by adding a steel truss to the roof.
Author Contributions
Funding
Institutional Review Board Statement
Informed Consent Statement
Data Availability Statement
Conflicts of Interest
References
- Lin, K.; Chen, Z.; Li, Y.; Lu, X. Uncertainty Analysis on Progressive Collapse of RC Frame Structures under Dynamic Column Removal Scenarios. J. Build. Eng. 2022, 46, 43–51. [Google Scholar] [CrossRef]
- Nyunn, S.; Wang, F.; Yang, J.; Liu, Q.; Azim, I.; Bhatta, S. Numerical Studies on the Progressive Collapse Resistance of Multi-story RC Buildings with and without Exterior Masonry Walls. Structures 2020, 28, 1050–1059. [Google Scholar] [CrossRef]
- Zhang, Q.; Zhao, Y.; Kolozvari, K.; Xu, L. Simplifified Model for Assessing Progressive Collapse Resistance of Reinforced Concrete Frames under an Interior Column Loss. Eng. Struct. 2020, 215, 12–20. [Google Scholar] [CrossRef]
- Neeraja, P.; Anish, K. Investigation on progressive collapse failure in a multistorey irregular structure. Mater. Today Proc. 2021, 51, 538–542. [Google Scholar] [CrossRef]
- Esteghamati, M.Z.; Alimohammadi, S. Reliability-based assessment of progressive collapse in horizontally irregular multi-story concrete buildings. Structures 2022, 44, 1597–1606. [Google Scholar] [CrossRef]
- GSA. Progressive Collapse Analysis and Design Guidelines for New Federal Office Buildings and Major Modernization Projects; The US General Services Administration: Washington, DC, USA, 2003. [Google Scholar]
- Unified Facilities Criteria (UFC)-DoD, Design of Buildings to Resist Progressive Collapse, Department of Defense, USA. 2005. Available online: https://www.wbdg.org/ffc/dod/unified-facilities-criteria-ufc/ufc-4-023-03 (accessed on 10 June 2023).
- Bandyopadhyay, M.; Banik, A.K. Improvement of progressive collapse resistance potential of semi-rigid jointed steel frames through bracings. Int. J. Protect Struct. 2016, 7, 518–546. [Google Scholar] [CrossRef]
- Yu, J.; Gan, Y.; Ji, J. Behavior and design of reinforced concrete frames retrofitted with steel bracing against progressive collapse. Struct. Des. Tall Spec. Build. 2020, 29, 102–113. [Google Scholar] [CrossRef]
- Ke, C.; Zhang, X. Nonlinear dynamic analysis of the effect of X-type tension reinforcement on RC frame resistance to progressive collapse. Eng. Seism. Reinf. Modif. 2022, 44, 53–59. (In Chinese) [Google Scholar]
- Qiu, L.; Lin, F.; Wu, K. Improving progressive collapse resistance of RC beam-column subassemblages using external steel cables. J. Perform. Constr. Facil. 2020, 34, 62–75. [Google Scholar] [CrossRef]
- Freddi, F.; Ciman, L.; Tondini, N. Retrofit of existing steel structures against progressive collapse through roof-truss. J. Constr. Steel Res. 2022, 188, 108–116. [Google Scholar] [CrossRef]
- Zahrai, S.M.; Ezoddin, A. Cap truss and steel strut to resist progressive collapse in RC frame Structures. Steel Compos. Struct. 2018, 26, 635–647. [Google Scholar] [CrossRef]
- Kiakojouri, F.; Sheidaii, M. Effects of finite element modeling and analysis techniques on response of steel moment-resisting frame in dynamic column removal scenarios. Asian J. Civil. Eng. 2018, 19, 295–307. [Google Scholar] [CrossRef]
- Stephen, D.; Lam, D.; Forth, J.; Ye, J.; Tsavdaridis, K.D. An evaluation of modelling approaches and column removal time on progressive collapse of building. J. Constr. Steel Res. 2019, 153, 243–253. [Google Scholar] [CrossRef]
- Zhao, X.; Shen, B.; Ma, K.; Wang, H.; He, Z.; Zhang, X.; Wu, B. Study on the dynamic analysis method of progressive collapse of plan truss structures. Prog. Steel Build. Struct. 2019, 21, 15–22. (In Chinese) [Google Scholar]
- UBC-97; Uniform Building Code; International Conference of Building Official: Washington, DC, USA, 1997; pp. 37–49.
- GB 50011-2010; Ministry of Construction of the People’s Republic of China: Code for Seismic Design of Buildings. China Construction Industry Press: Beijing, China, 2010; pp. 58–79. (In Chinese)
- GB 50010-2010; Code for the Design of Concrete Structures. China Construction Industry Press: Beijing, China, 2011; pp. 51–64. (In Chinese)
- Huang, S.; Guo, X.; Sun, D.; Guan, Y.; Tarasenko, A.A. Shaking table experimental study of damage mechanism of external gallery type RC frame. Eng. Mech. 2016, 33, 63–71. (In Chinese) [Google Scholar]
- Zhang, S.; Cheng, M.; Wang, J.; Wu, J. Modeling the hysteretic responses of RC shear walls under cyclic loading by an energy-based plastic-damage model for concrete. Int. J. Damage Mech. 2020, 29, 107–124. [Google Scholar] [CrossRef]
- Jiao, Y.; Wang, B.; Shen, Z. A New 3D Empirical Plastic and Damage Model for Simulating the Failure of Concrete Structure. Int. J. Concr. Struct. Mater. 2019, 13, 118–137. [Google Scholar] [CrossRef]
- Li, Z. Research on Progressive Collapse Resistance of Structure Based on Alternative Path Method. Ph.D. Thesis, Tianjin University, Tianjin, China, 2013. (In Chinese). [Google Scholar]
- Guo, J. Numerical Analysis of Influence of Cast-in-Place RC Floor on Progressive Collapse Resistance of Frame. Master’s Thesis, Chang’an University, Xi’an, China, 2019. (In Chinese). [Google Scholar]


















| Floor | Main Beam Sectional Dimension (mm) | Secondary Beam Sectional Dimension (mm) | Column Sectional Dimension (mm) | Concrete Intensity | Strength Grade of Beam Column Longitudinal Bar | Stirrup Strength Grade |
|---|---|---|---|---|---|---|
| 1 | 300 × 600 | 250 × 450 | 650 × 650 | C30 | HRB400 | HRB400 |
| 2–6 | 300 × 600 | 250 × 450 | 600 × 600 | C30 | HRB400 | HRB400 |
| Bar | Length (m) | Amount | Whole Length (m) |
|---|---|---|---|
| Upper chord | 3.6 | 132 | 475.2 |
| Straight flank rod | 1.5 | 106 | 159 |
| Diagonal flank rod | 3.9 | 132 | 514.8 |
| Type | Density (kg/m3) | Elastic Modulus, ES (GPa) | Poisson Ration | Yield Strength, fy (MPa) |
|---|---|---|---|---|
| Q345 | 7850 | 210 | 0.3 | 345 |
| HRB400 | 7850 | 200 | 0.3 | 400 |
| Structure Type | Bending Moment (KN∙m) | Column a Axial Force (KN) | Vertical Displacement (mm) |
|---|---|---|---|
| Steel roof truss | 375.6 | 5365 | 53.4 |
| X-tie bar | 453.4 | 5136 | 76.3 |
| Original structure | 513.2 | 4966 | 96.6 |
| Structure Type | Bending Moment (KN∙m) | Column b Axial Force (KN) | Vertical Displacement (mm) |
|---|---|---|---|
| Steel roof truss | 335.2 | 7265 | 35.6 |
| X-tie bar | 461.2 | 7185 | 50.2 |
| Original structure | 504.8 | 6856 | 57.6 |
Disclaimer/Publisher’s Note: The statements, opinions and data contained in all publications are solely those of the individual author(s) and contributor(s) and not of MDPI and/or the editor(s). MDPI and/or the editor(s) disclaim responsibility for any injury to people or property resulting from any ideas, methods, instructions or products referred to in the content. |
© 2023 by the authors. Licensee MDPI, Basel, Switzerland. This article is an open access article distributed under the terms and conditions of the Creative Commons Attribution (CC BY) license (https://creativecommons.org/licenses/by/4.0/).
Share and Cite
Dai, Y.; Qin, L. Analysis of the Progressive Collapse Resistance Mechanism of an RC Frame Structure with an L-Shaped Plane. Appl. Sci. 2023, 13, 7216. https://doi.org/10.3390/app13127216
Dai Y, Qin L. Analysis of the Progressive Collapse Resistance Mechanism of an RC Frame Structure with an L-Shaped Plane. Applied Sciences. 2023; 13(12):7216. https://doi.org/10.3390/app13127216
Chicago/Turabian StyleDai, Yifei, and Lei Qin. 2023. "Analysis of the Progressive Collapse Resistance Mechanism of an RC Frame Structure with an L-Shaped Plane" Applied Sciences 13, no. 12: 7216. https://doi.org/10.3390/app13127216
APA StyleDai, Y., & Qin, L. (2023). Analysis of the Progressive Collapse Resistance Mechanism of an RC Frame Structure with an L-Shaped Plane. Applied Sciences, 13(12), 7216. https://doi.org/10.3390/app13127216
