Performance Analysis of Phase Change Material Walls and Different Window-to-Wall Ratios in Elderly Care Home Buildings Under Hot-Summer and Cold-Winter Climate
Abstract
1. Introduction
2. Materials and Methods
2.1. Simulation Model
2.1.1. Workflow
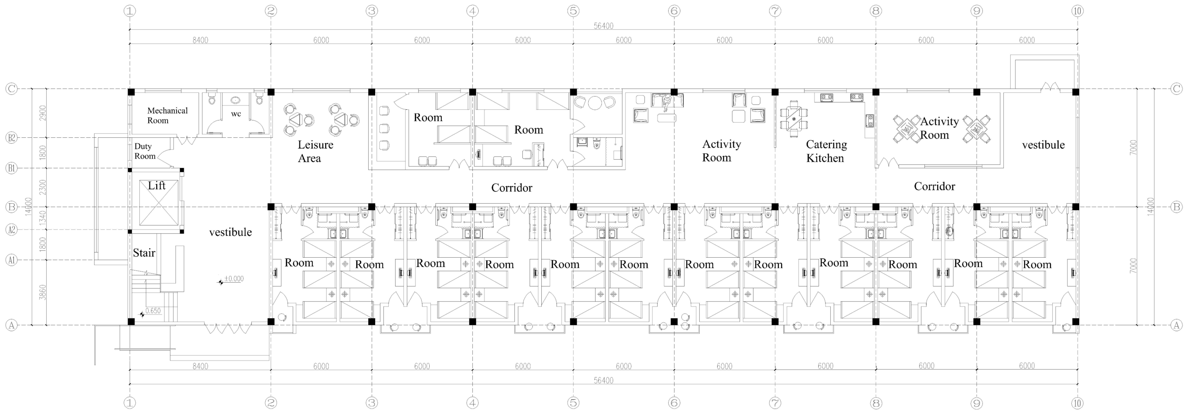
2.1.2. Physical Model
2.1.3. Governing Equations and Assumptions
- Heat balance equation for indoor air:
- 2
- Heat balance equation for the exterior wall surface:
- 3
- Heat balance equation for the interior wall surface:
- Heat transfer is simplified to a one-dimensional, unsteady conduction process.
- Layers are assumed to be perfectly bonded, with interfacial contact resistance neglected.
- Both the PCM phase-change layer and other material layers are treated as thermally homogeneous and isotropic.
- In numerical analysis, the thermal properties of PCM are temperature-independent except during the phase-change process.
- No additional internal heat sources are present indoors.
- Only temperature-driven heat transfer is considered; effects of moisture variation and rain penetration are neglected.
2.2. Experimental Setup
2.2.1. Construction of Experimental Platform
2.2.2. Experimental Conditions
2.2.3. Sensor Deployment
2.2.4. Uncertainty Analysis of Measurements
2.2.5. Experimental Results Analysis
2.3. Model Validation
2.3.1. Simulation Model Setup (For Model Validation)
2.3.2. Accuracy Metrics
2.3.3. Validation Accuracy
3. Analysis of Annual Energy Consumption
3.1. Outdoor Climate
3.2. Case Building
3.3. Impact of the Pcm Wall on Energy Use in Elderly Care Buildings
3.4. Synergistic Effects of the Pcm Wall and Window-to-Wall Ratio
3.4.1. Simulation Setup
3.4.2. Simulation Results and Analysis
- East/West. Cooling and total loads increase markedly with WWR; heating changes little. In the no-PCM case, raising WWR from 0.25 to 0.50 increases total load density from 44.2 to 57.7 kW·h·m−2 in the east (30%) and from 41.1 to 51.1 kW·h·m−2 in the west. Strong oblique solar gains drive summer cooling up, while additional winter gains remain limited, producing a double penalty. Recommended WWR ≤ 0.30 to suppress summer energy growth.
- South. Cooling rises and heating falls as WWR increases; the total load curve is convex with a minimum. The optimum is WWR = 0.35 without PCM and WWR = 0.40 with PCM, where the minimum total load reaches 111.2 kW·h·m−2. PCM absorbs excess summer gains and offsets the cooling penalty of larger glazing, widening the acceptable WWR range. Recommended WWR = 0.35–0.40 to balance winter daylight and summer efficiency.
- North. No direct solar incidence; increasing WWR mainly elevates winter heat loss and adds modest summer cooling. Total load grows approximately linearly with WWR (e.g., 114.5 to 151.0 kW·h·m−2 without PCM). PCM lowers absolute levels but does not alter the upward trend. Recommended WWR = 0.25 to satisfy basic daylight with limited penalties.
4. Discussion
4.1. Synergistic Energy and Comfort Performance of PCM Walls and WWR
4.2. Implications for Nighttime Heat Release, Orientation and Practical Applicability
4.3. Limitations and Directions for Future Research
5. Conclusions
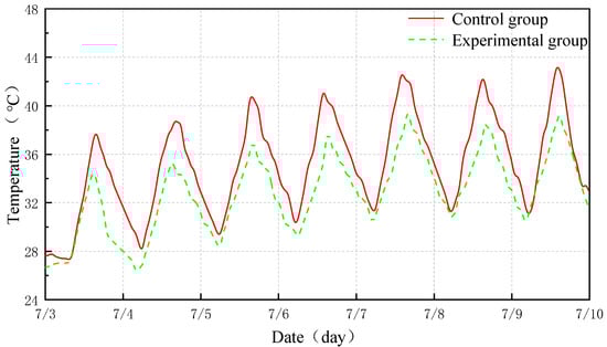
- PCM wall—marked energy benefit. Experiments show that the surface temperature of the southern facade exterior wall using the PCM wall is 3.9 °C lower than that of the wall without PCM. Experimental data indicate that PCM effectively inhibits the conduction of external heat and reduces the temperature of the wall. Simulation results show that the PCM wall can effectively reduce building energy consumption: air conditioning energy consumption in summer is reduced by 8.2%, and total annual energy consumption is reduced by 14.2%. When the window-to-wall ratio (WWR) of the southern facade is optimized to 0.40, the total annual energy consumption is reduced by 9.8%, while the indoor temperature is always maintained between 18 and 26 °C, which meets the thermal comfort requirements of the elderly.
- WWR—orientation dependence. East/west loads rise sharply as WWR increases; recommended WWR ≤ 0.30. The south façade exhibits an optimum range—≈0.35 without PCM and ≈0.40 with PCM—reflecting a trade-off between summer cooling and winter gains. The north façade shows near-linear load growth with WWR; recommended WWR = 0.25. Optimization should be orientation specific.
- Synergy—balanced energy and comfort. With PCM on the south façade and WWR = 0.40, annual total energy-use density reaches 111.2 kW·h·m−2 (a reduction of 9.8%), and indoor temperature remains 18–26 °C. For east- and west-facing rooms with a relatively high WWR, compared with non-PCM cases under the same WWR, PCM can reduce the cooling load by up to 15.3%, offsetting part of the daylighting-related increase. The strategy fits the “high comfort, low energy” requirement of elderly care buildings.
Author Contributions
Funding
Data Availability Statement
Conflicts of Interest
References
- Urge-Vorsatz, D.; Cabeza, L.F.; Serrano, S.; Barreneche, C.; Petrichenko, K. Heating and cooling energy trends and drivers in buildings. Renew. Sustain. Energy Rev. 2015, 41, 85–98. [Google Scholar] [CrossRef]
- Zhou, S.; Li, B.; Du, C.; Liu, H.; Wu, Y.; Hodder, S.; Chen, M.; Kosonen, R.; Ming, R.; Ouyang, L.; et al. Opportunities and challenges of using thermal comfort models for building design and operation for the elderly: A literature review. Renew. Sustain. Energy Rev. 2023, 183, 113504. [Google Scholar] [CrossRef]
- Chen, X.; Xu, Z.; Qiu, Y.; Jiang, L.; Li, Y. China’s newest design of apartment buildings with modernized façade: A comparative evaluation of its energy performance in five major climate zones. Sustain. Cities Soc. 2024, 117, 105954. [Google Scholar] [CrossRef]
- Wu, H.; Zhang, T. Multi-objective optimization of energy, visual, and thermal performance for building envelopes in China’s hot summer and cold winter climate zone. J. Build. Eng. 2022, 59, 105034. [Google Scholar] [CrossRef]
- Hu, H.; Zhang, Y.; Li, Q.; Zhao, J. Analysis of the applicability of a phase-change energy storage wall for public buildings in hot summer and cold winter climate zones. Heat Transf. Eng. 2025, 46, 1774–1787. [Google Scholar] [CrossRef]
- Jin, X.; Medina, M.A.; Zhang, X. On the importance of the location of PCMs in building walls for enhanced thermal performance. Appl. Energy 2013, 106, 72–78. [Google Scholar] [CrossRef]
- Kumar, G.; De, S.; Thakur, B. Wall and air conditioner combination for the best energy and economic performance: Methodology demonstration for high-rise residential buildings. Energy Convers. Manag. 2024, 300, 117909. [Google Scholar] [CrossRef]
- Yang, Q.; Liu, M.; Shu, C.; Fang, Y. Impact analysis of window-wall ratio on heating and cooling energy consumption of residential buildings in hot summer and cold winter zone in China. J. Eng. 2015, 2015, 538254. [Google Scholar] [CrossRef]
- Lin, Y.; Yang, W. Application of multi-objective genetic algorithm-based simulation for cost-effective building energy efficiency design and thermal comfort improvement. Front. Energy Res. 2018, 6, 25. [Google Scholar] [CrossRef]
- Kolaitis, D.I.; Malliotakis, E.; Kontogeorgos, D.A.; Mandilaras, I.; Katsourinis, D.I.; Founti, M.A. Comparative assessment of internal and external thermal insulation systems for energy efficient retrofitting of residential buildings. Energy Build. 2013, 64, 123–131. [Google Scholar] [CrossRef]
- Sayadi, S.; Hayati, A.; Salmanzadeh, M. Optimization of Window-to-Wall Ratio for Buildings Located in Different Climates: An IDA-Indoor Climate and Energy Simulation Study. Energies 2021, 14, 1974. [Google Scholar] [CrossRef]
- Cheng, R.; Zhang, N.; Zhang, W.; Sun, Y.; Yin, B.; Gao, W. Impact of Thermal Mass, Window Performance, and Window–Wall Ratio on Indoor Thermal Dynamics in Public Buildings. Buildings 2025, 15, 1757. [Google Scholar] [CrossRef]
- Xu, B.; Yuan, X. A novel method of BP neural network-based green building design—The case of hotel buildings in hot summer and cold winter region of China. Sustainability 2022, 14, 2444. [Google Scholar] [CrossRef]
- Shrestha, S.; Rijal, H.B. Energy saving by adaptive thermal comfort and occupant behaviours in dwellings based on literature review. J. Build. Eng. 2025, 113, 113657. [Google Scholar] [CrossRef]
- Zheng, X.; Liang, Y.; Yang, H.; Zeng, Y.; Cui, H. Collaborative optimized design of glazing parameters and PCM utilization for energy-efficient Glass Curtain Wall buildings. Buildings 2024, 14, 256. [Google Scholar] [CrossRef]
- Xie, J.; Miao, X.; Dewancker, B.J.; Xu, T.; Zhao, X.; Shi, C.; Wei, X. Comprehensive assessment of building energy consumption in hot summer and cold winter areas based on carbon tax considerations. Front. Energy Res. 2023, 11, 1250540. [Google Scholar] [CrossRef]
- Ke, W.; Ji, J.; Zhang, C.; Xie, H.; Tang, Y.; Wang, C. Effects of the PCM layer position on the comprehensive performance of a built-middle PV-Trombe wall system for building application in the heating season. Energy 2022, 250, 126562. [Google Scholar] [CrossRef]
- Tabares-Velasco, P.C.; Christensen, C.; Bianchi, M. Validation Methodology to Allow Simulated Peak Reduction and Energy Performance Analysis of Residential Building Envelope with Phase Change Materials (No. NREL/CP-5500-54015); National Renewable Energy Lab. (NREL): Golden, CO, USA, 2012.
- Li, W.; Rahim, M.; Wu, D.; El Ganaoui, M.; Bennacer, R. Experimental study of dynamic PCM integration in building walls for enhanced thermal performance in summer conditions. Renew. Energy 2024, 237, 121891. [Google Scholar] [CrossRef]
- Chai, T.; Draxler, R.R. Root mean square error (RMSE) or mean absolute error (MAE)? Arguments against avoiding RMSE in the literature. Geosci. Model Dev. 2014, 7, 1247–1250. [Google Scholar] [CrossRef]
- Wang, Z.; Qiao, Y.; Liu, Y.; Bao, J.; Gao, Q.; Chen, J.; Yao, H.; Yang, L. Thermal storage performance of building envelopes for nearly-zero energy buildings during cooling season in Western China: An experimental study. Build. Environ. 2021, 194, 107709. [Google Scholar] [CrossRef]
- ASHRAE Guideline. Measurement of Energy, Demand, and Water Savings; ASHRAE: Peachtree Corners, GA, USA, 2014. [Google Scholar]
- Tabares-Velasco, P.C.; Christensen, C.; Bianchi, M. Verification and validation of EnergyPlus phase change material model for opaque wall assemblies. Build. Environ. 2012, 54, 186–196. [Google Scholar] [CrossRef]
- Fan, X. A method for the generation of typical meteorological year data using ensemble empirical mode decomposition for different climates of China and performance comparison analysis. Energy 2022, 240, 122822. [Google Scholar] [CrossRef]
- Baylis, C.; Cruickshank, C.A. Experimental Validation of an EnergyPlus Model with Building Integrated Phase Change Material. In Proceedings of the eSim 2024: 13th Conference of IBPSA-Canada, Edmonton, AB, Canada, 5–7 June 2024. [Google Scholar]
- Liu, Q.; Ren, J. Research on technology clusters and the energy efficiency of energy-saving retrofits of existing office buildings in different climatic regions. Energy Sustain. Soc. 2018, 8, 24. [Google Scholar] [CrossRef]
- American Society of Heating, Refrigerating, Air-Conditioning Engineers; Illuminating Engineering Society of North America. Energy Standard for Buildings Except Low-Rise Residential Buildings; ASHRAE: Peachtree Corners, GA, USA, 2000; Volume 90. [Google Scholar]
- Bamdad, K.; Mohammadzadeh, N.; Cholette, M.; Perera, S. Model Predictive Control for Energy Optimization of HVAC Systems Using EnergyPlus and ACO Algorithm. Buildings 2023, 13, 3084. [Google Scholar] [CrossRef]
- Ministry of Ecology. 2020 Press Conference Records of Ministry of Ecology and Environment, the People’s Republic of China; Springer Nature: Berlin/Heidelberg, Germany, 2022. [Google Scholar]
- Chan, Y.; Hoke, T.; Meredith, K.; Chen, X. Annual simulation of phase change materials for enhanced energy efficiency and thermal performance of buildings in Southern California. Energies 2025, 18, 847. [Google Scholar] [CrossRef]
- Ma, R.; Ma, R.; Long, E. Analysis of the rule of window-to-wall ratio on energy demand of residential buildings in different locations in China. Heliyon 2023, 9, e12803. [Google Scholar] [CrossRef]
- GB 50189-2015; General Administration of Quality Supervision, Inspection and Quarantine (AQSIQ). Design Standard for Energy Efficiency of Public Buildings. China Architecture & Building Press: Beijing, China, 2015. (In Chinese)
- JGJ 450-2018; Standard for Design of Elderly Care Facilities. China Architecture & Building Press: Beijing, China, 2018. (In Chinese)
- Baetens, R.; Jelle, B.P.; Gustavsen, A. Phase change materials for building applications: A state-of-the-art review. Energy Build. 2010, 42, 1361–1368. [Google Scholar] [CrossRef]
- Alwetaishi, M.; Benjeddou, O. Impact of Window to Wall Ratio on Energy Loads in Hot Regions: A Study of Building Energy Performance. Energies 2021, 14, 1080. [Google Scholar] [CrossRef]
- Hao, W.; Sohn, D.-W. Research on thermal comfort and energy efficiency in office buildings with high window-to-wall ratios: A case study in Qingdao. Int. J. Low-Carbon Technol. 2024, 19, 2309–2327. [Google Scholar] [CrossRef]


















| Serial Number | Material | Density (kg/m3) | Specific Heat Capacity (J/kg·K) | Thermal Conductivity (W/m·K) | Thickness (mm) |
|---|---|---|---|---|---|
| 1 | Cement mortar | 1800 | 1050 | 0.93 | 20 |
| 2 | Red clay brick | 1800 | 1050 | 0.81 | 240 |
| 3 | PCM phase change layer | Solid: 900 Liquid: 773 | Solid: 2464 Liquid: 2950 | Solid: 0.28 Liquid: 0.14 | 20 |
| Serial Number | Material | Density (kg/m3) | Specific Heat Capacity (J/kg·K) | Thermal Conductivity (W/m·K) | Thickness (mm) |
|---|---|---|---|---|---|
| 1 | Sandwich color steel | 7850 | 480 | 58.2 | 0.2 |
| 2 | EPS insulation board | 20 | 1380 | 0.039 | 75 |
| 3 | Cement mortar | 1800 | 1050 | 0.93 | 20 |
| 4 | Red clay brick | 1800 | 1050 | 0.81 | 240 |
| 5 | PCM phase change layer | Solid: 900 Liquid: 773 | Solid: 2464 Liquid: 2950 | Solid: 0.28 Liquid: 0.14 | 20 |
| Structure | Construction Details (From Outside to Inside) |
|---|---|
| Roof | 0.2 mm sandwich color steel + 75 mm EPS insulation board + 0.2 mm sandwich color steel |
| External wall | Room A: (South-facing wall) 20 mm phase change layer + 20 mm cement mortar + 240 mm red clay brick + 20 mm cement mortar; other walls are ordinary walls |
| Room B: 20 mm cement mortar + 240 mm red clay brick + 20 mm cement mortar | |
| Internal wall | 20 mm cement mortar + 240 mm red clay brick + 20 mm cement mortar |
| Component Type | Material (From Outside to Inside) | Density (kg/m3) | Specific Heat Capacity (J/kg·K) | Thermal Conductivity (W/m·K) | Thickness (m) | Total Thickness (m) |
|---|---|---|---|---|---|---|
| Roof | TPO waterproof membrane | 1100 | 1500 | 0.257 | 0.0015 | 0.3715 |
| Cement mortar | 1800 | 1050 | 0.93 | 0.02 | ||
| Lightweight aggregate concrete slope-finding layer | 1100 | 1050 | 0.44 | 0.03 | ||
| Aerated concrete block insulation layer | 700 | 1050 | 0.18 | 0.1 | ||
| Rock wool board | 120 | 1220 | 0.04 | 0.1 | ||
| Reinforced concrete | 2500 | 920 | 1.74 | 0.12 | ||
| Floor slab | Cement mortar leveling layer | 1800 | 1050 | 0.93 | 0.02 | 0.175 |
| Reinforced concrete | 2500 | 920 | 1.74 | 0.1 | ||
| XPS (Extruded Polystyrene) | 35 | 1500 | 0.03 | 0.03 | ||
| Gypsum board | 1050 | 1050 | 0.33 | 0.005 | ||
| Cement mortar | 1800 | 1050 | 0.93 | 0.02 | ||
| Internal wall | Cement mortar | 1800 | 1050 | 0.93 | 0.02 | 0.28 |
| Clay brick block | 1800 | 1050 | 0.81 | 0.24 | ||
| Cement mortar | 1800 | 1050 | 0.93 | 0.02 | ||
| External window | Low-E insulated glass (Heat transfer coefficient U = 1.5 W/(m2·K); Solar Heat Gain Coefficient (SHGC) = 0.35) | |||||
| Structure Name | Structural Composition (from Outside to Inside) |
|---|---|
| Ordinary control group wall | 20 mm cement mortar + 240 mm clay brick block + 20 mm cement mortar |
| Experimental group phase change wall | 20 mm PCM phase change layer + 240 mm clay brick block + 20 mm cement mortar |
| Direction | Statistical Item | Unit | Simulated Value of Window-Wall Ratio | |||||
|---|---|---|---|---|---|---|---|---|
| 0.25 | 0.3 | 0.35 | 0.4 | 0.45 | 0.5 | |||
| East | With PCM | kW·h·m−2 | 38.1 | 41.2 | 43.1 | 46.2 | 48.5 | 50.5 |
| Without PCM | 44.2 | 47.4 | 49.7 | 52.6 | 55.4 | 57.7 | ||
| South | With PCM | kW·h·m−2 | 117.1 | 112.8 | 112.3 | 111.2 | 119.2 | 123.4 |
| Without PCM | 125.3 | 113.9 | 112.5 | 113.7 | 121.8 | 126.7 | ||
| West | With PCM | kW·h·m−2 | 35.0 | 36.1 | 37.9 | 40.4 | 41.9 | 44.3 |
| Without PCM | 41.1 | 42.5 | 44.3 | 46.8 | 48.7 | 51.1 | ||
| North | With PCM | kW·h·m−2 | 108.6 | 115.4 | 123.1 | 129.4 | 135.8 | 142.9 |
| Without PCM | 114.5 | 121.3 | 129.8 | 137.1 | 143.5 | 151.0 | ||
| Direction | Statistical Item | Unit | Simulated Value of Window-Wall Ratio | |||||
|---|---|---|---|---|---|---|---|---|
| 0.25 | 0.3 | 0.35 | 0.4 | 0.45 | 0.5 | |||
| East | With PCM | kW·h·m−2 | 23.3 | 26.0 | 27.7 | 29.8 | 31.8 | 33.4 |
| Without PCM | 25.6 | 28.3 | 30.1 | 32.4 | 34.6 | 36.3 | ||
| South | With PCM | kW·h·m−2 | 80.2 | 85.3 | 97.8 | 100.1 | 108.4 | 115.5 |
| Without PCM | 87.5 | 92.7 | 97.9 | 102.2 | 110.6 | 118.3 | ||
| West | With PCM | kW·h·m−2 | 23.1 | 24.9 | 26.8 | 28.7 | 30.6 | 32.6 |
| Without PCM | 25.3 | 27.1 | 29.1 | 31.2 | 33.3 | 35.4 | ||
| North | With PCM | kW·h·m−2 | 53.2 | 58.3 | 63.8 | 69.2 | 74.7 | 80.3 |
| Without PCM | 57.8 | 63.1 | 69.4 | 75.3 | 81.2 | 87.6 | ||
| Direction | Statistical Item | Unit | Simulated Value of Window-Wall Ratio | |||||
|---|---|---|---|---|---|---|---|---|
| 0.25 | 0.3 | 0.35 | 0.4 | 0.45 | 0.5 | |||
| East | With PCM | kW·h·m−2 | 14.7 | 15.1 | 15.3 | 16.4 | 16.7 | 17.1 |
| Without PCM | 18.6 | 19.1 | 19.6 | 20.2 | 20.8 | 21.3 | ||
| South | With PCM | kW·h·m−2 | 36.9 | 21.0 | 14.5 | 11.1 | 10.8 | 7.9 |
| Without PCM | 37.8 | 21.2 | 14.6 | 11.5 | 11.2 | 8.4 | ||
| West | With PCM | kW·h·m−2 | 11.9 | 11.2 | 11.1 | 11.7 | 11.3 | 11.7 |
| Without PCM | 15.8 | 15.4 | 15.2 | 15.6 | 15.4 | 15.7 | ||
| North | With PCM | kW·h·m−2 | 55.4 | 57.1 | 59.3 | 60.2 | 61.1 | 62.6 |
| Without PCM | 56.7 | 57.2 | 60.4 | 61.8 | 62.3 | 63.4 | ||
Disclaimer/Publisher’s Note: The statements, opinions and data contained in all publications are solely those of the individual author(s) and contributor(s) and not of MDPI and/or the editor(s). MDPI and/or the editor(s) disclaim responsibility for any injury to people or property resulting from any ideas, methods, instructions or products referred to in the content. |
© 2026 by the authors. Licensee MDPI, Basel, Switzerland. This article is an open access article distributed under the terms and conditions of the Creative Commons Attribution (CC BY) license.
Share and Cite
Chen, W.; Xie, B.; Nie, L. Performance Analysis of Phase Change Material Walls and Different Window-to-Wall Ratios in Elderly Care Home Buildings Under Hot-Summer and Cold-Winter Climate. Buildings 2026, 16, 367. https://doi.org/10.3390/buildings16020367
Chen W, Xie B, Nie L. Performance Analysis of Phase Change Material Walls and Different Window-to-Wall Ratios in Elderly Care Home Buildings Under Hot-Summer and Cold-Winter Climate. Buildings. 2026; 16(2):367. https://doi.org/10.3390/buildings16020367
Chicago/Turabian StyleChen, Wuying, Bao Xie, and Lu Nie. 2026. "Performance Analysis of Phase Change Material Walls and Different Window-to-Wall Ratios in Elderly Care Home Buildings Under Hot-Summer and Cold-Winter Climate" Buildings 16, no. 2: 367. https://doi.org/10.3390/buildings16020367
APA StyleChen, W., Xie, B., & Nie, L. (2026). Performance Analysis of Phase Change Material Walls and Different Window-to-Wall Ratios in Elderly Care Home Buildings Under Hot-Summer and Cold-Winter Climate. Buildings, 16(2), 367. https://doi.org/10.3390/buildings16020367
