Next Article in Journal
Mechanical Insights and Engineering Implications of Pressurized Frozen Sand for Sustainable Artificial Ground Freezing
Previous Article in Journal
Investigation on the Impact Resistance of Bridge Piers with a Reinforced Concrete Composite Structure Against Debris Flow
 
 
Font Type:
Arial Georgia Verdana
Font Size:
Aa Aa Aa
Line Spacing:
Column Width:
Background:
Article

Urban and Suburban Children’s Educational and Gaming Complexes with Agricultural Themes from Reusable Shipping Containers

by
Inna Ostapenko
1,
Elina Schneider
2,
Lyazzat Nurkusheva
3,
Bolat Kuspangaliyev
2 and
Konstantin Samoilov
2,*
1
School of Architecture, KazGASA, International Education Corporation, 28 Ryskulbekov Str., Almaty 050043, Kazakhstan
2
“Architecture” Department, Institute of Architecture and Civil Engineering Named After T.K. Basenov, Satbayev University, 22 Satpaev Str., Almaty 050000, Kazakhstan
3
School of Design, KazGASA, International Education Corporation, 28 Ryskulbekov Str., Almaty 050043, Kazakhstan
*
Author to whom correspondence should be addressed.
Buildings 2025, 15(23), 4353; https://doi.org/10.3390/buildings15234353 (registering DOI)
Submission received: 9 September 2025 / Revised: 14 November 2025 / Accepted: 18 November 2025 / Published: 1 December 2025
(This article belongs to the Section Architectural Design, Urban Science, and Real Estate)

Abstract

Urban residents and especially children have limited contact with nature and are not sufficiently informed about the main problems of its protection and preservation. One of the aspects of increasing the environmental awareness of urban children is to familiarize them with the specifics of agricultural production. A significant problem in organizing agricultural-themed children’s gaming complexes is the creation of an appropriate infrastructure for exhibiting natural and agricultural processes and servicing visitors. One of the possible solutions to this problem is the use of used sea containers for facilities of educational and gaming infrastructure. An important characteristic of such containers is the ability to use them both individually and in various quantitative and combinatorial ways, forming the buildings necessary for exhibiting and servicing. The use of combined container groups makes it possible to organize appropriate temporary or permanent educational and gaming complexes in free territories within cities or suburbs, bringing them as close to consumers as possible. The children’s educational and game complex with agricultural themes is a set of organizationally and spatially interconnected buildings and structures that ensure the display of agricultural production processes based on the active participation of visitors.

1. Introduction

In modern cities, residents (and especially children) for the most part have no direct contact with agricultural production (except for the final product). Raising children’s awareness of environmentally optimal agricultural production is an urgent task in the field of sustainable development. Educational and playful agro-tourism for children, which forms environmentally responsible behavior, is one of the promising areas of modern recreation and a healthy lifestyle. In general, this phenomenon is considered a mini trip involving recreation and entertainment combined with environmental education, which was conducted at a site where a demonstration of agricultural work is organized.
The problem of children’s environmental education is very relevant. Various aspects of this problem are discussed in the works of N.M. Ardoin and A.W. Bowers [1], N. Mousavi, S. Ahmadi, M.S. Sani, S.F. Irandoost, M.A.M. Gharehghani and Z. [2], N. Silo, N. Mswela and G. Seetso [3], C.A. Grimberg and A. Cortazar [4], S. Stavreva Veselinovska [5] and others [6].
An interesting example is the peculiar type of “non-travel” agro-tourism in the office space. It is assumed that periodic crop and animal husbandry activities increase the productivity of office workers; therefore, in the office of the “Pasona” company there are plantations of rice, vegetables, fruits, cacti, rooms for animals and birds, which employees take care of during breaks. The harvested crops are used in local canteens. This formed a kind of “urban ranch” which hosts seminars on nutrition education, cooking classes, seminars on plant and animal husbandry, and other activities that allow participants to interact with animals and plants. The target audience of this project is not only adults, but also children [7,8,9].
The process of playing is one of the most effective forms of the education of various skills in children. Accordingly, an interesting demonstration of agricultural production processes and the feasible participation of children in these processes under the guidance of instructors and educators will help to form a responsible attitude towards nature among children.
Agricultural tourism is a multifaceted activity, various types of which are considered with varying degrees of detail in a large number of works. Thus, rural tourism as a strategy for the development of territories is considered in the work of C. Yesid Aranda, G. Juliana Combariza and B. Alvaro Parrado [10]. An example of the analysis of the environmental component is provided in the work by P. Valentine [11].
The multidimensional social component, including the family component, has been highlighted in several studies. L. Minnaert demonstrates that the travel experience and the associated level of uncertainty play a key role in determining the most appropriate travel product for certain groups of beneficiaries of social tourism. Accordingly, a decrease in the level of uncertainty may be associated with a decrease in anxiety levels and, as a result, with the choice of more “complex” tourism options in terms of duration and level of support [12]. H.A. Schänzel and I. Yeoman consider the features and prospects of family tourism [13]. J.G. Ferrer, M.F. Sanz, E.D. Ferrandis, S. McCabe and J.S. García discuss the impact of tourism activity of the elderly on their health study. The analysis was carried out using a model of structural equations. The results of this study allow us to draw preliminary conclusions about the causal relationships between tourism and indicators of physical and mental health [14]. H. Kim, E. Woo and M. Uysal analyze the features of the tourist experience of pensioners related to trip satisfaction, quality of service, the uniqueness of tourist programs, etc. The combination of these factors is considered as the basis for the formation of the need for a repeat trip [15]. J. Jablonska, M. Jaremko and G.M. Timčák consider the specifics of “social tourism” as a specific activity; the definition of “social tourism” is given: it provides comfortable travel opportunities for low-income categories of citizens and socially protected groups of the population; the prospects for the development of “social tourism” are shown using the example of their country [16].
A separate aspect is agrarian tourism as an integral part of sustainable development. Here, the works of E. Cater, G. Lowman, S. Ross, G. Wall, M. Honey, S. Wearing, and S. Schweinsberg stand out. In the study by E. Cater and G. Lowman with co-authors, eco-tourism is considered as an aspect of sustainable development [17]. S. Ross and G. Wall indicate that ecotourism can contribute to both conservation and development and presupposes, at a minimum, positive synergetic relations between tourism, biodiversity and the local population, which are facilitated by proper management [18]. M. Honey discusses the issue of ecotourism’s compliance with the prospects of sustainable development [19]. Ecotourism as a promising model of behavior in the next century is analyzed by S. Wearing and S. Schweinsberg [20].
It is interesting that the modularity of services in tourism activities, considered in the work of V. Avlonitis and J. Hsuan [21], can correspond to the modularity of the structure of tourist complexes. This leads to the idea of using the modularity inherent in sea containers, which is indicated, for example, by E. Mohamed: “Usage of modular containers could be suitable for limited projects which need limited space dimensions according to its structural features which eliminate the height and remove side walls” [22]. Modularity opens up the possibility of forming agro-information complexes in free territories inside cities. Such complexes can be permanent or temporary (for example, movable from one site to another within one city or in different cities).
In several of the following studies, the theoretical and practical aspects of the reuse of shipping containers are considered from different points of view. Thus, general issues of design and construction are analyzed in a large number of studies [23,24,25,26,27,28,29,30,31,32,33,34,35,36,37,38,39,40,41,42,43,44,45,46]. The feasibility of such an approach is emphasized by L.F.A. Bernardo, L.A.P. Oliveira, M.C.S. Nepomuceno, and J.M.A. Andrade: “The feasibility of this construction system, based on the use of refurbished shipping containers as construction modules for buildings, should be recognized” [26]. K.M. Ismail, A.M.A. Al-Obaidi, and M.I. Ahmad draw attention to the significant potential: “The container building has huge potential to be one of the major architectural types that can offer durable, practical, cheaper and comfortable living space in a shorter construction period” [31]. The possibilities of strength parameters with increasing stacking height are discussed by S. Martin, J. Martin and P. Lai: “Increasing stack heights on container ships and growing volumes of high-density cargo have increased the loads and stresses placed on containers, requiring an assessment of current container strength specifications” [39].
The problems of energy efficiency with different roofing and wall covering materials are considered by H. Taleb, M. Elsebaei and M. El-Attar, who indicate that “the most effective strategy was the use of green roofs and green walls as these reduce energy consumptions by 13.5%” [40]. Interesting results pointed out by D. Satola, A.B. Kristiansen, A. Houlhan-Wiberg, A. Gustavsen, T. Ma and R.Z. Wang are the following: “The life-cycle assessment results indicate that the net-zero energy design strategy has the lowest life-cycle impacts in all categories, with 26% reduction in water consumption and up to 86% reduction in terms of global warming potential with respect to the convectional, baseline design” [34]. The specificity of thermal insulation is emphasized by J. Shen, B. Copertaro, X. Zhang, J. Koke, P. Kaufmann and S. Krause: “As for repurposing container buildings, it means higher demands in improving both thermal resistance and hygro-thermal capacity of the container. For instance, the weakness in air tightness can be improved by applying a closed insulation enhancement throughout the whole enclosure. Such processing meanwhile can assist in lowering thermal bridge” [44].
The aspect of sustainable architecture in the field of container application is indicated in several works [47,48,49,50,51,52]. For example, H-Y. Chen, H-H. Lin and H-L. Hsu point out that “The transformation of container architecture which combined with new materials and new technologies is easy to create a poetic atmosphere for spatial users. It is easy to touch the public’s sensory and experience. The kind of container architecture contains not only the existing purpose of containers, but also the ideas about the transformation of the catalyst of economic development. It can be seen not only as an assemblage of spatial material, but also as a course of sustainable development” [47]. The significant duration of operation is indicated by H. Islam, G. Zhang, S. Setunge and M.A. Bhuiyan: “For all the impact categories, the overall contributions of the whole life cycle impacts have increased significantly if the design life of a building is increased to 100 years” [51].
The problem of reusing sea containers, including in the production of agricultural products, has attracted considerable attention from researchers [53,54,55,56,57,58,59,60,61,62,63,64,65,66,67,68,69,70,71,72]. For example, the following is indicated: “Urban farming–growing crops inside shipping containers. Freight Farms have found a way to grow crops inside shipping containers. Their hydroponic farming system called The Leafy Green Machine uses hi-tech growing technology to transform discarded shipping containers into mobile farm units. Each farm can produce as much food as a two-acre plot of land on a much smaller plot than is required by traditional crops. As the outdoor climate has no impact on the conditions inside the container, food can be produced throughout the year and in any location. The project truly taps into the growing trend for urban farming and reduces the ecological footprint of food production” [63]. Or, for example, “Urban Farming. As urban spaces become more crowded, finding room for traditional farming becomes a challenge. Shipping containers are perfect for converting into self-contained vertical farms or hydroponic systems. This would not only make efficient use of space but also provide a local source of fresh produce, reducing the carbon footprint associated with long-distance transportation of food. The steel structure and sustainability of a shipping container make it ideal for maintaining controlled conditions necessary for such farming methods” [64]; “the choice of this construction system is directly based on what’s known as the blue economy, that is, the economy that’s linked to the sustainable development of the sea” [65].
The benefits of reusing packaging are considered separately [73,74].
Despite the significant number of works on agricultural tourism, most of them are devoted to organizational and economic aspects. At the same time, the actual issues of volumetric and planning solutions for the exposition and related service buildings are considered quite rarely and mainly in terms of usage of existing buildings and structures on site, which are adapted in one way or another for tourist needs.
However, the existing range of buildings is clearly insufficient for the active development of tourist potential. In addition, assume the very display of agricultural production to be within the framework of the standard work of an agricultural enterprise, which is ineffective in terms of creating an attractive display scenario, and a number of techno-logical processes are generally inappropriate for children. In addition, most agricultural enterprises are located at a considerable distance from cities. That is, their visit can take almost a whole day. This limits the possibility of visiting them on weekends and holidays. Therefore, it is advisable to consider the possibility of organizing a game agro-exposition both in the structure of urban public spaces (separate thematic pavilions for daily visits) and in close proximity to cities (pavilions of various themes with a complex of service units for targeted “weekend trips”). Naturally, pavilions of various subjects are located at a distance from residential, public buildings and from each other in accordance with state sanitary standards.
Accordingly, there is a need to form a relatively independent complex of buildings and structures focused specifically on exhibiting agricultural activities in combination with related visitor services. That is, the problem of accelerated, almost simultaneous construction of a large number of objects that has arisen at this stage of development of tourist services puts forward a number of unique tasks that have not yet received appropriate research development.
Based on previous special studies in the field of agricultural tourism organization (I. Ostapenko [75]) and the formation of children’s play spaces (E. Schneider [76]), the need has been identified and the possibility of creating children’s educational and gaming complexes of agricultural themes based on modular collapsible complexes has been identified. The various combinations of containers proposed by the authors (with a layout based on specific technological requirements) make it possible to solve these problems.
The rapid construction of a large number of typologically different objects, technologically linked into a children’s agricultural tourism complex, suggests the possibility of using end-to-end modularity. However, a large number of studies on the use of containers do not cover the sphere of tourism activities.
Several studies have addressed the design of play spaces for children [77,78,79,80,81,82,83,84,85,86]. The work by J. Schipperijn, C.D. Madsen, M. Toftager, D.N. Johansen, I. Lousen, T.T. Amholt and C.S. Pawlowski provides a review of all studies devoted to the use of playgrounds and their health benefits for children [79]. For example, M. Jansson emphasizes that children’s participation in playground management activities is considered a way to make playgrounds more responsive to children’s needs and views [80]. S. Xu presents ideas and schemes for designing child-friendly play spaces that combine beauty and entertainment [84].
The analysis so far revealed no studies on the use of shipping containers for children’s play structures. This indicates the lack of research on this topic and demonstrates the novelty of the presented study.
Several preliminary studies conducted by the authors of this article highlighted the existing possibilities in the field of modular approach in general [87] and using containers in particular [88,89].
The basis of the presented research is a complex of problems that are in varying degrees of study:
-
Children’s play spaces as places of active recreation and education of interpersonal communication skills;
-
Environmental education of children;
-
Rural tourism as a basis for sustainable development of territories;
-
Tourism as the basis of physical and psychological health;
-
Social tourism for low-income segments of the population;
-
The formation of urban mini farms for the production of certain types of agricultural products;
-
Advantages of modularity in construction when reusing shipping containers;
-
Advantages of collapsible construction in the reuse of shipping containers.
Based on the conducted research on the degree of study of the problem, the following conclusions can be drawn. The problem has three main aspects: parenting, agro-tourism, and container reuse.
The works on child rearing considered in the aspect of the issue under study focus on the specifics of the formation of play spaces, the benefits of their mass distribution for children’s health and their full development. The expediency of feasible participation of children in the formation of play spaces is highlighted separately. Special attention is paid to the expediency of creating inclusive play spaces that take into account the specifics of the behavior of children with special needs. The planning features of such spaces are not considered.
The analyzed research on agro-tourism is mainly focused on organizational and economic issues. Rural tourism is considered as the basis for the sustainable development of territories. Some works highlight the specifics of tourism in general and agro-tourism in particular as the basis of physical and psychological health. An important part of the problem is considered to be informing the population about environmentally adequate methods of production of agricultural products and the expediency of environmental protection measures. The researchers emphasize the social importance of agro-tourism in the field of caring for low-income segments of the population. Spatial and planning solutions for agro-tourism facilities are not considered.
Studies on the use of urban mini farms for the production of certain types of agricultural products indicate their low prevalence. The analysis showed that these mini farms are not focused on exposing production processes. There is no possibility of active participation of citizens in the production processes.
Studies in the field of combining containers of various types and the advantages of reuse of containers for buildings of various purposes fully reveal this aspect. However, the scope of using containers for children’s play complexes has not been studied and it is necessary to increase the knowledge.
The combined consideration of the issues of the formation of full-fledged children’s educational and play spaces based on the exhibition of agricultural production determines the originality of the presented research.
Accordingly, the authors’ proposed use of a module based on a sea container as a basis for the formation of various objects for the implementation of recreational and educational services has the quality of novelty.
The purpose of the presented study is to demonstrate the fundamental possibility of using modular sea containers to create collapsible children’s educational and play complexes with agricultural themes. The purpose of this article is to specifically outline the possibilities for creating a multi-thematic agricultural exhibition with a full range of auxiliary facilities. Detailed descriptions of individual facilities are necessary to substantiate the author’s concept. These descriptions and drawings demonstrate the spatial organization of individual facilities.
At the next stage (this may be the topic of a separate study), the number of sea containers of various types is determined depending on the specific theme of the complex (general agricultural or narrowly focused), location, frequency of assembly/disassembly and movement assumed by the business plan. At this stage, the depreciation period of individual containers, the need for their phased replacement, etc., will be determined.
The analysis of the theory and practice of educating modern children on environmentally responsible behavior and raising children’s awareness of environmental protection techniques revealed the following aspects:
-
Children do not have enough information about the specifics of environmental protection activities and the formation of a healthy lifestyle;
-
To compensate for this disadvantage, it is advisable to use gaming methods more widely;
-
In order to improve gaming methods, it is necessary to increase the information saturation of gaming spaces in the aspect of agricultural production;
-
In order to improve the understanding of the specifics of agricultural production, it is necessary to ensure the active involvement of children in the production processes;
-
To ensure the solution of these tasks, it is advisable to form children’s educational and gaming complexes for the exhibition of agricultural subjects;
-
To ensure maximum accessibility, such children’s complexes should be located in various areas of cities and suburbs (in the courtyards of apartment buildings, in the courtyards of kindergartens, in the courtyards of schools, in urban squares, in urban parks, in suburban recreation areas);
-
To maintain constant interest, children’s complexes should periodically change the theme of games;
-
To change the theme, children’s complexes must be prefabricated; for the convenience of rapid construction and reconstruction, children’s complexes should have modularity; for the formation of children’s complexes, it is advisable to use sea containers that are modular, durable and interchangeable;
-
The modern practice of reuse of shipping containers demonstrates the possibility of building buildings for various purposes;
-
All the processes of modern agricultural production are demonstrated in an educational and attractive way in buildings made of containers.
Based on this, the authors hypothesize that the improvement of modern methods of educating children on environmentally responsible behavior is ensured by the construction of children’s educational and play complexes with agricultural themes. The optimal architectural and constructive solution is the use of shipping containers. A conceptual solution for urban and suburban children’s educational and play complexes with agricultural themes are presented in this article. The article describes a specific case in which the logic of designing children’s play agro-complexes is documented and analyzed; the educational value of these facilities and the consequences of the widespread use of a modular approach in the field of construction design for sustainable development are indicated.

2. Materials and Methods

Based on the general scientific method of sequential multidimensional and narrowly thematic selection and analysis of literary sources, collection of data on projects of their implementation by construction, differentiation of examples by various criteria, analysis and subsequent integration of the results obtained, the conceptual design of the objects of the children’s educational and game complex of agricultural subjects were carried out. Marine containers of various types were selected as the basis (module).
The reason for choosing shipping containers is their modularity, interchangeability, spatial rigidity, waterproofing, relatively low cost, ease of delivery and installation.
Spatial combinations of containers and planning solutions are determined by the nomenclature of objects of the children’s educational and gaming complex of agricultural subjects; thematic features of individual pavilions; technological features of displaying various types of agricultural production; ergonomic parameters of visitors; organizational features of ensuring convenience and safety of operation; and fire-prevention and sanitary-epidemiological regulations.
The field of conceptual research is limited by the specifics of the spatial organization of tourist sites with a playful organization of the exhibition of agricultural production processes. The research focuses on the spatial planning solutions of individual facilities. The number of objects of various functional attributes included in the complex can be determined at the design research stage. Such a study is possible at the next stage when determining the specific theme of the exhibition (universal or highly specialized), determining the nature of the complex’s work (permanent or seasonal). The selected site of the proposed construction will allow determining the specifics of the spatial location of individual facilities of the complex. The estimated number of visitors will determine the need for auxiliary buildings and facilities of the complex.
The determination of the need to create children’s cognitive and gaming complexes was carried out based on sociological research conducted in the previously mentioned studies by the co-authors of the article [75,76]: I. Ostapenko (agricultural tourism complexes) and E. Schneider (children’s play complexes). As part of this work, relevant sociological surveys were conducted, demonstrating the relevance of developing agricultural tourism in general and educational play complexes in particular.
Schoolteachers showed particular interest. In their opinion, the massive construction of children’s educational and play complexes with agricultural themes in cities and suburbs will be of great educational importance. Children will acquire new knowledge and practical skills in the field of biology and environmentally responsible behavior.
As part of this research, corresponding modeling was conducted, demonstrating the feasibility of implementing this idea. These studies also included surveys of the organizational and spatial structure of several dozen existing agro-eco-tourism complexes and children’s play complexes. The results of these studies are the context of the concept of a children’s educational and game complex of agricultural subjects proposed in this work.
The proposed concept is based on the following structure:
-
Fostering environmentally responsible behavior is an important aspect of working with modern children;
-
The game is an effective way of learning and education;
-
Themed games enhance educational activities;
-
The variety and occasional change in game themes ensure constant interest and attractiveness;
-
Agricultural production has a wide variety of processes that make it possible to form interesting expositions;
-
The agricultural theme of the game shapes environmentally responsible behavior;
-
Feasible participation in agricultural production improves the educational process;
-
The creation of urban and suburban agricultural-themed play complexes ensures the education of environmentally responsible behavior of children;
-
The optimal construction solution for urban and suburban children’s complexes ensures the use of shipping containers.

3. Case Description and Design Context

To determine the need for the formation of urban and suburban children’s play complexes with agricultural themes, the co-authors of the article conducted relevant sociological studies in the process of preparing their scientific papers [75,76]. The personal express survey method is used for this purpose. Groups of students conducted the surveys during an educational orientation internship led by I. Ostapenko and E. Schneider. The research was conducted in the largest agglomerations of Kazakhstan: Almaty, Astana, and Shymkent. The following results were obtained (Table 1, Table 2, Table 3, Table 4, Table 5, Table 6, Table 7, Table 8, Table 9, Table 10 and Table 11).
The data obtained showed great interest in the construction of children’s educational and play complexes with agricultural themes.
The interest of focus groups in the formation of children’s educational and play complexes on agricultural topics, revealed based on these surveys, determined the development of an appropriate project proposal. This conceptual solution illustrates the possibility of building modular complexes of various sizes, depending on a specific urban planning context.

4. Results

The concept of forming an agricultural-themed children’s educational and gaming complex based in shipping containers is founded on several prerequisites. The first is the modularity of shipping containers. This allows you to form almost any set of containers for various purposes. The dimensional parameters of sea containers make it possible to take into account almost any technological features of the exposure of agricultural production processes, as well as ergonomic requirements. The modularity of shipping containers makes it possible to replace a damaged unit relatively quickly.
This aspect is part of the adaptability of the proposed system. This is the second premise. Adaptability allows, firstly, adjusting the number of blocks in a particular set depending on organizational and technological changes. Secondly, adaptability ensures the interchangeability of blocks. Thirdly, it is possible to move the pavilion to another site due to administrative and organizational changes. At the same time, modularity allows you to change the number of blocks for various purposes at the new location of the pavilion.
The third prerequisite is the educational function. Play is one of the most effective forms of learning. A playful form of participation in the processes of agricultural production, the opportunity to achieve a real result of their efforts to care for plants and animals is of great educational importance. In the process of observing and participating in agricultural production, children gain knowledge from school courses in botany, zoology, and natural sciences. At the same time, environmentally responsible behavior is being formed.
Examples from global practice show the possibility of solving a large complex of spatial planning and architectural and artistic tasks by reusing marine containers [90,91,92,93,94,95].
The modern practice of reusing shipping containers demonstrates a successful solution for the challenges of effective thermal and sound insulation and adequate ventilation systems for various facilities. The basic configuration of a shipping container ensures reliable protection against corrosion. Technical and technological maintenance is, in most cases, regulated by industry or state standards.
Weather-resistant paints allow for virtually any color scheme for a structure constructed from shipping containers. International practice offers numerous interesting examples of such solutions. Accordingly, agricultural-themed children’s educational play complexes can be designed to reflect the cultural and historical preferences of their users. Specific urban contexts can also be taken into account.
The spatial rigidity of the container allows them to be arranged not only horizontally, but also in vertical or inclined positions. The structural features of containers allow them to be built with different types of transformability of individual surfaces and the entire volume. Usually, the container is installed on four corner supports, for example, made of reinforced concrete or steel elements. In this case, both single-level and multi-level arrangements are used (taking into account the technical characteristics of the loading equipment and the strength of the containers themselves—up to six levels). It is possible to cantilever containers (maximum two in succession) along the long side based on a welded or bolted connection. In addition, the container itself can have a cantilever overhang of up to half its length. World practice provides numerous examples of such solutions. The layout features are provided in numerous works, for example: Connecting containers to each other and Strength characteristics and installation features [96], and Interlocking Experience for Various Objects [97,98,99].
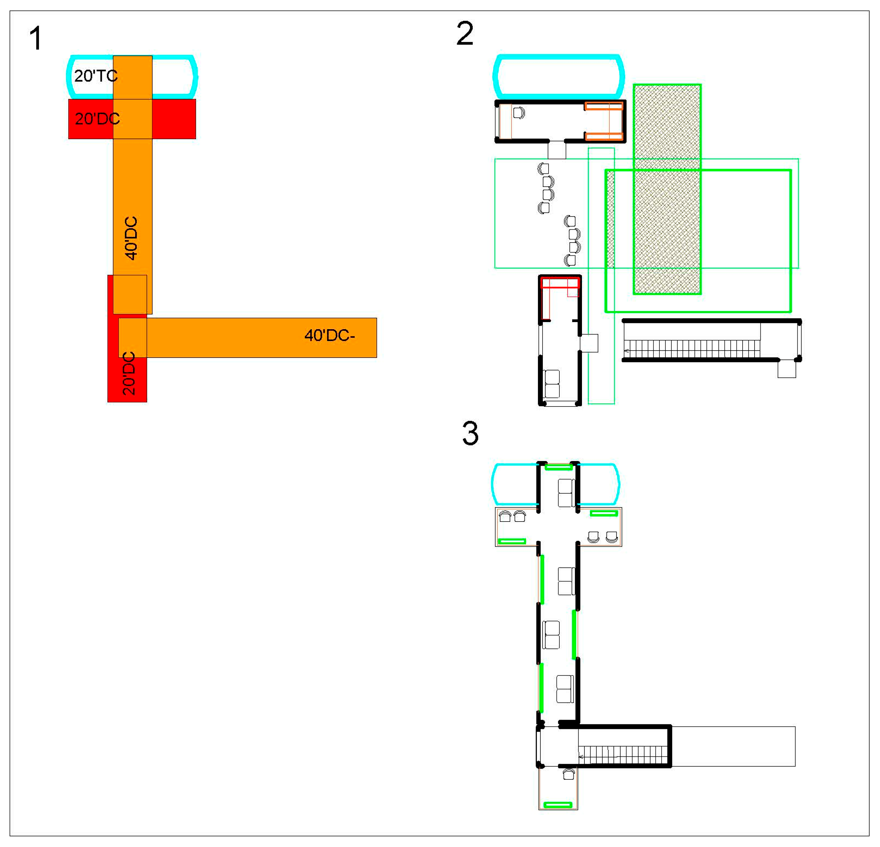
The internal height of sea containers (20-foot and 40-foot) is 2.393 m. This corresponds to state height standards for temporary mobile buildings and structures in most countries of the world. To ensure technological height requirements for some agricultural processes, containers are positioned vertically. These are 5.905 m (20-foot) and 12.032 m (40-foot).
The formation of the exposition and the arrangement of furniture and equipment is carried out based on the ergonomic parameters of visitors and service personnel [100]. Mobile catwalks and ramps are provided in the necessary places for younger children. Figure 1 shows the main parameters (vertical dimensions) of visitors and expositions.
Figure 2 schematically shows longitudinal and cross-sectional views of 20’DC, 20’TC and 40’DS containers, positioned horizontally and vertically. To demonstrate the parametric ease of use, the silhouettes of children and accompanying adults are included in the diagrams.
All proposed spatial solutions are implemented in accordance with current regulations and industry standards. These solutions ensure compliance with agricultural production technology, adequate display of production processes, sanitary and epidemiological control, and the safety of visitors and service personnel.
A complex for children’s educational and recreational agro-tourism may consist of the following blocks for various purposes (this is a complete set of blocks for suburban complexes of autonomous operation; for inner-city complexes, separate groups of blocks are selected that correspond to the subject and context).
Blocks for engineering, technical and auxiliary personnel: an administrative block; a block of rooms for the work of the staff on duty serving visitors; a block of rooms for the rest of the staff on duty; a block of household rooms for staff; a block of a guard post; a checkpoint.
Visitor service blocks: a tour desk; hotels; family cottages; a dining room; a grocery store; a gift shop; a high-rise observation deck; a children’s play block; a club; a relaxation complex; a picnic complex; complexes with reservoirs for entertainment fishing with a fishing rod and a net in combination with demonstration aquariums; a complex for visitors’ dogs; wardrobes at sports grounds; a covered parking for visitors’ cars; a maintenance complex for visitors’ cars; a public bathroom (toilets + showers); a self-service kitchen; a self-service laundry; a room for heating and drying clothes; a medical center.
Blocks for exhibiting agricultural production: keeping horses, ponies, camels, cows, pigs, sheep, goats, rabbits, nutria, fighting dogs, guard dogs, hunting dogs, chickens, ducks, pheasants, ostriches, hunting birds, songbirds and ornamental birds; breeding mushrooms, vegetables, fruits, berries, flowers, snails, fish, crayfish, frogs, turtles, and insects.
Blocks for exhibiting the processing of agricultural products: preparation of carbonated beverages, juices, jams, compotes; smoking and drying of fish and meat; drying of mushrooms, berries, fruits, herbs and flowers; cheese preparation; preparation of animal feed, fish, shellfish, and insects.
Blocks for the exhibition of regional cuisine and crafts: preparation of dairy, meat and fish products; the production of leather, wood, clay, metals, wool; and a manufacture of parts for a traditional dwelling.
Warehouses: furniture; tableware; cutlery; technological equipment; firefighting, technical, cleaning, fishing, hunting, sports, entertainment and relaxation equipment; clean uniforms; dirty uniforms; clean bed linen; dirty bed linen; reagents and detergents for laundry; dry products, spices, containers and packaging; firewood, coal, fuel briquettes; feed, fertilizers, and solid household waste.
Refrigerating chambers: meat, fish, dairy products and semi-finished products; confectionery; vegetables, fruits, berries, mushrooms, canned food, beverages, and food waste.
Engineering and technical premises: pumping, transformers, aggregates, boiler rooms, server rooms, wind and solar-electric generators; carpentry and locksmith workshops, workshop for minor repairs; tanks for liquid fuels, biofuels, gas, drinking water, recycled water supply, water treatment for fisheries, and filtration equipment.
The nomenclature of sea containers allows forming all the necessary blocks using containers directly or with appropriate transformation. The containers’ structure (with the exception of platform containers) provides the possibility of arranging containers in one or more tiers. Containers can be located both on the ground and in a semi-underground or underground position, depending on the technological process in which they are used. This is especially true for tank containers, which, in order to provide additional pressure in the domestic water supply system and ease of emptying, can be located at the next level above the room in which their contents are used. If they used a water tower or firefighting tanks as reservoirs, they could have independent supports or be placed at a higher point of the surrounding landscape. The storage of gas fuel implies a strictly ground-based arrangement of tanks, and it is advisable to organize the storage of liquid fuel in an underground version. In addition, the underground location is typical for atmospheric wastewater storage tanks and components of the circulating water supply system.
However, most services and activities in tourist complexes require varying degrees of container transformation. It is necessary to install window and door openings; special interior decoration is necessary, corresponding to technological processes. A separate issue is pipelines and cables of engineering support systems. Combinatory, unlike singly located containers, requires the installation of a common pitched, quick-mounted roof.
The modern practice of adapting containers as separate WC and bathrooms is widespread. However, their layout, based on minimizing the parameters of the main premises and amenities, is unacceptable for use in children’s tourist complexes, as it does not provide a sufficient level of comfort. In addition, the requirements for accessibility of low-mobility groups of the population are usually not taken into account. The same problems occur with the layout of residential premises.
Examples of container farms often used in cities for the cultivation of plants, fungi, edible insects and fish are unsuitable as demonstration and entertainment material due to spatial limitations. These technological solutions do not imply the possibility of conducting excursions and demonstrations and cognitive observation of the process by visitors, and even more so exclude the participation of anyone other than specially trained personnel. Such decisions cannot be elements of an exhibition—an educational and playful attraction [101,102,103,104].
Premises for plant disease control, veterinary services for fish, birds and animals, and slaughter of livestock do not belong to the sphere of demonstration to children at all. Their modular solution of containers can only be an addition to the range of objects of the tourist complex. This kit also includes modular container gas stations, which in the structure of the tourist complex are designed to service passenger cars and buses on which parents with children or organized groups of children with instructors arrived.
In the context of organizing an entertainment and educational program for agricultural tourism, ensuring its attractiveness, and the need to create a sufficient level of comfort for visitors and staff of tourist enterprises, massively used layouts are unacceptable. A high level of comfort of stay and the maximum possible provision of an educational and entertainment component is an essential part of the economic success of these enterprises.
Depending on the specific conditions of placement, the thematic orientation of the Children’s educational and gaming complex (crop growing, poultry farming, livestock farming, fish farming, mixed-use, combined-use), seasonality (seasonal use, year-round use), its capacity, availability of certain capacities of engineering support systems, and the proposed planning solutions can be adjusted and supplemented with a block containers of aggregates, transformers, boilers, pumps, warehouses, and reservoirs.
In layouts presented below, the size of the seam between the blocked containers is shown conditionally. Its width depends on the specifics of the layout of containers located in horizontal and vertical positions.
It is proposed to use several types of shipping containers individually and in various combinations to organize a Children’s educational and entertainment complex with agricultural themes.
A container 40’DC (in single and in complete, in the basic configuration and adapted) 12.192 × 2.438 m: a warehouse of dishes, furniture, equipment, tools, inventory, bedding, work clothes, dry food, dry products, detergents, consumables, fuel briquettes, firewood, fertilizers; a wind generator; a solar generator; a gas-diesel electric generator; a gas-diesel boiler house; and a temporary isolation unit for animals and birds. A container 40’RF (in single and in complete, in the basic configuration and adapted) 2.192 × 2.438 m: a refrigerator for meat, dairy, fish, vegetable, fruit semi-finished products, beverages, ice cream; a refrigerated chamber for food waste.
A container 20’DC (in single and in complete, in the basic configuration and adapted) 6.058 × 2.438 m: an aggregate; a pumping station; a transformer; a furniture warehouse, household and entertainment equipment, and consumables.
A container 20’OTC (in single and in complete, in the basic configuration and adapted) 6.058 × 2.438 m: a swimming tank; a demonstration and fishing aquarium; a pond for geese and ducks; a temporary container for bulk building materials, and coal.
A container 20’FRC (in single and in complete, in the basic configuration and adapted) 6.058 × 2.438 m: a block of greenhouses, temporary storage, temporary housing of animals and birds, placement of special fire-fighting equipment and materials, and used containers and packaging.
A container 20’TC (in single and in complete, in the basic configuration and adapted) 6.058 × 2.438 m: a container for storing: drinking water, water from the recycling water supply system, fire water supply, liquid fuel, gaseous fuel, and filtration tank for water treatment for fisheries.
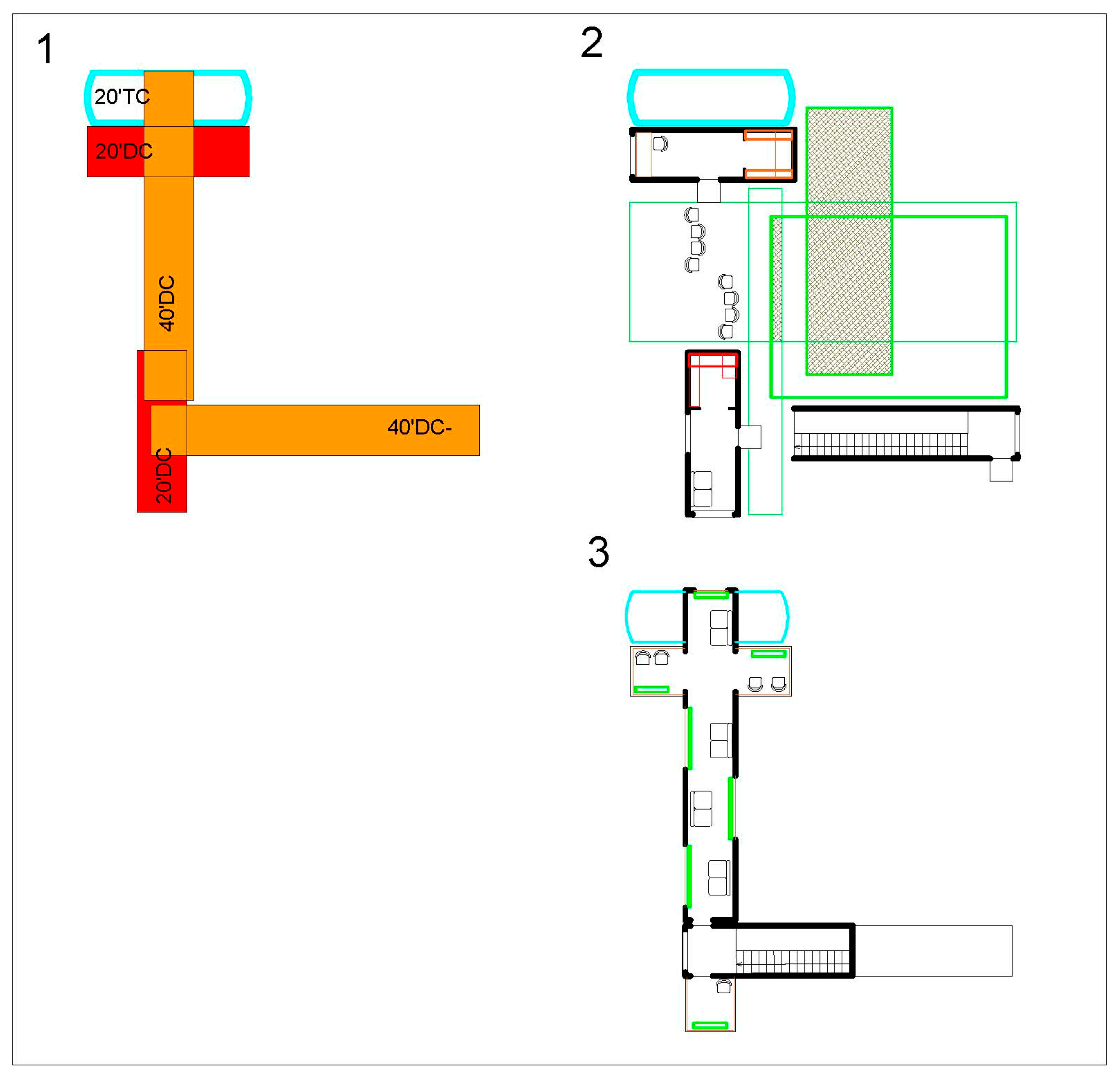
Set 1 (Figure 3): a Single hotel room and a Checkpoint. The pavilion of the Single hotel room: an entrance hall of 4.5 sq. m; a corridor of 5.0 sq. m; a toilet of 2.0 sq. m; a shower room of 2.0 sq. m; a storage room of 2.5 sq. m; a bedroom of 11.0 sq. m. The furniture includes a single bed with a bedside table, cupboards, shelves, table and chairs. Cooking not provided in the room. The Checkpoint pavilion: a staff room of 13.5 sq. m; a wardrobe of 4.5 sq. m; a hallway of 5.0 sq. m; a bathroom of 4.0 sq. m. The pavilion is designed for the simultaneous stay of two employees of the duty shift who control access to the territory of the Complex.
The Set 2 (Figure 4): a Double hotel room, an Administrative premise, a Souvenir shop and a Tour desk. The Pavilion of the Single-double hotel room: an entrance hall of 13.5 sq. m; a storeroom of 4.5 sq. m; a bathroom of 4.5 sq. m; a kitchen niche of 4.5 sq. m; a bedroom of 27.0 sq. m. The furniture includes a double bed with bedside tables, a corner sofa, a dining table, cupboards, shelves, chairs. The Administrative pavilion: a reception area of 22.5 sq. m; an office of the head of 9.0 sq. m; a staff office of 18.0 sq. m; a bathroom of 4.5 sq. m. The pavilion is designed for five office staff members. The Souvenir shop pavilion: a lobby of 5.0 sq. m; a sales hall of 36.0 sq. m; an office of 9.0 sq. m; a bathroom of 4.0 sq. m. The pavilion is designed to sell souvenirs to visitors, thematically related to the specifics of this Complex. The Tour desk pavilion: a reception area of 13.5 sq. m; a tour registration area of 18.0 sq. m; a bathroom of 4.5 sq. m; an office of 9.0 sq. m; a utility room of 9.0 sq. m. The pavilion is designed for the work of three office staff members who carry out the registration of the visitors’ stay in the Complex, forming their individual or group excursion program.
Set 3 (Figure 5): a Territory guard post. The Security pavilion: a staff room of 13.5 sq. m; a wardrobe of 4.5 sq. m; a hallway of 5.0 sq. m; a bathroom of 4.0 sq. m; an observation tower with a stairwell and observation platforms of 4.5 sq. m each at heights of 2.8 m, 5.6 m, and 8.4 m. Staircases have remote intermediate platforms. The pavilion is designed for the simultaneous stay of three duty shift staff members who carry out visual and instrumental control of the Complex from observation decks located at various heights of the observation tower.
Set 4 (Figure 6): a public toilet unit. The Public toilet pavilion: two bathrooms for low-mobility groups of 6.0 sq. m each; two toilets of 5.0 sq. m each; a storage room for cleaning equipment of 5.0 sq. m; an aggregate of 4.0 sq. m; an inventory of 5.5 sq. m; a utility room of 4.0 sq. m; and a clean water tank of 25.0 cubic m.
Set 5 (Figure 7): a Covered parking for visitors’ cars, a medical center, a Triple hotel room, workshops (carpentry, locksmithing, minor repair workshop), Recreation rooms for staff on duty and a Pavilion for children’s games. The Pavilion of the two- and three-bed hotel room: an entrance hall of 10.5 sq. m; a kitchen of 12.0 sq. m; a hall of 4.5 sq. m; a bathroom of 4.5 sq. m; a bedroom of 18.0 sq. m; a bedroom of 11.0 sq. m.; a bathroom of 4.5 sq. m; and a loggia of 13.5 sq. m. The furniture includes single and double beds with bedside tables, a corner sofa, a dining table for four people in the kitchen, tables, cabinets, shelves, chairs, garden sofas and a table with chairs on the loggia. The pavilion of a carpentry or locksmith workshop, a workshop for minor repairs: a distribution area of 4.5 sq. m; a staff room of 5.0 sq. m with a bathroom of 4.0 sq. m; three adjacent workshop rooms of 18.0 sq. m each. The pavilion is designed for routine repairs of furniture, equipment and inventory used in the Complex. The number of employees is seven people. Recreation pavilion for staff on duty: a lobby of 9.0 sq. m; two rest rooms of 18.0 sq. m with bathrooms of 4.5 sq. m; two meal rooms of 13.5 sq. m. The pavilion is planned as two symmetrical compartments with the same set of rooms providing rest and meals for eight (4 + 4) staff members on duty.
The Children’s play pavilion: a lobby of 18.0 sq. m.; two bathrooms of 4.5 sq. m each; a game room of 13.5 sq. m; a game room of 40.5 sq. m. The pavilion is designed for organizing play activities for children of primary and secondary school age from the families of visitors in the presence of three tutors on duty. The Covered parking for visitors’ cars: a room with three open parking spaces of 81.0 sq. m. It is possible to store some of the brought items on open shelves. The Pavilion of the medical center: a lobby of 9.0 sq. m; an office of 9.0 sq. m with a medicine storeroom of 4.5 sq. m; an office of 16.0 sq. m; two corridors of 2.5 sq. m each; a bathroom of 4.5 sq. m; a storage room of 3.0 sq. m; two chambers of 13.5 sq. m each with toilets. The pavilion is designed to provide emergency and preventive medical care to visitors and employees of the Complex. The staff on duty consists of four people (one general practitioner, one trauma surgeon, two procedural nurses). Two isolated rooms with independent entrances are designed for patients waiting for an ambulance to arrive.
Set 6 (Figure 8): a Picnic unit. The Picnic pavilion: a covered recreation area of 45.0 sq. m; adjacent storerooms of equipment and inventory of 4.5 sq. m; a bathroom of 4.5 sq. m; a toilet of 4.5 sq. m, planned while taking into account the needs of low-mobility groups of the population; a bathroom of 4.5 sq. m; a utility room of 4.5 sq. m; a clean water tank of 25.0 cubic m; and an outdoor area of 60.0 sq. m. Having preordered the delivery of the necessary products and semi-finished products, visitors can prepare the necessary dishes for a picnic on their own or with the help of staff and serve them appropriately (rented or one-time dishes and cutlery) on tables of various capacities placed in the pavilion or on an outdoor area (platform, lawn, ground).
Set 7 (Figure 9): a Service station for visitors’ cars, an Exhibit of the traditional processing of materials (leather, wood, metals and clay), Household premises (heating, drying clothes and shoes) and a Manufacturing elements of a traditional dwelling, a Traditional weaving and wool processing area. The Visitors’ car maintenance station: two interconnected repair rooms of 40.0 sq. m with observation pits; two repair and distribution areas of 7.0 sq. m; an inventory of 7.0 sq. m; a bathroom of 7.0 sq. m. Visitors can either order certain types of repairs, or, after consulting, independently carry out a number of maintenance activities. The Pavilion for the demonstration of traditional leather, wood, clay and metal processing: distribution area of 27.0 sq. m; a bathroom of 4.5 sq. m; a storeroom of 4.5 sq. m; a workshop for the production of leather goods of 18.0 sq. m; a workshop for the production of wood products of 18.0 sq. m; a workshop for the production of clay products of 18.0 sq. m; a workshop for the production of metal products of 18.0 sq. m. Through a distribution area in which samples of the work of folk craftsmen are put up for sale, visitors can enter the workshops for the manufacture of leather, wood, clay and metal products. Here they can observe the work of artisans and, after donning overalls and being instructed, take a direct part in the production.
The Pavilion for demonstrating the manufacture of traditional dwellings (an izba, an yurt, a hut, a wigwam, a chum, a yaranga, a saklya, an urasa, etc.): a distribution area of 9.0 sq. m; a bathroom of 4.5 sq. m; a storeroom of 4.5 sq. m; a workshop for preparing bars of 36.0 sq. m; a storage area for blanks and a complete set of products of 36.0 sq. m. Through the distribution area, visitors enter the workshops where they can observe and, after a briefing and putting on work clothes, take part in the manufacture of elements. The Pavilion for heating and drying clothes and shoes: a distribution area of 13.5 sq. m; a cleaning equipment room of 4.5 sq. m; two adjacent drying rooms of 18.0 sq. m with four drying chambers; two adjacent heating rooms of 18.0 sq. m with bathrooms of 4.5 sq. m and utility rooms of 4.5 sq. m. The pavilion is designed for heating and drying clothes and shoes of visitors walking around the Complex. The heating room is divided into male and female parts with independent entrances from opposite sides. These planning areas are connected. The capacity of each unit is seven people staying at the same time. The Pavilion for the demonstration of traditional weaving and wool processing: a distribution area of 27.0 sq. m; a bathroom of 4.5 sq. m; a storage room of 4.5 sq. m; a felt workshop of 36.0 sq. m; and a weaving workshop of 36.0 sq. m. The products of weaving and felt crafts are on sale in the distribution area. From there, visitors can enter the workshops for creating felt products and weaving production. After the briefing, they can participate in the product-shaping process.
Set 8 (Figure 10): a Shop for the exhibition of drying and smoking fish or meat, a Local grocery store, a Kitchen for the exhibition of cooking of local dishes. The Pavilion for the demonstration of drying and smoking fish or meat: a vestibule of 4.5 sq. m; a wardrobe of 5.0 sq. m with a bathroom of 4.0 sq. m; a distribution area of 4.5 sq. m; a cutting room of 18.0 sq. m; a utility room of 4.5 sq. m; a preparation room of 27.0 sq. m; a vestibule of 4.5 sq. m; two drying/smoking chambers of 4.5 sq. m each; refrigerated chambers for meat and fish of 27.0 sq. m. Guided by a guide and dressed in disposable protective robes and gloves, visitors can observe and take part in cutting food, preparing semi-finished products for the drying and smoking processes, loading and unloading the smoking and drying chambers under the guidance of specialists.
The Pavilion of the local food store: a sales hall of 63.0 sq. m; a goods preparation room of 9.0 sq. m; a utility room of 4.5 sq. m; a bathroom of 4.5 sq. m; a refrigerator of 27.0 sq. m. The pavilion is designed to sell a range of locally produced products and related products to visitors. Visitors can choose packaged goods on the shelves in the self-service hall or ask for a hanging product from a refrigerated counter or from a rack. The store staff consists of four people. The Pavilion for the demonstration of cooking traditional cuisine: a distribution area of 6.0 sq. m; a cloakroom of 5.0 sq. m; a bathroom of 4.5 sq. m; a storage room of 2.0 sq. m; a meat and fish shop of 27.0 sq. m; a dairy of 26.5 sq. m. Visitors in the distribution area wear disposable protective gowns and hats. Then, under the guidance of a guide, they go to the workshops for the production of products from milk, meat, fish, vegetables and fruits. Here they can observe the production process and personally participate in the preparation of products under the guidance of specialists.
Set 9 (Figure 11): an Individual or group relaxation unit. The Relaxation pavilion: a recreation room of 9.0 sq. m; an inventory storeroom of 4.5 sq. m; a staff room of 9.0 sq. m; a furniture storeroom of 4.5 sq. m; a sloping gallery of 27.0 sq. m with stairs and a ramp leading to the second level. On the second level, there is a relaxation pavilion of 27.0 sq. m, three outdoor areas of 4.5 sq. m each. Visitors can sit comfortably on sun loungers, armchairs, sofas, chairs or mats, spend time relaxing, meditating, observing the surroundings in various directions, in outdoor and indoor areas or in pavilions located on two levels. A covered staircase with a ramp leads to the second level, taking into account the needs of low-mobility groups of the population.
Set 10 (Figure 12): a Self-service kitchen unit. The Self-service kitchen pavilion: a distribution area of 9.0 sq. m; a hot food preparation room of 40.5 sq. m; a cold food preparation room of 18.0 sq. m; an utility room of 4.5 sq. m; a wardrobe of 4.5 sq. m; a bathroom of 4.5 sq. m; an aggregate of 4.5 sq. m; an inventory of 9.0 sq. m; a clean water tank of 25.0 cubic m. The pavilion is designed so that visitors can, if desired, change their clothes in the cloakroom, prepare their own food for themselves and, packaged in containers and thermoses, take it to their hotel rooms or outdoor areas. Four four-burner gas stoves provide the possibility of eight people working simultaneously. There are consultants in the rooms for cooking hot and cold dishes. A separate service is the provision of culinary master classes by specialists for visitors, where the peculiarities of cooking and serving locally produced products are demonstrated.
Set 11 (Figure 13): an Exposure unit for breeding chickens or pheasants. The Demonstration pavilion for keeping chickens or pheasants: two poultry houses (outdoor) of 9.0 sq. m; two feed rooms of 6.8 sq. m; two feed preparation rooms of 4.5 sq. m; two inventory rooms of 4.5 sq. m; a utility room of 4.5 sq. m; a staff room of 9.0 sq. m; a bathroom of 4.5 sq. m; two outdoor enclosures of 140.0 sq. m fenced off with a 2.5 m high net. Visitors pass through the staff room, where they receive instructions, to the aviaries, where they can inspect the poultry houses, observe the collection of eggs, walk among the birds, take part in their feeding and cleaning of the aviaries.
Set 12 (Figure 14): a Self-service laundry unit. The Self-service laundry pavilion: a hall of 24.0 sq. m; two bathrooms of 5.8 sq. m each; duty room of 5.8 sq. m; laundry room of 52.0 sq. m (8 washing machines); a soap and detergent warehouse of 11.6 sq. m; a utility room of 5.8 sq. m; an ironing room of 34.8 sq. m; two water tanks of 25.0 cubic m. The unit is intended for visitors and staff who want to do their own laundry.
Set 13 (Figure 15): units of a Family cottage and a Leisure Club. The Family cottage: an entrance hall of 9.0 sq. m; a kitchen of 18.0 sq. m; a bathroom of 2.5 sq. m; a corridor of 8.0 sq. m; a living room of 33.0 sq. m; a bedroom of 27.0 sq. m; a bathroom of 5.0 sq. m; a bedroom of 20.0 sq. m; a bathroom of 6.0 sq. m; a bedroom of 22.0 sq. m; a bathroom of 4.5 sq. m. The Pavilion is furnished with single and double beds with bedside tables, upholstered furniture, tables, shelves, cupboards, chairs, a kitchen table for six people, and a dining table for eight people in the living room. A single pavilion location is possible, as well as a multi-level solution with an additional staircase and elevator nodes.
The Leisure pavilion-club: a lobby of 18.0 sq. m with two bathrooms of 4.5 sq. m each; a recreation room of 40.5 sq. m; a computer room of 27.0 sq. m; a concert hall of 40.5 sq. m; a buffet-bar of 18.0 sq. m; a buffet utility room of 9.0 sq. m. Visitors enter the lobby, which houses seating areas and closets. Bathrooms are also located here. From the lobby there is an entrance to the computer room for eight visitors and a quiet relaxation room with a fireplace and an aquarium, furnished with sofas. The hall is designed for the simultaneous stay of twelve to fifteen people. The passage leads to a cinema and concert hall with a variety podium and seats for eighteen spectators. Adjacent to it is a buffet bar with six seats and a utility room. The number of service personnel is six people. Visitors entering the distribution area get acquainted with the layout of the pavilion, which shows the locations of various technological processes, receive a brief briefing from the guide and, accompanied by him, go to the central part, observing the automated process on the conveyor (loading, washing, inspection, crushing, pulp processing, pressing, straining, juice collection, heating, cooling, separation, blending, sweetening, filtration, de-aeration, heating, preparation of containers and lids, packing, sterilization, labeling, warehousing).
Set 14 (Figure 16): an Exhibition block for breeding hunting and service dogs or the temporary accommodation of visitors’ dogs. The Pavilion for the demonstration of dog breeding or temporary accommodation of dogs brought by visitors: partially open on one side and having a mesh fence, a pavilion for single keeping of fighting dogs of 27.0 sq. m with a booth and a utility room; partially open on one side and having a mesh fence, a pavilion for paired keeping of guard dogs of 27.0 sq. m with a booth, a platform and a utility room; the pavilion for keeping hunting dogs (hounds, greyhounds, burrows, cops, retrievers, spaniels, huskies, setters), partially open on both sides and with a mesh fence, is 108.0 sq. m with booths, platforms and a utility room. The open parts of the pavilions are visually isolated from each other to reduce the anxiety of the inhabitants of neighboring pavilions. Visitors, instructed and accompanied by a guide, can approach the open part of the pavilion to observe the maintenance of dogs of various species, take part in feeding animals and cleaning enclosures. Separate entertainment may include participation in dog walking in an open area, training guard dogs at a training ground, and recreational dog hunting on foot or horseback with appropriate equipment. Visitors who come with their dogs can rent an appropriate free, pre-prepared pavilion for them, conduct training at the training ground under the guidance of dog handlers, and receive advice from a trainer and veterinarian.
Set 15 (Figure 17): an Exposure unit for breeding ducks or geese. The Pavilion for the demonstration of ducks or geese: two poultry houses (outdoor) of 9.0 sq. m, two feed rooms of 6.8 sq. m, two feed preparation rooms of 4.5 sq. m, two inventory rooms of 4.5 sq. m, a utility room of 4.5 sq. m, a staff room of 9.0 sq. m, a bathroom of 4.5 sq. m, two open-air enclosures of 140.0 sq. m each with four reservoirs of 12.0 sq. m of open surface, fenced with a 2.5 m high grid. Visitors pass through the staff room, where they receive instructions, to the aviaries, where they can inspect the poultry houses, observe the collection of eggs, carefully, together with a guide to avoid aggressive behavior of geese, walk among the birds, take part in their feeding at reservoirs and cleaning the aviaries.
Set 16 (Figure 18): units for the Exhibition of juice production, the Cultivation of edible insects, and the Wardrobe of the sports grounds. The Edible insect breeding demonstration pavilion: distribution area of 9.0 sq. m; a bathroom of 4.5 sq. m; a raw materials reception and waste disposal room of 13.5 sq. m; a production room of 58.5 sq. m; a laboratory of 4.5 sq. m; a utility room of 4.5 sq. m; a warehouse of finished products and cooking of 9.0 sq. m; a tasting room of 18.0 sq. m; a water preparation tank of 25.0 cubic m.
Visitors entering the distribution area are acquainted with the layout of the pavilion, which shows the locations of various technological processes, receive a brief briefing from the guide and, accompanied by him, go to the central part, examining the tiered boxes with cultivated insects (silkworms, lacquer worms, crickets, wax worms, cockroaches). The route leads along the outside of the racks. Next, you can familiarize yourself with the sorting and packing process. Visitors may participate in the production process. The final stage is product tasting. The Pavilion for the demonstration of production and tasting of juices: a distribution area of 9.0 sq. m; a bathroom of 4.5 sq. m; a reception room for raw materials of 13.5 sq. m; a production room of 58.5 sq. m; a laboratory of 4.5 sq. m; a utility room of 4.5 sq. m; a finished goods warehouse of 9.0 sq. m; a tasting room of 18.0 sq. m; a water treatment tank of 25.0 cubic m. The route leads along the inside of the conveyor. Direct participation of visitors in the production process is not provided. The final stage is product tasting. The Sports grounds cloakroom pavilion (two adjacent complexes of rooms): locker room of 13.5 sq. m; a toilet of 4.5 sq. m; a shower room of 9.0 sq. m. A semi-open gallery of 27.0 sq. m is connected to the complexes; an aggregate of 4.5 sq. m; a sports equipment storeroom of 5.5 sq. m; a cleaning equipment storeroom of 3.0 sq. m; a clean water tank of 25.0 cubic m. The pavilion is designed for changing clothes of teams participating in physical culture and sports events. The simultaneous capacity is thirty (15 + 15) people.
Set 17 (Figure 19): an Exposure unit for breeding rabbits or nutria. The Rabbit or nutria demonstration pavilion: two distribution zones of 13.5 sq. m; two galleries of 27.0 sq. m; two interlocked animal holding areas of 13.5 sq. m; utility room of 4.5 sq. m; a utility room with bathroom of 9.0 sq. m; a water treatment tank of 25.0 cubic m. Visitors entering the distribution area get acquainted with the layout of the pavilion, which indicates the locations of various areas. They put on disposable protective robes, hats, shoe covers, gloves, receive a brief briefing from a tour guide and, accompanied by him, walk through the galleries, and if desired, participate with the staff in the production processes of feeding and cleaning aviaries that come along the way. The circular route leads along a three-level system of thirty-six aviaries with side natural and overhead special artificial lighting.
Set 18 (Figure 20): units of Household premises for staff and Cheese production exhibits. The Cheese production and tasting pavilion: a gallery of 13.5 sq. m; a wardrobe of 9.0 sq. m; a bathroom of 4.5 sq. m; a tasting room of 27.0 sq. m; a camera storage of finished products of 13.5 sq. m; a maturation chamber of 36.0 sq. m; a salt department of 18.0 sq. m; a production room of 30.0 sq. m; a laboratory of 6.0 sq. m; a reception department of 18.0 sq. m. Visitors entering the distribution area get acquainted with the layout of the pavilion, which shows the locations of various technological processes; they put on disposable protective robes, hats, shoe covers, gloves, receive a brief briefing from the guide and, accompanied by him, go to the production facilities.
Here they can observe the entire technological chain of production: milk production, maturation, normalization, pasteurization, coagulation, rennet processing, molding, pressing, salting, maturation, pre-sale preparation. In the final distribution area of the circular route, visitors can take part in a tasting of the drinks produced (the capacity of the tasting room is ten seats). Household premises for staff (two adjacent complexes of rooms): a vestibule of 4.0 sq. m; a dirty uniform storeroom of 5.0 sq. m; a clean uniform storeroom of 4.5 sq. m; a dressing room of 36.0 sq. m; a toilet of 4.5 sq. m; a shower room of 27.0 sq. m. The aggregate area of 4.5 sq. m is interconnected with the complexes; a pumping station of 3.5 sq. m; a utility room of 5.5 sq. m; a tank of clean water of 25.0 cubic m. The pavilion is planned to be symmetrical, having men’s and women’s departments. The capacity of the pavilion is forty (20+20) people staying at the same time. The furniture includes wardrobes with two compartments for each visitor, tables, chairs, benches, linen closets, and chests for dirty work clothes. Both a single-level pavilion layout and a multi-level solution are possible.
Set 19 (Figure 21): a Dining room unit. The Dining room pavilion: a lobby of 18.0 sq. m; two toilets of 4.5 sq. m; a dining room of 54.0 sq. m; a kitchen of 17.0 sq. m; a dishwasher of 12.0 sq. m; a wardrobe of 5.0 sq. m with a bathroom of 4.5 sq. m; a wardrobe of 7.0 sq. m with a bathroom of 4.5 sq. m; a corridor of 11.0 sq. m; two food pantries of 4.5 sq. m; a utility room of 6.0 sq. m; a refrigerator of 27.0 sq. m; an aggregate of 4.5 sq. m; a utility room of 3.5 sq. m; a food waste storage of 5.5 sq. m; a clean water tank of 25.0 cubic m. The pavilion is designed to provide three to four hot meals a day to visitors of the Complex and part of the staff. The simultaneous capacity is twenty people; the kitchen staff is six people. It is possible to organize events for tasting local products. The kitchen also fulfills the orders of the visitors to the Complex, preparing and delivering food to hotel rooms, cottages, picnic areas, and recreation pavilions. Food is also delivered to the premises of entry and exit security, territory security, and the rest of the staff on duty.
Set 20 (Figure 22): a Unit with a four-level observation deck with stairwells and an elevator. Observation deck pavilion: three observation decks with an area of 27.0 sq. m at heights of 2.8 m, 5.6 m, 8.4 m; tower blocks of 4.5 sq. m each with stairwells and an elevator. The pavilion is designed for visitors who enjoy observing the surroundings from three levels, furnished with semi-chairs. The elevator provides access to these levels for people belonging to low-mobility groups of the population. Staircases have portable intermediate platforms. A staff member on duty at the Complex is constantly present at the facility.
Set 21 (Figure 23): a Fish watching and a recreational fishing unit. The Pavilion for recreational fishing and fish watching: three aquariums with a glazed side surface and a surface area of 13.5 sq. m each; three water treatment tanks of 25.0 cubic m; a feed storage room of 9.0 sq. m; a filtration room of 13.5 sq. m with equipment for cleaning, a disinfection, temperature control, oxygen saturation room; a utility room of 4.5 sq. m; a storeroom of rented fishing equipment of 4.5 sq. m.; an aggregate of 9.0 sq. m.; two sloping galleries of 27.0 sq. m with stairs and ramps inside leading to the second level.
On the second level there are two fishing pavilions of 13.5 sq. m each; an outdoor observation area of 4.5 sq. m; two fishing platforms of 3.0 sq. m each. Visitors from the ground level can spend time observing fish and crayfish through the glazed surfaces of three 20’OTC containers turned into aquariums. After renting fishing equipment (fishing rods, cages, nets, scoop-nets) and feed, visitors ascend to the second level using covered stairs and ramps adapted for low-mobility groups of the population. At this level, you can sit in pavilions, outdoor areas or platforms above the edges of aquariums, spend time having fun fishing, catching crayfish, watching them or feeding fish and crayfish. The staff present can advise the visitors.
Set 22 (Figure 24): a Sauna. The Sauna (symmetrically arranged identical complexes): a lobby of 3.5 sq. m; a linen pantry of 10.0 sq. m; a changing room of 13.5 sq. m; a bathroom of 3/0 sq. m; a vestibule of 3.0 sq. m; a shower room of 10.0 sq. m; a steam room of 10.0 sq. m; a swimming pool with a surface area of 12.5 sq. m; a toilet of 4.5 sq. m; a washing room of 36.5 sq. m, an outdoor tank with a surface area of 12.5 sq. m; a utility room of 13.5 sq. m; a clean water tank of 25.0 cubic m, an outdoor area of 36.0 sq. m. The pavilion, which is divided into men’s and women’s halves, offers bath treatments with the possibility of using indoor and outdoor pools. In the outdoor areas by the pools, it is possible to organize a short rest between treatments. There are two on-duty personnel from the Complex constantly present in each department. The simultaneous number of visitors using the services of this pavilion is 8 people in each department.
Set 23 (Figure 25): an exposure unit for fish and crayfish breeding. The Fish and crayfish breeding demonstration pavilion: two distribution zones of 18.0 sq. m; two galleries of 27.0 sq. m; two adjacent platforms for open-top fish farming tanks of 27.0 sq. m; a bathroom of 4.5 sq. m; a feed preparation room of 4.5 sq. m; a waste storage room of 4.5 sq. m; a storage room of 4.5 sq. m; two utility rooms of 4.5 sq. m; two water treatment tanks of 25.0 cubic m; an aggregate of 9.0 sq. m; a filtration unit of 9.0 sq. m with equipment for cleaning, disinfection, regulation of temperature and oxygen saturation.
Visitors entering the distribution area get acquainted with the layout of the pavilion, which shows the locations of various technological processes, put on disposable protective robes, hats, shoe covers, gloves, receive a brief briefing from the guide and, accompanied by him, walk through the galleries, if desired, participating with the staff in the production processes of water saturation and fish feeding that they see on the way or crayfish and their catch. The circular route leads along fish-breeding pools (spawning, fry, mature, feeding), which have special artificial lighting. There is a separate packing area for caught fish and crayfish to send for pre-sale.
Set 24 (Figure 26): an Exhibition unit for growing flowers, vegetables or berries. The Pavilion for the demonstration of the cultivation of flowers, vegetables or berries: two distribution zones of 18.8 square m; two galleries of 27.0 sq. m; four glazed overhead interlocked cultivation areas of 13.7 sq. m; a bathroom of 4.5 sq. m; a utility room 4.5 sq. m; a fertilizer room 6.0 sq. m; a storage room for dry stems and tops 6.0 sq. m; an inventory room 4.0 sq. m; two aggregates for rooms of 4.0 sq. m; two utility rooms of 4.5 sq. m; a water treatment tank for irrigation 25.0 cubic m; tank for hydroponics of 25.0 cubic m.
Visitors entering the distribution area get acquainted with the layout of the pavilion, which shows the locations of various technological processes, put on disposable protective robes, hats, shoe covers, gloves, receive a brief briefing from the guide and, accompanied by him, walk through the galleries, and if desired, participating with the staff in the production processes of plant processing, fertilizers, watering, and assembly. The circular route leads along four inter-locked cultivation sites. The playgrounds have overhead natural and additional special lighting. On the sites, the corresponding plant pavilion specializations are located in single-level containers. Cultivation in the soil with external irrigation and in hydroponics of various systems is demonstrated: wick, floating platform, periodic flooding, nutrient layer, drip irrigation, and aeroponics. There is a separate packing area for the assembled products to be sent for pre-sale.
Set 25 (Figure 27): an Exposure unit for breeding hunting birds. The Pavilion for the demonstration of the maintenance of hunting birds: six semi-detached poultry houses of 4.5 sq. m each, 2.0 m high, open from the aviary; maintenance staff unit with a bathroom of 4.5 sq. m, a duty room of 7.0 sq. m, a utility room of 2.0 sq. m; a feed preparation unit of 13.5 sq. m with a storage room for cleaning equipment, storage and preparation rooms for feed; fenced with a 12.0 m high net around the perimeter and a mesh top outdoor aviary of 300.0 sq. m. Visitors receive instructions and booklets on the way to the pavilion, and approach the aviary, which contains hunting birds such as the sparrowhawk, golden eagle, goshawk, and saker falcon. Outside visitors can inspect the birds perched on perches, branches and slats mounted at various heights on the supports of the mesh fence, and observe how they are cared for. The passage of visitors to the aviary is not provided due to the possible aggressive behavior of birds. However, visitors have the opportunity to take part in entertaining falconry in an open area as a spectator or try, under the guidance of a falconer, to launch a bird into an attack from their hand while on foot or on horseback.
Set 26 (Figure 28): an Exposure unit for breeding ostriches or turkeys. The Pavilion for the demonstration of keeping ostriches or turkeys: six semi-detached poultry houses of 18.0 sq. m each with a height of 6.0 m; a staff unit with a bathroom of 4.5 sq. m, a duty room of 7.0 sq. m, a utility room of 2.0 sq. m; a feed preparation unit of 13.5 sq. m with a storage room for harvesting equipment, storage and preparation of feed; fenced with a grid height of 5.0 m open aviary of 280.0 sq. m. On the way to the pavilion, visitors receive instructions and booklets, approach the aviary, from where they can inspect walking ostriches or turkeys, observe their care, and take part in feeding. Visitors are not allowed to enter the aviaries due to the possible aggressive behavior of birds.
Set 27 (Figure 29): an Exhibition block for breeding songbirds and ornamental birds. The Pavilion for the demonstration of keeping songbirds or ornamental birds: six semi-detached poultry houses of 4.5 sq. m each, 12.0 m high, interlocked with six poultry houses of 4.5 sq. m each, 6.0 m high, which are open from the aviary; a staff unit with a bathroom of 4.5 sq. m, a duty room of 7.0 sq. m, a utility room of 2.0 sq. m; a feed preparation unit of 13.5 sq. m with a storage room for cleaning equipment, storage and preparation rooms for feed; fenced with a 12.0 m high net around the perimeter and a mesh roof open aviary of 280.0 sq. m. Visitors pass through the staff room, where they receive instruction, into the aviary. Here they can observe the keeping of birds, take part in their feeding and cleaning of the aviary. It is also possible to spend some time relaxing, listening to the singing-chirping and watching the birds being kept on branches and slats fixed on the supports of the mesh fence of the aviary.
Set 28 (Figure 30): an Exhibition unit for preserving vegetables and fruits. The Pavilion for the displaying of canned vegetables, fruits or berries: a component reception room of 13.5 sq. m; two galleries of 27.0 sq. m; a production room of 54.0 sq. m; a finished product warehouse of 13.5 sq. m; two distribution zones of 4.5 sq. m; two control rooms of 4.5 sq. m; two aggregates of 4.5 sq. m; a distribution area of 18.0 sq. m; a storage room of 4.5 sq. m; a bathroom 4.5 sq. m; two water treatment tanks of 25.0 cubic m each. Visitors entering the distribution area get acquainted with the layout of the pavilion, which shows the locations of various technological processes, receive a brief briefing from the guide and, accompanied by him, walk along the gallery along the conveyor, observing the automated process (loading, inspection, washing, sorting, calibration, drying, blanching, preparation of containers and lids, preparation of filling, packing, capping, sterilization, labeling, warehousing). The route leads through galleries along the outside of the conveyor belt. Direct participation of visitors in the production process is not provided.
Set 29 (Figure 31): an Exhibition unit for growing fruits and nuts. The Fruit and nut cultivation demonstration pavilion: two 6.0 sq. m distribution zones; three galleries with a total area of 76.5 sq. m; two galleries with a height of 6.0 m and upper perimeter lighting, cultivation areas of 40.5 sq. m and 27.0 sq. m; a bathroom of 4.5 sq. m.; two platforms for import and export of materials and products of 6.0 sq. m.; an inventory room of 4.0 sq. m.; two utility rooms of 4.0 sq. m.; two fertilizer preparation rooms of 4.0 sq. m.; a water treatment tank for irrigation of 25.0 cubic m; a tank for hydroponics of 25.0 cubic m. Visitors entering the pavilion get acquainted with the layout of the pavilion, which shows the locations of various technological processes, put on disposable protective gowns and gloves, receive a brief briefing from the guide and, accompanied by him, walk through the galleries, and if desired, participate with the staff in the production processes of plant processing, fertilization, irrigation, and assembly that come along their way. The H-shaped route leads along and between two fruit growing sites. The platforms have an upper natural side and additional special lighting. On the sites, in single-level containers and tubs, there are corresponding specializations of the plant pavilion. If desired, the picked fruit is tasted immediately. Cultivation in the soil with external irrigation and in hydroponics of various systems is demonstrated: wick, floating platform, periodic flooding, nutrient layer, drip irrigation, aeroponics. The packing areas of the assembled products are located separately for shipment for pre-sale.
Set 30 (Figure 32): Exposure units for breeding mushrooms or snails and an Exposure block for breeding turtles or frogs. The Pavilion for displaying mushroom or snail breeding: two distribution zones of 22.5 sq. m; three galleries of 27.0 square m; two cultivation sites of 27.0 sq. m; a bathroom of 4.5 sq. m; a utility room of 4.5 sq. m; a feed or fertilizer room of 6.0 sq. m; an inventory room of 4.0 sq. m; an aggregate of 4.0 sq. m; a water treatment tank for irrigation of 25.0 cubic m.
Visitors entering the distribution area get acquainted with the layout of the pavilion, which shows the locations of various technological processes, put on disposable protective robes, hats, shoe covers, gloves, receive a brief briefing from the guide and, accompanied by him, walk through the galleries, if desired, participating with the staff in the production processes that come along the way. The circular route leads along three cultivation sites with special artificial lighting. For breeding turtles, terrariums are available with water and ground areas arranged in one or two levels—places for laying eggs, incubators, and terrariums for young and adult individuals with drinking bowls with a dispenser, feeders and houses for living. Incubation ponds, tadpole ponds, and terrariums with unpaved areas for adults also arranged for frogs on one or two levels. There is a separate packing area for the assembled copies to send for pre-sale. Visitors can take part in feeding, egg collection, transplanting of young individuals, and sorting of captured specimens.
Set 31 (Figure 33): an Exposure unit for food preparation (for animals, birds, fish, amphibians, crustaceans, mollusks, arthropods). The Pavilion for demonstration of animal, bird and fish food preparation: a vestibule of 4.5 sq. m; a bathroom of 4.5 sq. m; a packing room of 13.5 sq. m; a production room of 81.0 sq. m with a ceiling height of 6.0 m and 12.0 m; a reception room of 9.0 sq. m; a waste room of 4.5 sq. m; a laboratory of 9.0 sq. m; a utility room of 4.5 sq. m; two dosing rooms of 4.5 sq. m each; a utility room of 9.0 sq. m; a vestibule of 4.5 sq. m; a gallery of 36.0 sq. m.
Visitors entering the distribution area get acquainted with the layout of the pavilion, which shows the locations of various technological processes, put on disposable protective robes, hats, shoe covers, gloves, receive a brief briefing from the guide and, accompanied by him, go to the production facilities. Here they can observe the entire technological chain of feed production with various processing methods: thermal (steaming, brewing, cooking, baking, drying, evaporation, roasting, pasteurization), chemical (hydrolysis, alkali treatment, deoxidation of silage), biological (silage, fermentation, salting, yeast), mechanical (cleaning, shaking, sieving, sifting, washing, magnetic cleaning; crushing, cutting, crushing, breaking, grinding; flattening, pressing, kneading, dosing, mixing, bracketing, granulating). Direct participation of visitors in the production of products is not provided.
Set 32 (Figure 34): a Display unit for breeding horses, ponies, donkeys, mules, cows or camels. The Pavilion for the demonstration of horses, ponies, donkeys, cows or camels: four distribution areas of 6.0 sq. m each; a viewing gallery of 27.0 sq. m; a technological gallery of 27.0 sq. m; three interlocked animal husbandry pavilions of 36.0 sq. m each, with a technologically sound height of 6.0 m and perimeter glazing on the second level; two feed preparation rooms of 4.5 sq. m each adjacent to an operational feed storage room; a staff living room with a bathroom of 13.5 sq. m; an inventory storeroom of 4.5 sq. m; a temporary milk storage room of 13.5 sq. m; a waste storage room of 4.5 sq. m; a workwear storeroom of 9.0 sq. m; two 6.0 m by 4.5 m high rooms for ventilation equipment; two water treatment tanks of 25.0 cubic m each.
Visitors entering the distribution area get acquainted with the layout of the pavilion, which indicates the locations of various technological processes, receive a brief briefing from the guide and are accompanied by him through the viewing gallery, if desired, by participating with the staff in the production processes of feeding animals, cleaning them, milking them; cleaning the stall, coming in from the outside technology gallery. A straight-line route leads along three interlocked stalls. If desired, it is possible to take part in walking the animals in outdoor areas. It is also possible to organize horseback riding and riding in carriages and carts using horses, ponies, donkeys and camels.
Set 33 (Figure 35): an Exposure unit for breeding pigs, sheep or goats. The Pavilion for the demonstration of keeping pigs, sheep or goats: four distribution zones of 6.0 sq. m; two galleries of 27.0 sq. m; three interlocked animal pavilions of 36.0 sq. m; two feed preparation rooms of 4.5 sq. m adjacent to the room for operational storage of feed; a staff living room with bathroom of 13.5 sq. m; an inventory storeroom of 4.5 sq. m.; a temporary milk storage room of 13.5 sq. m.; a waste storeroom of 4.5 sq. m.; a workwear storeroom of 9.0 sq. m.; two 6.0 m high 4.5 m rooms for equipment; two water treatment tanks of 25.0 cubic m each. Visitors entering the distribution area get acquainted with the layout of the pavilion, which shows the locations of various technological processes, receive a brief briefing from the guide and, accompanied by him, walk through the viewing gallery, and if desired, participate with the staff in the production processes of feeding animals, cleaning them; cleaning the stall, entering from the technological gallery. A straight-line route leads along three interlocked stalls. If desired, it is possible to take part in walking animals in outdoor areas.
Set 34: a Unit of multi-step stairs on four floors (the usual ascent). Set 35: a Unit of multi-step stairs on two floors (the usual ascent). Set 36: a Unit of multi-step stairs on four floors (the comfortable ascent). Set 37: a Unit of multi-step stairs on two floors (the comfortable ascent). Set 38: a Four-level elevator unit. Set 39: a Single-step staircase block with a ramp. Sets 34, 35, 36, 37, 38, and 39 are shown in Figure 36. Figure 37 shows the spatial solution of the proposed sets of containers.
The main parameters of the considered sets are given in Table 12, Table 13, Table 14 and Table 15.
The presented planning and spatial solutions have been implemented in compliance with all regulatory requirements:
-
For the organization of agricultural production processes;
-
To ensure the gaming and exhibition attractiveness;
-
Organization of an educational, methodically based and cognitive inspection of the exposition;
-
To ensure the feasible participation of children in production processes;
-
To ensure the convenience and safety of building operation;
-
To ensure veterinary and sanitary-epidemiological standards of agricultural production.
The use of containers provides the following:
-
Organizational and technological modularity;
-
Transformability of exposure;
-
The ability to quickly build and dismantle buildings;
-
Ecological optimality of the processes of construction and operation of children’s complexes;
-
Economic efficiency of construction and operation of children’s complexes.
Together, this makes a significant contribution to ensuring the sustainable development of urban and suburban areas.

5. Discussion

At the present stage, children’s educational and play complexes with agricultural themes can complement the usual children’s playgrounds in cities and suburbs. Depending on the size of the territory, they may include a different number of facilities demonstrating environmentally friendly agricultural production. The active participation of children in these processes will make it possible to form an appropriate worldview related to the understanding of the expediency of environmental protection.
The most important difference between a children’s playground based on agricultural themes is a kind of dynamism: by constantly visiting such a playground, a child can see the constantly updated results of its activities in the process of plant and animal development.
The formation of a complex of buildings and structures for a children’s play complex of agro-tourism activities as a component of the sustainable development system of the region presupposes the achievement of a number of parameters throughout the entire life cycle of the enterprise—creation, operation, and liquidation. The proposed modular system based on previously used marine containers for their intended purpose solves the bulk of the tasks of this issue.
  • Technologically high level of production of the basic element—mass production immediately gives a positive economic effect relative to the unit, especially with its centralization. The main aspect here is the production flow with uniformity of processes at each stage, ensuring high quality, which is quite tightly controlled and verified at each stage. An important component of this position is the very fact of reuse of an item that was originally intended as a container, since the return of this container is quite problematic from the point of view of both filling the volume with goods in demand in the base loading region and the logistics of actually delivering an empty container. In other words, the problem of reducing the cost of empty transportation is partially solved.
  • This position solved issues in the field of transportation and installation of individual elements, which technologically and logistically developed in world practice and require minimal effort in preparing the construction site, which determines the optimal low level of impact on the landscape. It is practically possible not to disturb the vegetation layer by arranging only angular metal or reinforced concrete prefabricated monolithic foundations. It is possible to use rubble-concrete supports made of local materials. In the case of a rocky base, it is enough to simply align the zones of the corner supports at the same level. In addition, sudden changes in terrain are compensated by the tiered arrangement of containers. The dismantling of the blocks is also a low-impact process.
  • Saving energy costs lies in the fact that the main work on the adaptation of containers is carried out in the factory by bringing them to the place of use ready on a turnkey basis. If the work is carried out on site, then the bulk of it is carried out inside in an essentially enclosed space, which protects workers from most adverse natural and climatic factors. Together, this simplifies the achievement of high-quality work performed, reduces the time required, since, among other things, it implies multi-shift, almost round-the-clock production.
  • The use of high-grade factory-ready materials with technologically proven packaging, storage, transportation and application in container fittings (steel trapezoidal sheet and metal profiles for pitched roofs above the container block; dry-wall, fiberboard and particle boards with guides made of bent thin-walled steel profiles, metal-plastic and plastic window and door blocks, plate insulation and foam insulators of seams and joints for interior decoration).
  • The possibility of using for engineering energy and water supply the operation of the complex, product processing and waste disposal, which do not provide for a demonstration component, massively offered on the market block modular container aggregates, boiler houses, pumping, tank houses, slaughtering of livestock and poultry and other elements of full factory readiness.
  • The possibility of active use of wind and solar energy. At the same time, modular block-container differentiated or integrated wind and solar generators of factory manufacture are massively offered on the market. Solar panels can be positioned as tightly as possible on the roofs of all pavilions of the agro-tourist complex and part of the adjacent territory.
  • The system of collection, purification and use of rain and meltwater. This water is suitable for use in tanks for breeding, for example, frogs and turtles, as well as in irrigation and hydroponics systems for crop production. An interesting possibility is to create “green” roofs with a floral-lawn surface.
  • Organization of a circulating water supply system in a water supply and sewerage complex, when water from sinks, bathtubs, showers, and toilets is collected, cleaned, and sent to the toilet flush system. It is significant that this water can also be used for watering both cultivated and naturally growing plants.
  • Indicators improved by differentiating the collection of food and technological waste, household waste, used containers and packaging. For example, food waste and waste from the pre-sale preparation of snails, frogs, and a number of crop products used to prepare feed and fertilizers.
  • The possibility of converting manure, plant processing products and parts of household wastewater into bio-fuel. The corresponding units in the modular container version are also widespread.
Another important position of the children’s play agro-tourism complex is the pro-motion of respect for the environment and the use of renewable energy sources.
This research topic has prospects for expansion and deepening. Thus, it seems promising to define a set of modular buildings for various mono- and poly-thematic specialized complexes. Based on the calculations of the estimated occupancy rate, it is advisable to determine the appropriate number of buildings for various purposes both in the area of visitor accommodation and provision of household services to staff, and in the area of exposed processes, taking into account the convenience of displaying agricultural products in terms of the number of visitors. The problem of determining the service life of complexes is interesting, implying the possibility of their transformation or relocation to another territory, which is due to the basic mobility of the modular container system.

6. Conclusions

Shipping containers are widely available and widely distributed goods. The following options are available for use:
-
New containers received from the manufacturer;
-
Containers that were used in shipping only once;
-
Containers that have undergone several cycles of shipping; damaged containers that cannot be used during shipping.
An express analysis of the price of new containers in various regions revealed the following cost indicators for a standard 40-foot container: East Asia—USD 2000, Europe and Australia—USD 3400, North America—USD 3500, and South America—USD 4000. Used containers are 2–3 times cheaper (depending on the condition). Accordingly, the cost per square m of space inside a 40-foot container is about USD 150. Taking into account the interior decoration, the cost can be USD 250 per square m. This is approximately 5–5.5 times cheaper than when building from wood, stone, etc. This price advantage ensures the high attractiveness of shipping containers for the construction of buildings for various purposes. Global practice provides many such examples.
Height (2.4 m) and width (2.3 m) restrictions can be compensated for by blocking containers. The design solutions of the locking nodes are simple and widely used. The necessary flame-retardant coatings are installed according to the relevant regulations. The structural strength and rigidity make it possible to form buildings of up to 6 floors from containers.
The modularity of containers of various types and sizes allows them to be combined depending on the functional purpose of the building. Minimal foundation costs are required to install containers. Usually, a horizontal asphalt or concrete area is sufficient. If the container is installed on open ground—small steel, concrete or stone supports at angles are required.
These features of the formation of buildings from shipping containers determine the prospects for the creation of agricultural-themed educational and play complexes for children based on shipping containers.
The choice of a site for the construction of such children’s complexes in cities and suburbs is determined by state sanitary and epidemiological regulations. For example, for a cowshed with 50 cows, the distance to residential buildings is at least 50 m. The distance to residential buildings is not regulated for the crop-growing theme of the children’s complex. For pavilions displaying agricultural processing processes, the minimum distance is 50 m. That is, separate livestock and crop production pavilions can be located in the courtyards of multi-story residential buildings. These pavilions can be part of a courtyard children’s playground.
Separate pavilions can be located in the courtyards of schools. This will expand the possibilities of teaching some aspects of biology and fostering an environmentally responsible lifestyle.
On sites in urban parks and squares, such children’s play complexes can have a wide range of pavilions. The formation of polythematic children’s complexes is possible in the suburban area. These complexes provide the opportunity for short or long day trips. Special tours lasting 2–3 days are also possible.
Sea containers are currently being actively used in some cities for local agricultural production facilities, serving as greenhouses and conservatories for growing certain plants, birds, fish, mushrooms, edible insects, and other crops. However, these facilities do not provide for the display of the production process.
The novelty of the concept presented in the article lies in the creation of an educational display of certain agricultural production processes. The playful format of the display and the opportunity for active participation in the production processes help raise children’s awareness of environmentally sound business practices.
Sea containers offer a solution to this problem in an environmentally and economically viable manner. Spatial rigidity, modularity, the ability to quickly assemble, and other features define the advantages of sea containers.
After unloading, most of the containers are returned to the shipping carriers. However, for example, approximately 5% of containers in the United States are no longer used in the maritime cargo transportation system [105]. Kazakh consignees receive 476,000 containers per year [106]. That is, approximately 23,800 containers remain on the territory of Kazakhstan every year. Some of these containers are used for children’s educational and play complexes with agricultural themes. Since the complex of all the considered sets consists of approximately 370 containers, it is possible, in principle, to build about 70 poly-thematic children’s educational and play complexes with agricultural themes from the sea containers remaining in Kazakhstan annually.
These containers are usually recycled or used for other purposes. Sea containers have a large margin of safety. Manufacturers guarantee the service life of the container for 15 years, while in fact the structures are suitable for operation without maintenance and repainting for more than 25 years. Container buildings have created a trend in architecture—“a container architecture” or “a cargo architecture”.
The service life of a sea container is directly related to the correctness of its operation (correctly organized loading and unloading operations, correct installation and removal of fasteners, timely elimination of emerging deformations, and restoration of surface paintwork). For the complex in question, it is important that the containers used are no longer subject to constant critical loads inherent in their basic operation (constant loading and unloading, movement, installation and removal of fasteners, constantly changing complex atmospheric effects when at sea, etc.). Even when assembling and disassembling the complex for movement to another site, critical loads and impacts are significantly reduced. Accordingly, their service life in children’s play complexes can be longer than the standard. The most important feature of a sea container is its modularity. That is, in case of unacceptable deformations, replacement is possible. This is what determines the prospects for using sea containers for children’s educational play complexes with agricultural themes. If unacceptable deformations or breakdowns occur, any container or group of containers is quickly replaced with similar new ones.
Children’s educational and playful agro-tourism is a developing field of organization of mass recreation, which has significant development prospects. The object of children’s educational and gaming agro-tourism is a previously existing, reconstructed or newly created resource that transformed into a sought-after product through organizational, financial, transport, logistics and information and entertainment activities. The specifics of children’s educational and gaming agro-tourism, which consists of a purposeful trip to the site and a relatively long stay within it, presupposes the existence of an extensive and thematically diverse program of additional services in the field of recreation and cognitive pastime. Children’s agro-touristic complexes are formed both on the basis of the resources of traditional land use available in the given territory, and through the organization of new, historically uncharacteristic methods of land use for the given area. The organizational models of a children’s agro-touristic enterprise are based on various relationships with agricultural enterprises present or absent in a given territory.
The intra-model differences relate to the structure and interrelationships of the components of a children’s agro-tourism enterprise: agro-exposition, tourism and administrative and service complexes. The construction of fully functioning children’s agro-touristic complexes requires a significant number of buildings for various purposes, the function of which is unlikely to compensate within the existing agricultural enterprise. In these conditions, the problem arises in determining the necessary range of buildings and structures and their corresponding spatial planning solutions. A promising opportunity to solve a complex of buildings for a children’s agro-touristic enterprise is the use of a modular system based on the reuse of marine cargo containers. This is due to their proven spatial variability, functional adaptability and low labor costs for foundation, installation and dismantling, which is important to minimize the impact on the building area of the exposition. In practice, some processes of agricultural production, consumer services and accommodation are organized with varying degrees of convenience in a modular container system. However, children’s tourist orientation requires the creation of much more comfortable spaces for displaying products and a different level of comfort for accommodating and organizing visitors’ stay.
The proposed combinations of containers of various sizes and purposes with an appropriate layout make it possible to solve the entire range of tasks of spatial and technological organization of the work of a children’s agro-touristic enterprise. It is inappropriate to include some agricultural production processes in the exhibition for technical, technological, or moral and ethical reasons. Therefore, it is advisable to use the existing range of standard container modules for their organization. The set of modular pavilions and their relative location can be adjusted depending on the specific landscape context, the availability and development of the basic agricultural enterprise, the thematic focus and seasonality of the children’s agro-touristic complex, as well as the calculated number of visits.
The presented diagrams demonstrate the complete set of facilities necessary for the functioning of a children’s educational play complex. In each specific case, a group of facilities is selected from this set to suit the specific location or theme of the complex. For example, a suburban complex requires a full set of auxiliary facilities, including cottages for temporary accommodation for visitors and staff, repair shops, observation decks, checkpoints, etc. For an inner-city complex, only thematic agricultural facilities are sufficient.
Most city dwellers (especially children) are poorly informed about the specifics of agricultural production and the need for environmentally responsible behavior. One way to solve this problem is to create educational and play complexes. The modularity of sea containers allows for the organization of children’s play complexes with agricultural themes. These complexes can be organized both in rural areas and in free territories within cities.
The organization of children’s play complexes with agricultural themes allows us to successfully work with children to promote environmentally responsible behavior and a healthy lifestyle. The proposed set of block rooms and their layout are based on the technological features of agricultural production processes; organization of excursion activities; features of children’s play areas; ensuring a high level of comfort and safety for visitors and staff (naturally, a high level of comfort is created for the exhibited animals and growing plants).
A separate aspect is the relatively high energy efficiency and environmental adequacy of these children’s play complexes with agricultural themes.
The proposed idea is innovative. Such complexes have not yet been implemented anywhere and do not have scientific descriptions.
This article presents the results of the first stage of a comprehensive study conducted by the authors. At this stage, the fundamental feasibility of using sea containers to create agricultural-themed children’s educational play complexes was determined. The subsequent stages of the study involve defining the nomenclature of objects for children’s educational play complexes located in various urban contexts (residential courtyards, school courtyards, city parks, suburban areas, etc.). This stage aims to determine the preferred thematic and scenario focus of each complex within a specific urban context (monothematic, poly-thematic, or complex). Further study is expected to focus on specifying the spatial organization, furnishings, engineering, and technological equipment for each facility. At this stage, the material, commodity, food, and energy resources necessary for the facility’s operation will be determined. This will allow for a preliminary cost estimate for the project and the formulation of proposals for the construction of children’s educational play complexes at specific urban and suburban sites. Naturally, during the research process, the sequence and content of the stages can be adjusted.
The great need for children’s educational and play complexes on agricultural subjects was determined based on the analysis of theoretical sources and sociological surveys conducted. The author’s hypothesis about the possibility of implementing such complexes from sea containers was confirmed in the process of the demonstrated conceptual research. This opens up opportunities for teachers and parents to improve the organization of children’s leisure and parenting from the perspective of forming environmentally responsible behavior. In the field of construction design, the degree of study of the combinatorial possibilities of modular architecture is deepening.

Author Contributions

Conceptualization, I.O., E.S., L.N., B.K. and K.S.; methodology, I.O., B.K. and K.S.; software, I.O., E.S. and K.S.; validation, E.S., B.K. and K.S.; formal analysis, I.O., B.K. and K.S.; investigation, I.O., B.K. and K.S.; resources, I.O., E.S. and K.S.; data curation, E.S., L.N. and K.S.; writing—original draft preparation, I.O., E.S., L.N., B.K. and K.S.; writing—review and editing, B.K. and K.S.; visualization, I.O., E.S. and K.S.; supervision, I.O., E.S., L.N., B.K. and K.S.; project administration, B.K. and K.S.; funding acquisition, I.O. and K.S. All authors have read and agreed to the published version of the manuscript.

Funding

This research received no external funding.

Data Availability Statement

The raw data supporting the conclusions of this article will be made available by the authors on request.

Conflicts of Interest

The research was conducted in the absence of any commercial or financial relationships that could be construed as a potential conflict of interest.

References

  1. Ardoin, N.M.; Bowers, A.W. Early childhood environmental education: A systematic review of the research literature. Educ. Res. Rev. 2020, 31, 100353. [Google Scholar] [CrossRef]
  2. Mousavi, N.; Ahmadi, S.; Sani, M.S.; Irandoost, S.F.; Gharehghani, M.A.M.; Abdolhai, Z. Identifying environmental education strategies for children with an emphasis on children under four years old: A qualitative study in Iran. Heliyon 2024, 10, e37161. [Google Scholar] [CrossRef]
  3. Silo, N.; Mswela, N.; Seetso, G. Children’s Concepts of the Environment: An Opportunity for Environmental Education as a Tool for Sustainability in Botswana Preschools. Early Child. Educ. J. 2025, 53, 1795–1804. [Google Scholar] [CrossRef]
  4. Grimberg, C.A.; Cortazar, A. Creating Early Childhood Education Environments That Promote Early Learning. In Quality Early Learning: Nurturing Children’s Potential; World Bank Group: Washington, DC, USA, 2022; pp. 165–200. Available online: https://www.researchgate.net/publication/362009145_Creating_Early_Childhood_Education_Environments_That_Promote_Early_Learning (accessed on 30 September 2025). [CrossRef]
  5. Stavreva Veselinovska, S. Why is environmental education important for children in the 21st century? J. Educ. Sci. Theory Pract. 2022, 17, 27–33. [Google Scholar] [CrossRef]
  6. Lloyd Center for the Environment. Exploring the Benefits of Environmental Education for Children. 28 March 2023. Available online: https://lloydcenter.org/exploring-the-benefits-of-environmental-education-for-children/ (accessed on 30 September 2025).
  7. The Office of the “Pasona” Company—A Workroom. Available online: https://cs7.pikabu.ru/post_img/2018/07/17/10/153184350311338767.jpg (accessed on 12 October 2025).
  8. The Office of the “Pasona” Company—An Animal Enclosure. Available online: https://static.tecnichenuove.it/areaarch/2018/02/IMG_0995.jpg (accessed on 12 October 2025).
  9. The Office of the “Pasona” Company—A Rice Plantation. Available online: https://cs11.pikabu.ru/post_img/big/2018/07/17/10/1531843480150379307.jpg (accessed on 12 October 2025).
  10. Yesid, A.C.; Juliana, C.G.; Alvaro, P.B. Rural tourism as a rural territorial development strategy: A survey for the Colombian case. Agron. Colomb. 2009, 27, 129–136. Available online: https://www.redalyc.org/pdf/1803/180314730017.pdf (accessed on 25 June 2025).
  11. Valentine, P. Ecotourism and Nature Conservation: A definition with some recent developments in Micronesia. Tour. Manag. 1993, 14, 107–115. [Google Scholar] [CrossRef]
  12. Minnaert, L. Social tourism participation: The role of tourism inexperience and uncertainty. Tour. Manag. 2014, 40, 282–289. [Google Scholar] [CrossRef]
  13. Schänzel, H.A.; Yeoman, I. The future of family tourism. Tour. Recreat. Res. 2014, 39, 343–360. [Google Scholar] [CrossRef]
  14. Ferrer, J.G.; Sanz, M.F.; Ferrandis, E.D.; McCabe, S.; García, J.S. Social tourism and healthy ageing. Int. J. Tour. Res. 2015, 18, 297–307. [Google Scholar] [CrossRef]
  15. Kim, H.; Woo, E.; Uysal, M. Tourism experience and quality of life among elderly tourists. Tour. Manag. 2015, 46, 465–476. [Google Scholar] [CrossRef]
  16. Jablonska, J.; Jaremko, M.; Timčák, G.M. Social tourism, its clients and perspectives. Mediterr. J. Soc. Sci. 2016, 7, 42–52. [Google Scholar] [CrossRef]
  17. Cater, E.; Lowman, G. (Eds.) Ecotourism. A Sustainable Option; John Wiley and Sons Ltd.: Chichester, UK, 1994; pp. 1–240. [Google Scholar]
  18. Ross, S.; Wall, G. Evaluating Ecotourism: The Case of North Sulawesi, Indonesia. Tour. Manag. 1999, 20, 673–682. [Google Scholar] [CrossRef]
  19. Honey, M. Ecotourism and Sustainable Development: Who Owns Paradise, 2nd ed.; Island Press: Washington, DC, USA, 2008; pp. 1–568. [Google Scholar]
  20. Wearing, S.; Schweinsberg, S. Ecotourism. Transitioning to the 22nd Century, 3rd ed.; Routledge: Abingdon, UK, 2019; pp. 1–181. [Google Scholar]
  21. Avlonitis, V.; Hsuan, J. Exploring Modularity in Services: Cases from Tourism. Int. J. Oper. Prod. Manag. 2017, 37, 771–790. [Google Scholar] [CrossRef]
  22. Mohamed, E. Recycled Shipping Containers as a Tool to Practice Modularity in Architecture Studio. J. Eng. Sci. 2017, 45, 791–803. [Google Scholar]
  23. Pisinger, D. Heuristics for the container-loading problem. Eur. J. Oper. Res. 2002, 141, 382–392. [Google Scholar] [CrossRef]
  24. Kotnik, J. Container, Architecture Paperback; Links Books: Barcelona, Spain, 2008; pp. 1–256. [Google Scholar]
  25. Sawyers, P. Intermodal Shipping Container Small Steel Buildings; CreateSpace: Scotts Valley, CA, USA, 2008; pp. 1–113. [Google Scholar]
  26. Bernardo, L.F.A.; Oliveira, L.A.P.; Nepomuceno, M.C.S.; Andrade, J.M.A. Use of refurbished shipping containers for the construction of housing buildings: Details for the structural project. J. Civ. Eng. Manag. 2013, 19, 628–646. [Google Scholar] [CrossRef]
  27. Kotnik, J. New Container Architecture: Design Guide + 30 Case Studies; Links Books: Barcelona, Spain, 2014; pp. 1–240. [Google Scholar]
  28. Kramer, S. The Box—Architectural Solutions with Containers; Braun Publish: Salenstein, Switzerland, 2014; pp. 1–192. [Google Scholar]
  29. Radwan, A.H. Containers Architecture. Reusing Shipping Containers in making creative Architectural Spaces. Int. J. Sci. Eng. Res. 2015, 6, 1562–1576. [Google Scholar] [CrossRef]
  30. Broto, C. Radical Container Architecture; Links International (Leading International Key Services Barcelona, S.A.): Hong Kong, China, 2015; pp. 1–240. [Google Scholar]
  31. Ismail, K.M.; Al-Obaidi, A.M.A.; Ahmad, M.I. Container architecture in the hot-humid tropics: Potential and constraints. In Proceedings of the 4th International Conference on Environmental Research and Technology, Penang, Malaysia, 27–29 May 2015. [Google Scholar] [CrossRef]
  32. Levinson, M. The Box: How the Shipping Container Made the World Smaller and the World Economy Bigger; Princeton University Press: Princeton, NJ, USA, 2016; pp. 1–544. [Google Scholar]
  33. Bingöl, B.; Gök, A.B. Container architecture and investigation of usage as student housing, Burdur-Isparta cities example. Inonu Univ. J. Art Des. 2017, 7, 142–157. [Google Scholar]
  34. Elrayies, G.M. Thermal Performance Assessment of Shipping Container Architecture in Hot and Humid Climates. Int. J. Adv. Sci. Eng. Inf. Technol. 2017, 7, 1114–1126. [Google Scholar] [CrossRef]
  35. Hidayat, M.S. The Shipping Container as Commercial Building: The Process of Construction and Thermal Comfort Condition. Int. J. Recent Eng. Res. Dev. 2018, 3, 181–189. [Google Scholar]
  36. Meier, L. Shipping Container Homes: How to Build a Shipping Container Home—Including Building Tips, Techniques, Plans, Designs, and Startling Ideas; CreateSpace Independent Publishing Platform: Scotts Valley, CA, USA, 2018; pp. 1–184. [Google Scholar]
  37. Tanyer, A.M.; Tavukcuoglu, A.; Bekboliev, M. Assessing the airtightness performance of container houses in relation to its effect on energy efficiency. Build. Environ. 2018, 134, 59–73. [Google Scholar] [CrossRef]
  38. Primasetra, A. Implementation of Re-used Shipping Containers for Green Architecture (Case Study: ITSB Creative Hub-Cikarang). In Equity, Equality, and Justice in Urban Housing Development; KnE Social Sciences: Dubai, United Arab Emirates, 2018; pp. 67–82. Available online: https://www.researchgate.net/publication/335323617_Implementation_of_Re-used_Shipping_Containers_for_Green_Architecture_Case_Study_ITSB_Creative_Hub-Cikarang (accessed on 25 June 2025).
  39. Martin, S.; Martin, J.; Lai, P. International Container Design Regulations and ISO Standards: Are They Fit for Purpose? Marit. Policy Manag. 2019, 46, 217–236. [Google Scholar] [CrossRef]
  40. Taleb, H.; Elsebaei, M.; El-Attar, M. Enhancing the sustainability of shipping container homes in a hot arid region: A case study of Aswan in Egypt. Archit. Eng. Des. Manag. 2019, 15, 459–474. [Google Scholar] [CrossRef]
  41. Laksitoadi, B.; Syarif, M. Refurbished Shipping Containers as Architectural Module in Bandung. In Proceedings of the 3rd International Conference on Dwelling Form (IDWELL 2020), Online, 27–28 October 2020; Advances in Social Science, Education and Humanities Research. Atlantis Press: Dordrecht, The Netherlands, 2020; Volume 475, pp. 1–9. Available online: https://www.researchgate.net/publication/345546687_Refurbished_Shipping_Containers_as_Architectural_Module_in_Bandung (accessed on 25 June 2025).
  42. Slawik, H.; Bergmann, J.; Buchmeier, M.; Tinney, S. Container Atlas: A Practical Guide to Container Architecture; Springer: Berlin/Heidelberg, Germany, 2020; pp. 1–304. [Google Scholar]
  43. Satola, D.; Kristiansen, A.B.; Houlihan-Wiberg, A.; Gustavsen, A.; Ma, T.; Wang, R.Z. Comparative life cycle assessment of various energy efficiency designs of a container-based housing unit in China: A case study. Build. Environ. 2020, 186, 107358. [Google Scholar] [CrossRef]
  44. Shen, J.; Copertaro, B.; Zhang, X.; Koke, J.; Kaufmann, P.; Krause, S. Exploring the potential of climate-adaptive container building design under future climate scenarios in three different climate zones. Sustainability 2020, 12, 108. [Google Scholar] [CrossRef]
  45. Kristiansen, A.B.; Zhao, B.Y.; Ma, T.; Wang, R.Z. The viability of solar photovoltaic powered off-grid Zero Energy Buildings based on a container home. J. Clean. Prod. 2021, 286, 125312. [Google Scholar] [CrossRef]
  46. Risnandar, F.F.A.; Primasetra, A. Thermal performance of reused shipping containers as building components. IOP Conf. Ser. Earth Environ. Sci. 2021, 738, 012038. [Google Scholar] [CrossRef]
  47. Chen, H.-Y.; Lin, H.-H.; Hsu, H.-L. Container Architecture as a Tool for City Sustainability. In Proceedings of the 2017 International Conference on Energy, Environment and Sustainable Development (EESD 2017), Zhuhai, China, 11–12 March 2017; pp. 386–390. Available online: https://www.researchgate.net/publication/318377648_Container_Architecture_as_a_Tool_for_City_Sustainability (accessed on 25 June 2025).
  48. Ceylan, S. Students’ Approach to Recycling and Sustainability: A Design Study on Affordable Container Houses. In Proceedings of the International Conference on Applied Human Factors and Ergonomics (AHFE 2020), Virtual, 25–29 July 2021; Advances in Human Factors in Architecture, Sustainable Urban Planning and Infrastructure. Springer: Berlin/Heidelberg, Germany, 2020; pp. 175–181. Available online: https://www.researchgate.net/publication/342545421_Students’_Approach_to_Recycling_and_Sustainability_A_Design_Study_on_Affordable_Container_Houses (accessed on 25 June 2025).
  49. Abrasheva, G.; Senk, D.; Häußling, R. Shipping Containers for a Sustainable Habitat Perspective. Rev. Métallurgie 2012, 109, 381–389. [Google Scholar] [CrossRef]
  50. de Garrido, L. Sustainable Architecture Containers; Monsa: Barcelona, Spain, 2011; pp. 1–95. [Google Scholar]
  51. Islam, H.; Zhang, G.; Setunge, S.; Bhuiyan, M.A. Life cycle assessment of shipping container home: A sustainable construction. Energy Build. 2016, 128, 673–685. [Google Scholar] [CrossRef]
  52. Minguet, J.M. Sustainable Architecture—Containers/2; Monsa: Barcelona, Spain, 2013; pp. 1–112. [Google Scholar]
  53. Breaking Boundaries: The Endless Uses of Shipping Containers. Blog: Uses of Repurposed Shipping Containers, 2025. 8 May 2025. Available online: https://www.msc.com/en/lp/blog/shipping/shipping-containers-and-alternative-uses (accessed on 30 September 2025).
  54. Cardoso, M. Environmental and Sustainable Benefits of Reusing Shipping Containers. Boxxport.com. Available online: https://blog.boxxport.com/reusing-shipping-containers/ (accessed on 30 September 2025).
  55. Cardoso, M. Container Architecture with Used Shipping Containers. Boxxport.com. Available online: https://blog.boxxport.com/shipping-containers-architecture/ (accessed on 30 September 2025).
  56. Cardoso, M. New vs. Used Shipping Containers: Solution to the Dilemma. Boxxport.com. Available online: https://blog.boxxport.com/new-vs-used-shipping-containers/ (accessed on 30 September 2025).
  57. Cardoso, M. Modern Shipping Container Homes—A New Lifestyle. Boxxport.com. Available online: https://blog.boxxport.com/shipping-container-home/ (accessed on 30 September 2025).
  58. Cardoso, M. Steel Shipping Container’s Lifespan. Boxxport.com. Available online: https://blog.boxxport.com/steel-shipping-containers-lifespan/ (accessed on 30 September 2025).
  59. Live Green: 3 Ways Re-Using Shipping Containers Encourages Sustainability. Get Simple Box.com. 4 May 2024. Available online: https://getsimplebox.com/shipping-container-sustainability/ (accessed on 30 September 2025).
  60. Kamel, W.A.; Fathallah, A.M.; Faheem, S.G. Reusing shipping containers as green building units in hot regions a case study: New-Assiut city school, Egypt. J. Green Build. 2025, 20, 291–308. [Google Scholar] [CrossRef]
  61. Industrial Symbiosis—Reuse of Old Shipping Containers in Construction. Interreg Europe. Available online: https://www.interregeurope.eu/good-practices/industrial-symbiosis-reuse-of-old-shipping-containers-in-construction (accessed on 17 November 2025).
  62. Tavşan, F.; Bektaş, U. Recycling in Architectural Sustainability: Container Houses. J. Inter. Des. Acad. 2021, 1, 34–48. [Google Scholar]
  63. Reusing Shipping Containers: Thinking Outside the Box. GREENCARRIER. 4 October 2018. Available online: https://blog.greencarrier.com/reusing-shipping-containers-thinking-outside-the-box/ (accessed on 30 September 2025).
  64. Sustainable Uses for Shipping Containers. By Philspace. 29 February 2024. Available online: https://www.philspace.co.uk/news/sustainable-uses-for-shipping-containers/ (accessed on 30 September 2025).
  65. Circular Economy from Shipping Containers: Houses, Swimming Pools, and Industrial Warehouses: Why Shipping Containers Are the Next Step in the Circular Economy. Moeve Global, Sustainable Innovation. 23 January 2024. Available online: https://www.moeveglobal.com/en/planet-energy/sustainable-innovation/circular-economy-from-shipping-containers (accessed on 30 September 2025).
  66. The Environmental Impact of Reusing Shipping Containers. Anjer. 4 April 2025. Available online: https://anjerinc.com/containers/the-environmental-impact-of-reusing-shipping-containers/ (accessed on 30 September 2025).
  67. The Benefits of Container Re-Use for Sustainable Logistic. Box on Wheel. 31 October 2024. Available online: https://boxonwheel.com/the-benefits-of-container-re-use-for-sustainable-logistics/ (accessed on 30 September 2025).
  68. Aktan, I. Reusing Shipping Containers: What Are the Advantages and Challenges? More Than Shipping. 9 October 2017. Available online: https://www.morethanshipping.com/reusing-shipping-containers-advantages-challenges/ (accessed on 17 November 2025).
  69. Are Shipping Containers Reused? 360connect. Available online: https://www.360connect.com/product-blog/are-shipping-containers-reused/ (accessed on 30 September 2025).
  70. Mohebbi, M.H. Environmental Impact of Recycling Shipping Containers for Modular Construction. 25 June 2025. Available online: https://www.linkedin.com/pulse/environmental-impact-recycling-shipping-containers-modular-mohebbi-ii5ff (accessed on 30 September 2025).
  71. Fariña, E.A.; Panait, M.; Lago-Cabo, J.M.; Fernández-González, R. Energy Analysis of Standardized Shipping Containers for Housing. Inventions 2024, 9, 106. [Google Scholar] [CrossRef]
  72. Oviya, K.; Shobana; Amraotkar, S. Assessing the thermal performance of upcycled shipping container as a sustainable building material in a Warm humid climate. IOP Conf. Ser. Earth Environ. Sci. 2023, 1210, 012008. Available online: https://iopscience.iop.org/article/10.1088/1755-1315/1210/1/012008 (accessed on 30 September 2025). [CrossRef]
  73. Coelho, P.M.; Corona, B.; ten Klooster, R.; Worrell, E. Sustainability of reusable packaging—Current situation and trends. Resour. Conserv. Recycl. X 2020, 6, 100037. [Google Scholar] [CrossRef]
  74. Sustainable Solutions: The Environmental Benefits of Container Reuse. Green Box Container. 12 June 2025. Available online: https://greenboxtainer.com/container-reuse-environmental-benefits/ (accessed on 30 September 2025).
  75. Ostapenko, I.I. Arhitekturno–planirovochnaya struktura agroekoturistskih kompleksov na primere Yuzhnogo Kazahstana [Architectural and planning structure of agro ecotourism complexes on the example of Southern Kazakhstan]. In Abstract of the Dissertation for the Degree of Doctor of Philosophy (PhD) in the Educational Program 8D07311 (6D042000)—“Architecture”; MOK: Almaty, Kazakhstan, 2023; pp. 1–24. [Google Scholar]
  76. Schneider, E.V. Arhitekturnaya organizaciya detskih igrovyh ploshchadok v gorodskoj srede (na primere Kazahstana) [Architectural organization of children’s playgrounds in the urban environment (on the example of Kazakhstan)]. In Abstract of the Dissertation for the Degree of Candidate of Architecture in the Specialty 05.23.20—“Theory and History of Architecture, Restoration and Reconstruction of Historical and Architectural Heritage”; Cvetotexhnka Light & Engineering: Bishkek, Kyrgyzstan, 2022; pp. 1–22. [Google Scholar]
  77. Hart, R. Creating Playspaces by and for Childre. Project for Public Spaces. 31 December 2008. Available online: https://www.pps.org/article/righttoplay-2 (accessed on 30 September 2025).
  78. Elements of a Successful Playspace. Project for Public Spaces. 31 December 2008. Available online: https://www.pps.org/article/play-elements (accessed on 30 September 2025).
  79. Schipperijn, J.; Madsen, C.D.; Toftager, M.; Johansen, D.N.; Lousen, I.; Amholt, T.T.; Pawlowski, C.S. The role of playgrounds in promoting children’s health—A scoping review. Int. J. Behav. Nutr. Phys. Act. 2024, 21, 72. [Google Scholar] [CrossRef]
  80. Jansson, M. Children’s perspectives on playground use as basis for children’s participation in local play space management. Local Environ. 2015, 20, 165–179. [Google Scholar] [CrossRef]
  81. Burke, L.; Jindal-Snape, D.; Lindsay, A.; Whyte, S.; Wallace, M.; Mercieca, D.; McKenzie, M.; Keatch, B. Spaces for play: Listening to children’s voices. Education 2024, 3–13, 1–24. [Google Scholar] [CrossRef]
  82. How to Create Play Spaces That Stimulate Learning. Miracle. Available online: https://www.miracle-recreation.com/blog/creating-playgrounds-that-stimulate-learning/?lang=can (accessed on 30 September 2025).
  83. The Importance of Playgrounds for Children and Their Communities. Little Tikes Commercial. Available online: https://littletikescommercial.com/blog/importance-of-playgrounds-for-children/?lang=can (accessed on 17 November 2025).
  84. Xu, S. Analysis and design of child-friendly play Spaces. Highlights Sci. Eng. Technol. 2023, 75, 113–119. [Google Scholar] [CrossRef]
  85. Azlina, W.; Zulkiflee, A.S. A Pilot Study: The Impact of Outdoor Play Spaces on Kindergarten Children. Procedia-Soc. Behav. Sci. 2012, 38, 275–283. [Google Scholar] [CrossRef]
  86. Weir, H. Spaces for children’s play and travel close to home: The importance of threshold spaces. Child. Geogr. 2023, 21, 1071–1086. [Google Scholar] [CrossRef]
  87. Samoilov, K.; Kuspangaliyev, B.; Sadvokasova, G.; Kuanyshbekov, N. Prospects of Triangular Modular Structures for Roadside Service Buildings. Designs 2022, 6, 90. [Google Scholar] [CrossRef]
  88. Ostapenko, I.I.; Bryantsev, A.A. Theoretical and practical aspects of the use of modular systems, on the example of sea containers, for agroecotourist complexes. Sci. J. Vestn. KazGASA 2022, 3, 83–93. [Google Scholar] [CrossRef] [PubMed]
  89. Ostapenko, I.I.; Bryantsev, A.A. Theoretical aspects of the territorial functional organization of agro-ecotourism in Kazakhstan. Int. J. Geomate 2023, 25, 109–116. [Google Scholar] [CrossRef]
  90. The Bus Stop Pavilion. Available online: https://i.redd.it/3ysagr6kakf41.jpg (accessed on 17 November 2025).
  91. The Swimming Pool. Available online: https://www.discovercontainers.com/wp-content/uploads/shipping-container-pool.jpg (accessed on 12 October 2025).
  92. The Shop. Available online: https://images.adsttc.com/media/images/55e6/effc/64c7/9110/4d00/0d1e/medium_jpg/puma-city-shipping-container-store-danny-bright.jpg?1441198070 (accessed on 12 October 2025).
  93. The Locksmith Workshop. Available online: https://www.seacontainers.co.nz/wp-content/uploads/2019/07/40-Foot-Container-Engineering-Workshop.jpg (accessed on 12 October 2025).
  94. The Grandstand. Available online: https://s.alicdn.com/@sc04/kf/Hce39fafe002f41488eae768c75a7aa662/20HC-40HC-Pre-Assembled-Portable-Tribune-Seating-Stadium-Grandstand-Container-Outdoor-Mobile-Grandstand-Bleachers-for-Sale-Italy.jpg (accessed on 12 October 2025).
  95. The Exhibition Pavilion. Available online: https://cdn.vox-cdn.com/thumbor/mOFXHzHwCYXnN8MzHv6H5wYj7cg=/1400x1400/filters:format(jpeg)/cdn.vox-cdn.com/uploads/chorus_asset/file/18276119/container1.jpg (accessed on 12 October 2025).
  96. Twist Lock Joiners. Shipping Container Connection Parts. Container Twistlocks, Engineeres Connections. Available online: https://twistlocks.com.au/twist-lock-joiners/ (accessed on 10 August 2025).
  97. Morin, M. Connect Shipping Containers to Create a Large and Comfortable Space. Falcon Structures. 23 June 2020. Available online: https://www.falconstructures.com/blog/connect-shipping-containers (accessed on 10 August 2025).
  98. Cooper, J.; Kilmer, J.; Wands, B. Stacking Shipping Containers on Land for an Off-Axis Detector; Fermi National Accelerator Laboratory: Batavia, IL, USA, 2003; Available online: https://www.prefabcontainerhomes.org/2011/12/stacking-shipping-containers-on-land.html (accessed on 10 August 2025).
  99. Shipping Container Patios. ROXBOX Containers. Available online: https://www.roxboxcontainers.com/products/patio/ (accessed on 10 August 2025).
  100. Lueder, R.; Rice, V.J.B. Ergonomics for Children: Designing Products and Places for Toddler to Teens; CRC Press: Boca Raton, FL, USA, 2007; pp. 1–984. Available online: https://api.pageplace.de/preview/DT0400.9780203609163_A24381664/preview-9780203609163_A24381664.pdf (accessed on 12 October 2025).
  101. Greenhouse Container. Available online: https://www.falconstructures.com/hs-fs/hubfs/Z_Archive/social-suggested-images/falcon_farm-resized-600.png?width=553&name=falcon_farm-resized-600.png (accessed on 12 October 2025).
  102. Container for Growing Edible Insects. Available online: https://images.almatalent.fi/cx141,cy0,cw857,ch857,696x/https://assets.almatalent.fi/image/dbc8c4b0-6f35-3c82-a9ca-a6cdc7cf34b7 (accessed on 12 October 2025).
  103. Container for Growing Fish in Long-Tier Prismatic Tanks. Available online: https://www.foodandthefabulous.com/wp-content/uploads/2015/02/91-500x750.jpg (accessed on 12 October 2025).
  104. Container for Growing Fish in Cylindrical Tanks. Available online: https://i.pinimg.com/originals/b5/29/c1/b529c14e139caafa19c1b23e994bf667.jpg (accessed on 12 October 2025).
  105. Boyd, A. No. 2879: Empty Shipping Containers, The Engines of Our Ingenuity; Cullen College of Engineering, University of Houston: Houston, TX, USA, 2013; Available online: https://engines.egr.uh.edu/episode/2879 (accessed on 25 June 2025).
  106. Ob”em Kontejnernyh Perevozok Rastyot v Kazahstane [The Volume of Container Traffic is Growing in Kazakhstan]. “Kazakhstan Temirzholshysy” 12 September 2024. Available online: https://rail-news.kz/ru/news/18524-obieem-konteinernyx-perevozok-rastet-v-kazaxstane.html (accessed on 7 November 2025).
Figure 1. Main parameters of visitors and expositions. Dimensions given in mm.
Figure 1. Main parameters of visitors and expositions. Dimensions given in mm.
Buildings 15 04353 g001
Figure 2. Diagrams of 20DC, 20TC and 40DC containers cut (in horizontal and vertical positions). The internal dimensions are given taking into account technologically sound finishes. Dimensions are given in mm. Container combinations are shown conditionally. The asterisk indicates the vertical position of the container.
Figure 2. Diagrams of 20DC, 20TC and 40DC containers cut (in horizontal and vertical positions). The internal dimensions are given taking into account technologically sound finishes. Dimensions are given in mm. Container combinations are shown conditionally. The asterisk indicates the vertical position of the container.
Buildings 15 04353 g002
Figure 3. Set 1: 1—The scheme and the kit; 2—the plan of a Single hotel room; 3—the plan of a Checkpoint. The black lines indicate the constructions of the container; the colored lines indicate the furniture and technological equipment.
Figure 3. Set 1: 1—The scheme and the kit; 2—the plan of a Single hotel room; 3—the plan of a Checkpoint. The black lines indicate the constructions of the container; the colored lines indicate the furniture and technological equipment.
Buildings 15 04353 g003
Figure 4. Set 2: 1—The scheme and the kit; 2—the plan of a Double hotel room; 3—the plan of a Block of administrative premises; 4—the plan of a Souvenir shop; 5—the plan of a Tour desk. The black lines indicate the constructions of the container; the colored lines indicate the furniture and technological equipment.
Figure 4. Set 2: 1—The scheme and the kit; 2—the plan of a Double hotel room; 3—the plan of a Block of administrative premises; 4—the plan of a Souvenir shop; 5—the plan of a Tour desk. The black lines indicate the constructions of the container; the colored lines indicate the furniture and technological equipment.
Buildings 15 04353 g004
Figure 5. Set 3: 1—The scheme and the kit; 2—the plan of a Territory guard post (first level); 3—the plan of a Territory guard post (second level). The black lines indicate the constructions of the container; the colored lines indicate the furniture and technological equipment. The asterisk indicates the vertical position of the container.
Figure 5. Set 3: 1—The scheme and the kit; 2—the plan of a Territory guard post (first level); 3—the plan of a Territory guard post (second level). The black lines indicate the constructions of the container; the colored lines indicate the furniture and technological equipment. The asterisk indicates the vertical position of the container.
Buildings 15 04353 g005
Figure 6. Set 4: 1—The scheme and the kit; 2—plan of a Public toilet. The black lines indicate the constructions of the container; the colored lines indicate the furniture and technological equipment.
Figure 6. Set 4: 1—The scheme and the kit; 2—plan of a Public toilet. The black lines indicate the constructions of the container; the colored lines indicate the furniture and technological equipment.
Buildings 15 04353 g006
Figure 7. Set 5: 1—The scheme and the kit; 2—the plan for a Triple hotel room; 3—plans of a Carpentry workshop, a Locksmith workshop or a Workshop for minor repairs; 4—the plan of Rest rooms for staff on duty; 5—the plan of a Block for children’s games; 6—the plan for an Indoor parking of visitors’ cars; 7—the plan for a Medical center. The black lines indicate the constructions of the container; the colored lines indicate the furniture and technological equipment.
Figure 7. Set 5: 1—The scheme and the kit; 2—the plan for a Triple hotel room; 3—plans of a Carpentry workshop, a Locksmith workshop or a Workshop for minor repairs; 4—the plan of Rest rooms for staff on duty; 5—the plan of a Block for children’s games; 6—the plan for an Indoor parking of visitors’ cars; 7—the plan for a Medical center. The black lines indicate the constructions of the container; the colored lines indicate the furniture and technological equipment.
Buildings 15 04353 g007
Figure 8. Set 6: 1—The scheme and the kit; 2—the plan of a Picnic block. The black lines indicate the design of the container; the colored lines indicate the furniture and technological equipment.
Figure 8. Set 6: 1—The scheme and the kit; 2—the plan of a Picnic block. The black lines indicate the design of the container; the colored lines indicate the furniture and technological equipment.
Buildings 15 04353 g008
Figure 9. Set 7: 1—The scheme and the kit; 2—the plan of a Visitors’ car service station; 3—the plan of a Block for exhibiting traditional leather, wood, metals and clay processing; 4—the plan of a Block for the manufacture of elements of a traditional dwelling; 5—the plan of a Block for heating, drying clothes and shoes; 6—the plan of a Block for traditional weaving and wool processing. The black lines indicate the constructions of the container; the colored lines indicate the furniture and technological equipment.
Figure 9. Set 7: 1—The scheme and the kit; 2—the plan of a Visitors’ car service station; 3—the plan of a Block for exhibiting traditional leather, wood, metals and clay processing; 4—the plan of a Block for the manufacture of elements of a traditional dwelling; 5—the plan of a Block for heating, drying clothes and shoes; 6—the plan of a Block for traditional weaving and wool processing. The black lines indicate the constructions of the container; the colored lines indicate the furniture and technological equipment.
Buildings 15 04353 g009
Figure 10. Set 8: 1—The scheme and the kit; 2—the plan of a Shop for the exhibition of drying and smoking fish or meat; 3—plan of the Local grocery store; 4—the plan of a Kitchen for the exhibition of cooking of local dishes. The black lines indicate the constructions of the container; the colored lines indicate the furniture and technological equipment.
Figure 10. Set 8: 1—The scheme and the kit; 2—the plan of a Shop for the exhibition of drying and smoking fish or meat; 3—plan of the Local grocery store; 4—the plan of a Kitchen for the exhibition of cooking of local dishes. The black lines indicate the constructions of the container; the colored lines indicate the furniture and technological equipment.
Buildings 15 04353 g010
Figure 11. Set 9: 1—The scheme and the kit; 2—the plan of an Individual or group relaxation unit (first level); 3—the plan of an Individual or group relaxation unit (second level). The black lines indicate the constructions of the container; the colored lines indicate the furniture and technological equipment.
Figure 11. Set 9: 1—The scheme and the kit; 2—the plan of an Individual or group relaxation unit (first level); 3—the plan of an Individual or group relaxation unit (second level). The black lines indicate the constructions of the container; the colored lines indicate the furniture and technological equipment.
Buildings 15 04353 g011
Figure 12. Set 10: 1—The scheme and the kit; 2—the plan of a Self-service kitchen. The black lines indicate the constructions of the container; the colored lines indicate the furniture and technological equipment.
Figure 12. Set 10: 1—The scheme and the kit; 2—the plan of a Self-service kitchen. The black lines indicate the constructions of the container; the colored lines indicate the furniture and technological equipment.
Buildings 15 04353 g012
Figure 13. Set 11: 1—The scheme and the kit; 2—the plan of a Display unit for breeding chickens or pheasants. The black lines indicate the constructions of the container; the colored lines indicate the furniture and technological equipment.
Figure 13. Set 11: 1—The scheme and the kit; 2—the plan of a Display unit for breeding chickens or pheasants. The black lines indicate the constructions of the container; the colored lines indicate the furniture and technological equipment.
Buildings 15 04353 g013
Figure 14. Set 12: 1—The scheme and the kit; 2—the plan of a Self-service laundry. The black lines indicate the constructions of the container; the colored lines indicate the furniture and technological equipment.
Figure 14. Set 12: 1—The scheme and the kit; 2—the plan of a Self-service laundry. The black lines indicate the constructions of the container; the colored lines indicate the furniture and technological equipment.
Buildings 15 04353 g014
Figure 15. Set 13: 1—The scheme and the kit; 2—the plan of a Family cottage; 3—the plan of a Leisure club. The black lines indicate the constructions of the container; the colored lines indicate the furniture and technological equipment.
Figure 15. Set 13: 1—The scheme and the kit; 2—the plan of a Family cottage; 3—the plan of a Leisure club. The black lines indicate the constructions of the container; the colored lines indicate the furniture and technological equipment.
Buildings 15 04353 g015
Figure 16. Set 14: 1—The scheme and the kit; 2—The plan of a Display unit for breeding of hunting and service dogs or temporary maintenance of visitors’ dogs. The black lines indicate the constructions of the container; the colored lines indicate the furniture and technological equipment.
Figure 16. Set 14: 1—The scheme and the kit; 2—The plan of a Display unit for breeding of hunting and service dogs or temporary maintenance of visitors’ dogs. The black lines indicate the constructions of the container; the colored lines indicate the furniture and technological equipment.
Buildings 15 04353 g016
Figure 17. Set 15: 1—The scheme and the kit; 2—the plan of a Display unit for breeding ducks or geese. The black lines indicate the constructions of the container; the colored lines indicate the furniture and technological equipment.
Figure 17. Set 15: 1—The scheme and the kit; 2—the plan of a Display unit for breeding ducks or geese. The black lines indicate the constructions of the container; the colored lines indicate the furniture and technological equipment.
Buildings 15 04353 g017
Figure 18. Set 16: 1—The scheme and the kit; 2—the plan of an Edible insect cultivation unit; 3—the plan of a Juice production unit; 4—the plan of a Wardrobe for sports grounds. The black lines indicate the constructions of the container; the colored lines indicate the furniture and technological equipment.
Figure 18. Set 16: 1—The scheme and the kit; 2—the plan of an Edible insect cultivation unit; 3—the plan of a Juice production unit; 4—the plan of a Wardrobe for sports grounds. The black lines indicate the constructions of the container; the colored lines indicate the furniture and technological equipment.
Buildings 15 04353 g018
Figure 19. Set 17: 1—The scheme and the kit; 2—the plan of a Display unit for breeding of rabbits or nutrias. The black lines indicate the constructions of the container; the colored lines indicate the furniture and technological equipment.
Figure 19. Set 17: 1—The scheme and the kit; 2—the plan of a Display unit for breeding of rabbits or nutrias. The black lines indicate the constructions of the container; the colored lines indicate the furniture and technological equipment.
Buildings 15 04353 g019
Figure 20. Set 18: 1—The scheme and the kit; 2—the plan of a Block of cheese production; 3—the plan of a Block of household premises for staff. The black lines indicate the constructions of the container; the colored lines indicate the furniture and technological equipment.
Figure 20. Set 18: 1—The scheme and the kit; 2—the plan of a Block of cheese production; 3—the plan of a Block of household premises for staff. The black lines indicate the constructions of the container; the colored lines indicate the furniture and technological equipment.
Buildings 15 04353 g020
Figure 21. Set 19: 1—The scheme and the kit; 2—the plan of a Dining room. The black lines indicate the constructions of the container; the colored lines indicate the furniture and technological equipment.
Figure 21. Set 19: 1—The scheme and the kit; 2—the plan of a Dining room. The black lines indicate the constructions of the container; the colored lines indicate the furniture and technological equipment.
Buildings 15 04353 g021
Figure 22. Set 20: 1—The scheme and the kit; 2—the plan of a Four-level observation deck (first level); 3—the plan of a Four-level observation deck (second/third/fourth levels). The black lines indicate the constructions of the container; the colored lines indicate the furniture and technological equipment. The asterisk indicates the vertical position of the container.
Figure 22. Set 20: 1—The scheme and the kit; 2—the plan of a Four-level observation deck (first level); 3—the plan of a Four-level observation deck (second/third/fourth levels). The black lines indicate the constructions of the container; the colored lines indicate the furniture and technological equipment. The asterisk indicates the vertical position of the container.
Buildings 15 04353 g022
Figure 23. Set 21: 1—The scheme and the kit; 2—the plan of a Fish watching and recreational fishing unit (first level); 3—the plan of a Fish watching and recreational fishing unit (second level). The black lines indicate the constructions of the container; the colored lines indicate the furniture and technological equipment.
Figure 23. Set 21: 1—The scheme and the kit; 2—the plan of a Fish watching and recreational fishing unit (first level); 3—the plan of a Fish watching and recreational fishing unit (second level). The black lines indicate the constructions of the container; the colored lines indicate the furniture and technological equipment.
Buildings 15 04353 g023
Figure 24. Set 22: 1—The scheme and the kit; 2—the plan of a Sauna. The black lines indicate the constructions of the container; the colored lines indicate the furniture and technological equipment.
Figure 24. Set 22: 1—The scheme and the kit; 2—the plan of a Sauna. The black lines indicate the constructions of the container; the colored lines indicate the furniture and technological equipment.
Buildings 15 04353 g024
Figure 25. Set 23: 1—The scheme and the kit; 2—the plan of a Display unit for breeding of fishes or crayfishes. The black lines indicate the constructions of the container; the colored lines indicate the furniture and technological equipment.
Figure 25. Set 23: 1—The scheme and the kit; 2—the plan of a Display unit for breeding of fishes or crayfishes. The black lines indicate the constructions of the container; the colored lines indicate the furniture and technological equipment.
Buildings 15 04353 g025
Figure 26. Set 24: 1—The scheme and the kit; 2—the plan of a Display unit for breeding of flowers, vegetables or berries. The black lines indicate the constructions of the container; the colored lines indicate the furniture and technological equipment.
Figure 26. Set 24: 1—The scheme and the kit; 2—the plan of a Display unit for breeding of flowers, vegetables or berries. The black lines indicate the constructions of the container; the colored lines indicate the furniture and technological equipment.
Buildings 15 04353 g026
Figure 27. Set 25: 1—The scheme and the kit; 2—the plan of a Display unit for breeding of hunting birds. The black lines indicate the constructions of the container; the colored lines indicate the furniture and technological equipment. The asterisk indicates the vertical position of the container.
Figure 27. Set 25: 1—The scheme and the kit; 2—the plan of a Display unit for breeding of hunting birds. The black lines indicate the constructions of the container; the colored lines indicate the furniture and technological equipment. The asterisk indicates the vertical position of the container.
Buildings 15 04353 g027
Figure 28. Set 26: 1—The scheme and the kit; 2—the plan of a Display unit for breeding of ostriches or turkeys. The black lines indicate the constructions of the container; the colored lines indicate the furniture and technological equipment. The asterisk indicates the vertical position of the container.
Figure 28. Set 26: 1—The scheme and the kit; 2—the plan of a Display unit for breeding of ostriches or turkeys. The black lines indicate the constructions of the container; the colored lines indicate the furniture and technological equipment. The asterisk indicates the vertical position of the container.
Buildings 15 04353 g028
Figure 29. Set 27: 1—The scheme and the kit; 2—the plan of a Display unit for breeding of songbirds and ornamental birds. The black lines indicate the constructions of the container; the colored lines indicate the furniture and technological equipment. The asterisk indicates the vertical position of the container.
Figure 29. Set 27: 1—The scheme and the kit; 2—the plan of a Display unit for breeding of songbirds and ornamental birds. The black lines indicate the constructions of the container; the colored lines indicate the furniture and technological equipment. The asterisk indicates the vertical position of the container.
Buildings 15 04353 g029
Figure 30. Set 28: 1—The scheme and the kit; 2—the plan of a Block for preserving of vegetables, fruits or berries. The black lines indicate the constructions of the container; the colored lines indicate the furniture and technological equipment. The asterisk indicates the vertical position of the container.
Figure 30. Set 28: 1—The scheme and the kit; 2—the plan of a Block for preserving of vegetables, fruits or berries. The black lines indicate the constructions of the container; the colored lines indicate the furniture and technological equipment. The asterisk indicates the vertical position of the container.
Buildings 15 04353 g030
Figure 31. Set 29: 1—The scheme and the kit; 2—the plan of a Display unit for breeding of fruits and nut growing. The black lines indicate the constructions of the container; the colored lines indicate the furniture and technological equipment. The asterisk indicates the vertical position of the container.
Figure 31. Set 29: 1—The scheme and the kit; 2—the plan of a Display unit for breeding of fruits and nut growing. The black lines indicate the constructions of the container; the colored lines indicate the furniture and technological equipment. The asterisk indicates the vertical position of the container.
Buildings 15 04353 g031
Figure 32. Set 30: 1—The scheme and the kit; 2—the plan of a Display unit for breeding of mushrooms or snails; 3—the plan of a Display unit for breeding of turtles or frogs. The black lines indicate the constructions of the container; the colored lines indicate the furniture and technological equipment.
Figure 32. Set 30: 1—The scheme and the kit; 2—the plan of a Display unit for breeding of mushrooms or snails; 3—the plan of a Display unit for breeding of turtles or frogs. The black lines indicate the constructions of the container; the colored lines indicate the furniture and technological equipment.
Buildings 15 04353 g032
Figure 33. Set 31: 1—The scheme and the kit; 2—the plan of a Food preparation display unit (for animals, birds, fish, amphibians, crustaceans, mollusks, arthropods). The black lines indicate the constructions of the container; the colored lines indicate the furniture and technological equipment. The asterisk indicates the vertical position of the container.
Figure 33. Set 31: 1—The scheme and the kit; 2—the plan of a Food preparation display unit (for animals, birds, fish, amphibians, crustaceans, mollusks, arthropods). The black lines indicate the constructions of the container; the colored lines indicate the furniture and technological equipment. The asterisk indicates the vertical position of the container.
Buildings 15 04353 g033
Figure 34. Set 32: 1—The scheme and the kit; 2—the plan of a Display unit for breeding of horses, ponies, donkeys, mules, cows or camels. The black lines indicate the constructions of the container; the colored lines indicate the furniture and technological equipment. The asterisk indicates the vertical position of the container.
Figure 34. Set 32: 1—The scheme and the kit; 2—the plan of a Display unit for breeding of horses, ponies, donkeys, mules, cows or camels. The black lines indicate the constructions of the container; the colored lines indicate the furniture and technological equipment. The asterisk indicates the vertical position of the container.
Buildings 15 04353 g034
Figure 35. Set 33: 1—The scheme and the kit; 2—the plan of a Display unit for breeding of pigs, sheep or goats. The black lines indicate the constructions of the container; the colored lines indicate the furniture and technological equipment. The asterisk indicates the vertical position of the container.
Figure 35. Set 33: 1—The scheme and the kit; 2—the plan of a Display unit for breeding of pigs, sheep or goats. The black lines indicate the constructions of the container; the colored lines indicate the furniture and technological equipment. The asterisk indicates the vertical position of the container.
Buildings 15 04353 g035
Figure 36. Sets 34, 35, 36, 37, 38, 39: 1—The scheme and the kit (Set 34); 2—the plan of a multi-step staircase for two levels (the usual ascent); 3—The scheme and the kit (Set 35); 4—the plan of a multi-step staircase for four levels (the usual ascent); 5—The scheme and the kit (Set 36); 6—the plan of a Multi-step staircase for two levels (the comfortable ascent); 7—The scheme and the kit (Set 37); 8—the plan of a Multi-step staircase for four levels (the comfortable ascent); 9—The scheme and the kit (Set 38); 10—the plan of a Four-level elevator; 11—The scheme and the kit (Set 39); 12—the plan of a Single-step staircase with a Ramp. The black lines indicate the constructions of the container; the colored lines indicate the furniture and technological equipment. The asterisk indicates the vertical position of the container.
Figure 36. Sets 34, 35, 36, 37, 38, 39: 1—The scheme and the kit (Set 34); 2—the plan of a multi-step staircase for two levels (the usual ascent); 3—The scheme and the kit (Set 35); 4—the plan of a multi-step staircase for four levels (the usual ascent); 5—The scheme and the kit (Set 36); 6—the plan of a Multi-step staircase for two levels (the comfortable ascent); 7—The scheme and the kit (Set 37); 8—the plan of a Multi-step staircase for four levels (the comfortable ascent); 9—The scheme and the kit (Set 38); 10—the plan of a Four-level elevator; 11—The scheme and the kit (Set 39); 12—the plan of a Single-step staircase with a Ramp. The black lines indicate the constructions of the container; the colored lines indicate the furniture and technological equipment. The asterisk indicates the vertical position of the container.
Buildings 15 04353 g036
Figure 37. Container sets for a children’s educational and game complex with agrotechnical themes: spatial solution schemes of sets 1–39.
Figure 37. Container sets for a children’s educational and game complex with agrotechnical themes: spatial solution schemes of sets 1–39.
Buildings 15 04353 g037
Table 1. Playgrounds with biological themes in the courtyard or on the adjacent territory (Astana city, population 1,612,512 people, 500 respondents).
Table 1. Playgrounds with biological themes in the courtyard or on the adjacent territory (Astana city, population 1,612,512 people, 500 respondents).
Survey GroupPositive ReactionNegative ReactionIndifferent Reaction
Children 5–15 years old
(120 respondents)
65%13%22%
Parents of children aged 5–15 years
(230 respondents)
72%18%10%
Grandparents of children aged 5–15
(150 respondents)
91%2%7%
Table 2. Playgrounds with biological themes in the courtyard or on the adjacent territory (Almaty city, population 2,314,929 people, 750 respondents).
Table 2. Playgrounds with biological themes in the courtyard or on the adjacent territory (Almaty city, population 2,314,929 people, 750 respondents).
Survey GroupPositive ReactionNegative ReactionIndifferent Reaction
Children 5–15 years old
(150 respondents)
62%13%25%
Parents of children aged 5–15 years
(350 respondents)
84%6%10%
Grandparents of children aged 5–15
(250 respondents)
89%6%5%
Table 3. Playgrounds with biological themes in the courtyard or on the adjacent territory (Shymkent city, population 1,274,296 people, 350 respondents).
Table 3. Playgrounds with biological themes in the courtyard or on the adjacent territory (Shymkent city, population 1,274,296 people, 350 respondents).
Survey GroupPositive ReactionNegative ReactionIndifferent Reaction
Children 5–15 years old
(80 respondents)
50%24%26%
Parents of children aged 5–15 years
(150 respondents)
63%15%22%
Grandparents of children aged 5–15
(120 respondents)
65%14%21%
Table 4. Playgrounds with biological themes on school grounds (Astana city, 206 schools, 310,000 schoolchildren, 8240 teachers, 270 respondents).
Table 4. Playgrounds with biological themes on school grounds (Astana city, 206 schools, 310,000 schoolchildren, 8240 teachers, 270 respondents).
Survey GroupPositive ReactionNegative ReactionIndifferent Reaction
Schoolchildren aged 7–15
(160 respondents)
70%18%12%
School teachers
(110 respondents)
90%4%6%
Table 5. Playgrounds with biological themes on school grounds (Almaty city, 348 schools, 337,083 schoolchildren, 25,747 teachers, 420 respondents).
Table 5. Playgrounds with biological themes on school grounds (Almaty city, 348 schools, 337,083 schoolchildren, 25,747 teachers, 420 respondents).
Survey GroupPositive ReactionNegative ReactionIndifferent Reaction
Schoolchildren aged 7–15
(180 respondents)
72%14%14%
School teachers
(340 respondents)
92%4%4%
Table 6. Playgrounds with biological themes on school grounds (Shymkent city, 245 schools, 249,748 schoolchildren, 19,000 teachers, 220 respondents).
Table 6. Playgrounds with biological themes on school grounds (Shymkent city, 245 schools, 249,748 schoolchildren, 19,000 teachers, 220 respondents).
Survey GroupPositive ReactionNegative ReactionIndifferent Reaction
Schoolchildren aged 7–15
(80 respondents)
63%17%20%
School teachers
(140 respondents)
89%5%6%
Table 7. Playgrounds with biological themes on the territory of the kindergarten (Astana city, 532 kindergartens, 66,119 children, 200 respondents).
Table 7. Playgrounds with biological themes on the territory of the kindergarten (Astana city, 532 kindergartens, 66,119 children, 200 respondents).
Survey GroupPositive ReactionNegative ReactionIndifferent Reaction
Kindergarten teachers
(200 respondents)
82%6%12%
Table 8. Playgrounds with biological themes on the territory of the kindergarten (Almaty city, 824 kindergartens, 65,080 children, 250 respondents).
Table 8. Playgrounds with biological themes on the territory of the kindergarten (Almaty city, 824 kindergartens, 65,080 children, 250 respondents).
Survey GroupPositive ReactionNegative ReactionIndifferent Reaction
Kindergarten teachers
(250 respondents)
86%6%8%
Table 9. Playgrounds with biological themes on the territory of the kindergarten (Shymkent city, 526 kindergartens, 78,628 children, 190 respondents).
Table 9. Playgrounds with biological themes on the territory of the kindergarten (Shymkent city, 526 kindergartens, 78,628 children, 190 respondents).
Survey GroupPositive ReactionNegative ReactionIndifferent Reaction
Kindergarten teachers
(190 respondents)
82%7%11%
Table 10. The common interest in the development of agro-educational activities through the development of agro-tourism complexes.
Table 10. The common interest in the development of agro-educational activities through the development of agro-tourism complexes.
Survey GroupPositive ReactionNegative ReactionIndifferent Reaction
Astana residents
(270 respondents)
75%10%15%
Almaty residents
(310 respondents)
81%8%12%
Shymkent residents
(190 respondents)
70%12%18%
Table 11. The interest of city residents in improving children’s playgrounds.
Table 11. The interest of city residents in improving children’s playgrounds.
Survey GroupPositive ReactionNegative ReactionIndifferent Reaction
Astana residents—270 respondents:
children—150 people 98%0%2%
adults—120 people86%5%9%
Almaty residents—310 respondents:
children—210 people95%1%4%
adults—100 people83%6%11%
Shymkent residents—190 respondents:
children—110 people 92%0%8%
adults—80 people81%5%14%
Table 12. The main parameters of the considered sets 1–7.
Table 12. The main parameters of the considered sets 1–7.
Set Number,
Dimensions in Plan,
Figure Number
The CompoundThe Function
Set 1
12.0 × 2.5 m Figure 3
2 containers: 40’DC—horizontally, 20’TC—horizontally on the second levela Single hotel room and a Checkpoint
Set 2
12.2 × 5.0 m
Figure 4
3 containers: 2 × 40’DC—horizontally, 20’TC—horizontally on the second levela Double hotel room, an administrative premise, a Souvenir shop and a Tour desk
Set 3
12.2 × 5.0 m
Figure 5
4 containers: 40’DC–horizontally, 2 × 40’DC*–vertically, 20’TC—horizontally on the second levela Territory guard post.
Set 4
12.2 × 5.0 m Figure 6
3 containers: 40’DC, 20’DC and 20’ TC—horizontallya public toilet unit
Set 5
12.2 × 7.5 m Figure 7
4 containers: 3 × 40’DC—horizontally, 20’TC—horizontally on the second levela Covered parking for visitors’ cars, a medical center, a Triple hotel room, workshops (carpentry, locksmithing, minor repair workshop), Recreation rooms for staff on duty and a Pavilion for children’s games.
Set 6 12.2 × 7.5 m
Figure 8
4 containers: 2 × 40’DC, 20’DC and 20’TC—horizontallya Picnic unit
Set 7
12.2 × 10.0 m
Figure 9
5 containers: 4 × 40’DC—horizontally, 20’TC—horizontally on the second levela Service station for visitors’ cars, an Exhibiting traditional processing of materials (leather, wood, metals and clay) area, Household premises (heating, drying clothes and shoes) and a Manufacturing element of a traditional dwelling, a Traditional weaving and wool processing
Table 13. The main parameters of the considered sets 8–17.
Table 13. The main parameters of the considered sets 8–17.
Set Number,
Dimensions in Plan,
Figure Number
The CompoundThe Function
Set 8
12.2 × 10.0 m
Figure 10
5 containers: 3 × 40’DC, 40’RF—horizontally, 20’TC—horizontally on the second levela Shop for the exposure of drying and smoking fish or meat, a Local grocery store, a Kitchen for the exhibition of cooking local dishes
Set 9
15.2 × 17.7 m
Figure 11
5 containers: 2 × 20’DC, 20’TC—horizontally, 40’DC—horizontally on the second level, 40’DC—obliquelyan Individual or group relaxation unit
Set 10
12.2 × 10.0 m
Figure 12
6 containers: 3 × 40’DC, 20’DC and 20’ TC—horizontally, 20’TC—horizontally on the second levela Self-service kitchen unit
Set 11
24.5 × 8.6 m–without
an enclosure
Figure 13
5 containers: 40’DC and 3 × 20’DC—horizontally; 20’TC—horizontally on the second levelan Exposure unit for breeding chickens or pheasants
Set 12
12.2 × 12.3 m
Figure 14
6 containers: 4 × 40’DC, 2 × 20’TC—horizontallya Self-service laundry unit
Set 13
12.2 × 14.9 m
Figure 15
8 containers: 6 × 40’DC—horizontally, 2 × 20’TC—horizontally on the second levela Family cottage and a Leisure Club
Set 14
24.4 × 14.9 m–without
an enclosure
Figure 16
7 containers: 6 × 40’DC—horizontally, 20’TC—horizontally on the second levelan Exhibition block for breeding hunting and service dogs or temporary accommodation of visitors’ dogs
Set 15
24.5 × 14.7 m
Figure 17
9 containers: 40’DC and 3 × 20’DC—horizontally; 4 × 20’OTC—horizontally in a semi-buried state; 20’TC—horizontally on the second levelan Exposure unit for breeding ducks or geese
Set 16
12.2 × 12.3 m
Figure 18
7 containers: 4 × 40’DC, 20’DC and 20’ TC—horizontally, 20’TC—horizontally on the second levelunits for the Exhibition of juice production, the Cultivation of edible insects, and the Wardrobe for the sports grounds
Set 17
22.2 × 6.1 m
Figure 19
10 containers: 2 × 40’DC, 5 × 20’DC, 20’TC—horizontally, 2 × 20’TC—horizontally on the second levelan Exposure unit for breeding rabbits or nutria
Table 14. The main parameters of the considered sets 18–27.
Table 14. The main parameters of the considered sets 18–27.
Set Number,
Dimensions in Plan,
Figure Number
The CompoundThe Function
Set 18
12.2 × 17.4 m
Figure 20
10 containers: 6 × 40’DC, 20’DC and 20’ TC—horizontally, 2 × 20’TC—horizontally on the second levelunits of Household premises for staff and Cheese production exhibits
Set 19
12.2 × 21.9 m
Figure 21
11 containers: 6 × 40’DC, 20’DC, 20’TC, 40’RF—horizontally, 2 × 20’TC—horizontally on the second levela Dining room unit
Set 20
5,0 × 10,0 m
Figure 22
8 containers: 40’DC*—verticallya four-level observation deck with stairwells and an elevator
Set 21
14.7 × 18.3 m
Figure 23
12 containers: 40’DC, 20’DC, 3 × 20’TC and 3 × 20’ OTC—horizontally, 2 × 20’DC—horizontally on the second level, 2 × 40’DC—obliquelya Fish watching and a recreational fishing unit
Set 22
24.4 × 13.6 m
Figure 24
18 containers: 8 × 40’DC, 2 × 20’DC, 2 × 20’TC—horizontally, 2 × 20’OTC—horizontally semi-buried outside, 2 × 20’OTC—horizontally semi-buried inside, 2 × 20’TC—horizontally on the second levela Sauna
Set 23
12.2 × 17.2 m
Figure 25
11 containers: 6 × 40’DC, 2 × 20’DC and 2 × 20’TC—horizontally; 20’TC—horizontally on the second levelan exposure unit for fish and crayfish breeding
Set 24
12.2 × 17.2 m
Figure 26
13 containers: 4 × 40’DC, 2 × 20’DC, 2 × 20’TC and 4 × 20’FRC—horizontally; 20’TC—horizontally on the second levelan Exhibition unit for growing flowers, vegetables or berries
Set 25
34.1 × 2.5 m—without
an enclosure
Figure 27
9 containers: 6 × 40’DC*—vertically; 2 × 20’DC—horizontally; 20’TC—horizontally on the second levelan Exposure unit for breeding hunting birds
Set 26
34.1 × 5.0 m—without
an enclosure
Figure 28
15 containers: 12 × 20’DC*—vertically; 2 × 20’DC—horizontally; 20’TC—horizontally on the second levelan exposure unit for breeding ostriches or turkeys
Set 27
34.1 × 5.0 m—without
an enclosure
Figure 29
15 containers: 6 × 40’DC* and 6 × 20’DC*—vertically; 2 × 20’DC—horizontally; 20’TC—horizontally on the second levelan Exhibition block for breeding songbirds and ornamental birds
Table 15. The main parameters of the considered sets 28–39.
Table 15. The main parameters of the considered sets 28–39.
Set Number,
Dimensions in Plan,
Figure Number
The CompoundThe Function
Set 28
12.2 × 21.9 m
Figure 30
21 containers: 4 × 40’DC, 2 × 20’DC, 2 × 20’TC—horizontally, 12 × 20’DC*—vertically, 20’TC—horizontally on the second levelan Exhibition unit for preserving vegetables and fruits
Set 29
12.2 × 21.9 m
Figure 31
25 containers: 2 × 40’DC, 5 × 20’DC, 2 × 20’TC—horizontally, 15 × 20’DC*—vertically, 20’TC—horizontally on the second levelan Exhibition unit for growing fruits and nuts
Set 30
12.2 × 21.9 m
Figure 32
10 containers: 7 × 40’DC, 20’DC and 20’TC—horizontally; 20’TC—horizontally on the second levelan Exposure unit for breeding mushrooms or snails and an Exposure block for breeding turtles or frogs
Set 31
12.2 × 21.9 m
Figure 33
25 containers: 4 × 40’DC, 2 × 20’TC—horizontally, 6 × 40’DC*, 12 × 20’DC*—vertically, 20’TC—horizontally on the second levelan Exposure unit for food preparation (for animals, birds, fish, amphibians, crustaceans, mollusks, arthropods)
Set 32
17.2 × 21.9 m
Figure 34
35 containers: 4 × 40’DC, 2 × 20’DC, 2 × 20’TC—horizontally, 26 × 20’DC*—vertically, 20’TC—horizontally on the second levela Display unit for breeding horses, ponies, donkeys, mules, cows or camels
Set 33
17.2 × 21.9 m
Figure 35
15 containers: 8 × 40’DC, 2 × 20’DC, 2 × 20’TC—horizontally, 2 × 20’DC*—vertically, 20’TC—horizontally on the second levelan Exposure unit for breeding pigs, sheep or goats
Set 34
7.8 × 5.3 m
Figure 36
6 containers: 6 × 40’DC*—verticallya Unit of multi-step stairs on four floors (the usual ascent)
Set 35
7.8 × 5.3 m
Figure 36
6 containers: 6 × 20’DC*—verticallya Unit of multi-step stairs on two floors (the usual ascent)
Set 36
12.4 × 5.3 m
Figure 36
10 containers: 10 × 40’DC*—verticallya Unit of multi-step stairs on four floors (the comfortable ascent)
Set 37
12.4 × 5.3 m
Figure 36
10 containers: 10 × 20’DC*—verticallya Unit of multi-step stairs on two floors (the comfortable ascent)
Set 38
2.5 × 2.6 m
Figure 36
the container 40’DC*—verticallya Four-level elevator unit
Set 39
12.2 × 2.5 m
Figure 36
the container 40’DC—obliquelya Single-step staircase block with a ramp
Disclaimer/Publisher’s Note: The statements, opinions and data contained in all publications are solely those of the individual author(s) and contributor(s) and not of MDPI and/or the editor(s). MDPI and/or the editor(s) disclaim responsibility for any injury to people or property resulting from any ideas, methods, instructions or products referred to in the content.

Share and Cite

MDPI and ACS Style

Ostapenko, I.; Schneider, E.; Nurkusheva, L.; Kuspangaliyev, B.; Samoilov, K. Urban and Suburban Children’s Educational and Gaming Complexes with Agricultural Themes from Reusable Shipping Containers. Buildings 2025, 15, 4353. https://doi.org/10.3390/buildings15234353

AMA Style

Ostapenko I, Schneider E, Nurkusheva L, Kuspangaliyev B, Samoilov K. Urban and Suburban Children’s Educational and Gaming Complexes with Agricultural Themes from Reusable Shipping Containers. Buildings. 2025; 15(23):4353. https://doi.org/10.3390/buildings15234353

Chicago/Turabian Style

Ostapenko, Inna, Elina Schneider, Lyazzat Nurkusheva, Bolat Kuspangaliyev, and Konstantin Samoilov. 2025. "Urban and Suburban Children’s Educational and Gaming Complexes with Agricultural Themes from Reusable Shipping Containers" Buildings 15, no. 23: 4353. https://doi.org/10.3390/buildings15234353

APA Style

Ostapenko, I., Schneider, E., Nurkusheva, L., Kuspangaliyev, B., & Samoilov, K. (2025). Urban and Suburban Children’s Educational and Gaming Complexes with Agricultural Themes from Reusable Shipping Containers. Buildings, 15(23), 4353. https://doi.org/10.3390/buildings15234353

Note that from the first issue of 2016, this journal uses article numbers instead of page numbers. See further details here.

Article Metrics

Back to TopTop