Abstract
Given the fact that during the recent years the majority of buildings in Iran have been constructed either on steel or concrete frames, it is essential to investigate the environmental impacts of materials used in such constructions. For this purpose, two multi-story residential buildings in Tehran with a similar function have been considered in this study. One building was constructed with a steel frame and the other was constructed with a concrete frame. Using the life cycle assessment tool, a complete analysis of all the stages of a building’s life cycle from raw material acquisition to demolition and recycling of wastes was carried out. In this research, the environmental impacts included global warming potential in 100 years, acidification, eutrophication potential, human toxicity (cancer and non-cancer effects), resource depletion (water and mineral), climate change, fossil fuel consumption, air acidification and biotoxicity. It could be concluded from the results that the total pollution of the concrete frame in all eleven aforementioned impact factors was almost 219,000 tonnes higher than that of the steel frame. Moreover, based on the results, the concrete frame had poorer performance in all but one impact factor. With respect to global warming potential, the findings indicated there were two types of organic and non-organic gases that had an impact on global warming. Among non-organic emissions, CO2 had the biggest contribution to global warming potential, while among organic emissions, methane was the top contributor. These findings suggest the use of steel frames in the building industry in Iran to prevent further environmental damage; however, in the future, more research studies in this area are needed to completely investigate all aspects of decision on the choice of building frames, including economic and social aspects.
1. Introduction
The building sector is the largest consumer of energy in Iran and as such, the energy consumption rate of buildings and commercial sectors has seen a rise of 30% to 41% over the recent years [1]. This rate of energy consumption is greater than international standards and that of many other countries. On a global scale, the construction sector is growing at an unprecedented rate and the trend looks set to continue. It is expected that in the course of the next 40 years, 230 billion square meters of new construction space will be added to the existing pool [2]. The construction industry has created significant environmental pollution. In addition, the production of GHG, to which the construction industry is a major contributor, is expected to rise by 110% by 2050 [3]. The industry is also known to produce around 30% of the man-made GHG and almost 40% of energy consumption [4]. The use of better methods in the construction industry has culminated in remarkable impacts on different areas and it could save 42% of final energy consumption, 35% of GHG, 50% of extracted materials and 30% of water [5]. Research on 60 residential and non-residential buildings in nine countries indicated that the materials used in low-energy and conventional buildings account for 46% and 38% of carbon emissions, respectively [6]. Global production of construction materials, such as cement and steel, requires around 26 exajoules, which constitutes about 6% of the world energy consumption [2]. As the world population grows, so does the need for more living and working space. Studies into alternative methods of designing buildings showed that the industry has a substantial impact on global climate change as well as the ecosystems [7]. Pollution from the construction industry chiefly depends on the use of materials, different methods of construction, demolition and recycling measures [8]. In recent years, along with improved living standards, more raw materials and forms of energy have been used in buildings, while more waste materials have been churned out. Nevertheless, among other sectors, the construction section still has greater potential to achieve sustainability since it is possible to select proper materials during the planning phase [9]. In their research, Hamidi and Bulbul [10] employed life cycle assessment tools, such as SimaPro and Athena, to look into the environmental impacts of external walls of a university building by using two different scenarios. Meanwhile, Robertson et al. [7] examined the environmental effects and embodied energy of two mid-rise buildings with reinforced concrete and laminated timber construction frames in Canada. In their study of life cycle phases of the multi-story buildings of the University of Sydney, Basaglia et al. [3] compared the emission amounts of greenhouse gases of concrete flooring, cross-laminated timber and timber concrete composites. In recent years, the majority of buildings in Iran and other parts of the world have been built using either concrete or steel construction frames. Thus, it becomes essential to study the environmental effects of concrete and steel frames. In a research on three construction frames (concrete, steel and wood), the environmental effects and economic analyses of each frame were carried out [11]. In their study of two office buildings, one with a concrete construction frame and the other with a steel frame, Guggemos and Horvath [8] assessed greenhouse gas emissions and energy consumption. In a comparison of three buildings including a concrete, steel and wooden building, Cole and Kernan [12] took factors such as transportation of workers, transfer of materials and heavy equipment, and logistical support for construction work into account, so as to obtain a clearer picture of energy consumption and emission of greenhouse gases.
In this study, we made efforts to prepare two similar structures with different frames and created two life cycle models in order to obtain exclusive results, which could prove invaluable in raising the awareness of both the local community and designers about the environmental impacts of the frames. To the best of our knowledge, this was the first research in Iran that considered the two construction frames and evaluated their life cycle environmental impacts. Furthermore, the capital city of Iran, Tehran, suffers from a huge amount of pollution and the local construction industry plays a crucial role in this issue. The results of this study could have practical usage in preventing further environmental damage locally as there has been no such study made previously in the country.
2. Methodology
2.1. Life Cycle Assessment (LCA)
There are different ways to gauge the amount of pollution emitted during each and every step of the life cycle of a building. Among those is the LCA method. In the context of construction, LCA is a comprehensive approach to evaluate all stages of the building life cycle, including the extraction and production of materials, their transfer and transportation, construction work, use and maintenance, and eventually demolition, in order to give a broad and full assessment of a building’s total pollution. All in all, LCA provides an all-inclusive estimate of a construction’s environmental impacts via inspection of all processes, activities and products involved in the life cycle of a building—also known as the cradle-to-grave model [13]. The LCA method deliberates different scenarios and possibilities so as to minimize energy and resource consumption and decrease the environmental footprint of construction materials. The LCA of a building is divided into three stages of pre-construction, construction and post-construction [14]. This assessment method creates a number of inputs (such as raw materials and energy) and several outputs (i.e., atmospheric emissions, waterborne waste materials, solid wastes and other pollutants), the sum of which leads to environmental damage, such as global warming potential, possible damage to the ozone layer, acidification potential, increasing energy use and eutrophication [15]. According to Figure 1, the LCA method includes four stages, namely, goal and scope definition, life cycle inventory analysis, life cycle impact assessment, and life cycle interpretations; and all of them are interrelated [16].
Figure 1.
Life cycle assessment framework based on ISO 14044.
2.2. GaBi Software Program
In recent years, various software programs have been developed for the calculation of life cycle assessment. Among the different types of such software programs, one could mention Gabi, SimaPro, Open LCA, and Umberto [17]. SimaPro and Gabi are the two well-known software programs employed by many users as a major support utility [18]. Tools that are used for LCA are divided into three main categories: the first group involves tools that mostly focus on materials and products used in buildings, such as SimaPro, Gabi, and Umberto. The second category encompasses the entire construction and includes tools like Athena, EcoQuantm, and Envest as well as EnergyPlus. The third category comprises of tools that provide a complete assessment of sustainability, namely, assessing environmental, economic, and social aspects of construction. The last group includes tools like LEED, GBTool, and Green Globes [19]. It is to be noted that a software program such as GaBi is preferred over other LCA software programs due to its facility in creating processes and analysis of scenarios, assessment of the entire stages of life cycle, optimized modeling, and static reporting [20]. This software program creates a perfect model of all elements of a product or system based on its life cycle and gives the opportunity to make the best decision on manufacturing the product [21]. Given all the aforementioned points and since this research was also mainly focused on the assessment of ingredients and materials used in concrete and steel construction frames, the GaBi education software program version 8.7 was utilized for the analysis of data on the life cycle in question.
As illustrated in Figure 2, the Gabi software program takes various processes into account, creating for each process one input and one output, and will eventually generate links between all the processes to form a supply chain. This program evaluates all stages of life cycle to bring about a comprehensive assessment of global warming potential, ozone layer depletion, acidification, eutrophication, human toxicity, and resource depletion, among others [21].
Figure 2.
Overview of life cycle assessment in GaBi software [21].
2.3. Life Cycle Impact Assessment Methodology
Based on the eleven impact factors in this study, which had already been mentioned, the ReCiPe method was employed for impact assessment. This method uses two approaches when it comes to different impact factors—midpoint and endpoint. GaBi uses the midpoint approach for impact factors such as the ones used in this study, as the approach can provide a more reliable assessment with lower degree of uncertainty [21,22].
2.4. Data Collection
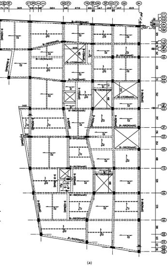
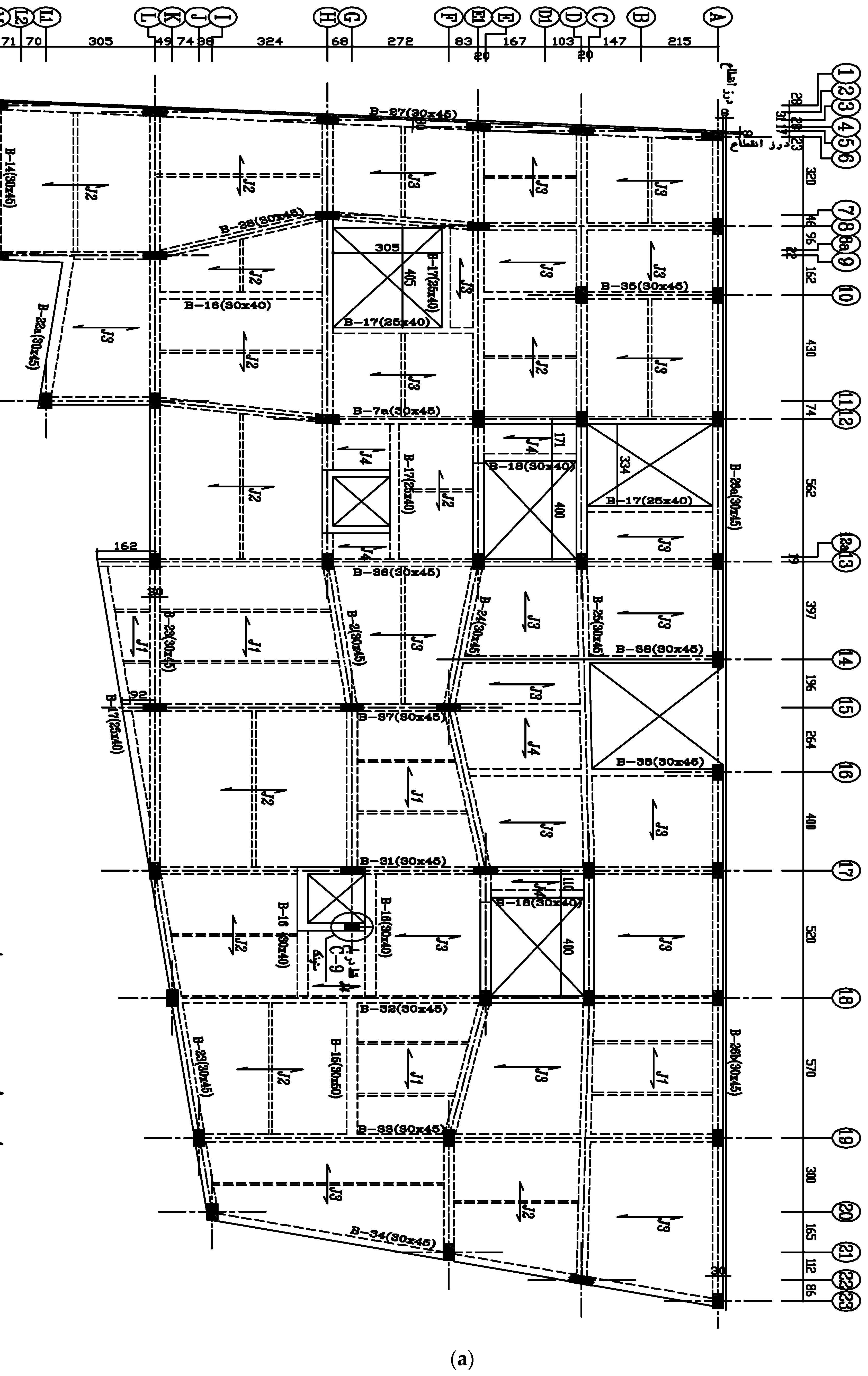
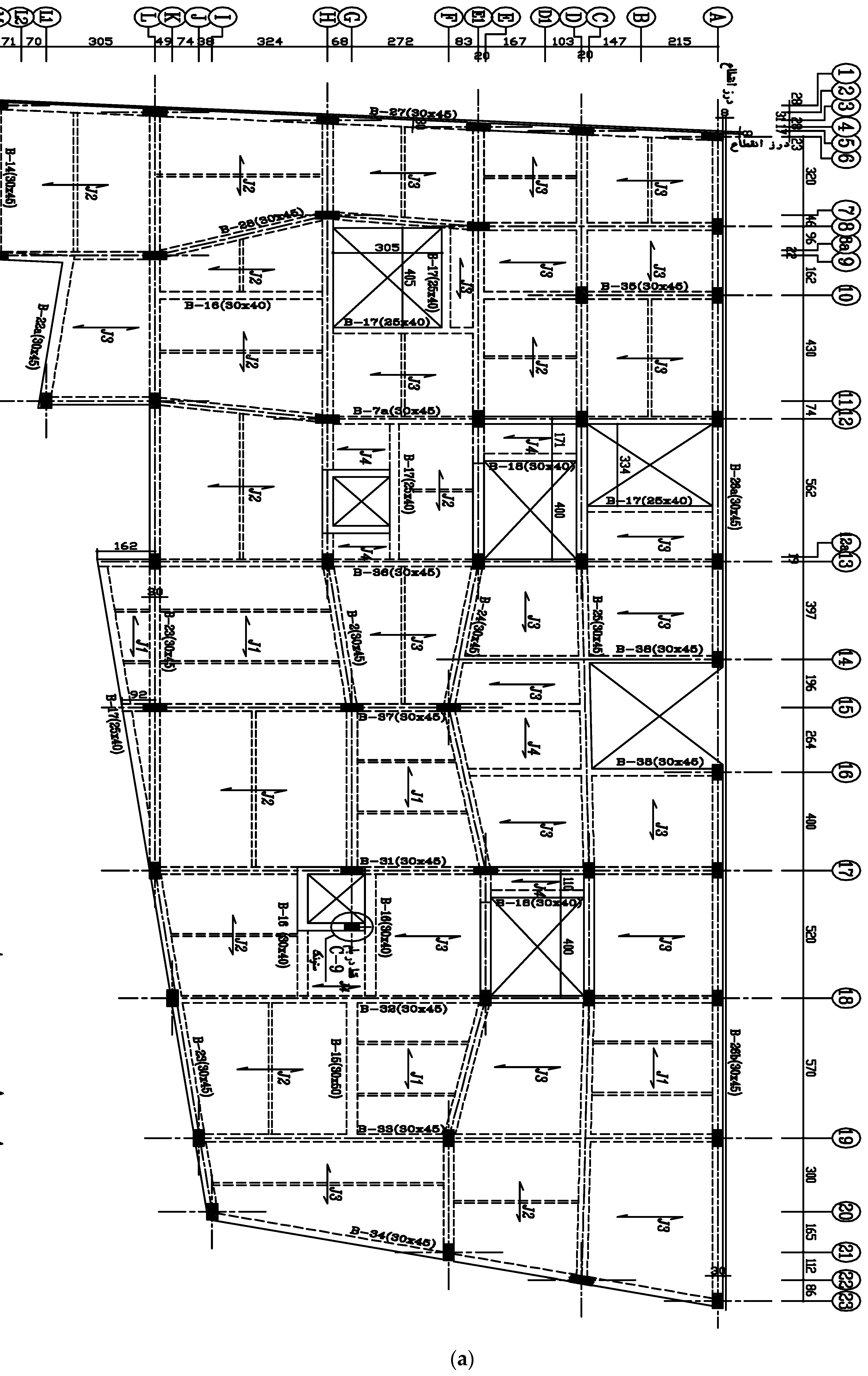
The data required for different stages of life cycle of the two buildings were obtained from different resources. The data of construction stage (including bill of material for the two frames) was obtained from the buildings’ designers and contractors. Figure 3 depicts a general plan of the two construction frames. Data needed for raw material acquisition, material production, and end-of-life stages were obtained from international resources (such as international standards and guidelines) as well as local resources (such as national standards, guidelines, and industry reports).

Figure 3.
Frame plans of two case study buildings: (a) concrete frame and (b) steel frame.
2.5. Modeling Life Cycle of the Two Construction Frames in GaBi
2.5.1. Goal and Scope Definition (System Boundary)
The first step in LCA is to define the goal and scope of analysis and determine the system boundary. As already mentioned, the objective of this research was to assess the amount of pollution caused by the two most common construction frames for multi-story buildings in Iran, namely, concrete and steel buildings, where a six-story concrete building and a seven-story steel building were selected for evaluation in this study. The functional unit was defined as the materials used in the two concrete and steel construction frames of the two residential apartment buildings, each with a floor area of 4900 square meters and located in the northern part of the capital city Tehran, throughout their 50-year life span.
Since the research was mostly focused on the comparison of the construction frames of the two buildings, other parts such as the walls and floors were assumed to be similar. Hence, only the life cycle of the two frames was modeled in GaBi and other parts of the buildings were omitted from modeling.
Moreover, it is noteworthy that the two constructions followed the same construction standards set by Tehran Municipality. Thus, the research also deemed their function as identical. In order to estimate the environmental impacts of the two alternative frames, as demonstrated in Figure 4, all stages, including raw material acquisition, material production, construction, use, and eventually end-of-life recycling and landfill, were taken into consideration.
Figure 4.
System boundary.
2.5.2. Raw Material Acquisition
The data accumulated from the two building plans indicated that the main materials used for the two construction frames in question comprised of concrete, steel, and rebar steel. Based on data available on world steel [23], it takes 56% iron ore plus 28% metallurgical coke as well as 16% steel scrap to produce 1 tonne of steel. For the production of 1 m3 of concrete, roughly 76% of gravel and 24% of Portland cement are required. This information is listed in Table 1 and Table 2 to reflect the exact amount (per tonne) of the raw materials.
Table 1.
Steel-BOM.
Table 2.
Concrete-BOM.
2.5.3. Material Production
During this phase, the raw materials are transferred to plants that produce construction materials, from where the products will be transported to construction sites [24]. Table 3 and Table 4 show the distance that each and every material had to be transported as well as the locations of production plants and the trucks used to transfer them. It should be noted that mixer trailers are used to carry concrete loads which are normally measured per volume (in cubic meter); however, due to the unavailability of such carriers in the GaBi database, regular trucks were taken into account and therefore all assumed volumes were converted into weight to scale.
Table 3.
Transportation of concrete-BOM.
Table 4.
Transportation of steel-BOM.
2.5.4. Construction Stage
Since the nature of the study involved the assessment of environmental impacts of materials used in construction frames, the construction phase was defined as the process of delivery of required materials from production plants to the construction site, and other construction activities were omitted from modeling due to the fact that the GaBi considers only materials and their transportation, not civil operations. The data given in Table 5 represent the amount of materials required for the two construction frames that were obtained from their building plans. Table 6 displays transportation information concerning each construction material. The output of this stage would be the construction frames in question.
Table 5.
Total amount of each material.
Table 6.
Transportation.
2.5.5. Use Stage
Although repair and maintenance have been considered for some parts of the buildings in a number of research studies, there is no such data for construction frames in Iran. Moreover, this research examined the two construction frames in isolation and it appeared that they did not release significant emissions throughout their normal 50 years of life span. Consequently, no major renovation or maintenance work were envisaged in this research.
2.5.6. End-of-Life Stage
This process does not reveal a clear nature and the topic is usually ignored in the building’s LCA [25]. Broun and Menzies [13] used the two scenarios of demolition and reuse to look into the environmental impacts of three types of walls. Gervasio [24] has listed five scenarios for a building’s EoL: three scenarios including landfill, recycling, and reusing steel construction as well as two scenarios of recycling and landfill of concrete structure. In this phase, 100% of the steel scrap recovered after the demotion of the steel building has been considered as recyclable, while 85% of the steel rebar used in the concrete building has been deemed recyclable, whereas all concrete residues were landfilled [11]. Since the life span of the two buildings in this study is 50 years, it is apparent that after this period and their demolition, steel scraps and concrete chunks will be the outcome of the operation. For each of these materials, a separate scenario was devised. According to Figure 5, which displays the GaBi processes, the first scenario included recycling of steel scraps and their reuse in industry to produce steel. Meanwhile, the second scenario indicated the transfer of concrete residues to landfill sites for disposal. Table 7 shows information on the weight of each material at the EoL of the buildings. It is worth mentioning that the distance for the transfer of concrete residues from the demolition site to the landfill was considered as 50 km, while the distance for the transfer of steel scraps was assumed to be 10 km.

Figure 5.
GaBi life cycle assessment (LCA) processes: (a) concrete building and (b) steel building.
Table 7.
End-of-life outputs.
Figure 5 depicts the entire processes involved in the life cycle of the two construction frames by using the GaBi software program.
3. Results and Discussions
3.1. Life Cycle Impacts of the Two Frames
Results from the GaBi software program reveal comprehensive information concerning the impact of each stage of construction frames’ life cycle. In other research, various parameters have been taken into account in order to analyze such impact. Factors including global warming potential, human toxicity potential, eutrophication, fossil fuels depletion, and acidification have been considered for impact assessment [11,26,27]. In this research, as shown in Figure 6, the impact of the global warming potential for a period of 100 years, acidification, eutrophication potential, human toxicity (considering cancer and non-cancer effects), and resource depletion (water, minerals, and renewable resources) as well as climate change, fossil fuel depletion, and ecotoxicity were assessed. According to results obtained from GaBi and a comparison made between two concrete and steel buildings, it has been made clear that in most cases, concrete buildings leave more pollutants. As depicted by Figure 6a, with its production of 9120 t (CO2 eq.), the concrete building had a substantial impact on GWP as opposed to the steel building which roughly generated 24% less emissions. The EoL period of the concrete building created 2000 t (CO2 eq.) more pollution than that of the steel building, thus contributing significantly to the marked difference between their impacts. Furthermore, the two stages of raw material acquisition and material production contributed respectively to 21.67% and 0.5% of the concrete building’s impact on GWP; in contrast, the impact on GWP of material acquisition and production for the steel building were 23.9% and 1.0 %, respectively. With respect to AP, the concrete building produced 9480 kg (SO2 eq.), which was 1330 kg higher than similar emissions by the steel building. Raw material acquisition highly influenced the AP, such that the emission at this stage was 78% and 81% for concrete and steel buildings, respectively. With regard to the effects of climate change, the two concrete and steel buildings respectively created 7550 t (CO2 eq.) and 5740 t (CO2 eq.). The concrete building caused further climate change effects mainly due to raw material acquisition and EoL stages, which produced 27% and 16% more pollution, respectively. Additionally, the EoL stage had the greatest impact on EP, since the amount of concrete building’s pollution was about 2000 kg (phosphate eq.) higher than its steel counterpart at this level. As demonstrated in Figure 6e, the steel building had a more detrimental effect on the ecosystem than the concrete building only in one category—resource depletion (minerals, fossil, and renewable resources)—merely by 3.37 kg (Sb eq.) from among all the results of impact assessments. Figure 6 reveals the pollution amount of the two construction frames in each impact factor.


Figure 6.
LCIA results for concrete and steel buildings in eleven scenarios: (a) GWP and Climate change; (b) Water, AP and EP; (c) Ecotoxity, Resources and Acidification Air; (d) Human toxicity; (e) Mineral, fossil and renewable
According to Table 8, all the emissions that have a role in global warming were divided into two groups, namely, organic and non-organic. Among the organic emissions, methane had the largest share with 59.1% and this amount was released at the EoL period. Among the non-organic emissions, carbon dioxide had the biggest share with 30.4%. CO2 emissions occurred in three stages of the life cycle, i.e., during raw material acquisition (20.14%), EoL (9.8%), and material production (0.5%). As shown in Table 8, the total amount of gas emissions with regard to GWP amounted to 9770 t (CO2 eq.), of which 5830 t was organic and 3940 t was non-organic. Table 8 shows the gases that made the most contribution to GWP; not all gases were mentioned due to their insignificant effect.
Table 8.
Emissions to air by the concrete building (kg CO2 eq.).
According to data from Table 9, all emissions that lead to global warming were roughly reduced by 25% in the steel construction frame. This reduction appeared to be logical due to less use of concrete in the structure and recycling of steel scraps at the EoL phase. For the steel construction frame, methane (57.1%) and carbon dioxide (32.5%) created the biggest emissions. The total amount of emissions came down to 7350 t (CO2 eq.), of which 4250 t (CO2 eq.) was organic and 3100 t (CO2 eq.) was non-organic.
Table 9.
Emissions to air by the steel building (kg CO2 eq.).
3.2. Comparison of Findings with Other Studies
A few research studies have delved into the assessment of environmental impact of these two construction frames. In a research carried out on four buildings (two high-rise and two short building), which were either steel or reinforced concrete frames, the amount of CO2 emissions and consumed energy were calculated by using the input-output analysis. Results revealed that CO2 emissions and energy usage by the reinforced concrete construction frames was 26% less than steel construction frames and indicated that reinforced construction frames were a better choice in terms of environmental impacts [28]. Gervasio [24] selected two one-family dwellings, one concrete and the other a steel construction frame, to assess the life cycle of their walls and frames. In the study, the environmental impacts and energy consumption of the two buildings were calculated for four stages, namely, material production, construction, and operation as well as the end of life. Results from the LCA analysis demonstrated that the concrete building created more pollution than the steel construction frame in areas of resources consumption, human health, and ecosystem. In terms of embodied energy, the steel construction frame had a better standing and used less energy. In a research where comparisons were done merely on the construction frames, four-story buildings meeting Australian standards were selected and the LCA software program SimaPro was utilized to analyze pollution amounts by concrete, wooden, and steel construction frames and their impact on global warming potential, human toxicity, and eutrophication potential as well as fossil fuel consumption and acidification potential. The uncertainty effects on the environmental function were assessed using the 1000 model of Monte Carlo within the SimaPro software program and the results showed greater pollution for the concrete construction frame than the other two frames [11].
Results of these studies revealed that the outcomes could vary case by case considering different geography and climate conditions. Moreover, using various methods and software programs can also lead to certain results [29]. Therefore, in this research, where the GaBi software program was used for analysis, the outputs indicated that, in general, the concrete frame leaves more pollution behind. Figure 7 shows the total pollution with respect to all impact factors. Based on this figure, the total amount of pollution by the concrete frame in all stages of its life cycle was almost 219,000 t (CO2 eq.) higher than that of the steel construction frame.
Figure 7.
Total pollution released by two construction frames.
Figure 8 shows that most pollution by the two type of buildings took place in areas of resources, emissions to fresh water, emissions to air, and deposited goods, with the concrete building contributing to 49.9%, 46.1%, 2.19%, and 1.59% of the pollution, respectively. The steel building’s pollution rates for the aforementioned areas were 50.6%, 44.9%, 2.56%, and 1.86%, respectively.

Figure 8.
Total pollution in different categories: (a) concrete building; (b) steel building.
4. Conclusions
In this research, a case study was conducted to analyze the life cycle environmental impacts of two multi-story residential buildings, one with a concrete frame and the other with a steel frame, in Tehran, Iran. The LCA approach and the GaBi software program were utilized to conduct a comprehensive analysis of the entire life cycle of the construction frames. Results showed that the concrete building had a significantly higher pollution than the steel building. The total amount of pollution in various stages by the concrete building was 38% more than the steel building. In addition, the two stages of raw material acquisition and EoL created more pollution than all the other life cycle stages. At the EoL stage, the steel scrap could be recycled and reused, while the concrete construction frames are destined to landfill which has a detrimental impact on the ecosystem. Results of this study indicated that selection of the steel frame in the building industry is more environmentally friendly than the concrete frame. However, a developer’s perspective might involve other aspects and criteria for the selection of a construction frame. Thus, in future research, other aspects such as economic and social factors could also be examined for the choice of a construction frame. Techniques such as life cycle cost (LCC) and social life cycle assessment (SLCA) can be used for such studies.
Author Contributions
Conceptualization, A.O.; methodology, S.M.; software, A.O.; validation, S.M.; formal analysis, S.M.; investigation, A.O.; resources, A.O.; data curation, S.M., S.A.H.; writing—original draft preparation, A.O.; writing—review and editing, S.M., S.A.H.; visualization, A.O.; supervision, S.M.; project administration, S.M.; funding acquisition, Y.Y. All authors have read and agreed to the published version of the manuscript.
Acknowledgments
The authors would like to gratefully acknowledge the GaBi Education Team for their collaboration in this paper.
Conflicts of Interest
The authors declare no conflict of interest.
Abbreviations
| LCA | Life cycle assessment |
| LCIA | Life cycle impact assessment |
| GWP | Global warming potential |
| AP | Acidification potential |
| EP | Eutrophication potential |
| GHG | Greenhouse gases |
| EoL | End of life |
| BOM | Bill of materials |
| Sb | Stibium |
| t | Tonne |
References
- Iranian Students’ News Agency (ISNA). 2017. Available online: https://www.isna.ir/ (accessed on 10 August 2019).
- Global Status Report. Towards a Zero-Emission, Efficient, and Resilience Building and Construction Sector. 2017. Available online: https://www.worldgbc.org/news-media/global-status-report-2017 (accessed on 5 August 2019).
- Basaglia, B.; Lewis, K.; Shrestha, R.; Crews, K. A comparative life cycle assessment approach of two innovative long span timber floors with its reinforced concrete equivalent in an Australian context. In Proceedings of the International Conference on Performance-based and Life-cycle Structural Engineering, Brisbane, Australia, 9–11 December 2015. [Google Scholar]
- UNEP. Building and Climate Change: Summary for Decision Makers. 2009. Available online: https://europa.eu/capacity4dev/unep/document/buildings-and-climate-change-summary-decision-makers (accessed on 5 August 2019).
- European Commission. Resource Efficiency in the Building Sector; 2014. Available online: https://ec.europa.eu/environment/eussd/pdf/Resource%20efficiency%20in%20the%20building%20sector.pdf (accessed on 5 August 2019).
- Sartori, I.; Hestnes, A.G. Energy use in the life cycle of conventional and low-energy buildings: A review article. Energ. Build. 2007, 39, 249–257. [Google Scholar] [CrossRef]
- Robertson, A.B.; Lam, F.C.; Cole, R.J. A comparative cradle-to-gate life cycle assessment of mid-rise office building construction alternatives: Laminated timber or reinforced concrete. Buildings 2012, 2, 245–270. [Google Scholar] [CrossRef]
- Guggemos, A.A.; Horvath, A. Comparison of environmental effects of steel-and concrete-framed buildings. J. Infrast. Syst. 2005, 11, 93–101. [Google Scholar] [CrossRef]
- Panteli, C.; Kylili, A.; Stasiuliene, L.; Seduikyte, L.; Fokaides, P.A. A framework for building overhang design using Building Information Modeling and Life Cycle Assessment. J. Build. Eng. 2018, 20, 248–255. [Google Scholar] [CrossRef]
- Hamidi, B.; Bulbul, T. An Evaluation of Life Cycle Analysis (LCA) Tools for Environmental Impact Analysis of Building End-of-Life Cycle Operations. Comp. Civ. Build. Eng. 2014, 1943–1950. [Google Scholar] [CrossRef]
- Lu, H.R.; El Hanandeh, A.; Gilbert, B.P. A comparative life cycle study of alternative materials for Australian multi-storey apartment building frame constructions: Environmental and economic perspective. J. Clean. Prod. 2017, 166, 458–473. [Google Scholar] [CrossRef]
- Cole, R.J.; Kernan, P.C. Life-cycle energy use in office buildings. Build. Environ. 1996, 31, 307–317. [Google Scholar] [CrossRef]
- Broun, R.; Menzies, G.F. Life cycle energy and environmental analysis of partition wall systems in the UK. Proc. Eng. 2011, 21, 864–873. [Google Scholar] [CrossRef]
- Najjar, M.; Figueiredo, K.; Palumbo, M.; Haddad, A. Integration of BIM and LCA: Evaluating the environmental impacts of building materials at an early stage of designing a typical office building. J. Build. Eng. 2017, 14, 115–126. [Google Scholar] [CrossRef]
- Krogmann, U.; Minderman, N.; Senick, J.; Andrews, C.J. Life-Cycle Assessment of New Jersey Meadowlands Commission Center for Environmental and Scientific Education Building; Rutgers Center for Green Building: New Brunswick, NJ, USA, 2008. [Google Scholar]
- International Organization for Standardization. ISO 14044-Environmental management- Life Cycle Assessment- Principle and Framework. 2006. Available online: https://www.iso.org/standard/38498.html (accessed on 10 August 2019).
- Sinha, R.; Lennartsson, M.; Frostell, B. Environmental footprint assessment of building structures: A comparative study. Build. Environ. 2016, 104, 162–171. [Google Scholar] [CrossRef]
- Herrmann, I.T.; Moltesen, A. Does it matter which Life Cycle Assessment (LCA) tool you choose?–a comparative assessment of SimaPro and GaBi. J. Clean. Prod. 2015, 86, 163–169. [Google Scholar] [CrossRef]
- Jrade, A.; Abdulla, R. Integrating building information modeling and life cycle assessment tools to design sustainable buildings. In Proceedings of the CIB W78 2012: 29th International Conference, Beirut, Lebanon, 17–19 October 2012; Available online: https://www.cibw78.org/conferences/ (accessed on 20 August 2019).
- Sandanayake, M.; Zhang, G.; Setunge, S. Estimation of environmental emissions and impacts of building construction–A decision making tool for contractors. J. Build. Eng. 2019, 21, 173–185. [Google Scholar] [CrossRef]
- GaBi software. 2018. Available online: https://www.gabi-software.com/international/index/ (accessed on 1 August 2019).
- Dong, Y.H.; Thomas Ng, S. Comparing the midpoint and endpoint approaches based on ReCiPe—A study of commercial buildings in Hong Kong. Int. J. Life Cycle Assess. 2014, 19, 1409–1423. [Google Scholar] [CrossRef]
- World steel, 2019, Steel by topic, Raw materials. Available online: www.worldsteel.org (accessed on 1 August 2019).
- Gervasio, H. Comparative Housing Case Study (Steel vs. Concrete) through a Quantitative Life Cycle Approach, Portugal; Department of civil engineering, University of Coimbra: Coimbra, Portugal, 2007. [Google Scholar]
- Sandin, G.; Peters, G.M.; Svanström, M. Life cycle assessment of construction materials: The influence of assumptions in end-of-life modelling. Int. J. Life Cycle Assess. 2014, 19, 723–731. [Google Scholar] [CrossRef]
- Balasbaneh, A.T.; Marsono, A.K.B.; Khaleghi, S.J. Sustainability choice of different hybrid timber structure for low medium cost single-story residential building: Environmental, economic and social assessment. J. Build. Eng. 2018, 20, 235–247. [Google Scholar] [CrossRef]
- Hossaini, N.; Reza, B.; Akhtar, S.; Sadiq, R.; Hewage, K. AHP based life cycle sustainability assessment (LCSA) framework: A case study of six storey wood frame and concrete frame buildings in Vancouver. J. Environ. Plan. Manag. 2015, 58, 1217–1241. [Google Scholar] [CrossRef]
- Kim, S.; Moon, J.H.; Shin, Y.; Kim, G.H.; Seo, D.S. Life comparative analysis of energy consumption and CO2 emissions of different building structural frame types. Sci. World J. 2013, 2013, 175702. [Google Scholar] [CrossRef] [PubMed]
- Emami, N.; Heinonen, J.; Marteinsson, B.; Saynajoki, A.; Junnonen, J.M.; Laine, J.; Junnila, S. A Life Cycle Assessment of Two Residential Buildings Using Two Different LCA Database-Software Combinations: Recognizing Uniformities and Inconsistencies. Buildings 2019, 9, 20. [Google Scholar] [CrossRef]
© 2020 by the authors. Licensee MDPI, Basel, Switzerland. This article is an open access article distributed under the terms and conditions of the Creative Commons Attribution (CC BY) license (http://creativecommons.org/licenses/by/4.0/).












