Design of a Thermal Hotel Based on AHP-QFD Methodology
Abstract
1. Introduction
2. Materials and Methods
2.1. Quality and Quality Function Deployment (QFD)
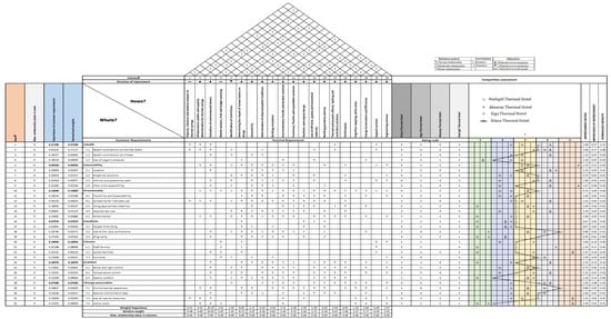
2.2. Steps of House of Quality Diagram
2.2.1. Customer Needs and Requirements (Voice of Customer, VoC)
2.2.2. Determining the Order of Priority with the AHP Method by Grouping Customer Expectations with the Affinity and Hierarchy Diagram

2.2.3. Determination of Technical Requirements
2.2.4. Matrices Solution to Determine the Relationships between Customer Requirements and Technical Requirements.
2.2.5. Calculating the Degree of Technical Significance and the Degree of Normalised Technical Significance
2.2.6. Correlation Matrices
2.2.7. Competitive Analysis and Determination of the Goals
3. Results
4. Discussion
5. Conclusions
Author Contributions
Funding
Institutional Review Board Statement
Informed Consent Statement
Data Availability Statement
Conflicts of Interest
References
- Mohr-Jackson, I. Managing a total quality orientation: Factors affecting customer satisfaction. Ind. Mark. Manag. 1998, 27, 109–125. [Google Scholar] [CrossRef]
- Noguchı, M. The effect of the quality-oriented production approach on the delivery of prefabricated homes in Japan. J. Hous. Built Environ. 2003, 18, 353–364. [Google Scholar] [CrossRef]
- Gransberg, D.D.; Molenaar, K. Analysis of owner’s design and construction quality management approaches in design/build projects. J. Manag. Eng. 2004, 20, 162–169. [Google Scholar] [CrossRef][Green Version]
- Bordass, B.; Leaman, A. Making feedback and post-occupancy evaluation routine 3: Case studies of the use of techniques in the feedback portfolio. Build. Res. Info. 2005, 33, 361–375. [Google Scholar] [CrossRef]
- Göçer, Ö.; Hua, Y.; Göçer, K. Completing the missing link in building design process: Enhancing post-occupancy evaluation method for effective feedback for building performance. Build. Environ. 2015, 89, 14–27. [Google Scholar] [CrossRef]
- Way, M.; Bordass, B. Making feedback and post-occupancy evaluation routine 2: Soft landings–involving design and building teams in improving performance. Build. Rese. Info. 2005, 33, 353–360. [Google Scholar] [CrossRef]
- Shino, J.; Nishihara, R. Quality development in the construction industry. In Quality Function Deployment (QFD): Integrating Customer Requirements into Product Design; Akao, Y., Ed.; Productivity Press: Portland, OR, USA, 1990; pp. 263–297. [Google Scholar]
- Mallon, J.; Mullıgan, D. Quality function deployment—A system for meeting customers’ needs. J. Constr. Eng. Manag. 1993, 119, 516–531. [Google Scholar] [CrossRef]
- Huovila, P.; Lakka, A.; Laurikka, P.; Vainio, M. Involvement of Customer Requirements in Building Design. In Lean Construction. Balkema, Rotterdam; CRC Press: Boca Raton, FL, USA, 1997; pp. 403–416. [Google Scholar]
- Abdul-Rahman, H.; Kwan, C.; Woods, P.C. Quality function deployment in construction design: Application in low-cost housing design. Int. J. Qual. Reliab. Manag. 1999, 16, 591–605. [Google Scholar] [CrossRef]
- Gargıone, L.A. Using quality function deployment (QFD) in the design phase of an apartment construction project. Proc. IGLC Citeseer 1999, 7, 357. [Google Scholar]
- Kamara, J.M.; Anumba, C.J.; Evbuomwan, N.F. Client requirements processing in construction: A new approach using QFD. J. Archit. Eng. 1999, 5, 8–15. [Google Scholar] [CrossRef]
- Pheng, L.S.; Yeap, L. Quality function deployment in design/build projects. J. Archit. Eng. 2001, 7, 30–39. [Google Scholar] [CrossRef]
- Ardıtı, D.; Lee, D.E. Assessing the corporate service quality performance of design-build contractors using quality function deployment. Constr. Manag. Econ. 2003, 21, 175–185. [Google Scholar] [CrossRef]
- Eldın, N.; Hıkle, V. Pilot study of quality function deployment in construction projects. J. Constr. Eng. Manag. 2003, 129, 314–329. [Google Scholar] [CrossRef]
- Yang, Y.Q.; Wang, S.Q.; Dulaımı, M.; Low, S.P. A fuzzy quality function deployment system for buildable design decision-makings. Autom. Constr. 2003, 12, 381–393. [Google Scholar] [CrossRef]
- Dıkmen, I.; Bırgonul, M.T.; Kızıltas, S. Strategic use of quality function deployment (QFD) in the construction industry. Build. Environ. 2005, 40, 245–255. [Google Scholar] [CrossRef]
- Delgado-Hernandez, D.J.; Aspınwall, E. Quality management case studies in the UK construction industry. Total Qual. Manag. 2008, 19, 919–938. [Google Scholar] [CrossRef]
- Carıaga, I.; El-Dıraby, T.; Osman, H. Integrating value analysis and quality function deployment for evaluating design alternatives. J. Constr. Eng. Manag. 2007, 133, 761–770. [Google Scholar] [CrossRef]
- Sınghaputtangkul, N.; Low, S.P.; Teo, A.L.; Hwang, B.G. Knowledge-based decision support system quality function deployment (KBDSS-QFD) tool for assessment of building envelopes. Autom. Constr. 2013, 35, 314–328. [Google Scholar] [CrossRef]
- Ulubeylı, S.; Kazaz, A.; Soycopur, B.; Er, B. Quality function deployment in the speculative house-building market: How to satisfy high-income customers. Int. J. Constr. Manag. 2015, 15, 148–156. [Google Scholar] [CrossRef]
- John, R.; Smith, A.; Chotipanich, S.; Pitt, M. Awareness and effectiveness of quality function deployment (QFD) in design and build projects in Nigeria. J. Facil. Manag. 2014, 12, 72–88. [Google Scholar] [CrossRef]
- Wood, L.C.; Wang, C.; Abdul-Rahman, H.; Abdul-Nasır, N.S.J. Green hospital design: Integrating quality function deployment and end-user demands. J. Clean. Prod. 2016, 112, 903–913. [Google Scholar] [CrossRef]
- Juan, Y.K.; Perng, Y.H.; Castro-Lacouture, D.; Lu, K.S. Housing refurbishment contractors selection based on a hybrid fuzzy-QFD approach. Autom. Constr. 2009, 18, 139–144. [Google Scholar] [CrossRef]
- Sınghaputtangkul, N.; Zhao, X. Applying a fuzzy consensus scheme to enhance the group decision making of a building envelope design team. J. Constr. Eng. Manag. 2016, 142, 04016025. [Google Scholar] [CrossRef]
- Juan, Y.K.; Hsıng, N.P.; Hsu, Y.H. Applying the Kano two-dimensional model and quality function deployment to develop sustainable planning strategies for public housing in Taiwan. J. Hous. Built Environ. 2019, 34, 265–282. [Google Scholar] [CrossRef]
- Kürüm Varolgüneş, F.; Canan, F. Determination of Customer Requirements for Thermal Accommodation Facility Designs. Afyon Kocatepe University. J. Soc. Sci. 2018, 20, 231–248. [Google Scholar]
- Kürüm Varolgüneş, F.; Canan, F. The Importance of the Use of QFD-AHP Methods in Architectural Design Quality Evaluation. In Proceedings of the International Conference on Multidisciplinary, Science, Engineering and Technology (IMESET’18), Dubai, United Arab Emirates, 25–27 October 2018. [Google Scholar]
- Ashtıany, M.S.; Alıpour, A. Integration Axiomatic Design with Quality Function Deployment and Sustainable design for the satisfaction of an airplane tail stakeholders. Procedia CIRP 2016, 53, 142–150. [Google Scholar] [CrossRef]
- Savaş, H.; Mevhıbe, A. Üniversite Kütüphanesi Tasarımında Kalite Fonksiyon Göçerimi Uygulaması. Dokuz Eylul Univ. Sos. Bilimler Enst. Derg. 2005, 3, 80–98. [Google Scholar]
- Kamaruzzaman, S.N.; Lou, E.C.W.; Wong, P.F.; Wood, R.; Che-Anı, A.I. Developing weighting system for refurbishment building assessment scheme in Malaysia through analytic hierarchy process (AHP) approach. Energy Policy 2018, 112, 280–290. [Google Scholar] [CrossRef]
- Işık, O.; Seğmen, Y.E.; Kölemen, M. Engineering Curriculum Design Using Quality Function Deployment. J. Aeronaut. Space Technol. 2012, 5, 55–60. [Google Scholar]
- Akao, Y. History of quality function deployment in Japan. Best Qual. Targets Improv. Syst. 1990, 3, 183–196. [Google Scholar]
- Day, R.G. Quality Function Deployment: Linking a Company with Its Customers; Asq Press: Milwaukee WI, USA, 1995. [Google Scholar]
- Sullıvan, L.P. Quality function deployment. Qual. Prog. 1986, 19, 39–50. [Google Scholar]
- Sullıvan, L.P. Policy management through quality function deployment. Qual. Prog. 1988, 21, 18–20. [Google Scholar]
- Wolfe, M. Development of the city of quality: A hypertext-based group decision support system for quality function deployment. Decis. Support Syst. 1994, 11, 299–318. [Google Scholar] [CrossRef]
- Özdemır, Y.; Alcan, P.; Başlıgıl, H.; Çakrak, D. A hybrid QFD-AHP methodology and an application for heating systems in Turkey. Int. J. Optim. Control. Theor. Appl. (IJOCTA) 2018, 8, 117–126. [Google Scholar] [CrossRef]
- Hauser, J.R.; Clausıng, D. The house of quality. Harv. Bus. Rev. 1988, 1, 1–16. [Google Scholar]
- Shen, X.X.; Tan, K.C.; Xıe, M. An integrated approach to innovative product development using Kano’s model and QFD. Eur. J. Innov. Manag. 2020, 3, 91–99. [Google Scholar] [CrossRef]
- Shıllıto, M.L. Advanced QFD: Linking Technology to Market and Company Needs; John Wiley & Sons: New York, NY, USA, 1994. [Google Scholar]
- Bazaati, S.; Bayrmi, S.; Emel, O.R.A.L. Kalite Fonksiyon Yayılımı ve İnşaat Sektöründe Bir Uygulama. Çukurova Üniversitesi Mühendislik-Mimarlık Fakültesi Dergisi 2014, 29, 53–62. [Google Scholar] [CrossRef]
- Mazur, G.H. Voice of customer analysis: A modern system of front-end QFD tools, with case studies. In Proceedings of the Annual Quality Congress Proceedings-American Society for Quality Control. Orlando, Milwaukee, WI, USA, 5–7 May 1997; pp. 486–495. [Google Scholar]
- Shafer, S.M.; Smıth, H.J.; Lınder, J.C. The power of business models. Bus. Horiz. 2005, 48, 199–207. [Google Scholar] [CrossRef]
- Gurı-Rozenblıt, S. Effects of a tree diagram on students’ comprehension of main ideas in an expository text with multiple themes. Read. Res. Q. 1989, 24, 236–247. [Google Scholar] [CrossRef]
- Awasthı, A.; Chauhan, S.S. A hybrid approach integrating Affinity Diagram, AHP and fuzzy TOPSIS for sustainable city logistics planning. Appl. Math. Model. 2012, 36, 573–584. [Google Scholar] [CrossRef]
- Saaty, T.L. How to make a decision: The analytic hierarchy process. Eur. J. Oper. Res. 1990, 48, 9–26. [Google Scholar] [CrossRef]
- Sarathy, P.S. TQM practice in real-estate industry using AHP. Qual. Quant. 2013, 47, 2049–2063. [Google Scholar] [CrossRef]
- Ramanathan, R. A note on the use of the analytic hierarchy process for environmental impact assessment. J. Environ. Manag. 2001, 63, 27–35. [Google Scholar] [CrossRef]
- Emır, O.; Saraçlı, S. Determination of the thermal hotel location: Application of analytic hierarchy process. Tour. Hosp. Manag. 2014, 20, 71–83. [Google Scholar] [CrossRef]
- Moubachır, Y.; Bouamı, D. A new approach for the transition between QFD phases. Procedia CIRP 2015, 26, 82–86. [Google Scholar] [CrossRef][Green Version]
- Eryürük, Ş.; Varolgüneş, F.K.; Varolgüneş, S. Assessment of stakeholder satisfaction as additive to improve building design quality: AHP-based approach. J. Hous. Built Environ. 2021, 1–24. [Google Scholar] [CrossRef]
- Vafaei, N.; Ribeiro, R.A.; Camarinha-Matos, L.M. Normalization techniques for multi-criteria decision making: Analytical hierarchy process case study. In Doctoral Conference on Computing, Electrical and Industrial Systems; Springer: Cham, Switzerland, 2016; pp. 261–269. [Google Scholar]
- Zhang, B.A.; Pedrycz, W.; Fayek, A.R.; Dong, Y. A Differential Evolution-Based Consistency Improvement Method in AHP with an Optimal Allocation of Information Granularity. IEEE Trans. Cybern. 2020, 1–12. [Google Scholar] [CrossRef]
- Ho, W.; Ma, X. The state-of-the-art integrations and applications of the analytic hierarchy process. Eur. J. Oper. Res. 2018, 267, 399–414. [Google Scholar] [CrossRef]




| Criteria | C1 | C2 | C3 | Cn | |
|---|---|---|---|---|---|
| C1 | 1 | a12 | a13 | a1n | |
| C2 | 1/a12 | 1 | a23 | a2n | |
| C3 | 1/a13 | 1/a23 | 1 | a3n | |
| 1 | |||||
| Cn | 1/a1n | 1/a2n | 1/a3n | 1 | |
| ∑Column1 | ∑Column2 | ∑Column3 | ∑Columnn |
| Criteria | C1 | C2 | C3 | Cn | Row Average | Weights |
|---|---|---|---|---|---|---|
| C1 | 1/∑Column1 | (a12)/∑Column2 | (a13)/∑Column3 | (a1n)/∑Columnn | ∑Row1/n = | w1 |
| C2 | (1/a12)/∑Column1 | 1/∑Column2 | (a23)/∑Column3 | (a2n)/∑Columnn | ∑Row2/n = | w2 |
| C3 | (1/a13)/∑Column1 | (1/a23)/∑Column2 | 1/∑Column3 | (a3n)/∑Columnn | ∑Row3/n = | w3 |
| Cn | (1/a1n)/∑Column1 | (1/a2n)/∑Column2 | (1/a3n)/∑Column3 | 1/∑Columnn | ∑Rown/n = | wn |
| Main Criteria | 1 | 2 | 3 | 4 | 5 | 6 | 7 | Weights |
|---|---|---|---|---|---|---|---|---|
| (1) Health | 1.000 | 3.000 | 1.000 | 5.000 | 1.000 | 3.000 | 1.000 | 0.1897 |
| (2) Accessibility | 0.333 | 1.000 | 0.333 | 3.000 | 0.200 | 3.000 | 1.000 | 0.0953 |
| (3) Functionality | 1.000 | 3.000 | 1.000 | 3.000 | 3.000 | 5.000 | 3.000 | 0.2764 |
| (4) Aesthetic | 0.200 | 0.333 | 0.333 | 1.000 | 0.143 | 0.333 | 0.143 | 0.0361 |
| (5) Service | 1.000 | 5.000 | 0.333 | 7.000 | 1.000 | 3.000 | 1.000 | 0.1935 |
| (6) Comfort | 0.333 | 0.333 | 0.200 | 3.000 | 0.333 | 1.000 | 0.333 | 0.0574 |
| (7) Energy conservation | 1.000 | 1.000 | 0.333 | 7.000 | 1.000 | 3.000 | 1.000 | 0.1516 |
| Consistency ratio: 0.0919 | ||||||||
| Health | ||||||||
| (1) Health effects of hot spring | 1.000 | 3.000 | 0.333 | 0.2605 | ||||
| (2) Clean air and climate impacts on health | 0.333 | 1.000 | 0.200 | 0.1062 | ||||
| (3) Use of organic products | 3.000 | 5.000 | 1.000 | 0.6333 | ||||
| Consistency ratio: 0.0477 | ||||||||
| Accessibility | ||||||||
| (1) Location | 1.000 | 0.200 | 3.000 | 0.333 | 0.1192 | |||
| (2) Disability solution | 5.000 | 1.000 | 9.000 | 5.000 | 0.6275 | |||
| (3) Vehicle and pedestrian path | 0.333 | 0.111 | 1.000 | 0.333 | 0.0554 | |||
| (4) Inter-unit accessibility | 3.000 | 0.200 | 3.000 | 1.000 | 0.1978 | |||
| Consistency ratio: 0.0989 | ||||||||
| Functionality | ||||||||
| (1) Flexibility and Expandability | 1.000 | 1.000 | 3.000 | 5.000 | 3.000 | 0.3373 | ||
| (2) Suitability for use | 1.000 | 1.000 | 3.000 | 5.000 | 3.000 | 0.3373 | ||
| (3) Use of local materials | 0.333 | 0.333 | 1.000 | 5.000 | 1.000 | 0.1475 | ||
| (4) Appropriate size | 0.200 | 0.200 | 0.200 | 1.000 | 0.333 | 0.0513 | ||
| (5) Performance | 0.333 | 0.333 | 1.000 | 3.000 | 1.000 | 0.1265 | ||
| Consistency ratio: 0.0386 | ||||||||
| Aesthetic | ||||||||
| (1) Facade of building | 1.000 | 0.333 | 1.000 | 0.1867 | ||||
| (2) local architecture design | 3.000 | 1.000 | 5.000 | 0.6555 | ||||
| (3) Originality | 1.000 | 0.200 | 1.000 | 0.1578 | ||||
| Consistency ratio: 0.0372 | ||||||||
| Service | ||||||||
| (1) Staff service | 1.000 | 5.000 | 3.000 | 0.6555 | ||||
| (2) Social facilities | 0.200 | 1.000 | 1.000 | 0.1578 | ||||
| (3) Economic | 0.333 | 1.000 | 1.000 | 0.1867 | ||||
| Consistency ratio: 0.0372 | ||||||||
| Comfort | ||||||||
| (1) Noise and light control | 1.000 | 1.000 | 0.333 | 0.1867 | ||||
| (2) Temperature control | 1.000 | 1.000 | 0.200 | 0.1578 | ||||
| (3) Spatial comfort | 3.000 | 5.000 | 1.000 | 0.6555 | ||||
| Consistency ratio: 0.0372 | ||||||||
| Energy conservation | ||||||||
| (1) Environmental awareness | 1.000 | 0.333 | 0.333 | 3.000 | 0.1454 | |||
| (2) Natural environment data | 3.000 | 1.000 | 0.333 | 5.000 | 0.2816 | |||
| (3) Use of natural resources | 3.000 | 3.000 | 1.000 | 7.000 | 0.5152 | |||
| (4) Action plans | 0.333 | 0.200 | 0.143 | 1.000 | 0.0578 | |||
| Consistency ratio: 0.0738 | ||||||||
| CRITERIA | F 1 | F 2 | F 3 | F 4 | F 5 | F 6 | F 7 | F 8 | F 9 | F 10 | F 11 | F 12 | F 13 | F 14 | F 15 | F 16 | F 17 | F18 | F 19 | F 20 |
|---|---|---|---|---|---|---|---|---|---|---|---|---|---|---|---|---|---|---|---|---|
| Main criteria | 0.0919 | 0.0859 | 0.0878 | 0.0690 | 0.0748 | 0.0855 | 0.0908 | 0.0960 | 0.0990 | 0.0922 | 0.0879 | 0.0903 | 0.0992 | 0.0929 | 0.0928 | 0.0959 | 0.0887 | 0.1448 | 0.0709 | 0.0815 |
| Health subcriteria | 0.0477 | 0.0834 | 0.0093 | 0.0000 | 0.0477 | 0.0564 | 0.0961 | 0.0390 | 0.0961 | 0.0758 | 0.0897 | 0.0000 | 0.0000 | 0.0961 | 0.0477 | 0.0477 | 0.0961 | 0.0834 | 0.0477 | 0.0961 |
| Accessibility subcriteria | 0.0989 | 0.0604 | 0.0696 | 0.0276 | 0.0713 | 0.0931 | 0.0875 | 0.0914 | 0.0983 | 0.0000 | 0.0931 | 0.0713 | 0.0997 | 0.0654 | 0.0260 | 0.0000 | 0.0664 | 0.0213 | 0.0533 | 0.0493 |
| Functionality subcriteria | 0.0386 | 0.0882 | 0.0777 | 0.0920 | 0.0479 | 0.0904 | 0.0430 | 0.0439 | 0.0998 | 0.0690 | 0.0000 | 0.0802 | 0.0000 | 0.0745 | 0.0183 | 0.0718 | 0.0240 | 0.0519 | 0.0761 | 0.0982 |
| Aesthetic subcriteria | 0.0372 | 0.0477 | 0.0961 | 0.0961 | 0.0000 | 0.0961 | 0.0477 | 0.0000 | 0.0477 | 0.0093 | 0.0093 | 0.0477 | 0.0000 | 0.0477 | 0.0477 | 0.0477 | 0.0607 | 0.0961 | 0.0607 | 0.0000 |
| Service subcriteria | 0.0372 | 0.0093 | 0.0961 | 0.0000 | 0.0000 | 0.0834 | 0.0834 | 0.0000 | 0.3065 | 0.0607 | 0.0607 | 0.0758 | 0.0479 | 0.0000 | 0.0000 | 0.0758 | 0.0961 | 0.0000 | 0.0000 | 0.0000 |
| Comfort subcriteria | 0.0372 | 0.0961 | 0.0477 | 0.0477 | 0.0000 | 0.0961 | 0.0309 | 0.0000 | 0.0477 | 0.0000 | 0.0611 | 0.0000 | 0.0170 | 0.0961 | 0.0000 | 0.0000 | 0.0000 | 0.0309 | 0.0607 | 0.0000 |
| Energy conservation subcriteria | 0.0738 | 0.0738 | 0.0604 | 0.0713 | 0.0545 | 0.0689 | 0.0576 | 0.0079 | 0.0369 | 0.0664 | 0.0826 | 0.0738 | 0.0654 | 0.0000 | 0.0873 | 0.0545 | 0.0997 | 0.0874 | 0.0689 | 0.0808 |
| CRITERIA | F1 | F 2 | F 3 | F 4 | F 5 | F 6 | F 7 | F 8 | F 9 | F 10 | F 11 | F 12 | F 13 | F 14 | F 15 | F16 | F 17 | F 18 | F 19 | F 20 | Importance of Customer Requirements |
|---|---|---|---|---|---|---|---|---|---|---|---|---|---|---|---|---|---|---|---|---|---|
| 1. Health | 0.1897 | 0.2435 | 0.3947 | 0.2586 | 0.2857 | 0.0594 | 0.4750 | 0.4103 | 0.4054 | 0.1423 | 0.3783 | 0.3370 | 0.2240 | 0.1013 | 0.2523 | 0.3418 | 0.1261 | 0.2823 | 0.2536 | 0.2758 | 0.2719 |
| 1.1. Health contribution of thermal water | 0.2605 | 0.6434 | 0.6687 | 0.7143 | 0.6333 | 0.5247 | 0.7235 | 0.6689 | 0.7235 | 0.7028 | 0.5105 | 0.7143 | 0.4286 | 0.7235 | 0.6333 | 0.6333 | 0.7235 | 0.6434 | 0.6333 | 0.7235 | 0.6315 |
| 1.2. Health contribution of climate | 0.1062 | 0.0738 | 0.2431 | 0.1429 | 0.1062 | 0.1416 | 0.0833 | 0.2674 | 0.0833 | 0.1822 | 0.1001 | 0.1429 | 0.4286 | 0.1932 | 0.2605 | 0.2605 | 0.1932 | 0.2828 | 0.2605 | 0.1932 | 0.1873 |
| 1.3. Use of organic products | 0.6333 | 0.2828 | 0.0882 | 0.1429 | 0.2605 | 0.3338 | 0.1932 | 0.0637 | 0.1932 | 0.1149 | 0.3893 | 0.1429 | 0.1429 | 0.0833 | 0.1062 | 0.1062 | 0.0833 | 0.0738 | 0.1062 | 0.0833 | 0.1812 |
| 2. Accessibility | 0.0953 | 0.0446 | 0.0782 | 0.2951 | 0.0502 | 0.1038 | 0.0971 | 0.2238 | 0.0911 | 0.1019 | 0.0409 | 0.0597 | 0.0548 | 0.0499 | 0.0356 | 0.2501 | 0.0550 | 0.0667 | 0.0239 | 0.0319 | 0.0925 |
| 2.1. Location | 0.1192 | 0.5134 | 0.0347 | 0.5324 | 0.0989 | 0.1591 | 0.6585 | 0.2707 | 0.0943 | 0.1000 | 0.1591 | 0.0989 | 0.0765 | 0.5579 | 0.5549 | 0.1250 | 0.0969 | 0.3889 | 0.2715 | 0.0780 | 0.2494 |
| 2.2. Disability solutions | 0.6275 | 0.1009 | 0.3119 | 0.0606 | 0.1716 | 0.2630 | 0.0484 | 0.0513 | 0.0490 | 0.3000 | 0.5011 | 0.3648 | 0.5430 | 0.2633 | 0.0967 | 0.3750 | 0.2906 | 0.3889 | 0.5646 | 0.5117 | 0.2942 |
| 2.3. Vehicle and pedestrian path | 0.0554 | 0.1188 | 0.2437 | 0.2191 | 0.6080 | 0.5011 | 0.1515 | 0.1044 | 0.2725 | 0.3000 | 0.0768 | 0.3648 | 0.2445 | 0.1219 | 0.0967 | 0.3750 | 0.2281 | 0.1535 | 0.0825 | 0.1725 | 0.2245 |
| 2.4. Inter-units accessibility | 0.1978 | 0.2670 | 0.4097 | 0.1879 | 0.1216 | 0.0768 | 0.1416 | 0.5736 | 0.5842 | 0.3000 | 0.2630 | 0.1716 | 0.1360 | 0.0569 | 0.2516 | 0.1250 | 0.3844 | 0.0687 | 0.0814 | 0.2378 | 0.2318 |
| 3. Functionality | 0.2764 | 0.0771 | 0.1060 | 0.0923 | 0.1961 | 0.1013 | 0.1218 | 0.0917 | 0.0692 | 0.2032 | 0.0409 | 0.0794 | 0.1298 | 0.0808 | 0.1495 | 0.0578 | 0.2163 | 0.0836 | 0.1437 | 0.0828 | 0.1200 |
| 3.1. Flexibility and Expandability | 0.3373 | 0.4314 | 0.0452 | 0.1297 | 0.1066 | 0.1372 | 0.0593 | 0.0327 | 0.2767 | 0.0559 | 0.2381 | 0.0366 | 0.2308 | 0.2188 | 0.0857 | 0.2622 | 0.3331 | 0.1184 | 0.0545 | 0.4527 | 0.1821 |
| 3.2. Suitability for intended use | 0.3373 | 0.2198 | 0.2279 | 0.4225 | 0.2316 | 0.4448 | 0.2609 | 0.2781 | 0.5495 | 0.2877 | 0.2381 | 0.2474 | 0.2308 | 0.3795 | 0.0763 | 0.2622 | 0.3736 | 0.2753 | 0.4433 | 0.2374 | 0.3012 |
| 3.3. Using appropriate materials | 0.1475 | 0.1036 | 0.1428 | 0.0883 | 0.2610 | 0.2357 | 0.2609 | 0.1329 | 0.0729 | 0.1344 | 0.2381 | 0.1000 | 0.2308 | 0.1139 | 0.2905 | 0.2622 | 0.1516 | 0.2753 | 0.2239 | 0.1450 | 0.1806 |
| 3.4. Appropriate size | 0.0513 | 0.0547 | 0.0850 | 0.1631 | 0.0516 | 0.0669 | 0.0782 | 0.2781 | 0.0623 | 0.1344 | 0.0476 | 0.1000 | 0.0769 | 0.0514 | 0.2571 | 0.0874 | 0.0777 | 0.0346 | 0.1029 | 0.0601 | 0.0961 |
| 3.5. Performance | 0.1265 | 0.1904 | 0.4991 | 0.1964 | 0.3492 | 0.1154 | 0.3408 | 0.2781 | 0.0386 | 0.3877 | 0.2381 | 0.5161 | 0.2308 | 0.2364 | 0.2905 | 0.1259 | 0.0641 | 0.2963 | 0.1755 | 0.1047 | 0.2400 |
| 4. Aesthetic | 0.0361 | 0.2683 | 0.0217 | 0.0597 | 0.0559 | 0.0483 | 0.0344 | 0.0314 | 0.0222 | 0.0346 | 0.1526 | 0.0282 | 0.0869 | 0.3249 | 0.0602 | 0.0234 | 0.0825 | 0.0641 | 0.0772 | 0.0807 | 0.0797 |
| 4.1. Facade of building | 0.1867 | 0.1062 | 0.7235 | 0.7235 | 0.7778 | 0.7235 | 0.6333 | 0.7143 | 0.1062 | 0.6687 | 0.0882 | 0.1062 | 0.6000 | 0.6333 | 0.1062 | 0.1062 | 0.5889 | 0.7235 | 0.1593 | 0.1429 | 0.4309 |
| 4.2. Use of the local architecture | 0.6555 | 0.2605 | 0.1932 | 0.0833 | 0.1111 | 0.1932 | 0.1062 | 0.1429 | 0.2605 | 0.0882 | 0.6687 | 0.6333 | 0.2000 | 0.1062 | 0.6333 | 0.2605 | 0.2519 | 0.0833 | 0.5889 | 0.4286 | 0.2975 |
| 4.3. Originality | 0.1578 | 0.6333 | 0.0833 | 0.1932 | 0.1111 | 0.0833 | 0.2605 | 0.1429 | 0.6333 | 0.2431 | 0.2431 | 0.2605 | 0.2000 | 0.2605 | 0.2605 | 0.6333 | 0.1593 | 0.1932 | 0.2519 | 0.4286 | 0.2716 |
| 5. Service | 0.1935 | 0.1098 | 0.2010 | 0.1194 | 0.2255 | 0.1515 | 0.1172 | 0.1138 | 0.1746 | 0.3160 | 0.1811 | 0.3275 | 0.2821 | 0.1849 | 0.1121 | 0.1208 | 0.2123 | 0.2615 | 0.1719 | 0.2326 | 0.1905 |
| 5.1. Staff Service | 0.5654 | 0.2431 | 0.7235 | 0.2000 | 0.4286 | 0.2828 | 0.6434 | 0.3333 | 0.5007 | 0.2519 | 0.5889 | 0.7028 | 0.3278 | 0.2000 | 0.4286 | 0.7028 | 0.7235 | 0.3333 | 0.4286 | 0.4286 | 0.4519 |
| 5.2. Social Facilities | 0.2750 | 0.6687 | 0.0833 | 0.6000 | 0.4286 | 0.0738 | 0.2828 | 0.3333 | 0.3102 | 0.5889 | 0.2519 | 0.1822 | 0.2611 | 0.2000 | 0.4286 | 0.1822 | 0.0833 | 0.3333 | 0.4286 | 0.4286 | 0.3212 |
| 5.3. Economy | 0.1596 | 0.0882 | 0.1932 | 0.2000 | 0.1429 | 0.6434 | 0.0738 | 0.3333 | 0.1890 | 0.1593 | 0.1593 | 0.1149 | 0.4111 | 0.6000 | 0.1429 | 0.1149 | 0.1932 | 0.3333 | 0.1429 | 0.1429 | 0.2269 |
| 6. Comfort | 0.0574 | 0.1452 | 0.1469 | 0.1403 | 0.1333 | 0.1451 | 0.1330 | 0.1025 | 0.1997 | 0.1764 | 0.1811 | 0.1319 | 0.1976 | 0.1572 | 0.3117 | 0.1463 | 0.2314 | 0.2157 | 0.2096 | 0.2326 | 0.1697 |
| 6.1. Noise and light control | 0.1867 | 0.0833 | 0.2605 | 0.1062 | 0.1429 | 0.1932 | 0.1150 | 0.0667 | 0.2605 | 0.1429 | 0.0904 | 0.1429 | 0.0755 | 0.0833 | 0.1429 | 0.2000 | 0.1429 | 0.1150 | 0.1593 | 0.4286 | 0.1569 |
| 6.2. Temperature control | 0.1578 | 0.1932 | 0.1062 | 0.2605 | 0.4286 | 0.0833 | 0.4055 | 0.4667 | 0.1062 | 0.4286 | 0.3537 | 0.4286 | 0.3338 | 0.1932 | 0.4286 | 0.6000 | 0.4286 | 0.4055 | 0.2519 | 0.1429 | 0.3101 |
| 6.3. Spatial comfort | 0.6555 | 0.7235 | 0.6333 | 0.6333 | 0.4286 | 0.7235 | 0.4796 | 0.4667 | 0.6333 | 0.4286 | 0.5559 | 0.4286 | 0.5907 | 0.7235 | 0.4286 | 0.2000 | 0.4286 | 0.4796 | 0.5889 | 0.4286 | 0.5329 |
| 7. Energy conservation | 0.1516 | 0.1115 | 0.0516 | 0.0344 | 0.0534 | 0.3906 | 0.0215 | 0.0265 | 0.0379 | 0.0256 | 0.0251 | 0.0364 | 0.0248 | 0.1010 | 0.0786 | 0.0597 | 0.0764 | 0.0261 | 0.1201 | 0.0637 | 0.0758 |
| 7.1. Environmental awareness | 0.1454 | 0.1454 | 0.5134 | 0.3648 | 0.5081 | 0.2104 | 0.3875 | 0.0791 | 0.3936 | 0.2281 | 0.5464 | 0.2816 | 0.5579 | 0.3000 | 0.4072 | 0.5081 | 0.1360 | 0.2959 | 0.4813 | 0.4732 | 0.3482 |
| 7.2. Natural environment data | 0.2816 | 0.2816 | 0.1188 | 0.1716 | 0.2289 | 0.0979 | 0.1792 | 0.4270 | 0.1645 | 0.2906 | 0.1246 | 0.1454 | 0.0569 | 0.3000 | 0.0722 | 0.1932 | 0.2445 | 0.1348 | 0.2104 | 0.1220 | 0.1923 |
| 7.3. Use of natural resources | 0.5152 | 0.5152 | 0.2670 | 0.3648 | 0.1932 | 0.4813 | 0.3042 | 0.4270 | 0.3936 | 0.3844 | 0.2679 | 0.5152 | 0.1219 | 0.1000 | 0.2753 | 0.2289 | 0.5430 | 0.4955 | 0.2104 | 0.1220 | 0.3363 |
| 7.4. Action plans | 0.0578 | 0.0578 | 0.1009 | 0.0989 | 0.0699 | 0.2104 | 0.1292 | 0.0669 | 0.0483 | 0.0969 | 0.0611 | 0.0578 | 0.2633 | 0.3000 | 0.2453 | 0.0699 | 0.0765 | 0.0737 | 0.0979 | 0.2827 | 0.1233 |
| Total | 7.0000 | 7.0000 | 7.0000 | 7.0000 | 7.0000 | 7.0000 | 7.0000 | 7.0000 | 7.0000 | 7.0000 | 7.0000 | 7.0000 | 7.0000 | 7.0000 | 7.0000 | 7.0000 | 7.0000 | 7.0000 | 7.0000 | 7.0000 | 7.0000 |
Publisher’s Note: MDPI stays neutral with regard to jurisdictional claims in published maps and institutional affiliations. |
© 2021 by the authors. Licensee MDPI, Basel, Switzerland. This article is an open access article distributed under the terms and conditions of the Creative Commons Attribution (CC BY) license (https://creativecommons.org/licenses/by/4.0/).
Share and Cite
Kürüm Varolgüneş, F.; Canan, F.; del Río-Rama, M.d.l.C.; Oliveira, C. Design of a Thermal Hotel Based on AHP-QFD Methodology. Water 2021, 13, 2109. https://doi.org/10.3390/w13152109
Kürüm Varolgüneş F, Canan F, del Río-Rama MdlC, Oliveira C. Design of a Thermal Hotel Based on AHP-QFD Methodology. Water. 2021; 13(15):2109. https://doi.org/10.3390/w13152109
Chicago/Turabian StyleKürüm Varolgüneş, Fatma, Fatih Canan, María de la Cruz del Río-Rama, and Cristiana Oliveira. 2021. "Design of a Thermal Hotel Based on AHP-QFD Methodology" Water 13, no. 15: 2109. https://doi.org/10.3390/w13152109
APA StyleKürüm Varolgüneş, F., Canan, F., del Río-Rama, M. d. l. C., & Oliveira, C. (2021). Design of a Thermal Hotel Based on AHP-QFD Methodology. Water, 13(15), 2109. https://doi.org/10.3390/w13152109

