Seismic Fragility Evaluation of Simply Supported Aqueduct Accounting for Water Stop’s Leakage Risk
Abstract
1. Introduction
2. The Steps of Seismic Fragility Analysis
- (1)
- The appropriate numerical model was built.
- (2)
- According to the fortification intensity and site type of the selected project, the design response spectrum was obtained, which in this study is under Chinese Code GB_51247-2018 [26]. The first nine groups of ground motions were then selected according to the designed response spectrum from the PEER Ground Motion Database [27].
- (3)
- The Latin hypercube sampling (LHS) method was implemented to reduce the correlation between variables. This paper used LHS to extract six groups of three variables.
- (4)
- By running two groups of data analysis and making a comparison of the results, the most vulnerable ground motion direction was identified, and the transverse direction was found to be in the governing ground motion direction.
- (5)
- Each group of models was analyzed with nine groups of ground motion, and the obtained data were extracted and processed.
- (6)
- The damage index of the aqueduct pier and the water stop was proposed and determined.
- (7)
- The fragility curve was drawn, and then the possibility of the exceedance of a limit state under a specific intensity measure was discussed.
3. Numerical Modeling
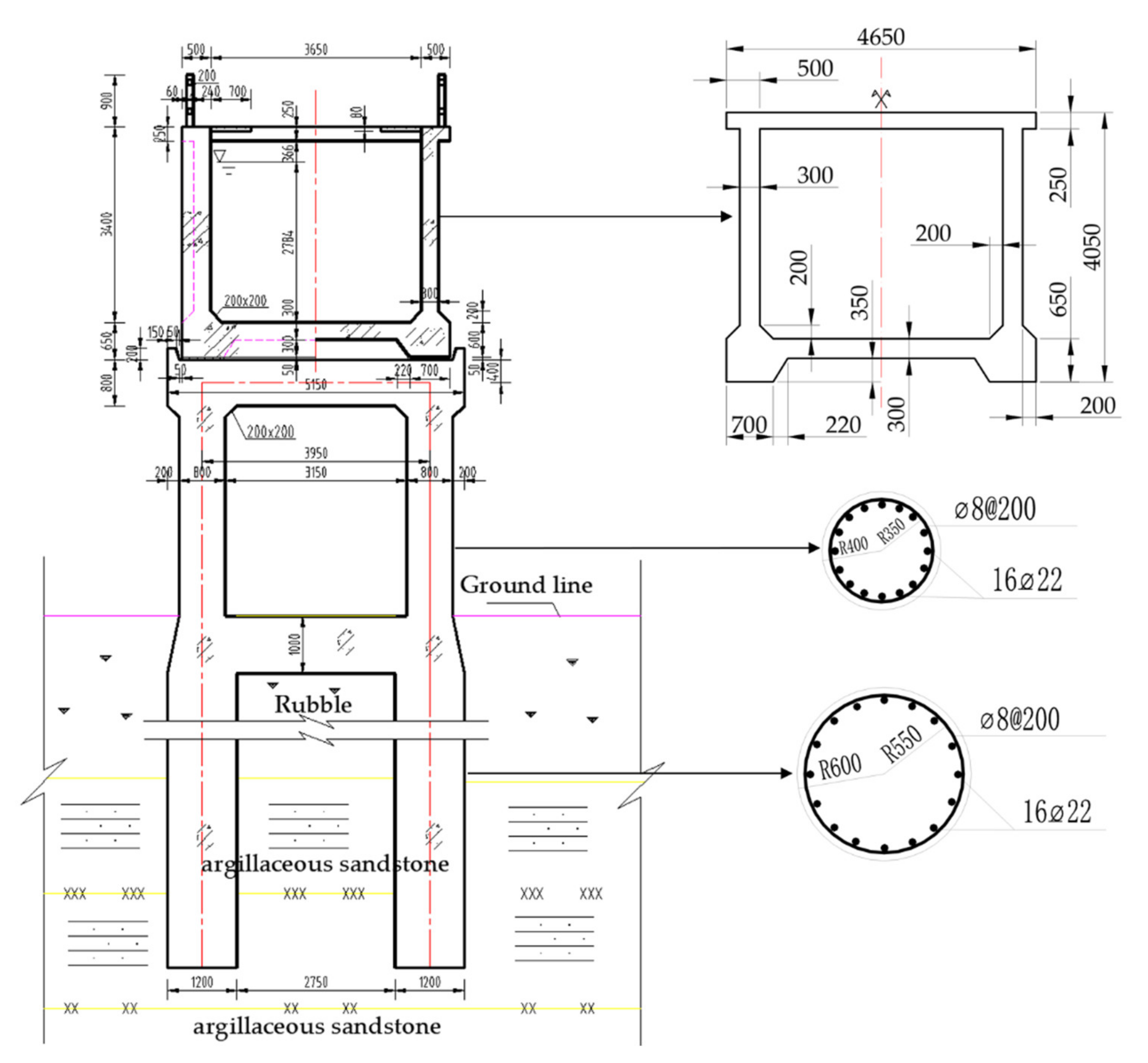
3.1. Introduction of the Aqueduct
3.2. Methods of Modeling and Analysis
3.2.1. Lumped Mass Method
3.2.2. Modeling and Analysis
4. Ground Motions and LHS
4.1. Selection of Ground Motions
4.2. Latin Hypercube Sampling
5. Seismic Fragility Evaluation of Aqueducts
5.1. Definition of the Water Stop’s Limit State
5.2. Definition of the Pier Limit State
5.3. Seismic Fragility Evaluation
6. Discussion
7. Conclusions
- An analytical model incorporating water variant, concrete strength, and bearing performance degradation is proposed, in which a water stop is considered a nonlinear gap element. This analytical model can be largely used for the vulnerability analysis of general aqueducts.
- The damage state of the rubber water stop is proposed based on the rubber pad theory. The damage limit state of the water stop is defined by the tangent of the shear angle. In the range of tanγ < 0.5, the damage status is defined as intact; in the range of 0.5–1, the damage status is defined as slight damage; in the range of 1–2, the damage status is defined as moderate damage; in the range of 2–3, the damage status is defined as extensive damage; and when tanγ exceeds 3, the damage status is defined as complete damage.
- With the increase in ground motion, the probability of the water stop’s leakage risk is significantly increased. However, the water stop has better ductility compared with the pier according to the vulnerability curve shown in Figure 11. It is necessary to evaluate the seismic fragility of old aqueducts with long service history, and seismic rehabilitation could be needed for these aqueducts based on the vulnerability curve.
Author Contributions
Funding
Institutional Review Board Statement
Informed Consent Statement
Data Availability Statement
Conflicts of Interest
References
- Liu, C.; Zheng, H. South-to-north Water Transfer Schemes for China. Int. J. Water Resour. Dev. 2002, 18, 453–471. [Google Scholar] [CrossRef]
- Wu, Y.; Li, L.; Liu, Z.; Chen, X.; Huang, H. Real-Time Control of the Middle Route of South-to-North Water Diversion Project. Water 2021, 13, 97. [Google Scholar] [CrossRef]
- Xiong, Z.H.; Zhang, A.J.; Liu, Y.Q. Structural type and load effects research of large span aqueduct–bridge co-built structure. J. China Inst. Water Resour. Hydropower Res 2021. in press (In Chinese) [Google Scholar] [CrossRef]
- Valeti, B.; Ray-Chaudhuri, S.; Raychowdhury, P. Seismic response of an elevated aqueduct considering hydrodynamic and soil-structure interactions. Int. J. Adv. Struct. Eng. 2016, 8, 53–71. [Google Scholar] [CrossRef][Green Version]
- Housner, G.W. Dynamic pressures on accelerated fluid containers. Bull. Seismol. Soc. Am. 1957, 47, 15–35. [Google Scholar]
- Housner, G.W. The dynamic behavior of water tanks. Bull. Seismol. Soc. Am. 1963, 53, 381–389. [Google Scholar]
- ACI Committee. Seismic Design of Liquid-Containing Concrete Structures (ACI 350.3-01) and Commentary (ACI 350.3 R-01); An ACI Standard; American Concrete Institute: Farmington Hills, MI, USA, 2001. [Google Scholar]
- Virella, J.C.; Godoy, L.A.; Suárez, L.E. Dynamic buckling of anchored steel tanks subjected to horizontal earthquake excitation. J. Constr. Steel Res. 2006, 62, 521–531. [Google Scholar] [CrossRef]
- La Salandra, V.; Wenzel, M.; Bursi, O.S.; Carta, G.; Movchan, A.B. Conception of a 3D metamaterial-based foundation for static and seismic protection of fuel storage tanks. Front. Mater. 2017, 4, 30. [Google Scholar] [CrossRef]
- Terenzi, G.; Rossi, E. Seismic analysis and retrofit of the oldest R/C elevated water tank in Florence. Bull. Earthq. Eng. 2018, 16, 3081–3102. [Google Scholar] [CrossRef]
- Meng, X.; Li, X.; Xu, X.; Zhang, J.; Zhou, W.; Zhou, D. Earthquake Response of Cylindrical Storage Tanks on an Elastic Soil. J. Vib. Eng. Technol. 2019, 7, 433–444. [Google Scholar] [CrossRef]
- D’alessandro, V. Modeling of tank vehicle dynamics by fluid sloshing coupled simulation. Ph.D. Dissertation, Politecnico di Milano, Milan, Lombardia, Italy, March 2012. [Google Scholar]
- Rawat, A.; Mittal, V.; Chakraborty, T.; Matsagar, V. Earthquake induced sloshing and hydrodynamic pressures in rigid liquid storage tanks analyzed by coupled acoustic-structural and Euler-Lagrange methods. Thin Walled Struct. 2019, 134, 333–346. [Google Scholar] [CrossRef]
- Zhao, C.; Chen, J.; Wang, J.; Yu, N.; Xu, Q. Seismic mitigation performance and optimization design of NPP water tank with internal ring baffles under earthquake loads. Nucl. Eng. Des. 2017, 318, 182–201. [Google Scholar] [CrossRef]
- Ozdemir, Z.; Souli, M.; Fahjan, Y.M. Application of nonlinear fluid–structure interaction methods to seismic analysis of anchored and unanchored tanks. Eng. Struct. 2010, 32, 409–423. [Google Scholar] [CrossRef]
- Gibson, R.; Mistry, A.; Go, J.; Lubkowski, Z. Fluid Structure Interaction vs. Lumped Mass Analogue for Storage Tank Seismic Assessment. In Proceedings of the Earthquake Risk and Engineering towards a Resilient World, Cambridg, UK, 9–10 July 2015. [Google Scholar]
- Xiong, Z.H.; Feng, Y.C.; Song, S.L.; Wang, J.B. Optimization Design of Large Span Cable-Stayed Bridge in High Seismic Risk Zone. Appl. Mech. Mater. 2013, 353–356, 2015–2019. [Google Scholar] [CrossRef]
- Phan, H.N.; Paolacci, F.; Corritore, D.; Alessandri, S. Seismic vulnerability analysis of storage tanks for oil and gas industry. Sci. Technol. 2018, 8, 55–65. [Google Scholar] [CrossRef]
- Bakalis, K.; Vamvatsikos, D.; Fragiadakis, M. Seismic risk assessment of liquid storage tanks via a nonlinear surrogate model. Earthq. Eng. Struct. Dyn. 2017, 46, 2851–2868. [Google Scholar] [CrossRef]
- Kanyilmaz, A.; Castiglioni, C.A. Reducing the seismic vulnerability of existing elevated silos by means of base isolation devices. Eng. Struct. 2017, 143, 477–497. [Google Scholar] [CrossRef]
- Tsipianitis, A.; Tsompanakis, Y. Impact of damping modeling on the seismic response of base-isolated liquid storage tanks. Soil Dyn. Earthq. Eng. 2019, 121, 281–292. [Google Scholar] [CrossRef]
- Faggella, M.; LaGuardia, R.; Gigliotti, R.; Morelli, F.; Braga, F.; Salvatore, W.; Papadrakakis, M. Performance-Based Nonlinear response History Analysis Framework for the “Proindustry” Project Case Studies. In Proceedings of the VII European Congress on Computational Methods in Applied Sciences and Engineering (ECCOMAS Congress 2016), Cret Island, Greece, 5–10 June 2016; Volume 3, pp. 5912–5925. [Google Scholar] [CrossRef]
- Prashar, Y.; Irias, X.J.; Shewbridge, S.E. East Bay Municipal Utility Districts Aqueduct System in the Sacramento-San Joaquin Delta: Hazard Evaluation. In Proceedings of the Pipelines Specialty Conference 2009, San Diego, CA, USA, 15–19 August 2009; pp. 1263–1275. [Google Scholar] [CrossRef]
- Rafiee, A.; Vinches, M.; Bohatier, C. Modelling and analysis of the Nîmes arena and the Arles aqueduct subjected to a seismic loading, using the Non-Smooth Contact Dynamics method. Eng. Struct. 2008, 30, 3457–3467. [Google Scholar] [CrossRef]
- Liu, Y.; Dang, K.; Dong, J. Finite element analysis of the aseismicity of a large aqueduct. Soil Dyn. Earthq. Eng. 2017, 94, 102–108. [Google Scholar] [CrossRef]
- Ministry of Water Resources of the People’s Republic of China. Standard for Seismic Design of Hydraulic Structures (GB 51247-2018); Ministry of Housing and Urban-Rural Development of the People’s Republic of China (MOHURD): Beijing, China, 2018.
- The PEER Ground Motion Database. Available online: https://ngawest2.berkeley.edu (accessed on 13 May 2021).
- Pan, Y.; Agrawal, A.K.; Ghosn, M.; Alampalli, S. Seismic Fragility of Multispan Simply Supported Steel Highway Bridges in New York State. I: Bridge Modeling, Parametric Analysis, and Retrofit Design. J. Bridg. Eng. 2010, 15, 448–461. [Google Scholar] [CrossRef]
- Ge, S.J.; Xiong, Z.H.; Zhai, M.G.; Pan, C.P. Research on Seismic Fragility of Medium and Small Sized Concrete Continuous Girder Bridge. J. Highw. Transp. Res. Dev. 2013, 30, 60–65. [Google Scholar] [CrossRef]
- Song, T.H.; Meng, C.Q.; Wang, Y.Q.; Li, Y.M.; Zhong, D.Y. Further Discussion on the Necessity of the Construction of Daliushu Water Control Project. Yellow River 2020, 42, 42–47. [Google Scholar] [CrossRef]
- Zhang, J. Bridge Bearing, 3rd ed.; China Railway Publishing House: Beijing, China, 2010. [Google Scholar]
- Cornell, C.A.; Jalayer, F.; Hamburger, R.O.; Foutch, D.A. Probabilistic Basis for 2000 SAC Federal Emergency Management Agency Steel Moment Frame Guidelines. J. Struct. Eng. 2002, 128, 526–533. [Google Scholar] [CrossRef]
- Gardoni, P.; Mosalam, K.M.; Der Kiureghian, A. Probabilistic seismic demand models and fragility estimates for RC bridges. J. Earthq. Eng. 2003, 7, 79–106. [Google Scholar] [CrossRef]












| No. | Earthquake | Station | Year | Magnitude | Horizontal Acc. |
|---|---|---|---|---|---|
| 1 | Imperial Valley-02 | El Centro Array #9 | 1940 | 6.95 | RSN6_IMPVALL.I_I-ELC180 |
| 2 | Kern County | Santa Barbara Courthouse | 1952 | 7.36 | RSN14_KERN_SBA132 |
| 3 | Kern County | Taft Lincoln School | 1952 | 7.36 | RSN15_KERN_TAF021 |
| 4 | Northern Calif-03 | Ferndale City Hall | 1954 | 6.5 | RSN20_NCALIF.FH_H-FRN044 |
| 5 | San Fernando | LA–Hollywood Stor FF | 1971 | 6.61 | RSN68_SFERN_PEL090 |
| 6 | San Fernando | Lake Hughes #1 | 1971 | 6.61 | RSN70_SFERN_L01021 |
| 7 | San Fernando | Palmdale Fire Station | 1971 | 6.61 | RSN78_SFERN_PDL120 |
| 8 | San Fernando | Pasadena–CIT Athenaeum | 1971 | 6.61 | RSN79_SFERN_PAS090 |
| 9 | Managua_Nicaragua-02 | Managua_ ESSO | 1972 | 5.2 | RSN96_MANAGUA_B-ESO180 |
| Variable | Probability Distribution | μ | σ | Range of Variations |
|---|---|---|---|---|
| Water weight | Normal distribution | 56.6 kN/m | 14.1 kN/m | 0.2–113 kN |
| ƒ′c | Normal distribution | 20.1 MPa | 2.5 MPa | 15–25 MPa |
| Bearing friction coefficient | Uniform distribution | 0.02–0.05 |
| Group No. | Water Weight (kN) | ƒ′c (MPa) | Friction Coefficient of Bearing |
|---|---|---|---|
| 1 | 58.97 | 20.7 | 0.0468 |
| 2 | 22.1 | 22.3 | 0.0492 |
| 3 | 83.9 | 16.5 | 0.0395 |
| 4 | 48.9 | 23.9 | 0.0300 |
| 5 | 39.9 | 18.4 | 0.0356 |
| 6 | 86.2 | 20.3 | 0.0221 |
| Ground Motion No. | 1 | 2 | 3 | 4 | 5 | 6 | 7 | 8 | 9 |
|---|---|---|---|---|---|---|---|---|---|
| Response acceleration, gmax | 0.80 | 0.35 | 0.60 | 0.48 | 0.41 | 0.41 | 0.38 | 0.41 | 0.80 |
| Maximum acceleration, g | 0.28 | 0.13 | 0.16 | 0.16 | 0.22 | 0.15 | 0.11 | 0.11 | 0.22 |
| AM acceleration IDA, g | 0.39 | 0.32 | 0.48 | 0.66 | 0.75 | 0.77 |
| Damage Limit State | Damage Index |
|---|---|
| Intact | tanγ < 0.5 |
| Slight damage | 0.5 ≤ tanγ < 1 |
| Moderate damage | 1 ≤ tanγ < 2 |
| Extensive damage | 2 ≤ tanγ < 3 |
| Complete damage | tanγ ≥ 3 |
| Damage Limit State | Damage Index |
|---|---|
| Intact | d0 < 0.0246% |
| Slight damage | 0.0246% ≤ d0 < 0.084% |
| Moderate damage | 0.084% ≤ d0 < 0.09% |
| Extensive damage | 0.09% ≤ d0 < 0.113% |
| Complete damage | d0 ≥ 0.113% |
Publisher’s Note: MDPI stays neutral with regard to jurisdictional claims in published maps and institutional affiliations. |
© 2021 by the authors. Licensee MDPI, Basel, Switzerland. This article is an open access article distributed under the terms and conditions of the Creative Commons Attribution (CC BY) license (https://creativecommons.org/licenses/by/4.0/).
Share and Cite
Xiong, Z.; Liu, C.; Zhang, A.; Zhu, H.; Li, J. Seismic Fragility Evaluation of Simply Supported Aqueduct Accounting for Water Stop’s Leakage Risk. Water 2021, 13, 1404. https://doi.org/10.3390/w13101404
Xiong Z, Liu C, Zhang A, Zhu H, Li J. Seismic Fragility Evaluation of Simply Supported Aqueduct Accounting for Water Stop’s Leakage Risk. Water. 2021; 13(10):1404. https://doi.org/10.3390/w13101404
Chicago/Turabian StyleXiong, Zhihua, Chen Liu, Aijun Zhang, Houda Zhu, and Jiawen Li. 2021. "Seismic Fragility Evaluation of Simply Supported Aqueduct Accounting for Water Stop’s Leakage Risk" Water 13, no. 10: 1404. https://doi.org/10.3390/w13101404
APA StyleXiong, Z., Liu, C., Zhang, A., Zhu, H., & Li, J. (2021). Seismic Fragility Evaluation of Simply Supported Aqueduct Accounting for Water Stop’s Leakage Risk. Water, 13(10), 1404. https://doi.org/10.3390/w13101404

