Experience in the Application of Hydrocarbon Optical Studies in Oil Field Development
Abstract
1. Introduction
- -
- -
2. Theoretical Foundations of Optical Oil Research
2.1. Polarimetric Exploring
2.2. Refractometric Analysis
2.3. Infrared Spectrometry (IR)
2.4. Luminescence-Bituminological Analysis (LBA)
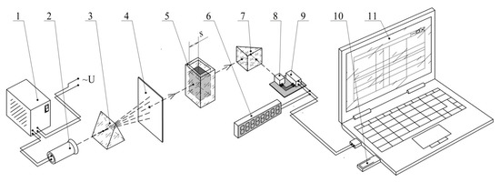
2.5. Overview of Optical Oil Surveys in the Area of the UV-Visible-NIR Spectrum
- D—optical density of the surveyed solution, non-dimensional value;
- C—solution concentration, unit fraction;
- l—mud layer thickness, cm.
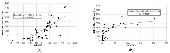
3. Current State of Optical Oil Research in the Area of UV-Visible-NIR Part of Spectrum
4. Application Prospects of Downhole Devices to Determine Optical Oil Properties
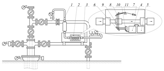
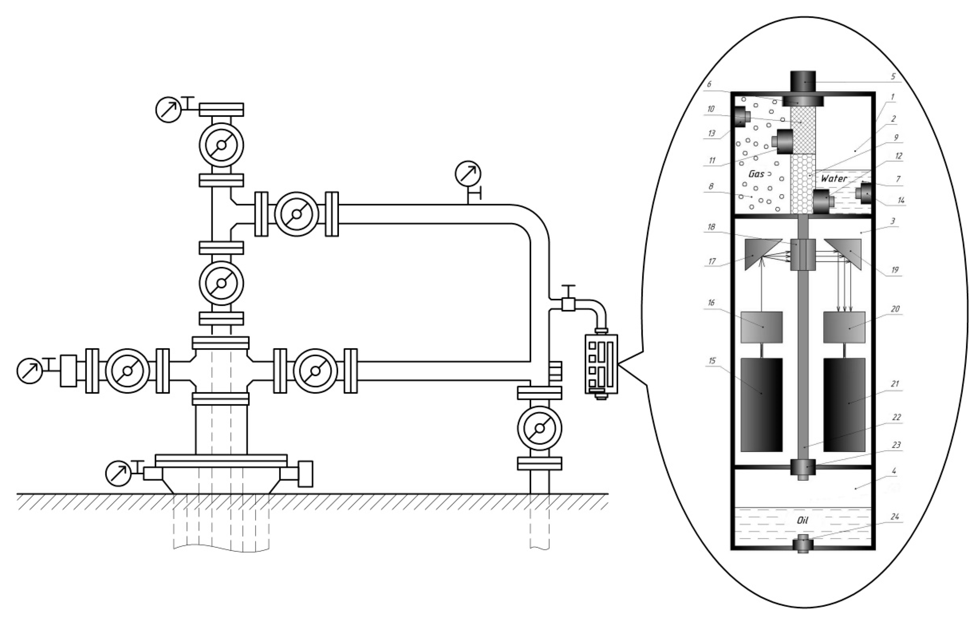
5. Substantiation of Devices for the Evaluation of Optical Oil Properties at the Wellhead
- -
- Fast simultaneous recording and processing of well-process parameters in real time and space with a resolution of 1 ms;
- -
- Autonomy (continuous work for at least 1 year), compact (dimensions: base party—up to 15 cm, length—up to 40 cm), low weight (up to 2 kg), enabling operation by one specialist;
- -
- Mobility can be used in any production conditions, which allows it to be used in several wells for a short time;
- -
- There is no need to keep organized measuring point at the wellhead of oil producing well and study oil parameters at the facilities, e.g., wells commissioned in production and where stationary measurement equipment is disadvantageous;
- -
- Wide range of UV-visible-NIR radiation: from 190 to 1100 nm;
- -
- Thickness of the surveyed sample: up to 250 microns;
- -
- Number of preserved measurements, at least 1 million;
- -
- Operating range of pressures (in oil wells): at least 5 MPa;
- -
- Operating temperature range: −40 °C to +100 °C;
- -
- Green and meet all environmental protection conditions.
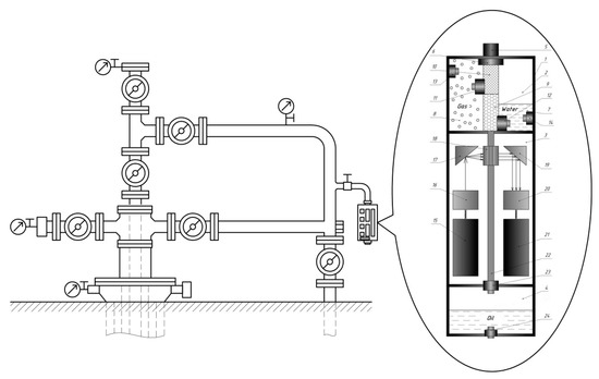
5.1. Stationary Wellhead Device
5.2. Mobile Wellhead Unit
- -
- Presence of valve-reducer mechanism (batcher) 6 and valve units 11, 12 to automatically control the pressure and flow rate of the fluid supplied to the device;
- -
- Absence of a pressure hose.
6. Conclusions
7. Patents
- Mobile device for automatic measurement of optical properties of oil at wellhead of oil producing wells. Available online: https://new.fips.ru/Archive/PAT/2012FULL/2012.12.27/DOC/RUNWU1/000/000/000/123/455/DOCUMENT.PDF (accessed on 31 December 2021).
- Well device for measuring optical oil properties at wellhead. Available online: https://new.fips.ru/Archive/PAT/2012FULL/2012.06.10/DOC/RUNWU1/000/000/000/116/893/DOCUMENT.PDF (accessed on 31 December 2021).
Author Contributions
Funding
Institutional Review Board Statement
Informed Consent Statement
Data Availability Statement
Conflicts of Interest
References
- Prischepa, O.M.; Nefedov, Y.V.; Kochneva, O.E. Raw material base of hard-to-extract oil reserves of Russia. Period. Tche Quim. 2020, 17, 915–924. [Google Scholar] [CrossRef]
- Cherepovitsyn, A.; Metkin, D.; Gladilin, A. An algorithm of management decision-making regarding the feasibility of investing in geological studies of forecasted hydrocarbon resources. Resources 2018, 7, 47. [Google Scholar] [CrossRef]
- Rogachev, M.K.; Mukhametshin, V.V.; Kuleshova, L.S. Improving the efficiency of using resource base of liquid hydrocarbons in Jurassic deposits of Western Siberia. J. Min. Inst. 2019, 240, 711–715. [Google Scholar] [CrossRef]
- Prischepa, O.M.; Nefedov, Y.V.; Ibatullin, A.H. Assessment of the hydrocarbon potential of the domanik deposits of the tpp on the basis of quantitative models of generation and assessment of the saturation of the pore space. In Proceedings of the EAGE/SPE Workshop on Shale Science 2021: New Challenges, Moscow, Russia, 5–6 April 2021; pp. 1–5. [Google Scholar] [CrossRef]
- Galkin, V.I.; Ponomareva, I.N.; Martyushev, D.A. Prediction of reservoir pressure and study of its behavior in the development of oil fields based on the construction of multilevel multidimensional probabilistic-statistical models. Georesursy 2021, 23, 73–82. [Google Scholar] [CrossRef]
- Rules for Monitoring Development of Oil and Gas Fields by Geophysical Methods. Version 1.0. 2002, p. 86. Available online: http://tes72.com/wp-content/uploads/2016/12/Reglament-GIS.pdf (accessed on 31 December 2021).
- Matthews, M.D. Migration of petroleum. In AAPG Treatise of Petroleum Geology: Exploring for Oil and Gas Traps; AAPG: Tulsa, OK, USA, 1999; pp. 1–38. [Google Scholar]
- Buckley, S.E.; Leverett, M. Mechanism of fluid displacement in sands. Trans. AIME 1942, 146, 107–116. [Google Scholar] [CrossRef]
- Russell, T.W.F.; Hodgson, G.W.; Govier, G.W. Horizontal pipeline flow of mixtures of oil and water. Can. J. Chem. Eng. 1959, 37, 9–17. [Google Scholar] [CrossRef]
- Herschel, W.H.; Bulkley, R. Konsistenzmessungen von gummi-benzollösungen. Kolloid Z. 1926, 39, 291–300. [Google Scholar] [CrossRef]
- Khormali, A.; Sharifov, A.R.; Torba, D.I. The control of asphaltene precipitation in oil wells. Pet. Sci. Technol. 2018, 36, 443–449. [Google Scholar] [CrossRef]
- Khaibullina, K.S.; Korobov, G.Y.; Lekomtsev, A.V. Development of an asphalt-resin-paraffin deposits inhibitor and substantiation of the technological parameters of its injection into the bottom-hole formation zone. Period. Tche Quim. 2020, 17, 769–781. [Google Scholar] [CrossRef]
- Rogachev, M.K.; Aleksandrov, A.N. Justification of a comprehensive technology for preventing the formation of asphalt-resin-paraffin deposits during the production of highlyparaffinic oil by electric submersible pumps from multiformation deposits. J. Min. Inst. 2021, 250, 596–605. [Google Scholar] [CrossRef]
- Nikitin, M.; Saychenko, L. The rheological properties of abnormally viscous oil. Pet. Sci. Technol. 2018, 2, 136–140. [Google Scholar] [CrossRef]
- Mardashov, D.V.; Bondarenko, A.V.; Raupov, I.R. Design procedure of technological parameters of non-Newtonian fluids injection into an oil well during workover operation. J. Min. Inst. 2022, 254, 168–175. [Google Scholar] [CrossRef]
- Rybakov, A.A.; Guskova, I.A.; Gabdrakhmanov, A.T. Monitoring EOR and Well Stimulation Techniques by Oil Optical Properties Measurement. In Proceedings of the SPE Russian Oil and Gas Exploration & Production Technical Conference and Exhibition, Moscow, Russia, 14–16 October 2014. [Google Scholar] [CrossRef]
- Galkin, V.I.; Koltyrin, A.N. Investigation of probabilistic models for forecasting the efficiency of proppant hydraulic fracturing technology. J. Min. Inst. 2020, 246, 650–659. [Google Scholar] [CrossRef]
- Islamov, S.; Grigoriev, A.; Beloglazov, I.; Savchenkov, S.; Gudmestad, O.T. Research risk factors in monitoring well drilling—A case study using machine learning methods. Symmetry 2021, 13, 1293. [Google Scholar] [CrossRef]
- Bryant, I.; Chen, M.; Raghuraman, B.; Schroeder, R.J.; Supp, M.G.; Navarro, J.; Raw, I.; E Smith, J.; Scaggs, M. Real-Time Monitoring and Control of Water Influx to a Horizontal Well Using Advanced Completion Equipped with Permanent Sensors. SPE Drill. Complet. 2004, 19, 253–264. [Google Scholar] [CrossRef]
- Galkin, S.V.; Krivoshchekov, S.N.; Kozyrev, N.D.; Kochnev, A.A.; Mengaliev, A.G. Accounting of geomechanical layer properties in multi-layer oil field development. J. Min. Inst. 2020, 244, 408–417. [Google Scholar] [CrossRef]
- Grachev, S.I.; Korotenko, V.A.; Kushakova, N.P. Study on influence of two-phase filtration transformation on formation of zones of undeveloped oil reserves. J. Min. Inst. 2020, 241, 68–82. [Google Scholar] [CrossRef]
- Yermekov, R.I.; Merkulov, V.P.; Chernova, O.S.; Korovin, M.O. Features of permeability anisotropy accounting in the hydrodynamic model. J. Min. Inst. 2020, 243, 299–304. [Google Scholar] [CrossRef]
- RD 153-39.0-109-01; Methodology Guidelines for Integration and Phasing of Geophysical, Hydrodynamic and Geochemical Surveys of Oil and Oil and Gas Fields. 2002; p. 81. Available online: http://gostrf.com/normadata/1/4293790/4293790923.pdf (accessed on 31 December 2021).
- Qi, H.; Yang, L.; Hu, X.; Li, N.; Wang, Q.; Wu, G. Optical Properties of Oilfield Wastewater and its Application in Measuring Oil Content. Appl. Spectrosc. 2018, 72, 1252–1257. [Google Scholar] [CrossRef]
- Fundamentals of Formation Testing. Schlumberger. 2006, p. 226. Available online: https://www.slb.ru/upload/iblock/8b3/ds_catalogue_2017_upd.pdf (accessed on 31 December 2021).
- Mullins, O.C.; Sheu, E.Y.; Hammami, A.; Marshall, A.G. Asphaltenes, Heavy Oils, and Petroleomics; Springer: Berlin/Heidelberg, Germany, 2007; p. 677. [Google Scholar] [CrossRef]
- Akbarzadeh, K.; Hammami, A.; Kharrat, A.; Zhang, D.; Allenson, S.; Creek, J.; Kabir, S.; Jamaluddin, A.J.; Alan, G.; Marshall, R.P.; et al. Asphaltenes—Problematic but Rich in Potential. Oilfield Rev. 2007, 19, 22–43. [Google Scholar]
- Ma, H.; Yu, C.; Dong, C.; Fu, Y.; Shuia, K.; Sun, H.; Zhu, X. Review of intelligent well technology. Petroleum 2019, 6, 226–233. [Google Scholar] [CrossRef]
- Glumov, I.F.; Gilmanshin, A.F. Provisional Instruction on Application of Photocolorimetric Produced Oil for Solving Geological and Field Problems; TATNII: Bugulma, Russia, 1965; 37p. [Google Scholar]
- Devlikamov, V.V.; Khabibullin, Z.A.; Kabirov, M.M. Abnormal Oil; Nedra: Moscow, Russia, 1975; p. 168. [Google Scholar]
- Malofiyev, V.V. Geological Substantiation for Improving the Efficiency of Development of Fields of High-Viscous Oils and Natural Bitumen of Tatarstan. Ph.D. Thesis, National University of Oil and Gas “Gubkin University”, Moscow, Russia, 2011; p. 24. [Google Scholar]
- Gabdrakhmanov, A.T. Monitoring of Formation Stimulation Processes Using an Integrated Method for Analysis of Visible Optical Absorption of Oil Samples. Ph.D. Thesis, TatNIPIneft R&D Institute, Bugulma, Russia, 2011; p. 25. [Google Scholar]
- Shcherbakov, G.Y. Justification of Removal of Asphalts, Resins, and Paraffins in Wells Using Solvent and Optical Method of Process Monitoring. Ph.D. Thesis, Saint-Petersburg Mining University, Saint Petersburg, Russia, 2015; p. 113. [Google Scholar]
- Gilmanshin, A.F. Nature and Reasons of Variation of Cla Oil Values at the Romashkin and Bavlin Fields, 6th ed.; TATNII Work: Atlanta, GA, USA, 1964; pp. 281–291. [Google Scholar]
- Lekomtsev, A.V.; Ilyushin, P.Y.; Martyushev, D.A. Experience of implementing an intensifying Device on the Developed Mobile Well Production Treatment Unit. Chem. Pet. Eng. 2018, 54, 213–219. [Google Scholar] [CrossRef]
- Saychenko, L.; Tananykhin, D.; Ashena, R. Prevention of scale in the downhole equipment and productive reservoir during the oil well operation. J. Appl. Eng. Sci. 2021, 19, 363–368. [Google Scholar] [CrossRef]
- Dmitrievsky, A.N.; Klabunovsky, E.I. Study of the optical activity of oil components of various fields. Oilfield 2011, 88, 94–97. [Google Scholar]
- Biot, M. Mémoire sur la polarisation circulaire et sur ses applications à la chimie organique, par. Mémoires de l’Académie Royale des Sciences de l’Institut de France 1835, 13, 39–175. [Google Scholar]
- Fenske, M.R.; Carnahan, F.L.; Breston, J.N.; Caser, A.H.; Rescorla, A.R. Optical Rotation of Petroleum Fractions. Ind. Eng. Chem. 1942, 34, 638–646. [Google Scholar] [CrossRef]
- Amosov, G.A. Optical Rotation of Oil: Geological Digest 1, Wnigri Works, Formation 83; Gostopltehizdat: Moscow, Russia, 1955; p. 26. [Google Scholar]
- Rosenfield, W.D. Optical rotation of petroleums. J. Am. Oil Chem. Soc. 1967, 44, 703–707. [Google Scholar] [CrossRef]
- Devlikamov, V.V.; Markhasin, I.L.; Babalian, G.A. Optical Methods for Monitoring Development of Oil Fields; Nedra: Moscow, Russia, 1970; p. 160. [Google Scholar]
- Philippi, G.T. On the depth, time and mechanism of original the heavy to mediumgravity naphtenic crude oils . Geochim. Cosmochim. Acta 1977, 41, 33–52. [Google Scholar] [CrossRef]
- Lengfield, F.; O’Neill, E. A study of California petroleum: Preliminary notice. Am. Chem. J. 1893, 15, 19–21. [Google Scholar]
- O’Neill, E. Petroleum in California. J. Am. Chem. Soc. 1903, 25, 699–711. [Google Scholar] [CrossRef][Green Version]
- Rogers, G.S. The Sunset-Midway Oil Field, California, Part II, Geochemical Relations of the Oil, Gas, and Water; US Government Printing Office: Washington, DC, USA, 1919. [Google Scholar] [CrossRef]
- Doolittle, A.K.; Peterson, R.H. Preparation and Physical Properties of a Series of n-Alkanes. J. Am. Chem. Soc. 1951, 73, 2145–2151. [Google Scholar] [CrossRef]
- Chambers, G.; Ubbelohde, A.R. The effect of molecular structure of paraffins on relative chlorination rates. J. Chem. Soc. 1955, 285. [Google Scholar] [CrossRef]
- Epstein, M.B.; Willingham, C.B.; Mair, B.J.; Rossini, F.D. Hydrocarbons in 126° to 132 °C. Fraction of Petroleum. Anal. Chem. 1956, 28, 1924–1927. [Google Scholar] [CrossRef]
- Seifert, W.K.; Teeter, R.M.; Howells, W.G.; Cantow, M.J.R. Analysis of crude oil carboxylic acids after conversion to their corresponding hydrocarbons. Anal. Chem. 1969, 41, 1638–1647. [Google Scholar] [CrossRef]
- Mckay, J.F.; Amend, P.J.; Cogswell, T.E.; Harnsberger, P.M.; Erickson, R.B.; Latham, D.R. Petroleum Asphaltenes: Chemistry and Composition. Adv. Chem. 1978, 170, 128–142. [Google Scholar] [CrossRef]
- Filatov, V.M. Development of Chemometric Methods of Rapid Analysis of the Quality and Composition of oil Systems Using the Near Infrared Spectroscopy Method. Ph.D. Thesis, Gubkin National University of Oil and Gas, Moscow, Russia, 2010; p. 28. [Google Scholar]
- Yen, T.F.; Wu, W.H.; Chilingar, G.V. A Study of the Structure of Petroleum Asphaltenes and Related Substances by Infrared Spectroscopy. Energy Sources 1984, 7, 203–235. [Google Scholar] [CrossRef]
- Simard, R.G.; Hasegawa, I.; Bandaruk, W.; Headington, C.E. Infrared Spectrophotometric Determination of Oil and Phenols in Water. Anal. Chem. 1951, 23, 1384–1387. [Google Scholar] [CrossRef]
- Ivanova, L.V.; Safieva, R.Z.; Koshelev, V.N. Spectroscopy in Oil and Petroleum Products Analysis. Bashkir Univ. Gaz. 2008, 13, 869–874. [Google Scholar]
- Pyagay, I.N.; Shaidulina, A.A.; Konoplin, R.R.; Artyushevskiy, D.I.; Gorshneva, E.A.; Sutyaginsky, M.A. Production of Amorphous Silicon Dioxide Derived from Aluminum Fluoride Industrial Waste and Consideration of the Possibility of Its Use as Al2O3-SiO2 Catalyst Supports. Catalysts 2022, 12, 162. [Google Scholar] [CrossRef]
- Crombie, A.; Halford, F.; Hashem, M.; McNeil, R.; Thomas, E.C.; Melbourne, G.; Mullins, O.C. Innovations in wireline fluid sampling. Oilfield Rev. 1998, 10, 26–41. [Google Scholar]
- Mullins, O.C.; Rodgers, R.P.; Weinheber, P.; Klein, G.C.; Venkataramanan, L.; Andrews, A.B.; Marshall, A.G. Oil reservoir characterization via crude oil analysis by downhole fluid analysis in oil wells with visible—Near-infrared spectroscopy and by laboratory analysis with electrospray ionization Fourier transform ion cyclotron resonance mass spectrometry. Energy Fuels 2006, 20, 2448–2456. [Google Scholar] [CrossRef]
- Aske, N.; Kallevik, H.; Sjöblom, J. Water-in-crude oil emulsion stability studied by critical electric field measurements. Correlation to physico-chemical parameters and near-infrared spectroscopy. J. Pet. Sci. Eng. 2002, 36, 1–17. [Google Scholar] [CrossRef]
- Lukoyanov, E.E. Well Studies during Drilling; Nedra: Moscow, Russia, 1979; p. 248. [Google Scholar]
- Witherspoon, P.A.; Romey, W.D. Geochemical Methods of Prospercting and Exploration for Petroleum and Natural Gas; University of California Press: Berkeley, CA, USA, 1959. [Google Scholar]
- Florovskaya, V.N. Luminescent-Bituminological Analysis in Oil Geology; Publishing Agency of Moscow University: Moscow, Russia, 1957; p. 293. [Google Scholar]
- Olli, I.A. Bitumen Content of Paleozoic Rocks of the South Part of the West Siberian Lowland Based on Data of Luminescence Microscopy. Geology 1973, 11, 234–237. [Google Scholar]
- Shmays, I.I.; Belov, Y.V. Features of the Distribution of Disseminated Bitumens in Sediments of the Ural-Volga Region. Geology 1964, 8, 235–238. [Google Scholar]
- Drushel, H.V.; Sommers, A.L. Combination of Gas Chromatography with Fluorescence and Phosphorescence in Analysis of Petroleum Fractions. Anal. Chem. 1966, 38, 10–19. [Google Scholar] [CrossRef]
- Berezin, V.M. New Methods of Determining Oil Saturation of Rock Samples: Works of Ufnii, Release 2; Gostoptechizdat: Moscow, Russia, 1957. [Google Scholar]
- Lyutin, A.F. Study of Asphaltenes Effect on the Processes Occurring When Oil and Water Filtration in Porous Media is Observed: Works Vniineft, Release. 37; Gostoptechizdat: Moscow, Russia, 1962. [Google Scholar]
- Abezgaus, A.M.; Terzi, V.P. Equipment and method of identification of asphalts of formation oil. Oil Gas Equip. News Oil Field Bus. Ser. 1961, 2, 29–34. [Google Scholar]
- Markhasin, I.L.; Abezgaus, I.M.; Blazhevich, F.D. Question of possibility of impact of gas saturation on oil content in it, asphaltenes. Sci. Technol. Cent. (STC) Oil Field Bus. Ser. Vniioeng 1966, 6, 18–22. [Google Scholar]
- Shock, D.A.; Sudbury, J.D.; Crockett, J.J. Studies of the mechanism of paraffin deposition and its control. J. Pet. Technol. 1955, 7, 23–28. [Google Scholar] [CrossRef]
- Haskett, C.E.; Tartera, M. A Practical Solution to the Problem of Asphaltene Deposits-Hassi Messaoud Field, Algeria. J. Pet. Technol. 1965, 17, 387–391. [Google Scholar] [CrossRef]
- Ferraro, J.R.; Basile, L.J. Spectroscopy at high pressures—Status report and update of instrumental techniques. Appl. Spectrosc. 1974, 28, 505–517. [Google Scholar] [CrossRef]
- Glumov, I.F. Study of Enhanced Oil Recovery in the Romashkin Field Conditions. Ph.D. Thesis, MINH and GP, Moscow, Russia, 1966; p. 12. [Google Scholar]
- Glumov, I.F.; Gilmanshin, A.F. Use of photocolorimetry of oil for solution of separate geological and field tasks. In Theoretical and Experimental Studies of Oil Field Development; Kazan State University: Kazan, Russia, 1961; p. 154. [Google Scholar]
- Gilmanshin, A.F. Some Regularity of Spatial Variation of Coefficient Oil Sequestration Change within the Tassr Fields and Probability of Using Them for Solving Geological and Field Problems. Ph.D. Thesis, VNII, Moscow, Russia, 1965; p. 17. [Google Scholar]
- Gilmanshin, A.F. Possibility to apply oil-colorimetric to determine the velocity of horizontal oil movement in a single-reservoir deposit. In Oilfield Business Series “Oil Equipment News”; National University of Oil and Gas “Gubkin University”: Moscow, Russia, 1962; Volume 12, pp. 7–10. [Google Scholar]
- Glumov, I.F.; Gilmanshin, A.F. Application of Oil-Colorimetric Oil in Oil Production Well: Experience Development of Oil and Gas Fields: All-Union Meeting for the Oil and Gas Fields Development; Gostoptechizdat: Moscow, Russia, 1963; p. 490. [Google Scholar]
- Panteleev, A.S.; Gileva, N.M.; Grishin, E.S. Solving some geological and field tasks using photocolorimetric studies at Orenburg region. Oil Ind. 1964, 4, 52–56. [Google Scholar]
- Panteleev, A.S. Production Geological Studies of Oil Deposits of Turonian Stage of Bolchekinelskogo Vala in Connection with their Development (Orenburg Region). Ph.D. Thesis, MINH and GP, Moscow, Russia, 1965. [Google Scholar]
- Bykov, V.N.; Altyntseva, T.G. Using Oil-Colorimetric Oil to Solve Some Geological and Field Problems in the Perm Region: Works of the Perm Branch of Giprovostokneft. Release 1; Giprovostokneft: Moscow, Russia, 1965. [Google Scholar]
- Devlikamov, V.V. Change of light absorption factor of the Mancharov field in the course of development. Oil Field Eng. 1965, 12, 9–12. [Google Scholar]
- Devlikamov, V.V.; Dunuyshkin, I.I.; Shagiev, R.G. Photocolorimetric of the Mancharov Oil Field; Oil and Gas Series; NPU Chekmagushneft University: Fremont, CA, USA, 1964. [Google Scholar]
- Devlikamov, V.V. Changing light absorption of oil in the carbonosoic strata of the Mancharov oil and gas fields of Bashkortostan. Oil Gas. 1965, 10, 35–40. [Google Scholar]
- Devlikamov, V.V. Distribution of Oil Light Absorption Factor in the Carbonosoic Strata of the Mancharov Field: Works of UNI. Release 4; UNI: Moscow, Russia, 1967. [Google Scholar]
- Devlikamov, V.V.; Markhasin, I.L. Determining Oil Inflow from Jointly Operating Reservoirs: Works of UNI. Release 4; UNI: Moscow, Russia, 1967. [Google Scholar]
- Groenzin, H.; Mullins, O.C. Petroleum asphaltene molecular size and structure. Abstr. Pap. Am. Chem. Soc. 1999, 218, 729–732. [Google Scholar] [CrossRef]
- Glumov, I.F.; Slesareva, V.V.; Ibatullin, R.R.; Yakimov, A.S. Method for Evaluation of Relative Oil Flow Rates in Jointly Operated Oil Reservoirs. Available online: https://new.fips.ru/registers-doc-view/fips_servlet?DB=RUPAT&DocNumber=2172403&TypeFile=html (accessed on 31 December 2021).
- Ibatyllin, R.R.; Ibragimov, N.G.; Takhautdinov, S.F.; Khisamov, R.S. Enhansed Oil Recovery during Late Stage Oil Field Development: Theory, Methods, Practice; LLC TechInpit: Moscow, Russia, 2005; pp. 26–68. [Google Scholar]
- Mullins, O.C.; Daigle, T.; Crowell, C.; Groenzin, H.; Joshi, N.B. Gas-Oil Ratio of Live Crude Oils Determined by Near-Infrared Spectroscopy. Appl. Spectrosc. 2001, 55, 197–201. [Google Scholar] [CrossRef]
- Mullins, O.C.; Joshi, N.B.; Groenzin, H.; Daigle, T.; Crowell, C.; Joseph, M.T.; Jamaluddin, A. Linearity of Near-Infrared Spectra of Alkanes. Appl. Spectrosc. 2000, 54, 624–629. [Google Scholar] [CrossRef]
- Joshi, N.B.; Mullins, O.C.; Jamaluddin, A.; Creek, J.; McFadden, J. Asphaltene Precipitation from Live Crude Oil. Energy Fuels 2001, 15, 979–986. [Google Scholar] [CrossRef]
- Fujisawa, G.; van Agthoven, M.A.; Jenet, F.; Rabbito, P.A.; Mullins, O.C. Near-Infrared Compositional Analysis of Gas and Condensate Reservoir Fluids at Elevated Pressures and Temperatures. Appl. Spectrosc. 2002, 56, 1615–1620. [Google Scholar] [CrossRef]
- Betancourt, S.S.; Bracey, J.; Gustavson, G.; Mathews, S.G.; Mullins, O.C. Chain of Custody for Samples of Live Crude Oil Using Visible-Near-Infrared Spectroscopy. Appl. Spectrosc. 2006, 60, 1482–1487. [Google Scholar] [CrossRef]
- Evdokimov, I.N.; Losev, A.P. Potential of Optical Research Methods in Oil Fields Development Monitoring Systems; Press Oil and Gas: Moscow, Russia, 2007; p. 228. [Google Scholar]
- Evdokimov, I.N.; Losev, A.P. Application of UV-visible adsorption spectroscopy for natural oil. Oil Gas Bus. 2007, 1–25. Available online: http://ogbus.ru/files/ogbus/authors/Evdokimov/Evdokimov_1.pdf (accessed on 31 December 2021).
- Burkhanov, R.N. Method of Well Surveying Using Optical Methods to Determine the Amount of Remaining Recoverable Reserves of the Field under Development. Available online: https://new.fips.ru/Archive/PAT/2013FULL/2013.10.27/DOC/RUNWC1/000/000/002/496/982/DOCUMENT.PDF (accessed on 31 December 2021).
- Makhmutov, A.A. Intensification of Reserves Recovery Increase of Target Interventions by Updating the Reservoir Properties Distribution. Ph.D. Thesis, TatNIPIneft R&D Institute, Bugulma, Russia, 2015; p. 110. [Google Scholar]
- Rybakov, A.A. Study of Formation Fracturing Impact on The Optical Properties of Oil Produced (Example of The Devonian Deposits of The Romashkin Field). Ph.D. Thesis, Almetyevsk State Oil Institute, Almetyevsk, Russia, 2019; p. 163. [Google Scholar]
- Mardashov, D.; Duryagin, V.; Islamov, S. Technology for improving the efficiency of fractured reservoir development using gel-forming compositions. Energies 2021, 14, 8254. [Google Scholar] [CrossRef]
- Burkhanov, R.N.; Pharrahov, I.M.; Hannanov, M.T. Changing optical properties of oil produced at polymer flooding of Arkhangelsk field. Oil Gas Bus. 2010, 3, 66–69. [Google Scholar]
- Raupov, I.R. Technology of Intrareservoir Water Shutoff of Terrigenous Particles Using Polymer Compositions and Optical Method of Process Monitoring. Ph.D. Thesis, Saint-Petersburg Mining University, Saint-Petersburg, Russia, 2016; p. 143. [Google Scholar]
- Raupov, I.R.; Kondrasheva, N.K.; Burkhanov, R.N. Development of mobile devices for measuring optical properties of oil by solving geological and field problems. Oil Gas Bus. 2014, 3, 17–32. [Google Scholar] [CrossRef]
- Brost, D.F.; Rexach, F.M.; Winslow, G.A. Optical Methods for Monitoring Treating Chemicals in Oilfield Water Systems. In Proceedings of the SPE Annual Technical Conference and Exhibition 1991, Dallas, TX, USA, 6–9 October 1991. [Google Scholar] [CrossRef]
- Steffens, J.; Landulfo, E.; Courrol, L.; Guardani, R. Application of Fluorescence to the Study of Crude Petroleum. J. Fluoresc. 2011, 21, 859–864. [Google Scholar] [CrossRef] [PubMed]
- Burkhanov, R.N. Well Device for Measuring Optical Oil Properties at Wellhead. Available online: https://new.fips.ru/Archive/PAT/2012FULL/2012.06.10/DOC/RUNWU1/000/000/000/116/893/DOCUMENT.PDF (accessed on 31 December 2021).
- Jones, C.; Dai, B.; Chen, D.; He, T.; Pelletier, M.; Darren, G. Measurement and use of Formation Fluid, Saturate, and Aromatic Content, with Wireline Formation Testers. In Proceedings of the SPWLA 56th Annual Logging Symposium 2015, Long Beach, CA, USA, 18–22 July 2015. [Google Scholar]
- Jones, C.M.; Pelletier, M.T.; Atkinson, R.; Shen, J.; Moore, J.; Anders, J.; Perkins, D.L.; Myrick, M.L. A small-volume PVTX system for broadband spectroscopic calibration of downhole optical sensors. Rev. Sci. Instrum. 2017, 88, 073101. [Google Scholar] [CrossRef] [PubMed]
- Jones, C.M.; Dai, B.; Price, J.; Li, J.; Pearl, M.; Soltmann, B.; Myrick, M.L. A New Multivariate Optical Computing Microelement and Miniature Sensor for Spectroscopic Chemical Sensing in Harsh Environments: Design, Fabrication, and Testing. Sensors 2019, 19, 701. [Google Scholar] [CrossRef] [PubMed]
- Eriksen, K.O.; Jones, C.M.; Freese, R.; van Zuilekom, A.H.W.; Gao, L.; Perkins, D.; Chen, D.; Gascooke, D.G.; Engelman, B. Field Tests of a New Optical Sensor Based on Integrated Computational Elements for Downhole Fluid Analysis. In Proceedings of the SPE Annual Technical Conference and Exhibition, New Orleans, LA, USA, 30 September–2 October 2013. [Google Scholar] [CrossRef]
- Burkhanov, R.N. Oil Optical Properties; Almetyevsk State Oil Institute: Almetyevsk, Russia, 2012; Volume IX, pp. 238–248. [Google Scholar]
- Maksyutin, A.V.; Burkhanov, R.N.; Khannanov, M.T. Use of Horizontal Shear Maps for Geological Analysis of The Lower Carboniferous Natyral Reservoirs of the Cheremshan-Yamashian Oil and Gas Accumulation Area. Yuzhno Rus. Geol. Geogr. Glob. Energy 2005, 4, 23–28. [Google Scholar]
- Burkhanov, R.N.; Khannanov, M.T.; Valiullin, I.V. Application of the optical method for geological and field purposes. Univ. News. Oil Gas. 2006, 1, 4–10. [Google Scholar]
- Burkhanov, R.N.; Raupov, I.R. Mobile Device for Automatic Measurement of Optical Properties of Oil at Wellhead of Oil Producing Wells. Available online: https://new.fips.ru/Archive/PAT/2012FULL/2012.12.27/DOC/RUNWU1/000/000/000/123/455/DOCUMENT.PDF (accessed on 31 December 2021).











Publisher’s Note: MDPI stays neutral with regard to jurisdictional claims in published maps and institutional affiliations. |
© 2022 by the authors. Licensee MDPI, Basel, Switzerland. This article is an open access article distributed under the terms and conditions of the Creative Commons Attribution (CC BY) license (https://creativecommons.org/licenses/by/4.0/).
Share and Cite
Raupov, I.; Burkhanov, R.; Lutfullin, A.; Maksyutin, A.; Lebedev, A.; Safiullina, E. Experience in the Application of Hydrocarbon Optical Studies in Oil Field Development. Energies 2022, 15, 3626. https://doi.org/10.3390/en15103626
Raupov I, Burkhanov R, Lutfullin A, Maksyutin A, Lebedev A, Safiullina E. Experience in the Application of Hydrocarbon Optical Studies in Oil Field Development. Energies. 2022; 15(10):3626. https://doi.org/10.3390/en15103626
Chicago/Turabian StyleRaupov, Inzir, Ramis Burkhanov, Azat Lutfullin, Alexander Maksyutin, Andrey Lebedev, and Elena Safiullina. 2022. "Experience in the Application of Hydrocarbon Optical Studies in Oil Field Development" Energies 15, no. 10: 3626. https://doi.org/10.3390/en15103626
APA StyleRaupov, I., Burkhanov, R., Lutfullin, A., Maksyutin, A., Lebedev, A., & Safiullina, E. (2022). Experience in the Application of Hydrocarbon Optical Studies in Oil Field Development. Energies, 15(10), 3626. https://doi.org/10.3390/en15103626

